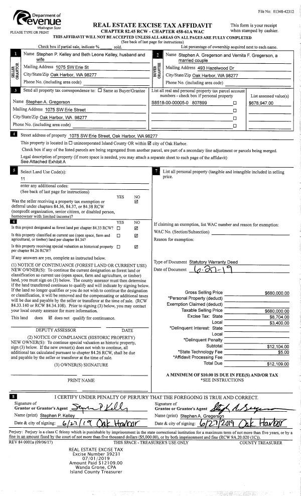
Property
Account |
| Property ID: | 102999 | Abbreviated Legal Description: | 26 - W/2 SE NE SW SUBJ TO EZ |
| Geographic ID: | R23321-167-2130 | Agent Code: | |
| Type: | Real | | |
| Tax Area: | 112 - APPRAISER-OH Schl Dist, outside OH, improved, greater than 1 acre | Land Use Code | 11 |
| Open Space: | N | DFL | N |
| Historic Property: | N | Remodel Property: | N |
| Multi-Family Redevelopment: | N | | |
| Township: | 33 | Section: | 21 |
| Range: | R2 |
Location |
| Address: | 954 DOYLE LN OAK HARBOR, WA 98277 | Mapsco: | |
| Neighborhood: | Cycle 6 | Map ID: | 616 |
| Neighborhood CD: | 6 |
Owner |
| Name: | HARRISON, WILLIAM M | Owner ID: | 290874 |
| Mailing Address: | TERA D HARRISON 954 DOYLE LN OAK HARBOR, WA 98277 | % Ownership: | 100.0000000000% |
| | | Exemptions: | |
Taxes and Assessment Details
Values
| (+) Improvement Homesite Value: | + | $0 | |
| (+) Improvement Non-Homesite Value: | + | $418,632 | |
| (+) Land Homesite Value: | + | $0 | |
| (+) Land Non-Homesite Value: | + | $300,000 | |
| (+) Curr Use (HS): | + | $0 | $0 |
| (+) Curr Use (NHS): | + | $0 | $0 |
| | | -------------------------- | |
| (=) Market Value: | = | $718,632 | |
| (–) Productivity Loss: | – | $0 | |
| | | -------------------------- | |
| (=) Subtotal: | = | $718,632 | |
| (+) Senior Appraised Value: | + | $0 | |
| (+) Non-Senior Appraised Value: | + | $718,632 | |
| | | -------------------------- | |
| (=) Total Appraised Value: | = | $718,632 | |
| (–) Senior Exemption Loss: | – | $0 | |
| (–) Exemption Loss: | – | $0 | |
| | | -------------------------- | |
| (=) Taxable Value: | = | $718,632 | |
Taxing Jurisdiction
| Owner: | HARRISON, WILLIAM M | | |
| % Ownership: | 100.0000000000% | | |
| Total Value: | $718,632 | | |
| Tax Area: | 112 - APPRAISER-OH Schl Dist, outside OH, improved, greater than 1 acre |
| CF | Conservation Futures | 0.0316035091 | $718,632 | $718,632 | $22.71 | | |
| CEM1 | Cemetery #1 | 0.0040320932 | $718,632 | $718,632 | $2.90 | | |
| FIRE2 | Fire & Rescue Dist #2 N Whidbey GEN | 0.5475949600 | $718,632 | $718,632 | $393.52 | | |
| HOBOND | Hospital BOND | 0.1910887512 | $718,632 | $718,632 | $137.32 | | |
| HOGEN | Hospital GEN | 0.3902502903 | $718,632 | $718,632 | $280.45 | | |
| CE | County Current Expense | 0.3708482477 | $718,632 | $718,632 | $266.50 | | |
| CR | County Roads | 0.4584763726 | $718,632 | $718,632 | $329.48 | | |
| ISLANDEMS | Hospital GEN (EMS) | 0.5000000000 | $718,632 | $718,632 | $359.32 | | |
| LIB | Library Sno-Isle GEN | 0.3153421757 | $718,632 | $718,632 | $226.61 | | |
| NWHIDPRMT | P & R N Whidbey GEN | 0.2004466701 | $718,632 | $718,632 | $144.05 | | |
| SCH201MO | School 201 Enrichment | 1.8559231640 | $718,632 | $718,632 | $1,333.73 | | |
| ST | State School | 1.3035497053 | $718,632 | $718,632 | $936.77 | | |
| ST2 | State School Part 2 | 0.8169543533 | $718,632 | $718,632 | $587.09 | | |
| | Total Tax Rate: | 6.9861102925 | | | | | |
| | | | | Taxes w/Current Exemptions: | $5,020.45 | | |
| | | | | Taxes w/o Exemptions: | $5,020.45 | | |
Improvement / Building
| Improvement #1: | RESIDENTIAL | State Code: | Y | 2028.0 sqft | Value: | $418,632 |
| Bathrooms: | 3 | Bedrooms: | 3 | | Ceiling: | DRYWALL PAINTED | Cooling: | HEAT PUMP/CONV/V | | Exterior Wall/Cover: | CEMENT FIBER | Floor Covering: | HARDWOOD/CARP 60-40 | | Floor Structure: | WOOD W/SUBFLOOR | Foundation: | CONCRETE | | Interior Finish: | DRYWALL PAINT | Plumbing Fixture Cnt: | 14 | | Roof Slope: | 5" IN 12" | Roof Structure/Cover: | CJ ASPHALT |
|
| | Type | Description | Class CD | Sub Class CD | Year Built | Area |
| | BAS | BASE/MAIN FLOOR | 3 | 0 | 2019 | 2028.0 |
| | AGR | ATTACHED GARAGE | 3 | 0 | 2019 | 480.0 |
| | OWP | OPEN WOOD PORCH W/STEPS | 3 | 0 | 2019 | 85.0 |
| | OWC | OPEN WOOD PORCH W/STEPS/ROOF/C | 3 | 0 | 2019 | 45.0 |
| | OWP | OPEN WOOD PORCH W/STEPS | 3 | 0 | 2019 | 100.0 |
Sketch
Property Image
Land
| 1 | 32 | AC (03.01-09.99) | 4.7800 | 0.00 | 0.00 | 0.00 | 1.00 | $300,000 | $0 |
Roll Value History
| 2026 | N/A | N/A | N/A | N/A | N/A |
| 2025 | $418,632 | $300,000 | $0 | $718,632 | $718,632 |
| 2024 | $421,983 | $280,000 | $0 | $701,983 | $701,983 |
| 2023 | $425,332 | $270,000 | $0 | $695,332 | $695,332 |
| 2022 | $385,148 | $240,000 | $0 | $625,148 | $625,148 |
| 2021 | $338,420 | $175,000 | $0 | $513,420 | $513,420 |
| 2020 | $331,492 | $150,000 | $0 | $481,492 | $481,492 |
| 2019 | $252,526 | $185,000 | $0 | $437,526 | $437,526 |
| 2018 | $0 | $90,000 | $0 | $90,000 | $90,000 |
| 2017 | $0 | $80,000 | $0 | $80,000 | $80,000 |
| 2016 | $0 | $80,000 | $0 | $80,000 | $80,000 |
| 2015 | $0 | $60,000 | $0 | $60,000 | $60,000 |
| 2014 | $0 | $75,000 | $0 | $75,000 | $75,000 |
| 2013 | $0 | $62,140 | $0 | $62,140 | $62,140 |
| 2012 | $0 | $95,600 | $0 | $95,600 | $95,600 |
| 2011 | $0 | $95,600 | $0 | $95,600 | $95,600 |
| 2010 | $0 | $95,600 | $0 | $95,600 | $95,600 |
| 2009 | $0 | $100,380 | $0 | $100,380 | $100,380 |
| 2008 | $0 | $100,380 | $0 | $100,380 | $100,380 |
| 2007 | $0 | $122,607 | $0 | $122,607 | $122,607 |
Deed and Sales History
| 1 | 08/14/2025 | PRD | Personal Representatives Deed | HARRISON, WILLIAM M | HARRISON, TERA DEL | | | $0.00 | 64527 | 4589799 |
| 2 | 07/05/2019 | WD | Warranty Deed | ENCINAS CONSTRUCTION, INC | HARRISON, WILLIAM M | | | $489,500.00 | 39361 | 4467035 |
| 3 | 01/03/2018 | WD | Warranty Deed | BENNETT, FRANK | ENCINAS CONSTRUCTION, INC | | | $68,000.00 | 32528 | 4437033 |
| 4 | 01/01/1979 | OTHER | Other - Misc. Documents | Unknown | BENNETT, FRANK | | | $5,000.00 | 90182 | 345896 |
Payout Agreement
| No payout information available.. |