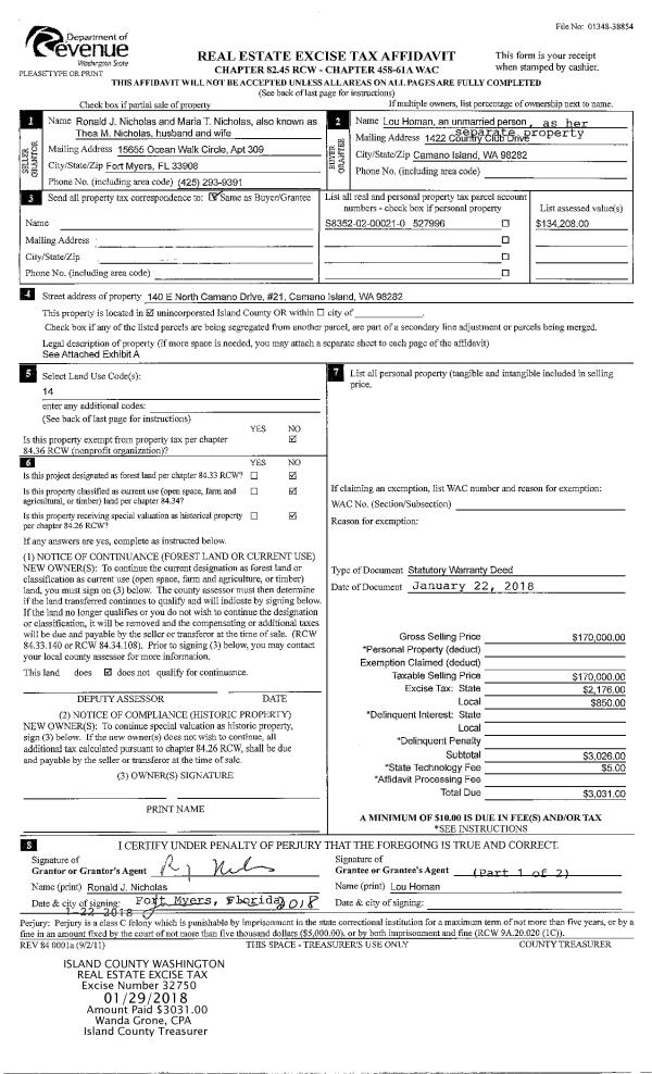
Property
Account |
| Property ID: | 103042 | Abbreviated Legal Description: | 10 - E/2 NW SE LY N OF CO RD EX E660'& EX RDS |
| Geographic ID: | R23321-203-3130 | Agent Code: | |
| Type: | Real | | |
| Tax Area: | 112 - APPRAISER-OH Schl Dist, outside OH, improved, greater than 1 acre | Land Use Code | 11 |
| Open Space: | N | DFL | N |
| Historic Property: | N | Remodel Property: | N |
| Multi-Family Redevelopment: | N | | |
| Township: | 33 | Section: | 21 |
| Range: | R2 |
Location |
| Address: | 1037 DEVRIES RD OAK HARBOR, WA 98277 | Mapsco: | |
| Neighborhood: | Cycle 6 | Map ID: | 617 |
| Neighborhood CD: | 6 |
Owner |
| Name: | STACHLOWSKI, SETH | Owner ID: | 283917 |
| Mailing Address: | 1037 DEVRIES RD OAK HARBOR, WA 98277 | % Ownership: | 100.0000000000% |
| | | Exemptions: | |
Taxes and Assessment Details
Values
| (+) Improvement Homesite Value: | + | $0 | |
| (+) Improvement Non-Homesite Value: | + | $311,010 | |
| (+) Land Homesite Value: | + | $0 | |
| (+) Land Non-Homesite Value: | + | $300,000 | |
| (+) Curr Use (HS): | + | $0 | $0 |
| (+) Curr Use (NHS): | + | $0 | $0 |
| | | -------------------------- | |
| (=) Market Value: | = | $611,010 | |
| (–) Productivity Loss: | – | $0 | |
| | | -------------------------- | |
| (=) Subtotal: | = | $611,010 | |
| (+) Senior Appraised Value: | + | $0 | |
| (+) Non-Senior Appraised Value: | + | $611,010 | |
| | | -------------------------- | |
| (=) Total Appraised Value: | = | $611,010 | |
| (–) Senior Exemption Loss: | – | $0 | |
| (–) Exemption Loss: | – | $0 | |
| | | -------------------------- | |
| (=) Taxable Value: | = | $611,010 | |
Taxing Jurisdiction
| Owner: | STACHLOWSKI, SETH | | |
| % Ownership: | 100.0000000000% | | |
| Total Value: | $611,010 | | |
| Tax Area: | 112 - APPRAISER-OH Schl Dist, outside OH, improved, greater than 1 acre |
| CF | Conservation Futures | 0.0316035091 | $611,010 | $611,010 | $19.31 | | |
| CEM1 | Cemetery #1 | 0.0040320932 | $611,010 | $611,010 | $2.46 | | |
| FIRE2 | Fire & Rescue Dist #2 N Whidbey GEN | 0.5475949600 | $611,010 | $611,010 | $334.59 | | |
| HOBOND | Hospital BOND | 0.1910887512 | $611,010 | $611,010 | $116.76 | | |
| HOGEN | Hospital GEN | 0.3902502903 | $611,010 | $611,010 | $238.45 | | |
| CE | County Current Expense | 0.3708482477 | $611,010 | $611,010 | $226.59 | | |
| CR | County Roads | 0.4584763726 | $611,010 | $611,010 | $280.13 | | |
| ISLANDEMS | Hospital GEN (EMS) | 0.5000000000 | $611,010 | $611,010 | $305.51 | | |
| LIB | Library Sno-Isle GEN | 0.3153421757 | $611,010 | $611,010 | $192.68 | | |
| NWHIDPRMT | P & R N Whidbey GEN | 0.2004466701 | $611,010 | $611,010 | $122.47 | | |
| SCH201MO | School 201 Enrichment | 1.8559231640 | $611,010 | $611,010 | $1,133.99 | | |
| ST | State School | 1.3035497053 | $611,010 | $611,010 | $796.48 | | |
| ST2 | State School Part 2 | 0.8169543533 | $611,010 | $611,010 | $499.17 | | |
| | Total Tax Rate: | 6.9861102925 | | | | | |
| | | | | Taxes w/Current Exemptions: | $4,268.59 | | |
| | | | | Taxes w/o Exemptions: | $4,268.59 | | |
Improvement / Building
| Improvement #1: | RESIDENTIAL | State Code: | Y | 1728.0 sqft | Value: | $311,010 |
| Bathrooms: | 1.5 | Bedrooms: | 3 | | Ceiling: | DRY WALL SPRAYED | Exterior Wall/Cover: | WOOD SIDING | | Floor Covering: | CARPET/VINYL 80-20 | Floor Structure: | WOOD W/SUBFLOOR | | Foundation: | CONCRETE | Heating: | FHA ELECTRIC | | Interior Finish: | DRYWALL PAINT | Plumbing Fixture Cnt: | 8 | | Roof Slope: | 4" IN 12" | Roof Structure/Cover: | CJ ASPHALT |
|
| | Type | Description | Class CD | Sub Class CD | Year Built | Area |
| | BAS | BASE/MAIN FLOOR | 3 | 0 | 1974 | 528.0 |
| | CPD | OPEN CARPORT DIRT FLOOR | 3 | 0 | 1974 | 1024.0 |
| | ENP | ENCLOSED PORCH | 3 | 0 | 1974 | 288.0 |
| | DWN | DOWNSTAIRS LIVING AREA | 3 | 0 | 1974 | 576.0 |
| | UPS | UPPER STORY | 3 | 0 | 1974 | 624.0 |
| | DGR | DETACHED GARAGE | 3 | 0 | 1974 | 768.0 |
Sketch
Property Image
Land
| 1 | 32 | AC (03.01-09.99) | 9.3000 | 405108.00 | 0.00 | 0.00 | 1.00 | $300,000 | $0 |
Roll Value History
| 2026 | N/A | N/A | N/A | N/A | N/A |
| 2025 | $311,010 | $300,000 | $0 | $611,010 | $611,010 |
| 2024 | $314,703 | $280,000 | $0 | $594,703 | $594,703 |
| 2023 | $318,395 | $270,000 | $0 | $588,395 | $588,395 |
| 2022 | $291,649 | $240,000 | $0 | $531,649 | $531,649 |
| 2021 | $248,495 | $175,000 | $0 | $423,495 | $423,495 |
| 2020 | $231,471 | $150,000 | $0 | $381,471 | $381,471 |
| 2019 | $150,451 | $220,000 | $0 | $370,451 | $370,451 |
| 2018 | $150,927 | $220,000 | $0 | $370,927 | $370,927 |
| 2017 | $127,158 | $200,000 | $0 | $327,158 | $327,158 |
| 2016 | $109,811 | $150,000 | $0 | $259,811 | $259,811 |
| 2015 | $111,420 | $155,000 | $0 | $266,420 | $266,420 |
| 2014 | $113,029 | $165,000 | $0 | $278,029 | $278,029 |
| 2013 | $118,639 | $158,100 | $0 | $276,739 | $276,739 |
| 2012 | $120,249 | $83,700 | $0 | $203,949 | $203,949 |
| 2011 | $121,859 | $93,000 | $0 | $214,859 | $214,859 |
| 2010 | $129,442 | $93,000 | $0 | $222,442 | $222,442 |
| 2009 | $134,669 | $204,600 | $0 | $339,269 | $339,269 |
| 2008 | $141,409 | $94,037 | $0 | $235,446 | $235,446 |
| 2007 | $143,288 | $94,037 | $0 | $237,325 | $237,325 |
Deed and Sales History
| 1 | 02/08/2018 | WD | Warranty Deed | PRIOR, WAYNE R | STACHLOWSKI, SETH | | | $370,000.00 | 32966 | 4439299 |
Payout Agreement
| No payout information available.. |