Property
Account |
| Property ID: | 103382 | Abbreviated Legal Description: | 4.1700 Acres ins Section 22s Township 33s Range R2s LOT A LOT COMB AF#4481872;s |
| Geographic ID: | R23322-114-4330 | Agent Code: | |
| Type: | Real | | |
| Tax Area: | 112 - APPRAISER-OH Schl Dist, outside OH, improved, greater than 1 acre | Land Use Code | 11 |
| Open Space: | N | DFL | N |
| Historic Property: | N | Remodel Property: | N |
| Multi-Family Redevelopment: | N | | |
| Township: | 33 | Section: | 22 |
| Range: | R2 |
Location |
| Address: | 3274 GREEN RD OAK HARBOR, WA 98277 | Mapsco: | |
| Neighborhood: | Cycle 6 | Map ID: | 621 |
| Neighborhood CD: | 6 |
Owner |
| Name: | SAMPSON TTEE, JAMES W | Owner ID: | 292206 |
| Mailing Address: | GLENDA SAMPSON, TTEE 3274 GREEN ROAD OAK HARBOR, WA 98277 | % Ownership: | 100.0000000000% |
| | | Exemptions: | |
Taxes and Assessment Details
Values
| (+) Improvement Homesite Value: | + | $0 | |
| (+) Improvement Non-Homesite Value: | + | $2,196,631 | |
| (+) Land Homesite Value: | + | $0 | |
| (+) Land Non-Homesite Value: | + | $650,000 | |
| (+) Curr Use (HS): | + | $0 | $0 |
| (+) Curr Use (NHS): | + | $0 | $0 |
| | | -------------------------- | |
| (=) Market Value: | = | $2,846,631 | |
| (–) Productivity Loss: | – | $0 | |
| | | -------------------------- | |
| (=) Subtotal: | = | $2,846,631 | |
| (+) Senior Appraised Value: | + | $0 | |
| (+) Non-Senior Appraised Value: | + | $2,846,631 | |
| | | -------------------------- | |
| (=) Total Appraised Value: | = | $2,846,631 | |
| (–) Senior Exemption Loss: | – | $0 | |
| (–) Exemption Loss: | – | $0 | |
| | | -------------------------- | |
| (=) Taxable Value: | = | $2,846,631 | |
Taxing Jurisdiction
| Owner: | SAMPSON TTEE, JAMES W | | |
| % Ownership: | 100.0000000000% | | |
| Total Value: | $2,846,631 | | |
| Tax Area: | 112 - APPRAISER-OH Schl Dist, outside OH, improved, greater than 1 acre |
| CF | Conservation Futures | 0.0316035091 | $2,846,631 | $2,846,631 | $89.96 | | |
| CEM1 | Cemetery #1 | 0.0040320932 | $2,846,631 | $2,846,631 | $11.48 | | |
| FIRE2 | Fire & Rescue Dist #2 N Whidbey GEN | 0.5475949600 | $2,846,631 | $2,846,631 | $1,558.80 | | |
| HOBOND | Hospital BOND | 0.1910887512 | $2,846,631 | $2,846,631 | $543.96 | | |
| HOGEN | Hospital GEN | 0.3902502903 | $2,846,631 | $2,846,631 | $1,110.90 | | |
| CE | County Current Expense | 0.3708482477 | $2,846,631 | $2,846,631 | $1,055.67 | | |
| CR | County Roads | 0.4584763726 | $2,846,631 | $2,846,631 | $1,305.11 | | |
| ISLANDEMS | Hospital GEN (EMS) | 0.5000000000 | $2,846,631 | $2,846,631 | $1,423.32 | | |
| LIB | Library Sno-Isle GEN | 0.3153421757 | $2,846,631 | $2,846,631 | $897.66 | | |
| NWHIDPRMT | P & R N Whidbey GEN | 0.2004466701 | $2,846,631 | $2,846,631 | $570.60 | | |
| SCH201MO | School 201 Enrichment | 1.8559231640 | $2,846,631 | $2,846,631 | $5,283.13 | | |
| ST | State School | 1.3035497053 | $2,846,631 | $2,846,631 | $3,710.73 | | |
| ST2 | State School Part 2 | 0.8169543533 | $2,846,631 | $2,846,631 | $2,325.57 | | |
| | Total Tax Rate: | 6.9861102925 | | | | | |
| | | | | Taxes w/Current Exemptions: | $19,886.89 | | |
| | | | | Taxes w/o Exemptions: | $19,886.89 | | |
Improvement / Building
| Improvement #1: | RESIDENTIAL | State Code: | Y | 4419.0 sqft | Value: | $1,848,936 |
| Bathrooms: | 3.5 | Bedrooms: | 3 | | Ceiling: | DRYWALL PAINTED | Exterior Wall/Cover: | CEMENT FIBER | | Floor Covering: | VINYL TILE/HARWD 20-80 | Floor Structure: | WOOD W/SUBFLOOR | | Foundation: | CONCRETE | Heating: | FHA GAS | | Interior Finish: | DRYWALL PAINT | Plumbing Fixture Cnt: | 21 | | Roof Slope: | 8" IN 12" | Roof Structure/Cover: | STEEL TERNE |
|
| | Type | Description | Class CD | Sub Class CD | Year Built | Area |
| | BAS | BASE/MAIN FLOOR | 7 | 0 | 2022 | 3232.0 |
| | UPS | UPPER STORY | 7 | 0 | 2022 | 1187.0 |
| | BIG | BUILT IN GARAGE | 7 | 0 | 2022 | 948.0 |
| | ATU | ATTIC UNFINISHED | 7 | 0 | 2022 | 807.0 |
| | OWP | OPEN WOOD PORCH W/STEPS | 7 | 0 | 2022 | 315.0 |
| | OWC | OPEN WOOD PORCH W/STEPS/ROOF/C | 7 | 0 | 2022 | 1326.0 |
| | OP4 | OPEN PORCH W/CEILING-ROOF | 7 | 0 | 2022 | 234.0 |
| Improvement #2: | RESIDENTIAL | State Code: | Y | 1136.0 sqft | Value: | $347,695 |
| Bathrooms: | 1 | Bedrooms: | 1 | | Ceiling: | DRYWALL PAINTED | Cooling: | HEAT PUMP/CONV/V | | Exterior Wall/Cover: | PLYWD/WD OR ST STUDS | Floor Covering: | HARDWOOD 100% | | Floor Structure: | WOOD W/SUBFLOOR | Foundation: | SLAB/CONCRETE | | Interior Finish: | DRYWALL PAINT | Plumbing Fixture Cnt: | 7 | | Roof Slope: | 8" IN 12" | Roof Structure/Cover: | CJ ALUMINIUM HEAVY |
|
| | Type | Description | Class CD | Sub Class CD | Year Built | Area |
| | BAS | BASE/MAIN FLOOR | 4 | 0 | 2021 | 1136.0 |
| | BIG | BUILT IN GARAGE | 4 | 0 | 2021 | 1120.0 |
| | AGR | ATTACHED GARAGE | 4 | 0 | 2021 | 576.0 |
| | OWP | OPEN WOOD PORCH W/STEPS | 4 | 0 | 2021 | 213.0 |
Sketch
Property Image
Land
| 1 | HB | HIGH BLUFF | 4.1700 | 181645.20 | 375.02 | 0.00 | 1.00 | $650,000 | $0 |
Roll Value History
| 2026 | N/A | N/A | N/A | N/A | N/A |
| 2025 | $2,196,631 | $650,000 | $0 | $2,846,631 | $2,846,631 |
| 2024 | $2,218,801 | $650,000 | $0 | $2,868,801 | $2,868,801 |
| 2023 | $1,971,103 | $625,000 | $0 | $2,596,103 | $2,596,103 |
| 2022 | $368,233 | $287,500 | $0 | $655,733 | $655,733 |
| 2021 | $91,090 | $250,000 | $0 | $341,090 | $341,090 |
| 2020 | $0 | $250,000 | $0 | $250,000 | $250,000 |
| 2019 | $0 | $200,000 | $0 | $200,000 | $200,000 |
| 2018 | $0 | $30,000 | $0 | $30,000 | $30,000 |
| 2017 | $0 | $30,000 | $0 | $30,000 | $30,000 |
| 2016 | $0 | $30,000 | $0 | $30,000 | $30,000 |
| 2015 | $0 | $30,000 | $0 | $30,000 | $30,000 |
| 2014 | $0 | $30,000 | $0 | $30,000 | $30,000 |
| 2013 | $0 | $29,539 | $0 | $29,539 | $29,539 |
| 2012 | $0 | $29,539 | $0 | $29,539 | $29,539 |
| 2011 | $0 | $29,539 | $0 | $29,539 | $29,539 |
| 2010 | $0 | $29,539 | $0 | $29,539 | $29,539 |
| 2009 | $0 | $38,324 | $0 | $38,324 | $38,324 |
| 2008 | $0 | $41,222 | $0 | $41,222 | $41,222 |
| 2007 | $0 | $46,169 | $0 | $46,169 | $46,169 |
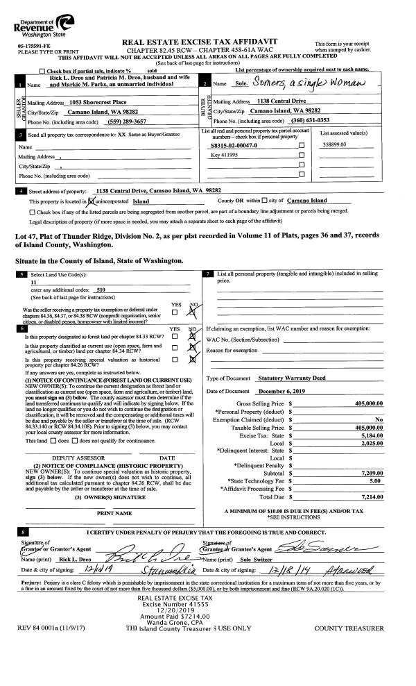
Deed and Sales History
| 1 | 10/09/2019 | WD | Warranty Deed | DENT, HARVEY L | SAMPSON TTEE, JAMES W | | | $280,000.00 | 40685 | 4473306 |
| 2 | 05/02/2006 | EZ | Easement | DENT, HARVEY L | DENT, HARVEY L | | | $25,000.00 | 18784 | 4374887 |
| 3 | 12/01/2005 | WD | Warranty Deed | FRENCH, DONNA R | DENT, HARBEY L | | | $235,000.00 | 56039 | 4156031 |
| 4 | 03/18/2005 | QCD | Quit Claim Deed | MCDONALD, OSCAR W | FRENCH, DONNA R | | | $0.00 | 51368 | 4130147 |
| 5 | 01/01/1900 | OTHER | Other - Misc. Documents | Unknown | MCDONALD, OSCAR W | | | $0.00 | 0 | 0 |
Payout Agreement
| No payout information available.. |