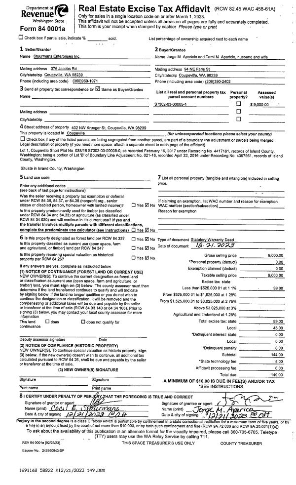
Property
Account |
| Property ID: | 103818 | Abbreviated Legal Description: | 8 - PT GL 1 LY E OF STRAW- BERRY PT RD EX N520' MEAS ALG WLN SD RD EX S400' |
| Geographic ID: | R23326-062-4350 | Agent Code: | |
| Type: | Real | | |
| Tax Area: | 112 - APPRAISER-OH Schl Dist, outside OH, improved, greater than 1 acre | Land Use Code | 11 |
| Open Space: | N | DFL | N |
| Historic Property: | N | Remodel Property: | N |
| Multi-Family Redevelopment: | N | | |
| Township: | 33 | Section: | 26 |
| Range: | R2 |
Location |
| Address: | 2848 STRAWBERRY POINT RD OAK HARBOR, WA 98277 | Mapsco: | |
| Neighborhood: | Cycle 6 | Map ID: | 624 |
| Neighborhood CD: | 6 |
Owner |
| Name: | BLOCH, PAUL S | Owner ID: | 152904 |
| Mailing Address: | 2848 STRAWBERRY POINT RD OAK HARBOR, WA 98277-9062 | % Ownership: | 100.0000000000% |
| | | Exemptions: | |
Taxes and Assessment Details
Values
| (+) Improvement Homesite Value: | + | $0 | |
| (+) Improvement Non-Homesite Value: | + | $294,227 | |
| (+) Land Homesite Value: | + | $0 | |
| (+) Land Non-Homesite Value: | + | $750,000 | |
| (+) Curr Use (HS): | + | $0 | $0 |
| (+) Curr Use (NHS): | + | $0 | $0 |
| | | -------------------------- | |
| (=) Market Value: | = | $1,044,227 | |
| (–) Productivity Loss: | – | $0 | |
| | | -------------------------- | |
| (=) Subtotal: | = | $1,044,227 | |
| (+) Senior Appraised Value: | + | $0 | |
| (+) Non-Senior Appraised Value: | + | $1,044,227 | |
| | | -------------------------- | |
| (=) Total Appraised Value: | = | $1,044,227 | |
| (–) Senior Exemption Loss: | – | $0 | |
| (–) Exemption Loss: | – | $0 | |
| | | -------------------------- | |
| (=) Taxable Value: | = | $1,044,227 | |
Taxing Jurisdiction
| Owner: | BLOCH, PAUL S | | |
| % Ownership: | 100.0000000000% | | |
| Total Value: | $1,044,227 | | |
| Tax Area: | 112 - APPRAISER-OH Schl Dist, outside OH, improved, greater than 1 acre |
| CF | Conservation Futures | 0.0316035091 | $1,044,227 | $1,044,227 | $33.00 | | |
| CEM1 | Cemetery #1 | 0.0040320932 | $1,044,227 | $1,044,227 | $4.21 | | |
| FIRE2 | Fire & Rescue Dist #2 N Whidbey GEN | 0.5475949600 | $1,044,227 | $1,044,227 | $571.81 | | |
| HOBOND | Hospital BOND | 0.1910887512 | $1,044,227 | $1,044,227 | $199.54 | | |
| HOGEN | Hospital GEN | 0.3902502903 | $1,044,227 | $1,044,227 | $407.51 | | |
| CE | County Current Expense | 0.3708482477 | $1,044,227 | $1,044,227 | $387.25 | | |
| CR | County Roads | 0.4584763726 | $1,044,227 | $1,044,227 | $478.75 | | |
| ISLANDEMS | Hospital GEN (EMS) | 0.5000000000 | $1,044,227 | $1,044,227 | $522.11 | | |
| LIB | Library Sno-Isle GEN | 0.3153421757 | $1,044,227 | $1,044,227 | $329.29 | | |
| NWHIDPRMT | P & R N Whidbey GEN | 0.2004466701 | $1,044,227 | $1,044,227 | $209.31 | | |
| SCH201MO | School 201 Enrichment | 1.8559231640 | $1,044,227 | $1,044,227 | $1,938.01 | | |
| ST | State School | 1.3035497053 | $1,044,227 | $1,044,227 | $1,361.20 | | |
| ST2 | State School Part 2 | 0.8169543533 | $1,044,227 | $1,044,227 | $853.09 | | |
| | Total Tax Rate: | 6.9861102925 | | | | | |
| | | | | Taxes w/Current Exemptions: | $7,295.08 | | |
| | | | | Taxes w/o Exemptions: | $7,295.08 | | |
Improvement / Building
| Improvement #1: | RESIDENTIAL | State Code: | Y | 1932.0 sqft | Value: | $294,227 |
| Bathrooms: | 3 | Bedrooms: | 4 | | Ceiling: | TONGUE & GROOVE | Cooling: | HEAT PUMP/CONV/V | | Exterior Wall/Cover: | PLY/HARDBOARD T-111 | Floor Covering: | CARPET/VINYL 80-20 | | Floor Structure: | WOOD W/SUBFLOOR | Foundation: | CONCRETE | | Interior Finish: | DRYWALL PAINT | Plumbing Fixture Cnt: | 11 | | Roof Slope: | 8" IN 12" | Roof Structure/Cover: | CJ ASPHALT |
|
| | Type | Description | Class CD | Sub Class CD | Year Built | Area |
| | BAS | BASE/MAIN FLOOR | 3 | 0 | 1980 | 988.0 |
| | UB8 | BASEMENT UNFINISHED 8" | 3 | 0 | 1980 | 1090.0 |
| | UPS | UPPER STORY | 3 | 0 | 1980 | 944.0 |
| | OWP | OPEN WOOD PORCH W/STEPS | 3 | 0 | 1980 | 473.0 |
| | OWC | OPEN WOOD PORCH W/STEPS/ROOF/C | 3 | 0 | 1980 | 58.0 |
| | ENP | ENCLOSED PORCH | 3 | 0 | 1980 | 129.5 |
Sketch
Property Image
Land
| 1 | HB | HIGH BLUFF | 4.4000 | 191664.00 | 390.00 | 0.00 | 1.00 | $750,000 | $0 |
Roll Value History
| 2026 | N/A | N/A | N/A | N/A | N/A |
| 2025 | $294,227 | $750,000 | $0 | $1,044,227 | $1,044,227 |
| 2024 | $298,601 | $725,000 | $0 | $1,023,601 | $1,023,601 |
| 2023 | $302,976 | $700,000 | $0 | $1,002,976 | $1,002,976 |
| 2022 | $246,201 | $650,000 | $0 | $896,201 | $896,201 |
| 2021 | $217,329 | $600,000 | $0 | $817,329 | $817,329 |
| 2020 | $212,427 | $550,000 | $0 | $762,427 | $762,427 |
| 2019 | $160,686 | $600,000 | $0 | $760,686 | $760,686 |
| 2018 | $161,267 | $550,000 | $0 | $711,267 | $711,267 |
| 2017 | $162,427 | $550,000 | $0 | $712,427 | $712,427 |
| 2016 | $151,808 | $550,000 | $0 | $701,808 | $701,808 |
| 2015 | $154,220 | $550,000 | $0 | $704,220 | $704,220 |
| 2014 | $156,628 | $550,000 | $0 | $706,628 | $706,628 |
| 2013 | $159,039 | $672,593 | $0 | $831,632 | $831,632 |
| 2012 | $161,449 | $672,593 | $0 | $834,042 | $834,042 |
| 2011 | $163,859 | $672,593 | $0 | $836,452 | $836,452 |
| 2010 | $179,010 | $672,593 | $0 | $851,603 | $851,603 |
| 2009 | $186,922 | $909,529 | $0 | $1,096,451 | $1,096,451 |
| 2008 | $196,483 | $909,529 | $0 | $1,106,012 | $1,106,012 |
| 2007 | $199,116 | $688,061 | $0 | $887,177 | $887,177 |
Deed and Sales History
| 1 | 10/01/1975 | EXECUTORD | Executor Deed | CORK, R M | BLOCH, PAUL S | | | $45,000.00 | 57213 | 0 |
| 2 | 01/01/1900 | OTHER | Other - Misc. Documents | Unknown | CORK, R M | | | $0.00 | 0 | 0 |
Payout Agreement
| No payout information available.. |