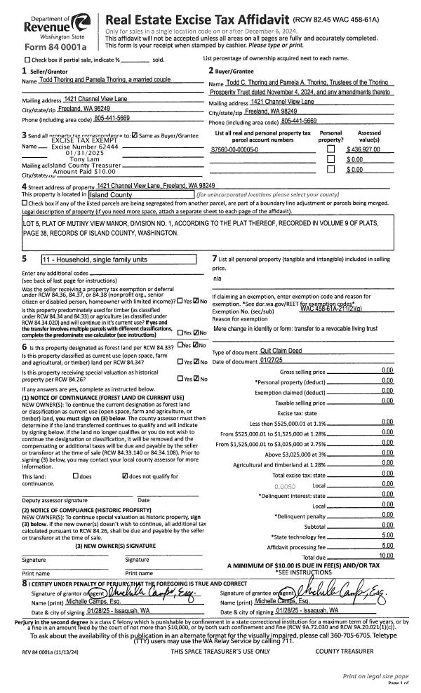
Property
Account |
| Property ID: | 103854 | Abbreviated Legal Description: | 15 - S/2 OF FOL: N/2 N/2 SWSW & NWSW EX N1115.93'TGW & SUB EAS A#20588 |
| Geographic ID: | R23326-116-0680 | Agent Code: | |
| Type: | Real | | |
| Tax Area: | 112 - APPRAISER-OH Schl Dist, outside OH, improved, greater than 1 acre | Land Use Code | 11 |
| Open Space: | N | DFL | N |
| Historic Property: | N | Remodel Property: | N |
| Multi-Family Redevelopment: | N | | |
| Township: | 33 | Section: | 26 |
| Range: | R2 |
Location |
| Address: | 2892 UMATILLA DR OAK HARBOR, WA 98277 | Mapsco: | |
| Neighborhood: | Cycle 6 | Map ID: | 623 |
| Neighborhood CD: | 6 |
Owner |
| Name: | WESTGATE RV CENTER, INC | Owner ID: | 311466 |
| Mailing Address: | DBA FAKKEMA BROTHERS 33510 SR 20 OAK HARBOR, WA 98277 | % Ownership: | 100.0000000000% |
| | | Exemptions: | |
Taxes and Assessment Details
Values
| (+) Improvement Homesite Value: | + | $0 | |
| (+) Improvement Non-Homesite Value: | + | $171,357 | |
| (+) Land Homesite Value: | + | $0 | |
| (+) Land Non-Homesite Value: | + | $300,000 | |
| (+) Curr Use (HS): | + | $0 | $0 |
| (+) Curr Use (NHS): | + | $0 | $0 |
| | | -------------------------- | |
| (=) Market Value: | = | $471,357 | |
| (–) Productivity Loss: | – | $0 | |
| | | -------------------------- | |
| (=) Subtotal: | = | $471,357 | |
| (+) Senior Appraised Value: | + | $0 | |
| (+) Non-Senior Appraised Value: | + | $471,357 | |
| | | -------------------------- | |
| (=) Total Appraised Value: | = | $471,357 | |
| (–) Senior Exemption Loss: | – | $0 | |
| (–) Exemption Loss: | – | $0 | |
| | | -------------------------- | |
| (=) Taxable Value: | = | $471,357 | |
Taxing Jurisdiction
| Owner: | WESTGATE RV CENTER, INC | | |
| % Ownership: | 100.0000000000% | | |
| Total Value: | $471,357 | | |
| Tax Area: | 112 - APPRAISER-OH Schl Dist, outside OH, improved, greater than 1 acre |
| CF | Conservation Futures | 0.0316035091 | $471,357 | $471,357 | $14.90 | | |
| CEM1 | Cemetery #1 | 0.0040320932 | $471,357 | $471,357 | $1.90 | | |
| FIRE2 | Fire & Rescue Dist #2 N Whidbey GEN | 0.5475949600 | $471,357 | $471,357 | $258.11 | | |
| HOBOND | Hospital BOND | 0.1910887512 | $471,357 | $471,357 | $90.07 | | |
| HOGEN | Hospital GEN | 0.3902502903 | $471,357 | $471,357 | $183.95 | | |
| CE | County Current Expense | 0.3708482477 | $471,357 | $471,357 | $174.80 | | |
| CR | County Roads | 0.4584763726 | $471,357 | $471,357 | $216.11 | | |
| ISLANDEMS | Hospital GEN (EMS) | 0.5000000000 | $471,357 | $471,357 | $235.68 | | |
| LIB | Library Sno-Isle GEN | 0.3153421757 | $471,357 | $471,357 | $148.64 | | |
| NWHIDPRMT | P & R N Whidbey GEN | 0.2004466701 | $471,357 | $471,357 | $94.48 | | |
| SCH201MO | School 201 Enrichment | 1.8559231640 | $471,357 | $471,357 | $874.80 | | |
| ST | State School | 1.3035497053 | $471,357 | $471,357 | $614.44 | | |
| ST2 | State School Part 2 | 0.8169543533 | $471,357 | $471,357 | $385.08 | | |
| | Total Tax Rate: | 6.9861102925 | | | | | |
| | | | | Taxes w/Current Exemptions: | $3,292.96 | | |
| | | | | Taxes w/o Exemptions: | $3,292.96 | | |
Improvement / Building
| Improvement #1: | MANUFACTURED HOME | State Code: | Y | 1600.2 sqft | Value: | $171,357 |
| Bathrooms: | 1 | Bedrooms: | 2 | | Ceiling: | PLASTER PAINTED | Cooling: | EVAP NO DUCT | | Exterior Wall/Cover: | VINYL | Floor Covering: | CARPET 100% | | Floor Structure: | SLAB ON GRADE | Foundation: | SLAB | | Heating: | FHA ELECTRIC | Interior Finish: | PLASTER | | Plumbing Fixture Cnt: | 1 | Roof Slope: | FLAT | | Roof Structure/Cover: | CJ ALUMINIUM HEAVY |   |   |
|
| | Type | Description | Class CD | Sub Class CD | Year Built | Area |
| | BAS | BASE/MAIN FLOOR | 4 | 0 | 2023 | 1600.2 |
| | OWP | OPEN WOOD PORCH W/STEPS | 4 | 0 | 2023 | 20.0 |
| | OWP | OPEN WOOD PORCH W/STEPS | 4 | 0 | 2023 | 32.0 |
| | OWP | OPEN WOOD PORCH W/STEPS | 4 | 0 | 2023 | 40.0 |
Sketch
| No sketches available for this property. |
Property Image
Land
| 1 | 32 | AC (03.01-09.99) | 8.0700 | 351529.20 | 0.00 | 0.00 | 1.00 | $300,000 | $0 |
Roll Value History
| 2026 | N/A | N/A | N/A | N/A | N/A |
| 2025 | $171,357 | $300,000 | $0 | $471,357 | $471,357 |
| 2024 | $0 | $150,000 | $0 | $150,000 | $150,000 |
| 2023 | $0 | $140,000 | $0 | $140,000 | $140,000 |
| 2022 | $0 | $100,000 | $0 | $100,000 | $100,000 |
| 2021 | $0 | $100,000 | $0 | $100,000 | $100,000 |
| 2020 | $0 | $90,000 | $0 | $90,000 | $90,000 |
| 2019 | $0 | $110,000 | $0 | $110,000 | $110,000 |
| 2018 | $0 | $110,000 | $0 | $110,000 | $110,000 |
| 2017 | $0 | $120,000 | $0 | $120,000 | $120,000 |
| 2016 | $0 | $120,000 | $0 | $120,000 | $120,000 |
| 2015 | $0 | $125,000 | $0 | $125,000 | $125,000 |
| 2014 | $0 | $115,000 | $0 | $115,000 | $115,000 |
| 2013 | $0 | $104,910 | $0 | $104,910 | $104,910 |
| 2012 | $0 | $80,700 | $0 | $80,700 | $80,700 |
| 2011 | $0 | $80,700 | $0 | $80,700 | $80,700 |
| 2010 | $0 | $80,700 | $0 | $80,700 | $80,700 |
| 2009 | $0 | $161,400 | $0 | $161,400 | $161,400 |
| 2008 | $0 | $217,890 | $0 | $217,890 | $217,890 |
| 2007 | $0 | $192,000 | $0 | $192,000 | $192,000 |
Deed and Sales History
| 1 | 07/29/2024 | WD | Warranty Deed | WESTGATE MOBILE HOMES, INC. | WESTGATE RV CENTER, INC | | | $90,000.00 | 60800 | 4575289 |
| 2 | 07/31/2018 | WD | Warranty Deed | KRAETZ, A LOREN | WESTGATE MOBILE HOMES, INC. | | | $90,000.00 | 35299 | 4449233 |
Payout Agreement
| No payout information available.. |