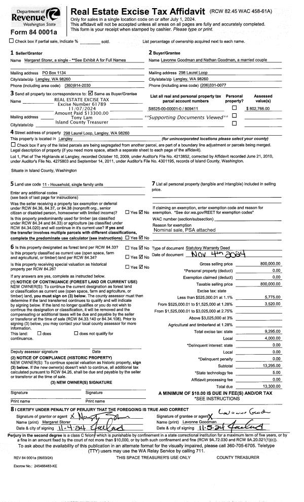
Property
Account |
| Property ID: | 104032 | Abbreviated Legal Description: | 39 EX OT - IN NE SW LY NELY OF SILVER LAKE RD TGW PT GL 2 DESC: BG W/4 CR SEC 26 S89*E2626.16'TO NWCR GL 2 & TPB S0*W424.18' S51*E194.15 S89*E306.43' N0*E132.71' S89*E303' S0*W57.71' N63*E 84.51' N44*E107.23' S89*E 248.50'M/L TO ML N41*W ALG ML 148.18' N3 |
| Geographic ID: | R23326-246-3141 | Agent Code: | |
| Type: | Real | | |
| Tax Area: | 112 - APPRAISER-OH Schl Dist, outside OH, improved, greater than 1 acre | Land Use Code | 11 |
| Open Space: | N | DFL | N |
| Historic Property: | N | Remodel Property: | N |
| Multi-Family Redevelopment: | N | | |
| Township: | 33 | Section: | 26 |
| Range: | R2 |
Location |
| Address: | 2968 STRAWBERRY POINT RD OAK HARBOR, WA 98277 | Mapsco: | |
| Neighborhood: | Cycle 6 | Map ID: | 624 |
| Neighborhood CD: | 6 |
Owner |
| Name: | BULL, VINCENT S | Owner ID: | 311291 |
| Mailing Address: | 16115 HUBBARD RD EAST MOLINE, IL 61244 | % Ownership: | 100.0000000000% |
| | | Exemptions: | |
Taxes and Assessment Details
Values
| (+) Improvement Homesite Value: | + | $0 | |
| (+) Improvement Non-Homesite Value: | + | $457,389 | |
| (+) Land Homesite Value: | + | $0 | |
| (+) Land Non-Homesite Value: | + | $915,000 | |
| (+) Curr Use (HS): | + | $0 | $0 |
| (+) Curr Use (NHS): | + | $0 | $0 |
| | | -------------------------- | |
| (=) Market Value: | = | $1,372,389 | |
| (–) Productivity Loss: | – | $0 | |
| | | -------------------------- | |
| (=) Subtotal: | = | $1,372,389 | |
| (+) Senior Appraised Value: | + | $0 | |
| (+) Non-Senior Appraised Value: | + | $1,372,389 | |
| | | -------------------------- | |
| (=) Total Appraised Value: | = | $1,372,389 | |
| (–) Senior Exemption Loss: | – | $0 | |
| (–) Exemption Loss: | – | $0 | |
| | | -------------------------- | |
| (=) Taxable Value: | = | $1,372,389 | |
Taxing Jurisdiction
| Owner: | BULL, VINCENT S | | |
| % Ownership: | 100.0000000000% | | |
| Total Value: | $1,372,389 | | |
| Tax Area: | 112 - APPRAISER-OH Schl Dist, outside OH, improved, greater than 1 acre |
| CF | Conservation Futures | 0.0316035091 | $1,372,389 | $1,372,389 | $43.37 | | |
| CEM1 | Cemetery #1 | 0.0040320932 | $1,372,389 | $1,372,389 | $5.53 | | |
| FIRE2 | Fire & Rescue Dist #2 N Whidbey GEN | 0.5475949600 | $1,372,389 | $1,372,389 | $751.51 | | |
| HOBOND | Hospital BOND | 0.1910887512 | $1,372,389 | $1,372,389 | $262.25 | | |
| HOGEN | Hospital GEN | 0.3902502903 | $1,372,389 | $1,372,389 | $535.58 | | |
| CE | County Current Expense | 0.3708482477 | $1,372,389 | $1,372,389 | $508.95 | | |
| CR | County Roads | 0.4584763726 | $1,372,389 | $1,372,389 | $629.21 | | |
| ISLANDEMS | Hospital GEN (EMS) | 0.5000000000 | $1,372,389 | $1,372,389 | $686.19 | | |
| LIB | Library Sno-Isle GEN | 0.3153421757 | $1,372,389 | $1,372,389 | $432.77 | | |
| NWHIDPRMT | P & R N Whidbey GEN | 0.2004466701 | $1,372,389 | $1,372,389 | $275.09 | | |
| SCH201MO | School 201 Enrichment | 1.8559231640 | $1,372,389 | $1,372,389 | $2,547.05 | | |
| ST | State School | 1.3035497053 | $1,372,389 | $1,372,389 | $1,788.98 | | |
| ST2 | State School Part 2 | 0.8169543533 | $1,372,389 | $1,372,389 | $1,121.18 | | |
| | Total Tax Rate: | 6.9861102925 | | | | | |
| | | | | Taxes w/Current Exemptions: | $9,587.66 | | |
| | | | | Taxes w/o Exemptions: | $9,587.66 | | |
Improvement / Building
| Improvement #1: | RESIDENTIAL | State Code: | Y | 3576.8 sqft | Value: | $457,389 |
| Bathrooms: | 2.5 | Bedrooms: | 3 | | Ceiling: | TONGUE & GROOVE | Cooling: | HEAT PUMP/CONV/V | | Exterior Wall/Cover: | WOOD SIDING | Floor Covering: | CARPET/VINYL 80-20 | | Floor Structure: | WOOD W/SUBFLOOR | Foundation: | CONCRETE | | Interior Finish: | DRYWALL PAINT | Plumbing Fixture Cnt: | 11 | | Roof Slope: | 4" IN 12" | Roof Structure/Cover: | BEAM WOOD SHAKES |
|
| | Type | Description | Class CD | Sub Class CD | Year Built | Area |
| | BAS | BASE/MAIN FLOOR | 4 | 0 | 1975 | 1842.8 |
| | OP4 | OPEN PORCH W/CEILING-ROOF | 4 | 0 | 1975 | 64.0 |
| | AGR | ATTACHED GARAGE | 4 | 0 | 1975 | 729.7 |
| | BAW | BALCONY WOOD RAIL | 4 | 0 | 1975 | 211.0 |
| | BAW | BALCONY WOOD RAIL | 4 | 0 | 1975 | 36.2 |
| | OWP | OPEN WOOD PORCH W/STEPS | 4 | 0 | 1975 | 618.0 |
| | DWN | DOWNSTAIRS LIVING AREA | 4 | 0 | 1975 | 1734.0 |
Sketch
Property Image
Land
| 1 | HB | HIGH BLUFF | 15.4600 | 673437.60 | 182.00 | 0.00 | 1.00 | $915,000 | $0 |
Roll Value History
| 2026 | N/A | N/A | N/A | N/A | N/A |
| 2025 | $457,389 | $915,000 | $0 | $1,372,389 | $1,372,389 |
| 2024 | $464,192 | $875,000 | $0 | $1,339,192 | $1,339,192 |
| 2023 | $470,994 | $850,000 | $0 | $1,320,994 | $1,320,994 |
| 2022 | $420,342 | $800,000 | $0 | $1,220,342 | $1,220,342 |
| 2021 | $370,874 | $525,000 | $1,681 | $440,472 | $440,472 |
| 2020 | $363,545 | $475,000 | $1,681 | $426,675 | $426,675 |
| 2019 | $298,504 | $475,000 | $1,622 | $361,575 | $361,575 |
| 2018 | $299,551 | $350,000 | $1,597 | $551,148 | $551,148 |
| 2017 | $301,647 | $350,000 | $1,597 | $348,522 | $348,522 |
| 2016 | $269,743 | $350,000 | $1,427 | $316,448 | $316,448 |
| 2015 | $274,094 | $350,000 | $1,427 | $320,799 | $320,799 |
| 2014 | $278,446 | $350,000 | $1,427 | $325,151 | $325,151 |
| 2013 | $282,796 | $523,732 | $1,427 | $632,975 | $632,975 |
| 2012 | $287,146 | $348,752 | $0 | $635,898 | $635,898 |
| 2011 | $291,496 | $348,752 | $0 | $640,248 | $640,248 |
| 2010 | $311,573 | $348,752 | $0 | $660,325 | $660,325 |
| 2009 | $325,472 | $505,553 | $0 | $831,025 | $831,025 |
| 2008 | $339,938 | $363,128 | $0 | $703,066 | $703,066 |
| 2007 | $344,670 | $80,373 | $0 | $425,043 | $425,043 |
Deed and Sales History
| 1 | 07/26/2022 | PRD | Personal Representatives Deed | BULL, DIANA KAY | BULL, VINCENT S | | | $0.00 | 59090 | 4568955 |
| 2 | 07/09/2018 | OTHER | Other - Misc. Documents | BULL, LYLE FRANKLIN | BULL, DIANA KAY | | | | 87826 | |
| 3 | 06/10/2008 | BLA | DNU - Boundary Line Adjustment | BULL, LYLE FRANKLIN | BULL, LYLE FRANKLIN | | | $0.00 | 80770 | 4183711 |
| 4 | 08/22/2006 | ESTSEPPROP | Establish Separate Property | BULL, LYLE FRANKLIN | BULL, LYLE FRANKLIN | | | $0.00 | 64368 | 4183709 |
| 5 | 04/18/2006 | TRUSTEED | Trustee's Deed | BULL, LYLE F | BULL, LYLE FRANKLIN | | | $0.00 | 61687 | 4168010 |
| 6 | 06/23/2005 | 5 | DNU - Marriage License/Name Change | BULL, DIANA | BULL, LYLE F | | | $0.00 | 52897 | 4137528 |
| 7 | 12/15/2004 | 5 | DNU - Marriage License/Name Change | STONE LE, DOROTHY A | BULL, DIANA | | | $0.00 | 70428 | 0 |
| 8 | 04/14/1999 | QCD | Quit Claim Deed | STONE, DOROTHY A | STONE LE, DOROTHY A | | | $0.00 | 91582 | 99010211 |
| 9 | 05/01/1997 | OTHER | Other - Misc. Documents | STONE, LESTER R | STONE, DOROTHY A | | | $0.00 | 67386 | 0 |
| 10 | 03/01/1996 | OTHER | Other - Misc. Documents | STONE, LESTER R | STONE, LESTER R | | | $0.00 | 66833 | 96002740 |
| 11 | 01/01/1996 | QCD | Quit Claim Deed | STONE, LESTER R | STONE, LESTER R | | | $0.00 | 60511 | 96002741 |
| 12 | 12/01/1973 | EXECUTORD | Executor Deed | STONE, LESTER R | STONE, LESTER R | | | $0.00 | 50554 | 0 |
| 13 | 01/01/1900 | OTHER | Other - Misc. Documents | Unknown | STONE, LESTER R | | | $0.00 | 0 | 0 |
Payout Agreement
| No payout information available.. |