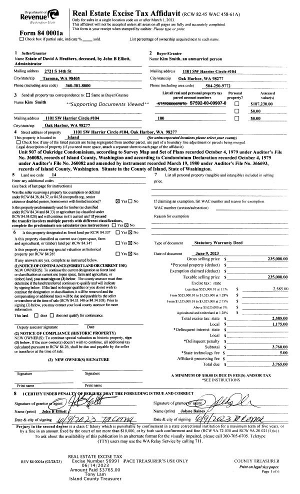
Property
Account |
| Property ID: | 104504 | Abbreviated Legal Description: | 77 - N/2 NW NE SW EX RD |
| Geographic ID: | R23327-250-1670 | Agent Code: | |
| Type: | Real | | |
| Tax Area: | 112 - APPRAISER-OH Schl Dist, outside OH, improved, greater than 1 acre | Land Use Code | 11 |
| Open Space: | N | DFL | N |
| Historic Property: | N | Remodel Property: | N |
| Multi-Family Redevelopment: | N | | |
| Township: | 33 | Section: | 27 |
| Range: | R2 |
Location |
| Address: | 1376 SILVER LAKE RD OAK HARBOR, WA 98277 | Mapsco: | |
| Neighborhood: | Cycle 6 | Map ID: | 627 |
| Neighborhood CD: | 6 |
Owner |
| Name: | CHESNUT, KAITLIN MARIE | Owner ID: | 302110 |
| Mailing Address: | 1376 SILVER LAKE RD OAK HARBOR, WA 98277 | % Ownership: | 100.0000000000% |
| | | Exemptions: | |
Taxes and Assessment Details
Values
| (+) Improvement Homesite Value: | + | $0 | |
| (+) Improvement Non-Homesite Value: | + | $127,201 | |
| (+) Land Homesite Value: | + | $0 | |
| (+) Land Non-Homesite Value: | + | $300,000 | |
| (+) Curr Use (HS): | + | $0 | $0 |
| (+) Curr Use (NHS): | + | $0 | $0 |
| | | -------------------------- | |
| (=) Market Value: | = | $427,201 | |
| (–) Productivity Loss: | – | $0 | |
| | | -------------------------- | |
| (=) Subtotal: | = | $427,201 | |
| (+) Senior Appraised Value: | + | $0 | |
| (+) Non-Senior Appraised Value: | + | $427,201 | |
| | | -------------------------- | |
| (=) Total Appraised Value: | = | $427,201 | |
| (–) Senior Exemption Loss: | – | $0 | |
| (–) Exemption Loss: | – | $0 | |
| | | -------------------------- | |
| (=) Taxable Value: | = | $427,201 | |
Taxing Jurisdiction
| Owner: | CHESNUT, KAITLIN MARIE | | |
| % Ownership: | 100.0000000000% | | |
| Total Value: | $427,201 | | |
| Tax Area: | 112 - APPRAISER-OH Schl Dist, outside OH, improved, greater than 1 acre |
| CF | Conservation Futures | 0.0316035091 | $427,201 | $427,201 | $13.50 | | |
| CEM1 | Cemetery #1 | 0.0040320932 | $427,201 | $427,201 | $1.72 | | |
| FIRE2 | Fire & Rescue Dist #2 N Whidbey GEN | 0.5475949600 | $427,201 | $427,201 | $233.93 | | |
| HOBOND | Hospital BOND | 0.1910887512 | $427,201 | $427,201 | $81.63 | | |
| HOGEN | Hospital GEN | 0.3902502903 | $427,201 | $427,201 | $166.72 | | |
| CE | County Current Expense | 0.3708482477 | $427,201 | $427,201 | $158.43 | | |
| CR | County Roads | 0.4584763726 | $427,201 | $427,201 | $195.86 | | |
| ISLANDEMS | Hospital GEN (EMS) | 0.5000000000 | $427,201 | $427,201 | $213.60 | | |
| LIB | Library Sno-Isle GEN | 0.3153421757 | $427,201 | $427,201 | $134.71 | | |
| NWHIDPRMT | P & R N Whidbey GEN | 0.2004466701 | $427,201 | $427,201 | $85.63 | | |
| SCH201MO | School 201 Enrichment | 1.8559231640 | $427,201 | $427,201 | $792.85 | | |
| ST | State School | 1.3035497053 | $427,201 | $427,201 | $556.88 | | |
| ST2 | State School Part 2 | 0.8169543533 | $427,201 | $427,201 | $349.00 | | |
| | Total Tax Rate: | 6.9861102925 | | | | | |
| | | | | Taxes w/Current Exemptions: | $2,984.46 | | |
| | | | | Taxes w/o Exemptions: | $2,984.46 | | |
Improvement / Building
| Improvement #1: | MANUFACTURED HOME | State Code: | Y | 1296.0 sqft | Value: | $127,201 |
| Bathrooms: | 1 | Bedrooms: | 2 | | Ceiling: | PLASTER PAINTED | Cooling: | EVAP NO DUCT | | Exterior Wall/Cover: | VINYL | Floor Covering: | CARPET 100% | | Floor Structure: | SLAB ON GRADE | Foundation: | SLAB | | Heating: | FHA ELECTRIC | Interior Finish: | PLASTER | | Roof Slope: | FLAT | Roof Structure/Cover: | CJ ALUMINIUM HEAVY |
|
| | Type | Description | Class CD | Sub Class CD | Year Built | Area |
| | BAS | BASE/MAIN FLOOR | 4 | 0 | 2016 | 1296.0 |
| | OWP | OPEN WOOD PORCH W/STEPS | 4 | 0 | 2016 | 32.0 |
| | OWP | OPEN WOOD PORCH W/STEPS | 4 | 0 | 2016 | 32.0 |
Sketch
Property Image
Land
| 1 | 32 | AC (03.01-09.99) | 4.5900 | 0.00 | 0.00 | 0.00 | 1.00 | $300,000 | $0 |
Roll Value History
| 2026 | N/A | N/A | N/A | N/A | N/A |
| 2025 | $127,201 | $300,000 | $0 | $427,201 | $427,201 |
| 2024 | $128,630 | $280,000 | $0 | $408,630 | $408,630 |
| 2023 | $114,338 | $270,000 | $0 | $384,338 | $384,338 |
| 2022 | $104,670 | $240,000 | $0 | $344,670 | $344,670 |
| 2021 | $95,570 | $160,000 | $0 | $255,570 | $255,570 |
| 2020 | $94,722 | $140,000 | $0 | $234,722 | $234,722 |
| 2019 | $75,445 | $200,000 | $0 | $275,445 | $275,445 |
| 2018 | $76,223 | $170,000 | $0 | $246,223 | $246,223 |
| 2017 | $77,001 | $150,000 | $0 | $227,001 | $227,001 |
| 2016 | $56,554 | $130,000 | $0 | $186,554 | $186,554 |
| 2015 | $0 | $60,000 | $0 | $60,000 | $60,000 |
| 2014 | $0 | $50,000 | $0 | $50,000 | $50,000 |
| 2013 | $0 | $50,000 | $0 | $50,000 | $50,000 |
| 2012 | $4,000 | $90,882 | $0 | $94,882 | $94,882 |
| 2011 | $4,000 | $100,980 | $0 | $104,980 | $104,980 |
| 2010 | $4,000 | $100,980 | $0 | $104,980 | $104,980 |
| 2009 | $4,000 | $133,110 | $0 | $137,110 | $137,110 |
| 2008 | $4,000 | $133,110 | $0 | $137,110 | $137,110 |
| 2007 | $4,000 | $90,882 | $0 | $94,882 | $94,882 |
Deed and Sales History
| 1 | 11/22/2021 | QCD | Quit Claim Deed | RINDAL, KOREY | CHESNUT, KAITLIN MARIE | | | $0.00 | 51059 | 4534483 |
| 2 | 11/03/2021 | WD | Warranty Deed | TETT, CHRISTIAN | CHESNUT, KAITLIN MARIE | | | $375,500.00 | 51058 | 4534482 |
| 3 | 09/27/2018 | WD | Warranty Deed | MEEKINS, SAVANNAH | TETT, CHRISTIAN | | | $315,000.00 | 36091 | 4452530 |
| 4 | 09/22/2016 | WD | Warranty Deed | WESTGATE MOBILE HOMES, INC. | MEEKINS, SAVANNAH | | | $218,005.00 | 26293 | 4408055 |
| 5 | 09/20/2016 | QCD | Quit Claim Deed | PEPLINSKI, TONY | WESTGATE MOBILE HOMES, INC. | | | $0.00 | 26250 | 4407839 |
| 6 | 05/11/2015 | WD | Warranty Deed | NUNN, RICHARD R | PEPLINSKI, TONY | | | $39,500.00 | 19511 | 4378226 |
| 7 | 08/16/2013 | QCD | Quit Claim Deed | WALDEN FAMILY LLC | NUNN, RICHARD R | | | $0.00 | 12870 | 4348447 |
| 8 | 08/16/2013 | QCD | Quit Claim Deed | WALDEN, STEPHEN M | WALDEN FAMILY LLC | | | $0.00 | 12664 | 4347563 |
| 9 | 03/01/1992 | PACD | Purchaser's Assignment | BEERS, LEO R | WALDEN, STEPHEN M | | | $0.00 | 21271 | 92006175 |
| 10 | 01/01/1979 | QCD | Quit Claim Deed | BEERS, LEO R | BEERS, LEO R | | | $0.00 | 21270 | 92006174 |
| 11 | 05/01/1978 | EXECUTORD | Executor Deed | NUNN, RALPH T | BEERS, LEO R | | | $23,500.00 | 82112 | 332562 |
| 12 | 08/01/1975 | CD | DNU - Correction Deed | NUNN, RALPH T | NUNN, RALPH T | | | $0.00 | 56419 | 0 |
| 13 | 05/01/1975 | EXECUTORD | Executor Deed | WALDEN, STEPHEN M | MANGOLD, ROBERT | | | $0.00 | 55077 | 0 |
| 14 | 05/01/1975 | CD | DNU - Correction Deed | MANGOLD, ROBERT | NUNN, RALPH T | | | $0.00 | 55076 | 0 |
Payout Agreement
| No payout information available.. |