Property
Account |
| Property ID: | 104693 | Abbreviated Legal Description: | 84 - IN SW NW: BG NECR SW NW S388.48' TPB S475' W272 .50' N475' E272.50' TPB TGW EZ (TR B SP 77-42 AF#321997) |
| Geographic ID: | R23327-333-1240 | Agent Code: | |
| Type: | Real | | |
| Tax Area: | 112 - APPRAISER-OH Schl Dist, outside OH, improved, greater than 1 acre | Land Use Code | 11 |
| Open Space: | N | DFL | N |
| Historic Property: | N | Remodel Property: | N |
| Multi-Family Redevelopment: | N | | |
| Township: | 33 | Section: | 27 |
| Range: | R2 |
Location |
| Address: | 1275 SILVER LAKE RD OAK HARBOR, WA 98277 | Mapsco: | |
| Neighborhood: | Cycle 6 | Map ID: | 629 |
| Neighborhood CD: | 6 |
Owner |
| Name: | RUSSELL, ERIC ROBERT | Owner ID: | 290685 |
| Mailing Address: | BRIAN SCOTT BRADY 1275 SILVER LAKE RD OAK HARBOR, WA 98277 | % Ownership: | 100.0000000000% |
| | | Exemptions: | |
Taxes and Assessment Details
Values
| (+) Improvement Homesite Value: | + | $0 | |
| (+) Improvement Non-Homesite Value: | + | $224,040 | |
| (+) Land Homesite Value: | + | $0 | |
| (+) Land Non-Homesite Value: | + | $250,000 | |
| (+) Curr Use (HS): | + | $0 | $0 |
| (+) Curr Use (NHS): | + | $0 | $0 |
| | | -------------------------- | |
| (=) Market Value: | = | $474,040 | |
| (–) Productivity Loss: | – | $0 | |
| | | -------------------------- | |
| (=) Subtotal: | = | $474,040 | |
| (+) Senior Appraised Value: | + | $0 | |
| (+) Non-Senior Appraised Value: | + | $474,040 | |
| | | -------------------------- | |
| (=) Total Appraised Value: | = | $474,040 | |
| (–) Senior Exemption Loss: | – | $0 | |
| (–) Exemption Loss: | – | $0 | |
| | | -------------------------- | |
| (=) Taxable Value: | = | $474,040 | |
Taxing Jurisdiction
| Owner: | RUSSELL, ERIC ROBERT | | |
| % Ownership: | 100.0000000000% | | |
| Total Value: | $474,040 | | |
| Tax Area: | 112 - APPRAISER-OH Schl Dist, outside OH, improved, greater than 1 acre |
| CF | Conservation Futures | 0.0316035091 | $474,040 | $474,040 | $14.98 | | |
| CEM1 | Cemetery #1 | 0.0040320932 | $474,040 | $474,040 | $1.91 | | |
| FIRE2 | Fire & Rescue Dist #2 N Whidbey GEN | 0.5475949600 | $474,040 | $474,040 | $259.58 | | |
| HOBOND | Hospital BOND | 0.1910887512 | $474,040 | $474,040 | $90.58 | | |
| HOGEN | Hospital GEN | 0.3902502903 | $474,040 | $474,040 | $184.99 | | |
| CE | County Current Expense | 0.3708482477 | $474,040 | $474,040 | $175.80 | | |
| CR | County Roads | 0.4584763726 | $474,040 | $474,040 | $217.34 | | |
| ISLANDEMS | Hospital GEN (EMS) | 0.5000000000 | $474,040 | $474,040 | $237.02 | | |
| LIB | Library Sno-Isle GEN | 0.3153421757 | $474,040 | $474,040 | $149.48 | | |
| NWHIDPRMT | P & R N Whidbey GEN | 0.2004466701 | $474,040 | $474,040 | $95.02 | | |
| SCH201MO | School 201 Enrichment | 1.8559231640 | $474,040 | $474,040 | $879.78 | | |
| ST | State School | 1.3035497053 | $474,040 | $474,040 | $617.93 | | |
| ST2 | State School Part 2 | 0.8169543533 | $474,040 | $474,040 | $387.27 | | |
| | Total Tax Rate: | 6.9861102925 | | | | | |
| | | | | Taxes w/Current Exemptions: | $3,311.68 | | |
| | | | | Taxes w/o Exemptions: | $3,311.68 | | |
Improvement / Building
| Improvement #1: | RESIDENTIAL | State Code: | Y | 1576.0 sqft | Value: | $224,040 |
| Bathrooms: | 2 | Bedrooms: | 3 | | Ceiling: | DRY WALL SPRAYED | Exterior Wall/Cover: | PLY/HARDBOARD T-111 | | Floor Covering: | HARDWOOD/CARP 20-80 | Floor Structure: | WOOD W/SUBFLOOR | | Foundation: | CONCRETE | Heating: | FHA GAS | | Interior Finish: | DRYWALL PAINT | Plumbing Fixture Cnt: | 9 | | Roof Slope: | 3" IN 12" | Roof Structure/Cover: | CJ ASPHALT |
|
| | Type | Description | Class CD | Sub Class CD | Year Built | Area |
| | BAS | BASE/MAIN FLOOR | 3 | 0 | 1978 | 1336.0 |
| | BGR | BASEMENT GARAGE | 3 | 0 | 1978 | 432.0 |
| | OWP | OPEN WOOD PORCH W/STEPS | 3 | 0 | 1978 | 176.0 |
| | OWP | OPEN WOOD PORCH W/STEPS | 3 | 0 | 1978 | 281.1 |
| | DWN | DOWNSTAIRS LIVING AREA | 3 | 0 | 1978 | 240.0 |
Sketch
Property Image
Land
| 1 | 18 | AC (02.01-03.00) | 0.0000 | 0.00 | 0.00 | 0.00 | 1.00 | $250,000 | $0 |
Roll Value History
| 2026 | N/A | N/A | N/A | N/A | N/A |
| 2025 | $224,040 | $250,000 | $0 | $474,040 | $474,040 |
| 2024 | $227,275 | $230,000 | $0 | $457,275 | $457,275 |
| 2023 | $230,511 | $220,000 | $0 | $450,511 | $450,511 |
| 2022 | $205,124 | $210,000 | $0 | $415,124 | $415,124 |
| 2021 | $180,903 | $160,000 | $0 | $340,903 | $340,903 |
| 2020 | $176,632 | $140,000 | $0 | $316,632 | $316,632 |
| 2019 | $119,836 | $200,000 | $0 | $319,836 | $319,836 |
| 2018 | $120,271 | $170,000 | $0 | $290,271 | $290,271 |
| 2017 | $121,136 | $150,000 | $0 | $271,136 | $271,136 |
| 2016 | $117,002 | $120,000 | $0 | $237,002 | $237,002 |
| 2015 | $118,723 | $90,000 | $0 | $208,723 | $208,723 |
| 2014 | $120,443 | $80,000 | $0 | $200,443 | $200,443 |
| 2013 | $122,165 | $108,000 | $0 | $230,165 | $230,165 |
| 2012 | $123,885 | $108,000 | $0 | $231,885 | $231,885 |
| 2011 | $125,606 | $120,000 | $0 | $245,606 | $245,606 |
| 2010 | $130,881 | $120,000 | $0 | $250,881 | $250,881 |
| 2009 | $136,557 | $155,000 | $0 | $291,557 | $291,557 |
| 2008 | $141,797 | $145,000 | $0 | $286,797 | $286,797 |
| 2007 | $118,303 | $170,240 | $0 | $288,543 | $288,543 |
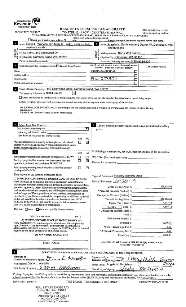
Deed and Sales History
| 1 | 06/26/2019 | WD | Warranty Deed | HONECK, PATRIC C | RUSSELL, ERIC ROBERT | | | $342,000.00 | 39266 | 4466561 |
| 2 | 06/30/2005 | WD | Warranty Deed | CROSSLEY, TROY L | HONECK, PATRIC C | | | $286,000.00 | 53242 | 4139950 |
| 3 | 06/21/2004 | WD | Warranty Deed | MOORE, MARTY A | CROSSLEY, TROY L | | | $235,000.00 | 42872 | 4105194 |
| 4 | 08/07/2001 | WD | Warranty Deed | KALLOCH, JAMES M | MOORE, MARTY A | | | $165,000.00 | 13174 | 20040913 |
| 5 | 03/11/1999 | WD | Warranty Deed | HERRERA, MICHAEL A | KALLOCH, JAMES M | | | $152,500.00 | 91034 | 99007166 |
| 6 | 06/01/1993 | WD | Warranty Deed | MCMILLAN, MARK G | HERRERA, MICHAEL A | | | $130,000.00 | 32322 | 93012004 |
| 7 | 05/01/1991 | WD | Warranty Deed | FEWSTER, TIMOTHY B | MCMILLAN, MARK G | | | $121,900.00 | 11896 | 91008085 |
| 8 | 07/01/1987 | WD | Warranty Deed | GRESHAM, RICHARD B | FEWSTER, TIMOTHY B | | | $86,000.00 | 72047 | 87009291 |
| 9 | 02/01/1982 | WD | Warranty Deed | MOORE, CAROLINE E | GRESHAM, RICHARD B | | | $77,000.00 | 20445 | 393468 |
| 10 | 09/01/1978 | OTHER | Other - Misc. Documents | Unknown | MOORE, CAROLINE E | | | $58,500.00 | 84746 | 340345 |
Payout Agreement
| No payout information available.. |