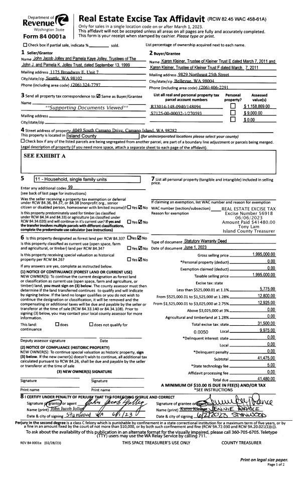
Property
Account |
| Property ID: | 104764 | Abbreviated Legal Description: | 64 - BG SE CR SENE W877.47'N31*E432.14'N9*E325 .79'TPB N15*E230.43' W421.95'N402.77'W367.67'S62 5.69'E730.09'TPB TGW & SUB EZ |
| Geographic ID: | R23327-349-4300 | Agent Code: | |
| Type: | Real | | |
| Tax Area: | 112 - APPRAISER-OH Schl Dist, outside OH, improved, greater than 1 acre | Land Use Code | 11 |
| Open Space: | N | DFL | N |
| Historic Property: | N | Remodel Property: | N |
| Multi-Family Redevelopment: | N | | |
| Township: | 33 | Section: | 27 |
| Range: | R2 |
Location |
| Address: | 3063 AUTUMN LN OAK HARBOR, WA 98277 | Mapsco: | |
| Neighborhood: | Cycle 6 | Map ID: | 630 |
| Neighborhood CD: | 6 |
Owner |
| Name: | COSTECK, RONALD A | Owner ID: | 290856 |
| Mailing Address: | 3063 AUTUMN LN OAK HARBOR, WA 98277 | % Ownership: | 100.0000000000% |
| | | Exemptions: | |
Taxes and Assessment Details
Values
| (+) Improvement Homesite Value: | + | $0 | |
| (+) Improvement Non-Homesite Value: | + | $293,010 | |
| (+) Land Homesite Value: | + | $0 | |
| (+) Land Non-Homesite Value: | + | $300,000 | |
| (+) Curr Use (HS): | + | $0 | $0 |
| (+) Curr Use (NHS): | + | $0 | $0 |
| | | -------------------------- | |
| (=) Market Value: | = | $593,010 | |
| (–) Productivity Loss: | – | $0 | |
| | | -------------------------- | |
| (=) Subtotal: | = | $593,010 | |
| (+) Senior Appraised Value: | + | $0 | |
| (+) Non-Senior Appraised Value: | + | $593,010 | |
| | | -------------------------- | |
| (=) Total Appraised Value: | = | $593,010 | |
| (–) Senior Exemption Loss: | – | $0 | |
| (–) Exemption Loss: | – | $0 | |
| | | -------------------------- | |
| (=) Taxable Value: | = | $593,010 | |
Taxing Jurisdiction
| Owner: | COSTECK, RONALD A | | |
| % Ownership: | 100.0000000000% | | |
| Total Value: | $593,010 | | |
| Tax Area: | 112 - APPRAISER-OH Schl Dist, outside OH, improved, greater than 1 acre |
| CF | Conservation Futures | 0.0316035091 | $593,010 | $593,010 | $18.74 | | |
| CEM1 | Cemetery #1 | 0.0040320932 | $593,010 | $593,010 | $2.39 | | |
| FIRE2 | Fire & Rescue Dist #2 N Whidbey GEN | 0.5475949600 | $593,010 | $593,010 | $324.73 | | |
| HOBOND | Hospital BOND | 0.1910887512 | $593,010 | $593,010 | $113.32 | | |
| HOGEN | Hospital GEN | 0.3902502903 | $593,010 | $593,010 | $231.42 | | |
| CE | County Current Expense | 0.3708482477 | $593,010 | $593,010 | $219.92 | | |
| CR | County Roads | 0.4584763726 | $593,010 | $593,010 | $271.88 | | |
| ISLANDEMS | Hospital GEN (EMS) | 0.5000000000 | $593,010 | $593,010 | $296.51 | | |
| LIB | Library Sno-Isle GEN | 0.3153421757 | $593,010 | $593,010 | $187.00 | | |
| NWHIDPRMT | P & R N Whidbey GEN | 0.2004466701 | $593,010 | $593,010 | $118.87 | | |
| SCH201MO | School 201 Enrichment | 1.8559231640 | $593,010 | $593,010 | $1,100.58 | | |
| ST | State School | 1.3035497053 | $593,010 | $593,010 | $773.02 | | |
| ST2 | State School Part 2 | 0.8169543533 | $593,010 | $593,010 | $484.46 | | |
| | Total Tax Rate: | 6.9861102925 | | | | | |
| | | | | Taxes w/Current Exemptions: | $4,142.84 | | |
| | | | | Taxes w/o Exemptions: | $4,142.84 | | |
Improvement / Building
| Improvement #1: | RESIDENTIAL | State Code: | Y | 1508.0 sqft | Value: | $293,010 |
| Bathrooms: | 2 | Bedrooms: | 2 | | Ceiling: | DRYWALL PAINTED | Cooling: | HEAT PUMP/CONV/V | | Exterior Wall/Cover: | WOOD SIDING | Floor Covering: | CARPET/VINYL 80-20 | | Floor Structure: | WOOD W/SUBFLOOR | Foundation: | CONCRETE | | Interior Finish: | DRYWALL PAINT | Plumbing Fixture Cnt: | 9 | | Roof Slope: | 6" IN 12" | Roof Structure/Cover: | BEAM ASPHALT |
|
| | Type | Description | Class CD | Sub Class CD | Year Built | Area |
| | BAS | BASE/MAIN FLOOR | 3 | 0 | 1979 | 1508.0 |
| | AGR | ATTACHED GARAGE | 3 | 0 | 1979 | 624.0 |
| | UTY | STORAGE/UTILITY | 3 | 0 | 1979 | 192.0 |
| | OWC | OPEN WOOD PORCH W/STEPS/ROOF/C | 3 | 0 | 1979 | 194.0 |
| | DGR | DETACHED GARAGE | 3 | 0 | 1979 | 600.0 |
| | CPD | OPEN CARPORT DIRT FLOOR | 3 | 0 | 1979 | 420.0 |
Sketch
Property Image
Land
| 1 | 32 | AC (03.01-09.99) | 7.3000 | 317988.00 | 0.00 | 0.00 | 1.00 | $300,000 | $0 |
Roll Value History
| 2026 | N/A | N/A | N/A | N/A | N/A |
| 2025 | $293,010 | $300,000 | $0 | $593,010 | $593,010 |
| 2024 | $296,986 | $280,000 | $0 | $576,986 | $576,986 |
| 2023 | $300,963 | $270,000 | $0 | $570,963 | $570,963 |
| 2022 | $239,568 | $240,000 | $0 | $479,568 | $479,568 |
| 2021 | $209,165 | $160,000 | $0 | $369,165 | $369,165 |
| 2020 | $204,486 | $140,000 | $0 | $344,486 | $344,486 |
| 2019 | $149,840 | $200,000 | $0 | $349,840 | $349,840 |
| 2018 | $150,375 | $170,000 | $0 | $320,375 | $320,375 |
| 2017 | $151,444 | $150,000 | $0 | $301,444 | $301,444 |
| 2016 | $148,927 | $150,000 | $0 | $298,927 | $298,927 |
| 2015 | $151,192 | $155,000 | $0 | $306,192 | $306,192 |
| 2014 | $153,457 | $146,000 | $0 | $299,457 | $299,457 |
| 2013 | $160,077 | $124,100 | $0 | $284,177 | $284,177 |
| 2012 | $162,407 | $98,550 | $0 | $260,957 | $260,957 |
| 2011 | $164,736 | $109,500 | $0 | $274,236 | $274,236 |
| 2010 | $164,883 | $109,500 | $0 | $274,383 | $274,383 |
| 2009 | $171,981 | $160,600 | $0 | $332,581 | $332,581 |
| 2008 | $180,876 | $211,700 | $0 | $392,576 | $392,576 |
| 2007 | $183,370 | $219,000 | $0 | $402,370 | $402,370 |
Deed and Sales History
| 1 | 07/08/2019 | WD | Warranty Deed | BOWERS, JAMES B / BERNADEEN K | COSTECK, RONALD A | | | $350,000.00 | 39338 | 4466867 |
Payout Agreement
| No payout information available.. |