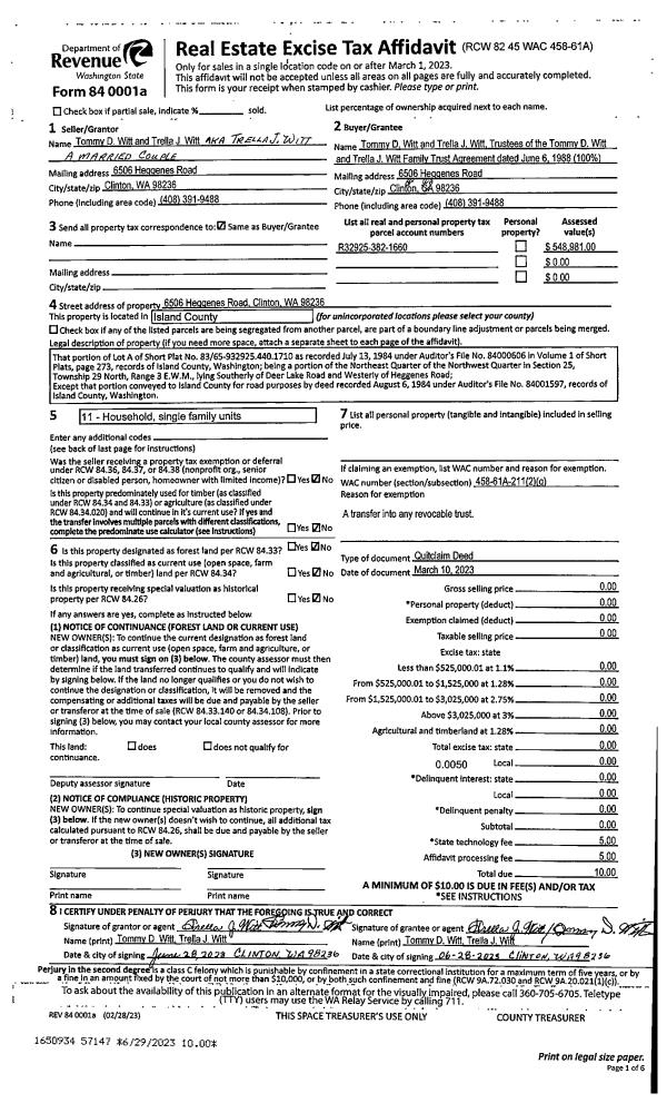
Property
Account |
| Property ID: | 104835 | Abbreviated Legal Description: | 31 - N/2 OF E540'OF W600'OF SWNE N OF CO RD EX BG INT WLN SWNE & NLN CORD E ALG RD 60'TPB N400' E540'S TO CORD WLY ALG RD TPB |
| Geographic ID: | R23327-379-3050 | Agent Code: | |
| Type: | Real | | |
| Tax Area: | 112 - APPRAISER-OH Schl Dist, outside OH, improved, greater than 1 acre | Land Use Code | 11 |
| Open Space: | N | DFL | N |
| Historic Property: | N | Remodel Property: | N |
| Multi-Family Redevelopment: | N | | |
| Township: | 33 | Section: | 27 |
| Range: | R2 |
Location |
| Address: | 3096 ANGELA LN OAK HARBOR, WA 98277 | Mapsco: | |
| Neighborhood: | Cycle 6 | Map ID: | 630 |
| Neighborhood CD: | 6 |
Owner |
| Name: | SCHOONOVER, WILLIAM P | Owner ID: | 27847 |
| Mailing Address: | LILLIAN RUTH SCHOONOVER 3096 ANGELA LN OAK HARBOR, WA 98277-9026 | % Ownership: | 100.0000000000% |
| | | Exemptions: | |
Taxes and Assessment Details
Values
| (+) Improvement Homesite Value: | + | $0 | |
| (+) Improvement Non-Homesite Value: | + | $715,764 | |
| (+) Land Homesite Value: | + | $0 | |
| (+) Land Non-Homesite Value: | + | $340,000 | |
| (+) Curr Use (HS): | + | $0 | $0 |
| (+) Curr Use (NHS): | + | $0 | $0 |
| | | -------------------------- | |
| (=) Market Value: | = | $1,055,764 | |
| (–) Productivity Loss: | – | $0 | |
| | | -------------------------- | |
| (=) Subtotal: | = | $1,055,764 | |
| (+) Senior Appraised Value: | + | $0 | |
| (+) Non-Senior Appraised Value: | + | $1,055,764 | |
| | | -------------------------- | |
| (=) Total Appraised Value: | = | $1,055,764 | |
| (–) Senior Exemption Loss: | – | $0 | |
| (–) Exemption Loss: | – | $0 | |
| | | -------------------------- | |
| (=) Taxable Value: | = | $1,055,764 | |
Taxing Jurisdiction
| Owner: | SCHOONOVER, WILLIAM P | | |
| % Ownership: | 100.0000000000% | | |
| Total Value: | $1,055,764 | | |
| Tax Area: | 112 - APPRAISER-OH Schl Dist, outside OH, improved, greater than 1 acre |
| CF | Conservation Futures | 0.0316035091 | $1,055,764 | $1,055,764 | $33.37 | | |
| CEM1 | Cemetery #1 | 0.0040320932 | $1,055,764 | $1,055,764 | $4.26 | | |
| FIRE2 | Fire & Rescue Dist #2 N Whidbey GEN | 0.5475949600 | $1,055,764 | $1,055,764 | $578.13 | | |
| HOBOND | Hospital BOND | 0.1910887512 | $1,055,764 | $1,055,764 | $201.74 | | |
| HOGEN | Hospital GEN | 0.3902502903 | $1,055,764 | $1,055,764 | $412.01 | | |
| CE | County Current Expense | 0.3708482477 | $1,055,764 | $1,055,764 | $391.53 | | |
| CR | County Roads | 0.4584763726 | $1,055,764 | $1,055,764 | $484.04 | | |
| ISLANDEMS | Hospital GEN (EMS) | 0.5000000000 | $1,055,764 | $1,055,764 | $527.88 | | |
| LIB | Library Sno-Isle GEN | 0.3153421757 | $1,055,764 | $1,055,764 | $332.93 | | |
| NWHIDPRMT | P & R N Whidbey GEN | 0.2004466701 | $1,055,764 | $1,055,764 | $211.62 | | |
| SCH201MO | School 201 Enrichment | 1.8559231640 | $1,055,764 | $1,055,764 | $1,959.42 | | |
| ST | State School | 1.3035497053 | $1,055,764 | $1,055,764 | $1,376.24 | | |
| ST2 | State School Part 2 | 0.8169543533 | $1,055,764 | $1,055,764 | $862.51 | | |
| | Total Tax Rate: | 6.9861102925 | | | | | |
| | | | | Taxes w/Current Exemptions: | $7,375.68 | | |
| | | | | Taxes w/o Exemptions: | $7,375.68 | | |
Improvement / Building
| Improvement #1: | RESIDENTIAL | State Code: | Y | 4053.5 sqft | Value: | $715,764 |
| Bathrooms: | 3 | Bedrooms: | 4 | | Ceiling: | DRYWALL PAINTED | Exterior Wall/Cover: | CEMENT FIBER | | Floor Covering: | HARDWOOD/CARP 60-40 | Floor Structure: | WOOD W/SUBFLOOR | | Foundation: | CONCRETE | Heating: | FHA GAS | | Interior Finish: | DRYWALL PAINT | Plumbing Fixture Cnt: | 14 | | Roof Slope: | 5" IN 12" | Roof Structure/Cover: | CJ ASPHALT |
|
| | Type | Description | Class CD | Sub Class CD | Year Built | Area |
| | BAS | BASE/MAIN FLOOR | 4 | 0 | 2004 | 2210.4 |
| | OP2 | OPEN PORCH W/STEPS | 4 | 0 | 2004 | 32.0 |
| | OP4 | OPEN PORCH W/CEILING-ROOF | 4 | 0 | 2004 | 39.6 |
| | DGR | DETACHED GARAGE | 4 | 0 | 2004 | 997.5 |
| | AGR | ATTACHED GARAGE | 4 | 0 | 2004 | 841.8 |
| | OCP | OPEN CARPORT | 4 | 0 | 2004 | 282.3 |
| | OWP | OPEN WOOD PORCH W/STEPS | 4 | 0 | 2004 | 49.8 |
| | OWC | OPEN WOOD PORCH W/STEPS/ROOF/C | 4 | 0 | 2004 | 281.6 |
| | DWN | DOWNSTAIRS LIVING AREA | 4 | 0 | 2004 | 1843.1 |
| | OP1 | OPEN PORCH SLAB | 4 | 0 | 2004 | 768.0 |
Sketch
Property Image
Land
| 1 | 32 | AC (03.01-09.99) | 4.3500 | 0.00 | 0.00 | 0.00 | 1.00 | $340,000 | $0 |
Roll Value History
| 2026 | N/A | N/A | N/A | N/A | N/A |
| 2025 | $715,764 | $340,000 | $0 | $1,055,764 | $1,055,764 |
| 2024 | $724,358 | $320,000 | $0 | $1,044,358 | $1,044,358 |
| 2023 | $732,957 | $320,000 | $0 | $1,052,957 | $1,052,957 |
| 2022 | $655,542 | $320,000 | $0 | $975,542 | $975,542 |
| 2021 | $576,765 | $220,000 | $0 | $796,765 | $796,765 |
| 2020 | $563,552 | $220,000 | $0 | $783,552 | $783,552 |
| 2019 | $470,115 | $260,000 | $0 | $730,115 | $730,115 |
| 2018 | $471,463 | $225,000 | $0 | $696,463 | $696,463 |
| 2017 | $474,157 | $200,000 | $0 | $674,157 | $674,157 |
| 2016 | $451,134 | $140,000 | $0 | $591,134 | $591,134 |
| 2015 | $456,321 | $150,000 | $0 | $606,321 | $606,321 |
| 2014 | $461,505 | $150,000 | $0 | $611,505 | $611,505 |
| 2013 | $466,692 | $125,280 | $0 | $591,972 | $591,972 |
| 2012 | $471,876 | $125,280 | $0 | $597,156 | $597,156 |
| 2011 | $477,062 | $139,200 | $0 | $616,262 | $616,262 |
| 2010 | $512,523 | $139,200 | $0 | $651,723 | $651,723 |
| 2009 | $534,120 | $178,350 | $0 | $712,470 | $712,470 |
| 2008 | $545,917 | $174,000 | $0 | $719,917 | $719,917 |
| 2007 | $552,307 | $130,500 | $0 | $682,807 | $682,807 |
Deed and Sales History
| 1 | 08/27/2008 | WD | Warranty Deed | LANG, BRADLEY J | SCHOONOVER, WILLIAM P | | | $660,000.00 | 82343 | 4236182 |
| 2 | 05/16/2003 | WD | Warranty Deed | ATWELL, MARION A | LANG, BRADLEY J | | | $84,000.00 | 32183 | 4060060 |
| 3 | 04/01/1983 | REC | Real Estate Contract | RUSSELL, WILLIAM R | ATWELL, MARION A | | | $25,000.00 | 31159 | 409055 |
| 4 | 01/01/1900 | OTHER | Other - Misc. Documents | Unknown | RUSSELL, WILLIAM R | | | $0.00 | 0 | 0 |
Payout Agreement
| No payout information available.. |