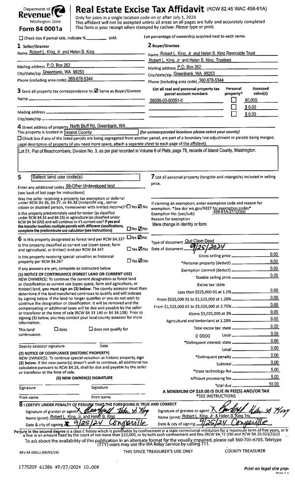
Property
Account |
| Property ID: | 105031 | Abbreviated Legal Description: | 73 - E330' OF S/2 SE SW TGW & SUBJ TO EZ SUB TO EZ AF#60490 AFF#413016 |
| Geographic ID: | R23328-033-2460 | Agent Code: | |
| Type: | Real | | |
| Tax Area: | 112 - APPRAISER-OH Schl Dist, outside OH, improved, greater than 1 acre | Land Use Code | 11 |
| Open Space: | N | DFL | N |
| Historic Property: | N | Remodel Property: | N |
| Multi-Family Redevelopment: | N | | |
| Township: | 33 | Section: | 28 |
| Range: | R2 |
Location |
| Address: | 985 LYNDEAN LN OAK HARBOR, WA 98277 | Mapsco: | |
| Neighborhood: | Cycle 6 | Map ID: | 631 |
| Neighborhood CD: | 6 |
Owner |
| Name: | FREY, DEBRA MAE | Owner ID: | 311372 |
| Mailing Address: | PETER JOHN FREY 985 LYNDEAN LN OAK HARBOR, WA 98277 | % Ownership: | 100.0000000000% |
| | | Exemptions: | |
Taxes and Assessment Details
Values
| (+) Improvement Homesite Value: | + | $0 | |
| (+) Improvement Non-Homesite Value: | + | $353,305 | |
| (+) Land Homesite Value: | + | $0 | |
| (+) Land Non-Homesite Value: | + | $300,000 | |
| (+) Curr Use (HS): | + | $0 | $0 |
| (+) Curr Use (NHS): | + | $0 | $0 |
| | | -------------------------- | |
| (=) Market Value: | = | $653,305 | |
| (–) Productivity Loss: | – | $0 | |
| | | -------------------------- | |
| (=) Subtotal: | = | $653,305 | |
| (+) Senior Appraised Value: | + | $0 | |
| (+) Non-Senior Appraised Value: | + | $653,305 | |
| | | -------------------------- | |
| (=) Total Appraised Value: | = | $653,305 | |
| (–) Senior Exemption Loss: | – | $0 | |
| (–) Exemption Loss: | – | $0 | |
| | | -------------------------- | |
| (=) Taxable Value: | = | $653,305 | |
Taxing Jurisdiction
| Owner: | FREY, DEBRA MAE | | |
| % Ownership: | 100.0000000000% | | |
| Total Value: | $653,305 | | |
| Tax Area: | 112 - APPRAISER-OH Schl Dist, outside OH, improved, greater than 1 acre |
| CF | Conservation Futures | 0.0316035091 | $653,305 | $653,305 | $20.65 | | |
| CEM1 | Cemetery #1 | 0.0040320932 | $653,305 | $653,305 | $2.63 | | |
| FIRE2 | Fire & Rescue Dist #2 N Whidbey GEN | 0.5475949600 | $653,305 | $653,305 | $357.75 | | |
| HOBOND | Hospital BOND | 0.1910887512 | $653,305 | $653,305 | $124.84 | | |
| HOGEN | Hospital GEN | 0.3902502903 | $653,305 | $653,305 | $254.95 | | |
| CE | County Current Expense | 0.3708482477 | $653,305 | $653,305 | $242.28 | | |
| CR | County Roads | 0.4584763726 | $653,305 | $653,305 | $299.52 | | |
| ISLANDEMS | Hospital GEN (EMS) | 0.5000000000 | $653,305 | $653,305 | $326.65 | | |
| LIB | Library Sno-Isle GEN | 0.3153421757 | $653,305 | $653,305 | $206.01 | | |
| NWHIDPRMT | P & R N Whidbey GEN | 0.2004466701 | $653,305 | $653,305 | $130.95 | | |
| SCH201MO | School 201 Enrichment | 1.8559231640 | $653,305 | $653,305 | $1,212.48 | | |
| ST | State School | 1.3035497053 | $653,305 | $653,305 | $851.62 | | |
| ST2 | State School Part 2 | 0.8169543533 | $653,305 | $653,305 | $533.72 | | |
| | Total Tax Rate: | 6.9861102925 | | | | | |
| | | | | Taxes w/Current Exemptions: | $4,564.05 | | |
| | | | | Taxes w/o Exemptions: | $4,564.05 | | |
Improvement / Building
| Improvement #1: | RESIDENTIAL | State Code: | Y | 1966.0 sqft | Value: | $353,305 |
| Bathrooms: | 2.5 | Bedrooms: | 3 | | Ceiling: | DRYWALL PAINTED | Cooling: | HEAT PUMP/CONV/V | | Exterior Wall/Cover: | CEMENT FIBER | Floor Covering: | CARPET/VINYL 80-20 | | Floor Structure: | WOOD W/SUBFLOOR | Foundation: | CONCRETE | | Interior Finish: | DRYWALL PAINT | Plumbing Fixture Cnt: | 14 | | Roof Slope: | 5" IN 12" | Roof Structure/Cover: | CJ ASPHALT |
|
| | Type | Description | Class CD | Sub Class CD | Year Built | Area |
| | BAS | BASE/MAIN FLOOR | 3 | 0 | 2000 | 1966.0 |
| | AGR | ATTACHED GARAGE | 3 | 0 | 2000 | 576.0 |
| | OWC | OPEN WOOD PORCH W/STEPS/ROOF/C | 3 | 0 | 2000 | 122.0 |
| | OWP | OPEN WOOD PORCH W/STEPS | 3 | 0 | 2000 | 35.0 |
Sketch
Property Image
Land
| 1 | 32 | AC (03.01-09.99) | 5.0000 | 0.00 | 0.00 | 0.00 | 1.00 | $300,000 | $0 |
Roll Value History
| 2026 | N/A | N/A | N/A | N/A | N/A |
| 2025 | $353,305 | $300,000 | $0 | $653,305 | $653,305 |
| 2024 | $357,353 | $280,000 | $0 | $637,353 | $637,353 |
| 2023 | $303,253 | $270,000 | $0 | $573,253 | $573,253 |
| 2022 | $254,651 | $240,000 | $0 | $494,651 | $494,651 |
| 2021 | $224,198 | $160,000 | $0 | $384,198 | $384,198 |
| 2020 | $218,474 | $140,000 | $0 | $358,474 | $358,474 |
| 2019 | $160,080 | $200,000 | $0 | $360,080 | $360,080 |
| 2018 | $160,561 | $170,000 | $0 | $330,561 | $330,561 |
| 2017 | $161,521 | $150,000 | $0 | $311,521 | $311,521 |
| 2016 | $159,902 | $140,000 | $0 | $299,902 | $299,902 |
| 2015 | $161,828 | $120,000 | $0 | $281,828 | $281,828 |
| 2014 | $163,757 | $100,000 | $0 | $263,757 | $263,757 |
| 2013 | $165,683 | $108,000 | $0 | $273,683 | $273,683 |
| 2012 | $167,608 | $99,000 | $0 | $266,608 | $266,608 |
| 2011 | $169,536 | $110,000 | $0 | $279,536 | $279,536 |
| 2010 | $168,420 | $110,000 | $0 | $278,420 | $278,420 |
| 2009 | $175,589 | $125,000 | $0 | $300,589 | $300,589 |
| 2008 | $181,424 | $145,000 | $0 | $326,424 | $326,424 |
| 2007 | $181,547 | $110,550 | $0 | $292,097 | $292,097 |
Deed and Sales History
| 1 | 02/01/2024 | WD | Warranty Deed | ACOSTA, VIVIAN TEODORO | FREY, DEBRA MAE | | | $650,000.00 | 59165 | 4569207 |
| 2 | 01/25/2011 | | | CELESTINO, VIVIAN T | ACOSTA, VIVIAN TEODORO | | | | 81960 | |
| 3 | 05/11/2010 | ESTSEPPROP | Establish Separate Property | CELESTINO, BERNARDINO & | CELESTINO, VIVIAN T | | | $0.00 | 1333 | 4274723 |
| 4 | 03/01/1996 | WD | Warranty Deed | CLARK, DAVID A | CELESTINO, BERNARDINO & | | | $37,000.00 | 61051 | 96005416 |
| 5 | 04/01/1991 | WD | Warranty Deed | WAGERS, VICKIE J | CLARK, DAVID A | | | $27,000.00 | 11339 | 91005725 |
| 6 | 07/01/1984 | QCD | Quit Claim Deed | ANDERSON, KELLY F | WAGERS, VICKIE J | | | $1,750.00 | 42007 | 84000540 |
| 7 | 01/01/1900 | OTHER | Other - Misc. Documents | Unknown | ANDERSON, KELLY F | | | $0.00 | 0 | 0 |
Payout Agreement
| No payout information available.. |