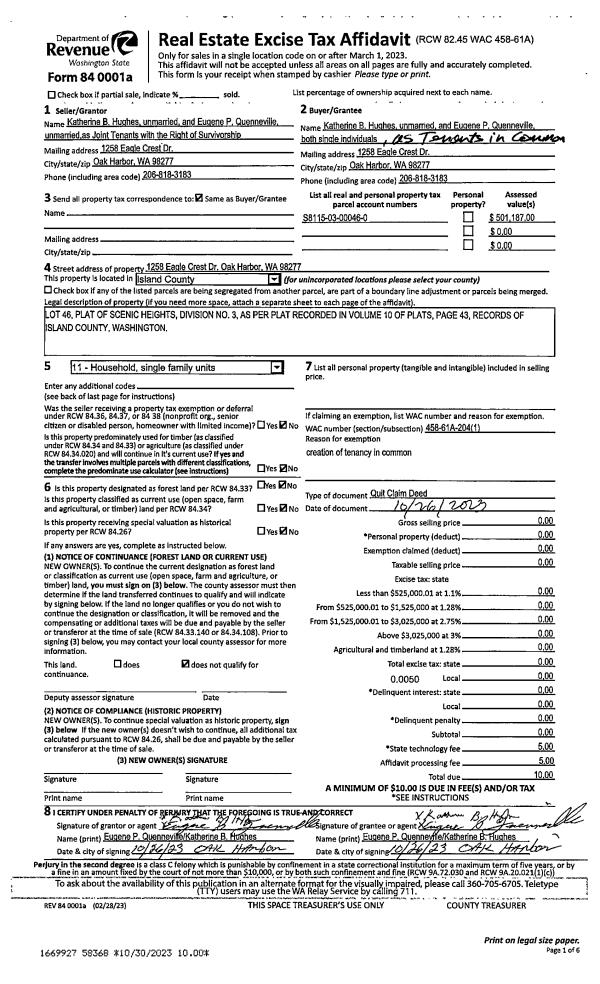
Property
Account |
| Property ID: | 105040 | Abbreviated Legal Description: | 22 - W330' OF S/2 SW SE TGW SUB EZ TGW & SUB EZ A#6490 AF#413016 |
| Geographic ID: | R23328-033-2800 | Agent Code: | |
| Type: | Real | | |
| Tax Area: | 112 - APPRAISER-OH Schl Dist, outside OH, improved, greater than 1 acre | Land Use Code | 11 |
| Open Space: | N | DFL | N |
| Historic Property: | N | Remodel Property: | N |
| Multi-Family Redevelopment: | N | | |
| Township: | 33 | Section: | 28 |
| Range: | R2 |
Location |
| Address: | 1000 LYNDEAN LN OAK HARBOR, WA 98277 | Mapsco: | |
| Neighborhood: | Cycle 6 | Map ID: | 632 |
| Neighborhood CD: | 6 |
Owner |
| Name: | FORD, JAMES CAMPBELL | Owner ID: | 263402 |
| Mailing Address: | BRITTANY CHANTELLE HARRISON 1000 LYNDEAN LN OAK HARBOR, WA 98277 | % Ownership: | 100.0000000000% |
| | | Exemptions: | |
Taxes and Assessment Details
Values
| (+) Improvement Homesite Value: | + | $0 | |
| (+) Improvement Non-Homesite Value: | + | $190,334 | |
| (+) Land Homesite Value: | + | $0 | |
| (+) Land Non-Homesite Value: | + | $300,000 | |
| (+) Curr Use (HS): | + | $0 | $0 |
| (+) Curr Use (NHS): | + | $0 | $0 |
| | | -------------------------- | |
| (=) Market Value: | = | $490,334 | |
| (–) Productivity Loss: | – | $0 | |
| | | -------------------------- | |
| (=) Subtotal: | = | $490,334 | |
| (+) Senior Appraised Value: | + | $0 | |
| (+) Non-Senior Appraised Value: | + | $490,334 | |
| | | -------------------------- | |
| (=) Total Appraised Value: | = | $490,334 | |
| (–) Senior Exemption Loss: | – | $0 | |
| (–) Exemption Loss: | – | $0 | |
| | | -------------------------- | |
| (=) Taxable Value: | = | $490,334 | |
Taxing Jurisdiction
| Owner: | FORD, JAMES CAMPBELL | | |
| % Ownership: | 100.0000000000% | | |
| Total Value: | $490,334 | | |
| Tax Area: | 112 - APPRAISER-OH Schl Dist, outside OH, improved, greater than 1 acre |
| CF | Conservation Futures | 0.0316035091 | $490,334 | $490,334 | $15.50 | | |
| CEM1 | Cemetery #1 | 0.0040320932 | $490,334 | $490,334 | $1.98 | | |
| FIRE2 | Fire & Rescue Dist #2 N Whidbey GEN | 0.5475949600 | $490,334 | $490,334 | $268.50 | | |
| HOBOND | Hospital BOND | 0.1910887512 | $490,334 | $490,334 | $93.70 | | |
| HOGEN | Hospital GEN | 0.3902502903 | $490,334 | $490,334 | $191.35 | | |
| CE | County Current Expense | 0.3708482477 | $490,334 | $490,334 | $181.84 | | |
| CR | County Roads | 0.4584763726 | $490,334 | $490,334 | $224.81 | | |
| ISLANDEMS | Hospital GEN (EMS) | 0.5000000000 | $490,334 | $490,334 | $245.17 | | |
| LIB | Library Sno-Isle GEN | 0.3153421757 | $490,334 | $490,334 | $154.62 | | |
| NWHIDPRMT | P & R N Whidbey GEN | 0.2004466701 | $490,334 | $490,334 | $98.29 | | |
| SCH201MO | School 201 Enrichment | 1.8559231640 | $490,334 | $490,334 | $910.02 | | |
| ST | State School | 1.3035497053 | $490,334 | $490,334 | $639.17 | | |
| ST2 | State School Part 2 | 0.8169543533 | $490,334 | $490,334 | $400.58 | | |
| | Total Tax Rate: | 6.9861102925 | | | | | |
| | | | | Taxes w/Current Exemptions: | $3,425.53 | | |
| | | | | Taxes w/o Exemptions: | $3,425.53 | | |
Improvement / Building
| Improvement #1: | MANUFACTURED HOME | State Code: | Y | 1831.0 sqft | Value: | $190,334 |
| Bathrooms: | 2 | Bedrooms: | 3 | | Ceiling: | PLASTER PAINTED | Cooling: | EVAP NO DUCT | | Exterior Wall/Cover: | VINYL | Floor Covering: | CARPET 100% | | Floor Structure: | SLAB ON GRADE | Foundation: | SLAB | | Heating: | FHA ELECTRIC | Interior Finish: | PLASTER | | Plumbing Fixture Cnt: | 1 | Roof Slope: | FLAT | | Roof Structure/Cover: | CJ ALUMINIUM HEAVY |   |   |
|
| | Type | Description | Class CD | Sub Class CD | Year Built | Area |
| | BAS | BASE/MAIN FLOOR | 5 | 0 | 2002 | 1831.0 |
| | OWP | OPEN WOOD PORCH W/STEPS | 5 | 0 | 2002 | 162.0 |
| | OWC | OPEN WOOD PORCH W/STEPS/ROOF/C | 5 | 0 | 2002 | 216.0 |
| | OWC | OPEN WOOD PORCH W/STEPS/ROOF/C | 5 | 0 | 2002 | 36.0 |
| | DGR | DETACHED GARAGE | 5 | 0 | 2002 | 952.0 |
| | OP1 | OPEN PORCH SLAB | 5 | 0 | 2002 | 257.0 |
Sketch
Property Image
Land
| 1 | 32 | AC (03.01-09.99) | 5.0000 | 0.00 | 0.00 | 0.00 | 1.00 | $300,000 | $0 |
Roll Value History
| 2026 | N/A | N/A | N/A | N/A | N/A |
| 2025 | $190,334 | $300,000 | $0 | $490,334 | $490,334 |
| 2024 | $194,773 | $280,000 | $0 | $474,773 | $474,773 |
| 2023 | $176,330 | $270,000 | $0 | $446,330 | $446,330 |
| 2022 | $148,547 | $240,000 | $0 | $388,547 | $388,547 |
| 2021 | $135,098 | $160,000 | $0 | $295,098 | $295,098 |
| 2020 | $134,592 | $140,000 | $0 | $274,592 | $274,592 |
| 2019 | $113,230 | $200,000 | $0 | $313,230 | $313,230 |
| 2018 | $115,387 | $170,000 | $0 | $285,387 | $285,387 |
| 2017 | $116,464 | $150,000 | $0 | $266,464 | $266,464 |
| 2016 | $151,026 | $140,000 | $0 | $291,026 | $291,026 |
| 2015 | $153,261 | $120,000 | $0 | $273,261 | $273,261 |
| 2014 | $155,496 | $100,000 | $0 | $255,496 | $255,496 |
| 2013 | $156,613 | $108,000 | $0 | $264,613 | $264,613 |
| 2012 | $157,731 | $93,500 | $0 | $251,231 | $251,231 |
| 2011 | $159,966 | $110,000 | $0 | $269,966 | $269,966 |
| 2010 | $183,738 | $110,000 | $0 | $293,738 | $293,738 |
| 2009 | $206,621 | $125,000 | $0 | $331,621 | $331,621 |
| 2008 | $209,154 | $145,000 | $0 | $354,154 | $354,154 |
| 2007 | $211,698 | $104,688 | $0 | $316,386 | $316,386 |
Deed and Sales History
| 1 | 08/08/2013 | WD | Warranty Deed | WALL, ROBERT C | FORD, JAMES CAMPBELL | | | $265,000.00 | 12403 | 4346350 |
| 2 | 03/01/2001 | WD | Warranty Deed | HAMILTON, DEAN E | WALL, ROBERT C | | | $47,500.00 | 10710 | 20026708 |
| 3 | 10/01/1995 | WD | Warranty Deed | NEEDHAM, DON O | HAMILTON, DEAN E | | | $30,000.00 | 53957 | 95018176 |
| 4 | 10/01/1995 | WD | Warranty Deed | TORGERSON, LINCOLN E | NEEDHAM, DON O | | | $30,000.00 | 53958 | 95018177 |
| 5 | 09/01/1995 | QCD | Quit Claim Deed | TORGERSON, LINCOLN E | TORGERSON, LINCOLN E | | | $0.00 | 54086 | 95018753 |
| 6 | 07/01/1992 | QCD | Quit Claim Deed | BLACKBURN, JAMES C | TORGERSON, LINCOLN E | | | $250.00 | 32417 | 93012466 |
| 7 | 12/01/1991 | WD | Warranty Deed | ZYSKI, DOROTHY & | BLACKBURN, JAMES C | | | $28,000.00 | 20095 | 92000341 |
| 8 | 12/01/1988 | OTHER | Other - Misc. Documents | ZYSKI, RICHARD & | ZYSKI, DOROTHY & | | | $0.00 | 62985 | 88013051 |
| 9 | 08/01/1978 | OTHER | Other - Misc. Documents | Unknown | ZYSKI, RICHARD & | | | $10,000.00 | 83881 | 337951 |
Payout Agreement
| No payout information available.. |