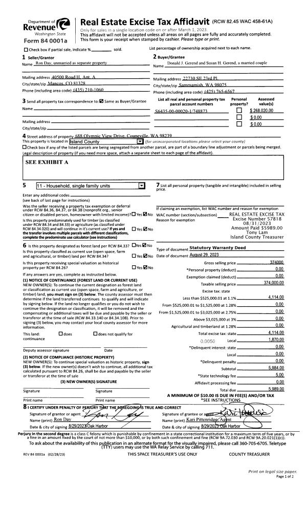
Property
Account |
| Property ID: | 105291 | Abbreviated Legal Description: | 48 - W/2 NESW LY SLY OF SILVER LAKE RD EX FOLL DESC TRS: BG NWCR NESW E400'S626 W TO WLN SD SUB N TPB, BG NWCR NESW E530 TPB S626' E TO ELN W/2 NESW N626'W TPB, S350'OF W330'OF W/2 NESW TGW EZ, BG NWCR NESW E400' TPB S626' W75' SLY 335' E TO ELN W/2 NESW |
| Geographic ID: | R23328-167-1630 | Agent Code: | |
| Type: | Real | | |
| Tax Area: | 112 - APPRAISER-OH Schl Dist, outside OH, improved, greater than 1 acre | Land Use Code | 11 |
| Open Space: | N | DFL | N |
| Historic Property: | N | Remodel Property: | N |
| Multi-Family Redevelopment: | N | | |
| Township: | 33 | Section: | 28 |
| Range: | R2 |
Location |
| Address: | 2919 N BACK WOODS WAY OAK HARBOR, WA 98277 | Mapsco: | |
| Neighborhood: | Cycle 6 | Map ID: | 631 |
| Neighborhood CD: | 6 |
Owner |
| Name: | HARRISON, JOHN S / PATRICIA L | Owner ID: | 73948 |
| Mailing Address: | 2919 BACK WOODS WAY OAK HARBOR, WA 98277 | % Ownership: | 100.0000000000% |
| | | Exemptions: | |
Taxes and Assessment Details
Values
| (+) Improvement Homesite Value: | + | $0 | |
| (+) Improvement Non-Homesite Value: | + | $592,902 | |
| (+) Land Homesite Value: | + | $0 | |
| (+) Land Non-Homesite Value: | + | $300,000 | |
| (+) Curr Use (HS): | + | $0 | $0 |
| (+) Curr Use (NHS): | + | $0 | $0 |
| | | -------------------------- | |
| (=) Market Value: | = | $892,902 | |
| (–) Productivity Loss: | – | $0 | |
| | | -------------------------- | |
| (=) Subtotal: | = | $892,902 | |
| (+) Senior Appraised Value: | + | $0 | |
| (+) Non-Senior Appraised Value: | + | $892,902 | |
| | | -------------------------- | |
| (=) Total Appraised Value: | = | $892,902 | |
| (–) Senior Exemption Loss: | – | $0 | |
| (–) Exemption Loss: | – | $0 | |
| | | -------------------------- | |
| (=) Taxable Value: | = | $892,902 | |
Taxing Jurisdiction
| Owner: | HARRISON, JOHN S / PATRICIA L | | |
| % Ownership: | 100.0000000000% | | |
| Total Value: | $892,902 | | |
| Tax Area: | 112 - APPRAISER-OH Schl Dist, outside OH, improved, greater than 1 acre |
| CF | Conservation Futures | 0.0316035091 | $892,902 | $892,902 | $28.22 | | |
| CEM1 | Cemetery #1 | 0.0040320932 | $892,902 | $892,902 | $3.60 | | |
| FIRE2 | Fire & Rescue Dist #2 N Whidbey GEN | 0.5475949600 | $892,902 | $892,902 | $488.95 | | |
| HOBOND | Hospital BOND | 0.1910887512 | $892,902 | $892,902 | $170.62 | | |
| HOGEN | Hospital GEN | 0.3902502903 | $892,902 | $892,902 | $348.46 | | |
| CE | County Current Expense | 0.3708482477 | $892,902 | $892,902 | $331.13 | | |
| CR | County Roads | 0.4584763726 | $892,902 | $892,902 | $409.37 | | |
| ISLANDEMS | Hospital GEN (EMS) | 0.5000000000 | $892,902 | $892,902 | $446.45 | | |
| LIB | Library Sno-Isle GEN | 0.3153421757 | $892,902 | $892,902 | $281.57 | | |
| NWHIDPRMT | P & R N Whidbey GEN | 0.2004466701 | $892,902 | $892,902 | $178.98 | | |
| SCH201MO | School 201 Enrichment | 1.8559231640 | $892,902 | $892,902 | $1,657.16 | | |
| ST | State School | 1.3035497053 | $892,902 | $892,902 | $1,163.94 | | |
| ST2 | State School Part 2 | 0.8169543533 | $892,902 | $892,902 | $729.46 | | |
| | Total Tax Rate: | 6.9861102925 | | | | | |
| | | | | Taxes w/Current Exemptions: | $6,237.91 | | |
| | | | | Taxes w/o Exemptions: | $6,237.91 | | |
Improvement / Building
| Improvement #1: | RESIDENTIAL | State Code: | Y | 3286.5 sqft | Value: | $592,902 |
| Bathrooms: | 3 | Bedrooms: | 3 | | Ceiling: | DRYWALL PAINTED | Exterior Wall/Cover: | CEMENT FIBER | | Floor Covering: | HARDWOOD/CARP 20-80 | Floor Structure: | WOOD W/SUBFLOOR | | Foundation: | CONCRETE | Heating: | FHA GAS | | Interior Finish: | DRYWALL PAINT | Plumbing Fixture Cnt: | 14 | | Roof Slope: | 8" IN 12" | Roof Structure/Cover: | CJ ASPHALT |
|
| | Type | Description | Class CD | Sub Class CD | Year Built | Area |
| | BAS | BASE/MAIN FLOOR | 4 | 0 | 1998 | 2380.7 |
| | OP1 | OPEN PORCH SLAB | 4 | 0 | 1998 | 104.0 |
| | OP4 | OPEN PORCH W/CEILING-ROOF | 4 | 0 | 1998 | 79.0 |
| | OP4 | OPEN PORCH W/CEILING-ROOF | 4 | 0 | 1998 | 60.0 |
| | AGR | ATTACHED GARAGE | 4 | 0 | 1998 | 1110.8 |
| | UPS | UPPER STORY | 4 | 0 | 1998 | 905.8 |
| | OP1 | OPEN PORCH SLAB | 4 | 0 | 1998 | 1034.0 |
Sketch
Property Image
Land
| 1 | 32 | AC (03.01-09.99) | 5.3100 | 0.00 | 0.00 | 0.00 | 1.00 | $300,000 | $0 |
Roll Value History
| 2026 | N/A | N/A | N/A | N/A | N/A |
| 2025 | $592,902 | $300,000 | $0 | $892,902 | $892,902 |
| 2024 | $600,201 | $280,000 | $0 | $880,201 | $880,201 |
| 2023 | $607,498 | $270,000 | $0 | $877,498 | $877,498 |
| 2022 | $536,895 | $240,000 | $0 | $776,895 | $776,895 |
| 2021 | $472,550 | $160,000 | $0 | $632,550 | $632,550 |
| 2020 | $461,326 | $140,000 | $0 | $601,326 | $601,326 |
| 2019 | $368,427 | $200,000 | $0 | $568,427 | $568,427 |
| 2018 | $369,519 | $170,000 | $0 | $539,519 | $539,519 |
| 2017 | $371,729 | $150,000 | $0 | $521,729 | $521,729 |
| 2016 | $374,521 | $140,000 | $0 | $514,521 | $514,521 |
| 2015 | $379,143 | $120,000 | $0 | $499,143 | $499,143 |
| 2014 | $383,767 | $100,000 | $0 | $483,767 | $483,767 |
| 2013 | $388,391 | $108,000 | $0 | $496,391 | $496,391 |
| 2012 | $393,014 | $105,138 | $0 | $498,152 | $498,152 |
| 2011 | $397,639 | $116,820 | $0 | $514,459 | $514,459 |
| 2010 | $422,263 | $116,820 | $0 | $539,083 | $539,083 |
| 2009 | $440,722 | $132,750 | $0 | $573,472 | $573,472 |
| 2008 | $446,536 | $153,990 | $0 | $600,526 | $600,526 |
| 2007 | $452,339 | $117,404 | $0 | $569,743 | $569,743 |
Deed and Sales History
| 1 | 01/01/1992 | WD | Warranty Deed | VANDERSTOEP, EDWARD L | HARRISON, JOHN S | | | $18,000.00 | 20031 | 92000111 |
| 2 | 03/01/1976 | EXECUTORD | Executor Deed | WALKER, JASPER J | VANDERSTOEP, EDWARD L | | | $6,900.00 | 60976 | 0 |
| 3 | 01/01/1900 | OTHER | Other - Misc. Documents | Unknown | WALKER, JASPER J | | | $0.00 | 0 | 0 |
Payout Agreement
| No payout information available.. |