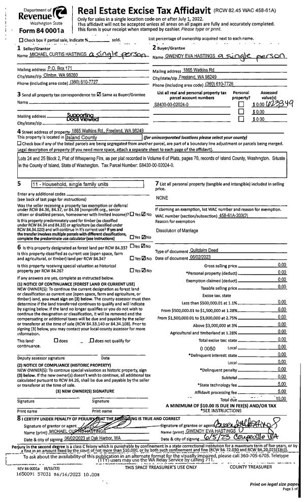
Property
Account |
| Property ID: | 105371 | Abbreviated Legal Description: | 89 - E217' MEAS PAR & PERP TO ELN OF:N/2 NW SE LY SLY OF RD SUB EZ TR A SP 78-23 |
| Geographic ID: | R23328-223-3830 | Agent Code: | |
| Type: | Real | | |
| Tax Area: | 112 - APPRAISER-OH Schl Dist, outside OH, improved, greater than 1 acre | Land Use Code | 11 |
| Open Space: | N | DFL | N |
| Historic Property: | N | Remodel Property: | N |
| Multi-Family Redevelopment: | N | | |
| Township: | 33 | Section: | 28 |
| Range: | R2 |
Location |
| Address: | 1090 SILVER LAKE RD OAK HARBOR, WA 98277 | Mapsco: | |
| Neighborhood: | Cycle 6 | Map ID: | 632 |
| Neighborhood CD: | 6 |
Owner |
| Name: | BEATTY, JAMES A | Owner ID: | 266153 |
| Mailing Address: | DANA M BEATTY 624 SILVER GROVE ST LAS VEGAS, NV 89144 | % Ownership: | 100.0000000000% |
| | | Exemptions: | |
Taxes and Assessment Details
Values
| (+) Improvement Homesite Value: | + | $0 | |
| (+) Improvement Non-Homesite Value: | + | $276,350 | |
| (+) Land Homesite Value: | + | $0 | |
| (+) Land Non-Homesite Value: | + | $250,000 | |
| (+) Curr Use (HS): | + | $0 | $0 |
| (+) Curr Use (NHS): | + | $0 | $0 |
| | | -------------------------- | |
| (=) Market Value: | = | $526,350 | |
| (–) Productivity Loss: | – | $0 | |
| | | -------------------------- | |
| (=) Subtotal: | = | $526,350 | |
| (+) Senior Appraised Value: | + | $0 | |
| (+) Non-Senior Appraised Value: | + | $526,350 | |
| | | -------------------------- | |
| (=) Total Appraised Value: | = | $526,350 | |
| (–) Senior Exemption Loss: | – | $0 | |
| (–) Exemption Loss: | – | $0 | |
| | | -------------------------- | |
| (=) Taxable Value: | = | $526,350 | |
Taxing Jurisdiction
| Owner: | BEATTY, JAMES A | | |
| % Ownership: | 100.0000000000% | | |
| Total Value: | $526,350 | | |
| Tax Area: | 112 - APPRAISER-OH Schl Dist, outside OH, improved, greater than 1 acre |
| CF | Conservation Futures | 0.0316035091 | $526,350 | $526,350 | $16.63 | | |
| CEM1 | Cemetery #1 | 0.0040320932 | $526,350 | $526,350 | $2.12 | | |
| FIRE2 | Fire & Rescue Dist #2 N Whidbey GEN | 0.5475949600 | $526,350 | $526,350 | $288.23 | | |
| HOBOND | Hospital BOND | 0.1910887512 | $526,350 | $526,350 | $100.58 | | |
| HOGEN | Hospital GEN | 0.3902502903 | $526,350 | $526,350 | $205.41 | | |
| CE | County Current Expense | 0.3708482477 | $526,350 | $526,350 | $195.20 | | |
| CR | County Roads | 0.4584763726 | $526,350 | $526,350 | $241.32 | | |
| ISLANDEMS | Hospital GEN (EMS) | 0.5000000000 | $526,350 | $526,350 | $263.18 | | |
| LIB | Library Sno-Isle GEN | 0.3153421757 | $526,350 | $526,350 | $165.98 | | |
| NWHIDPRMT | P & R N Whidbey GEN | 0.2004466701 | $526,350 | $526,350 | $105.51 | | |
| SCH201MO | School 201 Enrichment | 1.8559231640 | $526,350 | $526,350 | $976.87 | | |
| ST | State School | 1.3035497053 | $526,350 | $526,350 | $686.12 | | |
| ST2 | State School Part 2 | 0.8169543533 | $526,350 | $526,350 | $430.00 | | |
| | Total Tax Rate: | 6.9861102925 | | | | | |
| | | | | Taxes w/Current Exemptions: | $3,677.15 | | |
| | | | | Taxes w/o Exemptions: | $3,677.15 | | |
Improvement / Building
| Improvement #1: | RESIDENTIAL | State Code: | Y | 1564.0 sqft | Value: | $276,350 |
| Bathrooms: | 2 | Bedrooms: | 3 | | Ceiling: | DRY WALL SPRAYED | Cooling: | HEAT PUMP/CONV/V | | Exterior Wall/Cover: | PLY/HARDBOARD T-111 | Floor Covering: | CARPET/VINYL 80-20 | | Floor Structure: | WOOD W/SUBFLOOR | Foundation: | CONCRETE | | Interior Finish: | DRYWALL PAINT | Plumbing Fixture Cnt: | 9 | | Roof Slope: | 4" IN 12" | Roof Structure/Cover: | CJ ASPHALT |
|
| | Type | Description | Class CD | Sub Class CD | Year Built | Area |
| | BAS | BASE/MAIN FLOOR | 3 | 0 | 1980 | 1564.0 |
| | AGR | ATTACHED GARAGE | 3 | 0 | 1980 | 440.0 |
| | OWP | OPEN WOOD PORCH W/STEPS | 3 | 0 | 1980 | 655.0 |
| | OWC | OPEN WOOD PORCH W/STEPS/ROOF/C | 3 | 0 | 1980 | 77.0 |
| | UTY | STORAGE/UTILITY | 3 | 0 | 1980 | 0.0 |
| | OP4 | OPEN PORCH W/CEILING-ROOF | 3 | 0 | 1980 | 144.0 |
Sketch
Property Image
Land
| 1 | 18 | AC (02.01-03.00) | 2.2900 | 99752.40 | 0.00 | 0.00 | 1.00 | $250,000 | $0 |
Roll Value History
| 2026 | N/A | N/A | N/A | N/A | N/A |
| 2025 | $276,350 | $250,000 | $0 | $526,350 | $526,350 |
| 2024 | $279,833 | $230,000 | $0 | $509,833 | $509,833 |
| 2023 | $283,316 | $220,000 | $0 | $503,316 | $503,316 |
| 2022 | $246,863 | $210,000 | $0 | $456,863 | $456,863 |
| 2021 | $218,760 | $160,000 | $0 | $378,760 | $378,760 |
| 2020 | $213,636 | $140,000 | $0 | $353,636 | $353,636 |
| 2019 | $158,949 | $200,000 | $0 | $358,949 | $358,949 |
| 2018 | $159,416 | $170,000 | $0 | $329,416 | $329,416 |
| 2017 | $160,351 | $150,000 | $0 | $310,351 | $310,351 |
| 2016 | $166,481 | $120,000 | $0 | $286,481 | $286,481 |
| 2015 | $168,350 | $100,000 | $0 | $268,350 | $268,350 |
| 2014 | $150,383 | $100,000 | $0 | $250,383 | $250,383 |
| 2013 | $152,229 | $90,000 | $0 | $242,229 | $242,229 |
| 2012 | $154,073 | $106,250 | $0 | $260,323 | $260,323 |
| 2011 | $155,920 | $125,000 | $0 | $280,920 | $280,920 |
| 2010 | $157,569 | $125,000 | $0 | $282,569 | $282,569 |
| 2009 | $164,064 | $135,000 | $0 | $299,064 | $299,064 |
| 2008 | $172,419 | $155,000 | $0 | $327,419 | $327,419 |
| 2007 | $175,325 | $99,825 | $0 | $275,150 | $275,150 |
Deed and Sales History
| 1 | 05/20/2014 | WD | Warranty Deed | MOORE, JOHN W | BEATTY, JAMES A | | | $275,000.00 | 15427 | 4360001 |
| 2 | 11/28/2011 | | | MOORE, JOHN W | MOORE, JOHN W | | | | 82228 | 4304814 |
| 3 | 01/01/1985 | QCD | Quit Claim Deed | MOORE, JOHN W | MOORE, JOHN W | | | $0.00 | 50075 | 85000306 |
| 4 | 08/01/1981 | TRUSTEED | Trustee's Deed | DURANCEAU, JAMES | MOORE, JOHN W | | | $72,500.00 | 12738 | 387450 |
| 5 | 12/01/1979 | EXECUTORD | Executor Deed | DURANCEAU, JAMES | DURANCEAU, JAMES | | | $74,900.00 | 96079 | 363602 |
| 6 | 12/01/1979 | EXECUTORD | Executor Deed | GARRON, DALE G | DURANCEAU, JAMES | | | $74,900.00 | 13 | 363602 |
| 7 | 08/01/1979 | CD | DNU - Correction Deed | GARRON, DALE G | GARRON, DALE G | | | $0.00 | 93913 | 357007 |
| 8 | 05/01/1979 | CD | DNU - Correction Deed | GARRON, DALE G | GARRON, DALE G | | | $0.00 | 926090 | 3532470 |
| 9 | 10/01/1978 | OTHER | Other - Misc. Documents | Unknown | GARRON, DALE G | | | $11,500.00 | 853850 | 3422940 |
Payout Agreement
| No payout information available.. |