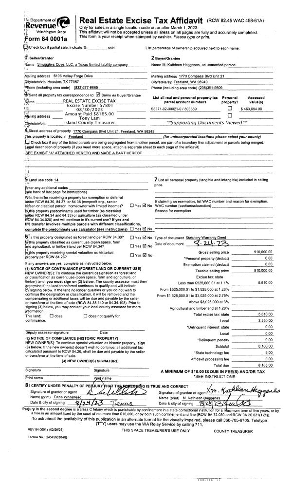
Property
Account |
| Property ID: | 105638 | Abbreviated Legal Description: | 5.0330 Acres ins Section 28s Township 33s Range R2s Parcel A BLA 4442136, BLA 384/24;s |
| Geographic ID: | R23328-357-1710 | Agent Code: | |
| Type: | Real | | |
| Tax Area: | 112 - APPRAISER-OH Schl Dist, outside OH, improved, greater than 1 acre | Land Use Code | 11 |
| Open Space: | N | DFL | N |
| Historic Property: | N | Remodel Property: | N |
| Multi-Family Redevelopment: | N | | |
| Township: | 33 | Section: | 28 |
| Range: | R2 |
Location |
| Address: | 650 DEVRIES RD OAK HARBOR, WA 98277 | Mapsco: | |
| Neighborhood: | Cycle 6 | Map ID: | 633 |
| Neighborhood CD: | 6 |
Owner |
| Name: | SIMMONS JTWROS, GEOFF | Owner ID: | 317015 |
| Mailing Address: | TRISTAN SIMMONS JTWORS 650 DEVRIED RD OAK HARBOR, WA 98277 | % Ownership: | 100.0000000000% |
| | | Exemptions: | |
Taxes and Assessment Details
Values
| (+) Improvement Homesite Value: | + | $0 | |
| (+) Improvement Non-Homesite Value: | + | $254,531 | |
| (+) Land Homesite Value: | + | $0 | |
| (+) Land Non-Homesite Value: | + | $300,000 | |
| (+) Curr Use (HS): | + | $0 | $0 |
| (+) Curr Use (NHS): | + | $0 | $0 |
| | | -------------------------- | |
| (=) Market Value: | = | $554,531 | |
| (–) Productivity Loss: | – | $0 | |
| | | -------------------------- | |
| (=) Subtotal: | = | $554,531 | |
| (+) Senior Appraised Value: | + | $0 | |
| (+) Non-Senior Appraised Value: | + | $554,531 | |
| | | -------------------------- | |
| (=) Total Appraised Value: | = | $554,531 | |
| (–) Senior Exemption Loss: | – | $0 | |
| (–) Exemption Loss: | – | $0 | |
| | | -------------------------- | |
| (=) Taxable Value: | = | $554,531 | |
Taxing Jurisdiction
| Owner: | SIMMONS JTWROS, GEOFF | | |
| % Ownership: | 100.0000000000% | | |
| Total Value: | $554,531 | | |
| Tax Area: | 112 - APPRAISER-OH Schl Dist, outside OH, improved, greater than 1 acre |
| CF | Conservation Futures | 0.0316035091 | $554,531 | $554,531 | $17.53 | | |
| CEM1 | Cemetery #1 | 0.0040320932 | $554,531 | $554,531 | $2.24 | | |
| FIRE2 | Fire & Rescue Dist #2 N Whidbey GEN | 0.5475949600 | $554,531 | $554,531 | $303.66 | | |
| HOBOND | Hospital BOND | 0.1910887512 | $554,531 | $554,531 | $105.96 | | |
| HOGEN | Hospital GEN | 0.3902502903 | $554,531 | $554,531 | $216.41 | | |
| CE | County Current Expense | 0.3708482477 | $554,531 | $554,531 | $205.65 | | |
| CR | County Roads | 0.4584763726 | $554,531 | $554,531 | $254.24 | | |
| ISLANDEMS | Hospital GEN (EMS) | 0.5000000000 | $554,531 | $554,531 | $277.27 | | |
| LIB | Library Sno-Isle GEN | 0.3153421757 | $554,531 | $554,531 | $174.87 | | |
| NWHIDPRMT | P & R N Whidbey GEN | 0.2004466701 | $554,531 | $554,531 | $111.15 | | |
| SCH201MO | School 201 Enrichment | 1.8559231640 | $554,531 | $554,531 | $1,029.17 | | |
| ST | State School | 1.3035497053 | $554,531 | $554,531 | $722.86 | | |
| ST2 | State School Part 2 | 0.8169543533 | $554,531 | $554,531 | $453.03 | | |
| | Total Tax Rate: | 6.9861102925 | | | | | |
| | | | | Taxes w/Current Exemptions: | $3,874.04 | | |
| | | | | Taxes w/o Exemptions: | $3,874.04 | | |
Improvement / Building
| Improvement #1: | RESIDENTIAL | State Code: | Y | 2173.0 sqft | Value: | $254,531 |
| Bathrooms: | 2 | Bedrooms: | 4 | | Ceiling: | DRY WALL SPRAYED | Exterior Wall/Cover: | WOOD SIDING | | Floor Covering: | VINYL/HARDWOOD 20-80 | Floor Structure: | WOOD W/SUBFLOOR | | Foundation: | CONCRETE BLOCKS | Heating: | FHA OIL | | Interior Finish: | DRYWALL PAINT | Plumbing Fixture Cnt: | 9 | | Roof Slope: | 4" IN 12" | Roof Structure/Cover: | CJ ASPHALT |
|
| | Type | Description | Class CD | Sub Class CD | Year Built | Area |
| | BAS | BASE/MAIN FLOOR | 3 | 0 | 1968 | 1148.0 |
| | OP1 | OPEN PORCH SLAB | 3 | 0 | 1968 | 24.0 |
| | AGR | ATTACHED GARAGE | 3 | 0 | 1968 | 483.0 |
| | OWP | OPEN WOOD PORCH W/STEPS | 3 | 0 | 1968 | 124.0 |
| | OWP | OPEN WOOD PORCH W/STEPS | 3 | 0 | 1968 | 229.0 |
| | DWN | DOWNSTAIRS LIVING AREA | 3 | 0 | 1968 | 1025.0 |
| | CPD | OPEN CARPORT DIRT FLOOR | 3 | 0 | 1968 | 528.0 |
| | CPD | OPEN CARPORT DIRT FLOOR | 3 | 0 | 1968 | 572.0 |
| | UTY | STORAGE/UTILITY | 3 | 0 | 1968 | 168.0 |
| | ENP | ENCLOSED PORCH | 3 | 0 | 1968 | 84.0 |
Sketch
Property Image
Land
| 1 | 32 | AC (03.01-09.99) | 5.0330 | 219238.00 | 0.00 | 0.00 | 1.00 | $300,000 | $0 |
Roll Value History
| 2026 | N/A | N/A | N/A | N/A | N/A |
| 2025 | $254,531 | $300,000 | $0 | $554,531 | $554,531 |
| 2024 | $258,554 | $280,000 | $0 | $538,554 | $538,554 |
| 2023 | $262,580 | $270,000 | $0 | $532,580 | $532,580 |
| 2022 | $227,894 | $240,000 | $0 | $467,894 | $467,894 |
| 2021 | $201,312 | $160,000 | $0 | $361,312 | $361,312 |
| 2020 | $197,386 | $140,000 | $0 | $337,386 | $337,386 |
| 2019 | $153,954 | $200,000 | $0 | $353,954 | $353,954 |
| 2018 | $154,535 | $165,000 | $0 | $319,535 | $319,535 |
| 2017 | $155,696 | $150,000 | $0 | $305,696 | $305,696 |
| 2016 | $142,442 | $90,000 | $0 | $232,442 | $232,442 |
| 2015 | $144,520 | $85,000 | $0 | $229,520 | $229,520 |
| 2014 | $146,599 | $100,000 | $0 | $246,599 | $246,599 |
| 2013 | $148,677 | $90,000 | $0 | $238,677 | $238,677 |
| 2012 | $150,756 | $80,750 | $0 | $231,506 | $231,506 |
| 2011 | $152,833 | $95,000 | $0 | $247,833 | $247,833 |
| 2010 | $166,684 | $95,000 | $0 | $261,684 | $261,684 |
| 2009 | $173,843 | $105,000 | $0 | $278,843 | $278,843 |
| 2008 | $176,305 | $123,746 | $0 | $300,051 | $300,051 |
| 2007 | $178,713 | $123,746 | $0 | $302,459 | $302,459 |
Deed and Sales History
| 1 | 06/18/2025 | WD | Warranty Deed | BRAD A MORSE, EXECUTOR | SIMMONS JTWROS, GEOFF | | | $650,000.00 | 63873 | 4587225 |
| 2 | 11/01/2013 | QCD | Quit Claim Deed | MORSE, GEORGE L | MORSE, AMOY CHARLENE | | | $0.00 | 13277 | 4350649 |
Payout Agreement
| No payout information available.. |