Property
Account |
| Property ID: | 105692 | Abbreviated Legal Description: | 56 - BG SWCR SE NW N986.44' E2640' TPB N330' E TO ELN OF W7/8THS OF E/2 NE SLY ALG SD ELN TP LY E OF TPB W TPB TGW EZ |
| Geographic ID: | R23328-380-4590 | Agent Code: | |
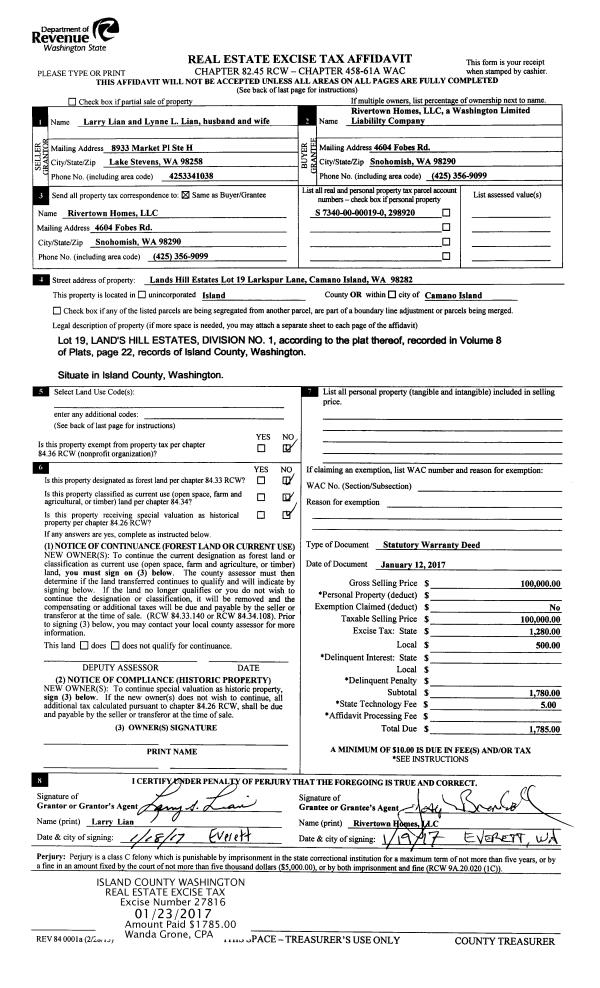
| Type: | Real | | |
| Tax Area: | 112 - APPRAISER-OH Schl Dist, outside OH, improved, greater than 1 acre | Land Use Code | 11 |
| Open Space: | N | DFL | N |
| Historic Property: | N | Remodel Property: | N |
| Multi-Family Redevelopment: | N | | |
| Township: | 33 | Section: | 28 |
| Range: | R2 |
Location |
| Address: | 1115 BURMA RD OAK HARBOR, WA 98277 | Mapsco: | |
| Neighborhood: | Cycle 6 | Map ID: | 634 |
| Neighborhood CD: | 6 |
Owner |
| Name: | MYLES, JUSTIN ANDREW | Owner ID: | 316707 |
| Mailing Address: | 1115 BURMA RD OAK HARBOR, WA 98277 | % Ownership: | 100.0000000000% |
| | | Exemptions: | |
Taxes and Assessment Details
Values
| (+) Improvement Homesite Value: | + | $0 | |
| (+) Improvement Non-Homesite Value: | + | $233,008 | |
| (+) Land Homesite Value: | + | $0 | |
| (+) Land Non-Homesite Value: | + | $300,000 | |
| (+) Curr Use (HS): | + | $0 | $0 |
| (+) Curr Use (NHS): | + | $0 | $0 |
| | | -------------------------- | |
| (=) Market Value: | = | $533,008 | |
| (–) Productivity Loss: | – | $0 | |
| | | -------------------------- | |
| (=) Subtotal: | = | $533,008 | |
| (+) Senior Appraised Value: | + | $0 | |
| (+) Non-Senior Appraised Value: | + | $533,008 | |
| | | -------------------------- | |
| (=) Total Appraised Value: | = | $533,008 | |
| (–) Senior Exemption Loss: | – | $0 | |
| (–) Exemption Loss: | – | $0 | |
| | | -------------------------- | |
| (=) Taxable Value: | = | $533,008 | |
Taxing Jurisdiction
| Owner: | MYLES, JUSTIN ANDREW | | |
| % Ownership: | 100.0000000000% | | |
| Total Value: | $533,008 | | |
| Tax Area: | 112 - APPRAISER-OH Schl Dist, outside OH, improved, greater than 1 acre |
| CF | Conservation Futures | 0.0316035091 | $533,008 | $533,008 | $16.84 | | |
| CEM1 | Cemetery #1 | 0.0040320932 | $533,008 | $533,008 | $2.15 | | |
| FIRE2 | Fire & Rescue Dist #2 N Whidbey GEN | 0.5475949600 | $533,008 | $533,008 | $291.87 | | |
| HOBOND | Hospital BOND | 0.1910887512 | $533,008 | $533,008 | $101.85 | | |
| HOGEN | Hospital GEN | 0.3902502903 | $533,008 | $533,008 | $208.01 | | |
| CE | County Current Expense | 0.3708482477 | $533,008 | $533,008 | $197.67 | | |
| CR | County Roads | 0.4584763726 | $533,008 | $533,008 | $244.37 | | |
| ISLANDEMS | Hospital GEN (EMS) | 0.5000000000 | $533,008 | $533,008 | $266.50 | | |
| LIB | Library Sno-Isle GEN | 0.3153421757 | $533,008 | $533,008 | $168.08 | | |
| NWHIDPRMT | P & R N Whidbey GEN | 0.2004466701 | $533,008 | $533,008 | $106.84 | | |
| SCH201MO | School 201 Enrichment | 1.8559231640 | $533,008 | $533,008 | $989.22 | | |
| ST | State School | 1.3035497053 | $533,008 | $533,008 | $694.80 | | |
| ST2 | State School Part 2 | 0.8169543533 | $533,008 | $533,008 | $435.44 | | |
| | Total Tax Rate: | 6.9861102925 | | | | | |
| | | | | Taxes w/Current Exemptions: | $3,723.64 | | |
| | | | | Taxes w/o Exemptions: | $3,723.64 | | |
Improvement / Building
| Improvement #1: | RESIDENTIAL | State Code: | Y | 2388.0 sqft | Value: | $233,008 |
| Bathrooms: | 2 | Bedrooms: | 5 | | Ceiling: | DRYWALL PAINTED | Exterior Wall/Cover: | CEMENT FIBER | | Floor Covering: | CARPET/VINYL 80-20 | Floor Structure: | WOOD W/SUBFLOOR | | Foundation: | CONCRETE | Heating: | BASEBOARD ELECTRIC | | Interior Finish: | DRYWALL PAINT | Plumbing Fixture Cnt: | 10 | | Roof Slope: | 4" IN 12" | Roof Structure/Cover: | CJ ASPHALT |
|
| | Type | Description | Class CD | Sub Class CD | Year Built | Area |
| | BAS | BASE/MAIN FLOOR | 3 | 0 | 1973 | 1236.0 |
| | DWN | DOWNSTAIRS LIVING AREA | 3 | 0 | 1973 | 1152.0 |
| | OP3 | OPEN PORCH W/ROOF | 3 | 0 | 1973 | 24.0 |
| | OWP | OPEN WOOD PORCH W/STEPS | 3 | 0 | 1973 | 144.0 |
| | DGR | DETACHED GARAGE | 3 | 0 | 1973 | 864.0 |
Sketch
Property Image
Land
| 1 | 32 | AC (03.01-09.99) | 8.7600 | 381585.60 | 0.00 | 0.00 | 1.00 | $300,000 | $0 |
Roll Value History
| 2026 | N/A | N/A | N/A | N/A | N/A |
| 2025 | $233,008 | $300,000 | $0 | $533,008 | $533,008 |
| 2024 | $241,639 | $280,000 | $0 | $521,639 | $521,639 |
| 2023 | $245,123 | $270,000 | $0 | $515,123 | $515,123 |
| 2022 | $213,336 | $240,000 | $0 | $453,336 | $453,336 |
| 2021 | $202,074 | $160,000 | $0 | $362,074 | $362,074 |
| 2020 | $197,017 | $140,000 | $0 | $337,017 | $337,017 |
| 2019 | $140,768 | $200,000 | $0 | $340,768 | $340,768 |
| 2018 | $141,262 | $170,000 | $0 | $311,262 | $311,262 |
| 2017 | $142,249 | $150,000 | $0 | $292,249 | $292,249 |
| 2016 | $127,121 | $140,000 | $0 | $267,121 | $267,121 |
| 2015 | $128,985 | $155,000 | $0 | $283,985 | $283,985 |
| 2014 | $130,848 | $148,920 | $0 | $279,768 | $279,768 |
| 2013 | $132,712 | $148,920 | $0 | $281,632 | $281,632 |
| 2012 | $134,575 | $115,248 | $0 | $249,823 | $249,823 |
| 2011 | $136,438 | $127,920 | $0 | $264,358 | $264,358 |
| 2010 | $145,792 | $127,920 | $0 | $273,712 | $273,712 |
| 2009 | $151,963 | $145,200 | $0 | $297,163 | $297,163 |
| 2008 | $153,934 | $168,240 | $0 | $322,174 | $322,174 |
| 2007 | $139,709 | $128,554 | $0 | $268,263 | $268,263 |
Deed and Sales History
| 1 | 05/19/2025 | QCD | Quit Claim Deed | MYLES, JEFFREY W | MYLES, JUSTIN ANDREW | | | $0.00 | 63622 | 4586420 |
| 2 | 09/11/2017 | QCD | Quit Claim Deed | MYLES, JEFFREY W | MYLES, JEFFREY W | | | $0.00 | 31071 | 4430121 |
| 3 | 12/09/1999 | WD | Warranty Deed | PAUZA, ANTHONY L | MYLES, JEFFREY W | | | $157,500.00 | 205 | 20001108 |
| 4 | 02/01/1995 | DECREE | Divorce Decree/Legal Separation | PAUZA, ANTHONY L | PAUZA, ANTHONY L | | | $0.00 | 50628 | 95002995 |
| 5 | 06/01/1991 | WD | Warranty Deed | BURROW, THOMAS R | PAUZA, ANTHONY L | | | $118,000.00 | 12084 | 91008833 |
| 6 | 05/01/1986 | WD | Warranty Deed | BROWN, JAMES F | BURROW, THOMAS R | | | $90,000.00 | 61105 | 86005229 |
| 7 | 11/01/1980 | WD | Warranty Deed | BROWN, JAMES F | BROWN, JAMES F | | | $0.00 | 3746 | 376081 |
| 8 | 11/01/1980 | QCD | Quit Claim Deed | WALLACE, PRINCE A | BROWN, JAMES F | | | $0.00 | 3747 | 376082 |
| 9 | 11/01/1980 | REC | Real Estate Contract | BROWN, JAMES F | WALLACE, PRINCE A | | | $83,000.00 | 3745 | 376080 |
| 10 | 06/01/1978 | OTHER | Other - Misc. Documents | Unknown | BROWN, JAMES F | | | $79,500.00 | 83013 | 335216 |
Payout Agreement
| No payout information available.. |