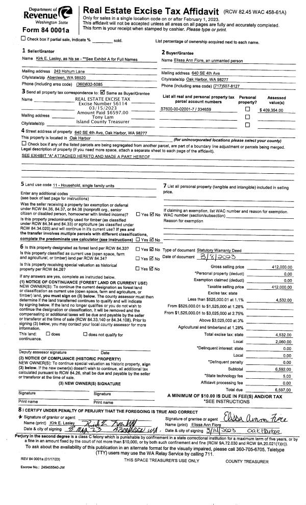
Property
Account |
| Property ID: | 105763 | Abbreviated Legal Description: | 30 - IN E/2 NW: BG SWCR E/2 NW N ALG CTRLN OF CO RD 1976.44' E990' S30' TPB S600' E330' N600' W330' TPB TGW EZ |
| Geographic ID: | R23328-429-2530 | Agent Code: | |
| Type: | Real | | |
| Tax Area: | 119 - APPRAISER-OH Schl Dist, outside OH, vacant & 50 acres or less | Land Use Code | 91 |
| Open Space: | N | DFL | N |
| Historic Property: | N | Remodel Property: | N |
| Multi-Family Redevelopment: | N | | |
| Township: | 33 | Section: | 28 |
| Range: | R2 |
Location |
| Address: | 977 BURMA RD OAK HARBOR, WA 98277 | Mapsco: | |
| Neighborhood: | Cycle 6 | Map ID: | 633 |
| Neighborhood CD: | 6 |
Owner |
| Name: | PAULEY, BARNEY | Owner ID: | 194575 |
| Mailing Address: | SANDRA D PAULEY 469 NW CLIPPER DR OAK HARBOR, WA 98277-2075 | % Ownership: | 100.0000000000% |
| | | Exemptions: | |
Taxes and Assessment Details
Values
| (+) Improvement Homesite Value: | + | $0 | |
| (+) Improvement Non-Homesite Value: | + | $0 | |
| (+) Land Homesite Value: | + | $0 | |
| (+) Land Non-Homesite Value: | + | $170,000 | |
| (+) Curr Use (HS): | + | $0 | $0 |
| (+) Curr Use (NHS): | + | $0 | $0 |
| | | -------------------------- | |
| (=) Market Value: | = | $170,000 | |
| (–) Productivity Loss: | – | $0 | |
| | | -------------------------- | |
| (=) Subtotal: | = | $170,000 | |
| (+) Senior Appraised Value: | + | $0 | |
| (+) Non-Senior Appraised Value: | + | $170,000 | |
| | | -------------------------- | |
| (=) Total Appraised Value: | = | $170,000 | |
| (–) Senior Exemption Loss: | – | $0 | |
| (–) Exemption Loss: | – | $0 | |
| | | -------------------------- | |
| (=) Taxable Value: | = | $170,000 | |
Taxing Jurisdiction
| Owner: | PAULEY, BARNEY | | |
| % Ownership: | 100.0000000000% | | |
| Total Value: | $170,000 | | |
| Tax Area: | 119 - APPRAISER-OH Schl Dist, outside OH, vacant & 50 acres or less |
| CF | Conservation Futures | 0.0316035091 | $170,000 | $170,000 | $5.37 | | |
| CEM1 | Cemetery #1 | 0.0040320932 | $170,000 | $170,000 | $0.69 | | |
| HOBOND | Hospital BOND | 0.1910887512 | $170,000 | $170,000 | $32.49 | | |
| HOGEN | Hospital GEN | 0.3902502903 | $170,000 | $170,000 | $66.34 | | |
| CE | County Current Expense | 0.3708482477 | $170,000 | $170,000 | $63.04 | | |
| CR | County Roads | 0.4584763726 | $170,000 | $170,000 | $77.94 | | |
| ISLANDEMS | Hospital GEN (EMS) | 0.5000000000 | $170,000 | $170,000 | $85.00 | | |
| LIB | Library Sno-Isle GEN | 0.3153421757 | $170,000 | $170,000 | $53.61 | | |
| NWHIDPRMT | P & R N Whidbey GEN | 0.2004466701 | $170,000 | $170,000 | $34.08 | | |
| SCH201MO | School 201 Enrichment | 1.8559231640 | $170,000 | $170,000 | $315.51 | | |
| ST | State School | 1.3035497053 | $170,000 | $170,000 | $221.60 | | |
| ST2 | State School Part 2 | 0.8169543533 | $170,000 | $170,000 | $138.88 | | |
| | Total Tax Rate: | 6.4385153325 | | | | | |
| | | | | Taxes w/Current Exemptions: | $1,094.55 | | |
| | | | | Taxes w/o Exemptions: | $1,094.55 | | |
Improvement / Building
Sketch
| No sketches available for this property. |
Property Image
Land
| 1 | 32 | AC (03.01-09.99) | 4.5500 | 0.00 | 0.00 | 0.00 | 1.00 | $170,000 | $0 |
Roll Value History
| 2026 | N/A | N/A | N/A | N/A | N/A |
| 2025 | $0 | $170,000 | $0 | $170,000 | $170,000 |
| 2024 | $0 | $150,000 | $0 | $150,000 | $150,000 |
| 2023 | $0 | $140,000 | $0 | $140,000 | $140,000 |
| 2022 | $0 | $100,000 | $0 | $100,000 | $100,000 |
| 2021 | $0 | $100,000 | $0 | $100,000 | $100,000 |
| 2020 | $0 | $90,000 | $0 | $90,000 | $90,000 |
| 2019 | $0 | $110,000 | $0 | $110,000 | $110,000 |
| 2018 | $0 | $110,000 | $0 | $110,000 | $110,000 |
| 2017 | $0 | $110,000 | $0 | $110,000 | $110,000 |
| 2016 | $0 | $80,000 | $0 | $80,000 | $80,000 |
| 2015 | $0 | $60,000 | $0 | $60,000 | $60,000 |
| 2014 | $0 | $75,000 | $0 | $75,000 | $75,000 |
| 2013 | $0 | $59,150 | $0 | $59,150 | $59,150 |
| 2012 | $0 | $91,000 | $0 | $91,000 | $91,000 |
| 2011 | $0 | $91,000 | $0 | $91,000 | $91,000 |
| 2010 | $0 | $91,000 | $0 | $91,000 | $91,000 |
| 2009 | $0 | $95,550 | $0 | $95,550 | $95,550 |
| 2008 | $0 | $95,550 | $0 | $95,550 | $95,550 |
| 2007 | $0 | $97,689 | $0 | $97,689 | $97,689 |
Deed and Sales History
| 1 | 03/31/2005 | WD | Warranty Deed | SWANSON, HARRY I | PAULEY, BARNEY | | | $55,392.00 | 51373 | 4130134 |
| 2 | 11/01/1991 | WD | Warranty Deed | CALVERT, PHILIP J | SWANSON, HARRY I | | | $25,000.00 | 14005 | 91017082 |
| 3 | 10/01/1991 | QCD | Quit Claim Deed | CALVERT, PHILIP J | CALVERT, PHILIP J | | | $0.00 | 13968 | 91016882 |
| 4 | 10/01/1988 | QCD | Quit Claim Deed | WOOD, DANNY E | CALVERT, PHILIP J | | | $0.00 | 84196 | 88015665 |
| 5 | 05/01/1980 | REC | Real Estate Contract | CALVERT, PHILIP J | WOOD, DANNY E | | | $20,000.00 | 1567 | 368514 |
| 6 | 11/01/1978 | OTHER | Other - Misc. Documents | Unknown | CALVERT, PHILIP J | | | $12,000.00 | 85625 | 343166 |
Payout Agreement
| No payout information available.. |