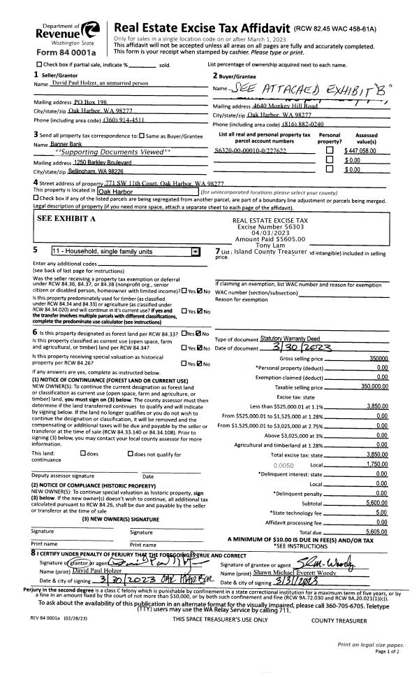
Property
Account |
| Property ID: | 105950 | Abbreviated Legal Description: | 59 - IN SW SE:BG SE CR SEC 29 N88*W1306.12' N1*E733.63 S52*W735.56' TPB N25*W453. 29' S10*W611.17' S88*E308.3 N198.68' TPB TGW SUB EZ |
| Geographic ID: | R23329-031-3160 | Agent Code: | |
| Type: | Real | | |
| Tax Area: | 112 - APPRAISER-OH Schl Dist, outside OH, improved, greater than 1 acre | Land Use Code | 11 |
| Open Space: | N | DFL | N |
| Historic Property: | N | Remodel Property: | N |
| Multi-Family Redevelopment: | N | | |
| Township: | 33 | Section: | 29 |
| Range: | R2 |
Location |
| Address: | 2827 OVERVIEW DR OAK HARBOR, WA 98277 | Mapsco: | |
| Neighborhood: | Cycle 6 | Map ID: | 636 |
| Neighborhood CD: | 6 |
Owner |
| Name: | JACUKOWICZ JR JTWROS, STANLEY JOSEPH | Owner ID: | 269958 |
| Mailing Address: | JACQUELINE MARIE JACUKOWICZ JTWROS 2827 OVERVIEW DR OAK HARBOR, WA 98277 | % Ownership: | 100.0000000000% |
| | | Exemptions: | |
Taxes and Assessment Details
Values
| (+) Improvement Homesite Value: | + | $0 | |
| (+) Improvement Non-Homesite Value: | + | $310,654 | |
| (+) Land Homesite Value: | + | $0 | |
| (+) Land Non-Homesite Value: | + | $250,000 | |
| (+) Curr Use (HS): | + | $0 | $0 |
| (+) Curr Use (NHS): | + | $0 | $0 |
| | | -------------------------- | |
| (=) Market Value: | = | $560,654 | |
| (–) Productivity Loss: | – | $0 | |
| | | -------------------------- | |
| (=) Subtotal: | = | $560,654 | |
| (+) Senior Appraised Value: | + | $0 | |
| (+) Non-Senior Appraised Value: | + | $560,654 | |
| | | -------------------------- | |
| (=) Total Appraised Value: | = | $560,654 | |
| (–) Senior Exemption Loss: | – | $0 | |
| (–) Exemption Loss: | – | $0 | |
| | | -------------------------- | |
| (=) Taxable Value: | = | $560,654 | |
Taxing Jurisdiction
| Owner: | JACUKOWICZ JR JTWROS, STANLEY JOSEPH | | |
| % Ownership: | 100.0000000000% | | |
| Total Value: | $560,654 | | |
| Tax Area: | 112 - APPRAISER-OH Schl Dist, outside OH, improved, greater than 1 acre |
| CF | Conservation Futures | 0.0316035091 | $560,654 | $560,654 | $17.72 | | |
| CEM1 | Cemetery #1 | 0.0040320932 | $560,654 | $560,654 | $2.26 | | |
| FIRE2 | Fire & Rescue Dist #2 N Whidbey GEN | 0.5475949600 | $560,654 | $560,654 | $307.01 | | |
| HOBOND | Hospital BOND | 0.1910887512 | $560,654 | $560,654 | $107.13 | | |
| HOGEN | Hospital GEN | 0.3902502903 | $560,654 | $560,654 | $218.80 | | |
| CE | County Current Expense | 0.3708482477 | $560,654 | $560,654 | $207.92 | | |
| CR | County Roads | 0.4584763726 | $560,654 | $560,654 | $257.05 | | |
| ISLANDEMS | Hospital GEN (EMS) | 0.5000000000 | $560,654 | $560,654 | $280.33 | | |
| LIB | Library Sno-Isle GEN | 0.3153421757 | $560,654 | $560,654 | $176.80 | | |
| NWHIDPRMT | P & R N Whidbey GEN | 0.2004466701 | $560,654 | $560,654 | $112.38 | | |
| SCH201MO | School 201 Enrichment | 1.8559231640 | $560,654 | $560,654 | $1,040.53 | | |
| ST | State School | 1.3035497053 | $560,654 | $560,654 | $730.84 | | |
| ST2 | State School Part 2 | 0.8169543533 | $560,654 | $560,654 | $458.03 | | |
| | Total Tax Rate: | 6.9861102925 | | | | | |
| | | | | Taxes w/Current Exemptions: | $3,916.80 | | |
| | | | | Taxes w/o Exemptions: | $3,916.80 | | |
Improvement / Building
| Improvement #1: | RESIDENTIAL | State Code: | Y | 1773.0 sqft | Value: | $310,654 |
| Bathrooms: | 2 | Bedrooms: | 2 | | Ceiling: | DRY WALL SPRAYED | Exterior Wall/Cover: | VINYL | | Floor Covering: | CARPET/VINYL 80-20 | Floor Structure: | WOOD W/SUBFLOOR | | Foundation: | CONCRETE | Heating: | BASEBOARD ELECTRIC | | Interior Finish: | DRYWALL PAINT | Plumbing Fixture Cnt: | 8 | | Roof Slope: | 4" IN 12" | Roof Structure/Cover: | CJ ASPHALT |
|
| | Type | Description | Class CD | Sub Class CD | Year Built | Area |
| | BAS | BASE/MAIN FLOOR | 3 | 0 | 1974 | 1773.0 |
| | AGR | ATTACHED GARAGE | 3 | 0 | 1974 | 576.0 |
| | OWP | OPEN WOOD PORCH W/STEPS | 3 | 0 | 1974 | 60.0 |
| | OWP | OPEN WOOD PORCH W/STEPS | 3 | 0 | 1974 | 992.9 |
| | UTY | STORAGE/UTILITY | 3 | 0 | 1974 | 0.0 |
Sketch
Property Image
Land
| 1 | 18 | AC (02.01-03.00) | 0.0000 | 0.00 | 0.00 | 0.00 | 1.00 | $250,000 | $0 |
Roll Value History
| 2026 | N/A | N/A | N/A | N/A | N/A |
| 2025 | $310,654 | $250,000 | $0 | $560,654 | $560,654 |
| 2024 | $320,502 | $230,000 | $0 | $550,502 | $550,502 |
| 2023 | $324,212 | $220,000 | $0 | $544,212 | $544,212 |
| 2022 | $279,641 | $210,000 | $0 | $489,641 | $489,641 |
| 2021 | $250,035 | $160,000 | $0 | $410,035 | $410,035 |
| 2020 | $245,054 | $140,000 | $0 | $385,054 | $385,054 |
| 2019 | $190,878 | $200,000 | $0 | $390,878 | $390,878 |
| 2018 | $191,398 | $170,000 | $0 | $361,398 | $361,398 |
| 2017 | $192,430 | $150,000 | $0 | $342,430 | $342,430 |
| 2016 | $179,338 | $120,000 | $0 | $299,338 | $299,338 |
| 2015 | $181,302 | $100,000 | $0 | $281,302 | $281,302 |
| 2014 | $183,266 | $106,250 | $0 | $289,516 | $289,516 |
| 2013 | $185,230 | $106,250 | $0 | $291,480 | $291,480 |
| 2012 | $187,196 | $106,250 | $0 | $293,446 | $293,446 |
| 2011 | $189,157 | $125,000 | $0 | $314,157 | $314,157 |
| 2010 | $204,223 | $125,000 | $0 | $329,223 | $329,223 |
| 2009 | $212,678 | $135,000 | $0 | $347,678 | $347,678 |
| 2008 | $220,289 | $155,000 | $0 | $375,289 | $375,289 |
| 2007 | $223,843 | $99,825 | $0 | $323,668 | $323,668 |
Deed and Sales History
| 1 | 04/10/2015 | QCD | Quit Claim Deed | JACUKOWICZ, STANLEY J | JACUKOWICZ JR JTWROS, STANLEY JOSEPH | | | $0.00 | 19280 | 4377152 |
| 2 | 03/22/2011 | WD | Warranty Deed | SMITH, LESTER D & MARY A E | JACUKOWICZ, STANLEY J | | | $355,000.00 | 3944 | 4292722 |
| 3 | 09/01/1986 | QCD | Quit Claim Deed | SMITH, LESTER D | SMITH, LESTER D | | | $0.00 | 62650 | 86012003 |
| 4 | 09/01/1980 | WD | Warranty Deed | HOLMLY, DAVID D | SMITH, LESTER D | | | $55,000.00 | 3166 | 374054 |
| 5 | 01/01/1900 | OTHER | Other - Misc. Documents | Unknown | HOLMLY, DAVID D | | | $0.00 | 0 | 0 |
Payout Agreement
| No payout information available.. |