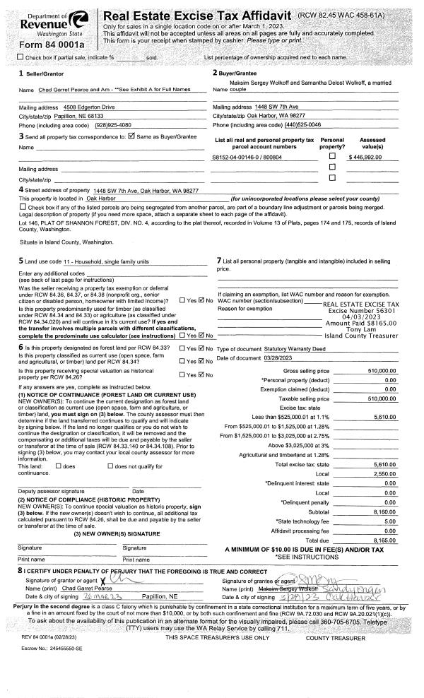
Property
Account |
| Property ID: | 105987 | Abbreviated Legal Description: | 61 - IN SW SE: BG SECR SEC 29 N88*W1306.12' N1*E106.45 TPB N1*E627.18' S52*W140' S17*W377' S47*W215' S1*W30' S88*E369.35' TPB TGW EZS |
| Geographic ID: | R23329-037-3790 | Agent Code: | |
| Type: | Real | | |
| Tax Area: | 112 - APPRAISER-OH Schl Dist, outside OH, improved, greater than 1 acre | Land Use Code | 11 |
| Open Space: | N | DFL | N |
| Historic Property: | N | Remodel Property: | N |
| Multi-Family Redevelopment: | N | | |
| Township: | 33 | Section: | 29 |
| Range: | R2 |
Location |
| Address: | 687 RITZBEE PLACE OAK HARBOR, WA 98277 | Mapsco: | |
| Neighborhood: | Cycle 6 | Map ID: | 636 |
| Neighborhood CD: | 6 |
Owner |
| Name: | SOYKE, GARY A & AMY L | Owner ID: | 74013 |
| Mailing Address: | 687 RITZBEE PLACE OAK HARBOR, WA 98277-7826 | % Ownership: | 100.0000000000% |
| | | Exemptions: | |
Taxes and Assessment Details
Values
| (+) Improvement Homesite Value: | + | $0 | |
| (+) Improvement Non-Homesite Value: | + | $266,475 | |
| (+) Land Homesite Value: | + | $0 | |
| (+) Land Non-Homesite Value: | + | $250,000 | |
| (+) Curr Use (HS): | + | $0 | $0 |
| (+) Curr Use (NHS): | + | $0 | $0 |
| | | -------------------------- | |
| (=) Market Value: | = | $516,475 | |
| (–) Productivity Loss: | – | $0 | |
| | | -------------------------- | |
| (=) Subtotal: | = | $516,475 | |
| (+) Senior Appraised Value: | + | $0 | |
| (+) Non-Senior Appraised Value: | + | $516,475 | |
| | | -------------------------- | |
| (=) Total Appraised Value: | = | $516,475 | |
| (–) Senior Exemption Loss: | – | $0 | |
| (–) Exemption Loss: | – | $0 | |
| | | -------------------------- | |
| (=) Taxable Value: | = | $516,475 | |
Taxing Jurisdiction
| Owner: | SOYKE, GARY A & AMY L | | |
| % Ownership: | 100.0000000000% | | |
| Total Value: | $516,475 | | |
| Tax Area: | 112 - APPRAISER-OH Schl Dist, outside OH, improved, greater than 1 acre |
| CF | Conservation Futures | 0.0316035091 | $516,475 | $516,475 | $16.32 | | |
| CEM1 | Cemetery #1 | 0.0040320932 | $516,475 | $516,475 | $2.08 | | |
| FIRE2 | Fire & Rescue Dist #2 N Whidbey GEN | 0.5475949600 | $516,475 | $516,475 | $282.82 | | |
| HOBOND | Hospital BOND | 0.1910887512 | $516,475 | $516,475 | $98.69 | | |
| HOGEN | Hospital GEN | 0.3902502903 | $516,475 | $516,475 | $201.55 | | |
| CE | County Current Expense | 0.3708482477 | $516,475 | $516,475 | $191.53 | | |
| CR | County Roads | 0.4584763726 | $516,475 | $516,475 | $236.79 | | |
| ISLANDEMS | Hospital GEN (EMS) | 0.5000000000 | $516,475 | $516,475 | $258.24 | | |
| LIB | Library Sno-Isle GEN | 0.3153421757 | $516,475 | $516,475 | $162.87 | | |
| NWHIDPRMT | P & R N Whidbey GEN | 0.2004466701 | $516,475 | $516,475 | $103.53 | | |
| SCH201MO | School 201 Enrichment | 1.8559231640 | $516,475 | $516,475 | $958.54 | | |
| ST | State School | 1.3035497053 | $516,475 | $516,475 | $673.25 | | |
| ST2 | State School Part 2 | 0.8169543533 | $516,475 | $516,475 | $421.94 | | |
| | Total Tax Rate: | 6.9861102925 | | | | | |
| | | | | Taxes w/Current Exemptions: | $3,608.15 | | |
| | | | | Taxes w/o Exemptions: | $3,608.15 | | |
Improvement / Building
| Improvement #1: | RESIDENTIAL | State Code: | Y | 2008.0 sqft | Value: | $266,475 |
| Bathrooms: | 2.5 | Bedrooms: | 4 | | Ceiling: | DRY WALL SPRAYED | Exterior Wall/Cover: | WOOD SIDING | | Floor Covering: | SOFTWOOD/VINYL 80-20 | Floor Structure: | WOOD W/SUBFLOOR | | Foundation: | CONCRETE | Heating: | BASEBOARD ELECTRIC | | Interior Finish: | DRYWALL PAINT | Plumbing Fixture Cnt: | 11 | | Roof Slope: | 4" IN 12" | Roof Structure/Cover: | CJ ASPHALT |
|
| | Type | Description | Class CD | Sub Class CD | Year Built | Area |
| | BAS | BASE/MAIN FLOOR | 3 | 0 | 1974 | 1288.0 |
| | OP1 | OPEN PORCH SLAB | 3 | 0 | 1974 | 308.0 |
| | OP4 | OPEN PORCH W/CEILING-ROOF | 3 | 0 | 1974 | 54.0 |
| | BIG | BUILT IN GARAGE | 3 | 0 | 1974 | 480.0 |
| | OWP | OPEN WOOD PORCH W/STEPS | 3 | 0 | 1974 | 120.0 |
| | DWN | DOWNSTAIRS LIVING AREA | 3 | 0 | 1974 | 720.0 |
Sketch
Property Image
Land
| 1 | 18 | AC (02.01-03.00) | 0.0000 | 0.00 | 0.00 | 0.00 | 1.00 | $250,000 | $0 |
Roll Value History
| 2026 | N/A | N/A | N/A | N/A | N/A |
| 2025 | $266,475 | $250,000 | $0 | $516,475 | $516,475 |
| 2024 | $275,808 | $230,000 | $0 | $505,808 | $505,808 |
| 2023 | $279,575 | $220,000 | $0 | $499,575 | $499,575 |
| 2022 | $246,954 | $210,000 | $0 | $456,954 | $456,954 |
| 2021 | $217,319 | $160,000 | $0 | $377,319 | $377,319 |
| 2020 | $212,249 | $140,000 | $0 | $352,249 | $352,249 |
| 2019 | $162,063 | $200,000 | $0 | $362,063 | $362,063 |
| 2018 | $162,602 | $170,000 | $0 | $332,602 | $332,602 |
| 2017 | $163,679 | $150,000 | $0 | $313,679 | $313,679 |
| 2016 | $120,992 | $120,000 | $0 | $240,992 | $240,992 |
| 2015 | $122,914 | $100,000 | $0 | $222,914 | $222,914 |
| 2014 | $124,834 | $106,250 | $0 | $231,084 | $231,084 |
| 2013 | $126,755 | $106,250 | $0 | $233,005 | $233,005 |
| 2012 | $128,675 | $106,250 | $0 | $234,925 | $234,925 |
| 2011 | $130,596 | $125,000 | $0 | $255,596 | $255,596 |
| 2010 | $142,212 | $125,000 | $0 | $267,212 | $267,212 |
| 2009 | $148,433 | $135,000 | $0 | $283,433 | $283,433 |
| 2008 | $156,364 | $155,000 | $0 | $311,364 | $311,364 |
| 2007 | $158,565 | $99,825 | $0 | $258,390 | $258,390 |
Deed and Sales History
| 1 | 06/01/1995 | WD | Warranty Deed | HALFORD, LINDA J | SOYKE, GARY A | | | $138,500.00 | 52108 | 95009840 |
| 2 | 01/01/1995 | QCD | Quit Claim Deed | DUNN, WANDA I | HALFORD, LINDA J | | | $0.00 | 50181 | 95000900 |
| 3 | 09/01/1980 | WD | Warranty Deed | RITZEL, CHARLES J | DUNN, WANDA I | | | $79,950.00 | 3075 | 373713 |
| 4 | 01/01/1900 | OTHER | Other - Misc. Documents | Unknown | RITZEL, CHARLES J | | | $0.00 | 0 | 0 |
Payout Agreement
| No payout information available.. |