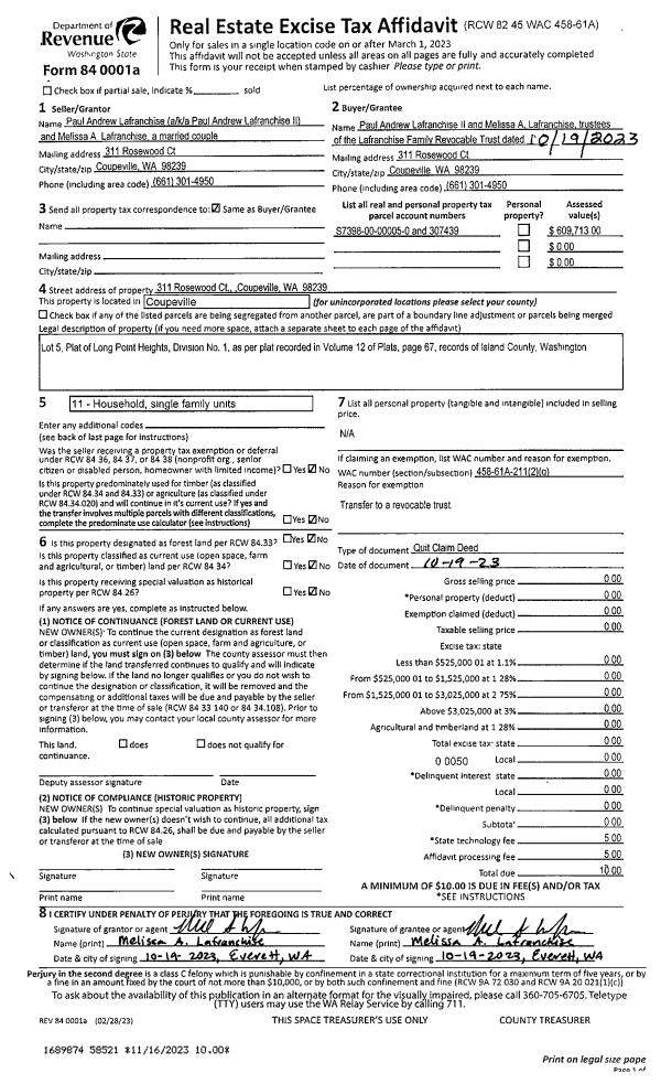
Property
Account |
| Property ID: | 106110 | Abbreviated Legal Description: | 14 WALLACE DC - BG INTER WLN DC & SLN SILVER LK RD S TP 1961.87'N OF NLN CRES HBR RD E120' S130' E220' TO ELN TR AF#254990 N ALG ELN 378' TO SLN RD W ALG RD TPB EX N30' TGW EZ |
| Geographic ID: | R23329-071-0410 | Agent Code: | |
| Type: | Real | | |
| Tax Area: | 112 - APPRAISER-OH Schl Dist, outside OH, improved, greater than 1 acre | Land Use Code | 11 |
| Open Space: | N | DFL | N |
| Historic Property: | N | Remodel Property: | N |
| Multi-Family Redevelopment: | N | | |
| Township: | 33 | Section: | 29 |
| Range: | R2 |
Location |
| Address: | 410 SILVER LAKE RD OAK HARBOR, WA 98277 | Mapsco: | |
| Neighborhood: | Cycle 6 | Map ID: | 635 |
| Neighborhood CD: | 6 |
Owner |
| Name: | ASKEW, CAROLYN | Owner ID: | 308161 |
| Mailing Address: | CLIFF L ASKEW 410 SILVER LAKE RD OAK HARBOR, WA 98277 | % Ownership: | 100.0000000000% |
| | | Exemptions: | |
Taxes and Assessment Details
Values
| (+) Improvement Homesite Value: | + | $0 | |
| (+) Improvement Non-Homesite Value: | + | $407,183 | |
| (+) Land Homesite Value: | + | $0 | |
| (+) Land Non-Homesite Value: | + | $250,000 | |
| (+) Curr Use (HS): | + | $0 | $0 |
| (+) Curr Use (NHS): | + | $0 | $0 |
| | | -------------------------- | |
| (=) Market Value: | = | $657,183 | |
| (–) Productivity Loss: | – | $0 | |
| | | -------------------------- | |
| (=) Subtotal: | = | $657,183 | |
| (+) Senior Appraised Value: | + | $0 | |
| (+) Non-Senior Appraised Value: | + | $657,183 | |
| | | -------------------------- | |
| (=) Total Appraised Value: | = | $657,183 | |
| (–) Senior Exemption Loss: | – | $0 | |
| (–) Exemption Loss: | – | $0 | |
| | | -------------------------- | |
| (=) Taxable Value: | = | $657,183 | |
Taxing Jurisdiction
| Owner: | ASKEW, CAROLYN | | |
| % Ownership: | 100.0000000000% | | |
| Total Value: | $657,183 | | |
| Tax Area: | 112 - APPRAISER-OH Schl Dist, outside OH, improved, greater than 1 acre |
| CF | Conservation Futures | 0.0316035091 | $657,183 | $657,183 | $20.77 | | |
| CEM1 | Cemetery #1 | 0.0040320932 | $657,183 | $657,183 | $2.65 | | |
| FIRE2 | Fire & Rescue Dist #2 N Whidbey GEN | 0.5475949600 | $657,183 | $657,183 | $359.87 | | |
| HOBOND | Hospital BOND | 0.1910887512 | $657,183 | $657,183 | $125.58 | | |
| HOGEN | Hospital GEN | 0.3902502903 | $657,183 | $657,183 | $256.47 | | |
| CE | County Current Expense | 0.3708482477 | $657,183 | $657,183 | $243.72 | | |
| CR | County Roads | 0.4584763726 | $657,183 | $657,183 | $301.30 | | |
| ISLANDEMS | Hospital GEN (EMS) | 0.5000000000 | $657,183 | $657,183 | $328.59 | | |
| LIB | Library Sno-Isle GEN | 0.3153421757 | $657,183 | $657,183 | $207.24 | | |
| NWHIDPRMT | P & R N Whidbey GEN | 0.2004466701 | $657,183 | $657,183 | $131.73 | | |
| SCH201MO | School 201 Enrichment | 1.8559231640 | $657,183 | $657,183 | $1,219.68 | | |
| ST | State School | 1.3035497053 | $657,183 | $657,183 | $856.67 | | |
| ST2 | State School Part 2 | 0.8169543533 | $657,183 | $657,183 | $536.89 | | |
| | Total Tax Rate: | 6.9861102925 | | | | | |
| | | | | Taxes w/Current Exemptions: | $4,591.16 | | |
| | | | | Taxes w/o Exemptions: | $4,591.16 | | |
Improvement / Building
| Improvement #1: | RESIDENTIAL | State Code: | Y | 2248.0 sqft | Value: | $407,183 |
| Bathrooms: | 3.5 | Bedrooms: | 3 | | Ceiling: | DRY WALL SPRAYED | Exterior Wall/Cover: | PLY/HARDBOARD T-111 | | Floor Covering: | CARPET/VINYL 80-20 | Floor Structure: | WOOD W/SUBFLOOR | | Foundation: | CONCRETE | Heating: | FHA GAS | | Interior Finish: | DRYWALL PAINT | Plumbing Fixture Cnt: | 16 | | Roof Slope: | 4" IN 12" | Roof Structure/Cover: | CJ ASPHALT |
|
| | Type | Description | Class CD | Sub Class CD | Year Built | Area |
| | BAS | BASE/MAIN FLOOR | 3 | 0 | 1983 | 2248.0 |
| | AGR | ATTACHED GARAGE | 3 | 0 | 1983 | 440.0 |
| | OWP | OPEN WOOD PORCH W/STEPS | 3 | 0 | 1983 | 60.0 |
| | OWC | OPEN WOOD PORCH W/STEPS/ROOF/C | 3 | 0 | 1983 | 112.0 |
| | ENP | ENCLOSED PORCH | 3 | 0 | 1983 | 180.0 |
| | UTY | STORAGE/UTILITY | 3 | 0 | 1983 | 1500.0 |
| | OP2 | OPEN PORCH W/STEPS | 3 | 0 | 1983 | 1744.0 |
| | oTP1 | TREAD POOL 1/BELOW | 3 | 0 | 1983 | 0.0 |
Sketch
Property Image
Land
| 1 | 18 | AC (02.01-03.00) | 2.6100 | 113691.60 | 0.00 | 0.00 | 1.00 | $250,000 | $0 |
Roll Value History
| 2026 | N/A | N/A | N/A | N/A | N/A |
| 2025 | $407,183 | $250,000 | $0 | $657,183 | $657,183 |
| 2024 | $412,401 | $230,000 | $0 | $642,401 | $642,401 |
| 2023 | $417,619 | $220,000 | $0 | $637,619 | $637,619 |
| 2022 | $322,687 | $210,000 | $0 | $532,687 | $532,687 |
| 2021 | $285,918 | $160,000 | $0 | $445,918 | $445,918 |
| 2020 | $279,475 | $140,000 | $0 | $419,475 | $419,475 |
| 2019 | $218,387 | $200,000 | $0 | $418,387 | $418,387 |
| 2018 | $219,031 | $170,000 | $0 | $389,031 | $389,031 |
| 2017 | $217,286 | $150,000 | $0 | $367,286 | $367,286 |
| 2016 | $189,125 | $120,000 | $0 | $309,125 | $309,125 |
| 2015 | $191,755 | $100,000 | $0 | $291,755 | $291,755 |
| 2014 | $194,383 | $100,000 | $0 | $294,383 | $294,383 |
| 2013 | $197,010 | $90,000 | $0 | $287,010 | $287,010 |
| 2012 | $199,637 | $106,250 | $0 | $305,887 | $305,887 |
| 2011 | $202,266 | $125,000 | $0 | $327,266 | $327,266 |
| 2010 | $235,279 | $125,000 | $0 | $360,279 | $360,279 |
| 2009 | $244,039 | $135,000 | $0 | $379,039 | $379,039 |
| 2008 | $252,136 | $155,000 | $0 | $407,136 | $407,136 |
| 2007 | $254,974 | $99,825 | $0 | $354,799 | $354,799 |
Deed and Sales History
| 1 | 03/31/2023 | WD | Warranty Deed | BROWN, ADAM J | ASKEW, CAROLYN | | | $0.00 | 56346 | 4558563 |
| 2 | 03/31/2023 | WD | Warranty Deed | BROWN, ADAM J | ASKEW, CAROLYN | | | $600,000.00 | 56288 | 4558346 |
| 3 | 08/02/2016 | ESTSEPPROP | Establish Separate Property | BROWN, ADAM J | BROWN, ADAM J | | | $0.00 | 25506 | 4404370 |
| 4 | 08/01/2016 | WD | Warranty Deed | WALDRON, JOHN V | BROWN, ADAM J | | | $414,900.00 | 25505 | 4404369 |
| 5 | 08/01/1995 | WD | Warranty Deed | WALDRON, JOHN V | WALDRON, JOHN V | | | $0.00 | 52906 | 95013481 |
| 6 | 06/01/1988 | WD | Warranty Deed | WALDRON, VINTON J | WALDRON, JOHN V | | | $119,000.00 | 82023 | 88007497 |
| 7 | 10/01/1983 | WD | Warranty Deed | PETTET, J L | WALDRON, VINTON J | | | $49,000.00 | 33053 | 416291 |
| 8 | 01/01/1900 | OTHER | Other - Misc. Documents | Unknown | PETTET, J L | | | $0.00 | 0 | 0 |
Payout Agreement
| No payout information available.. |