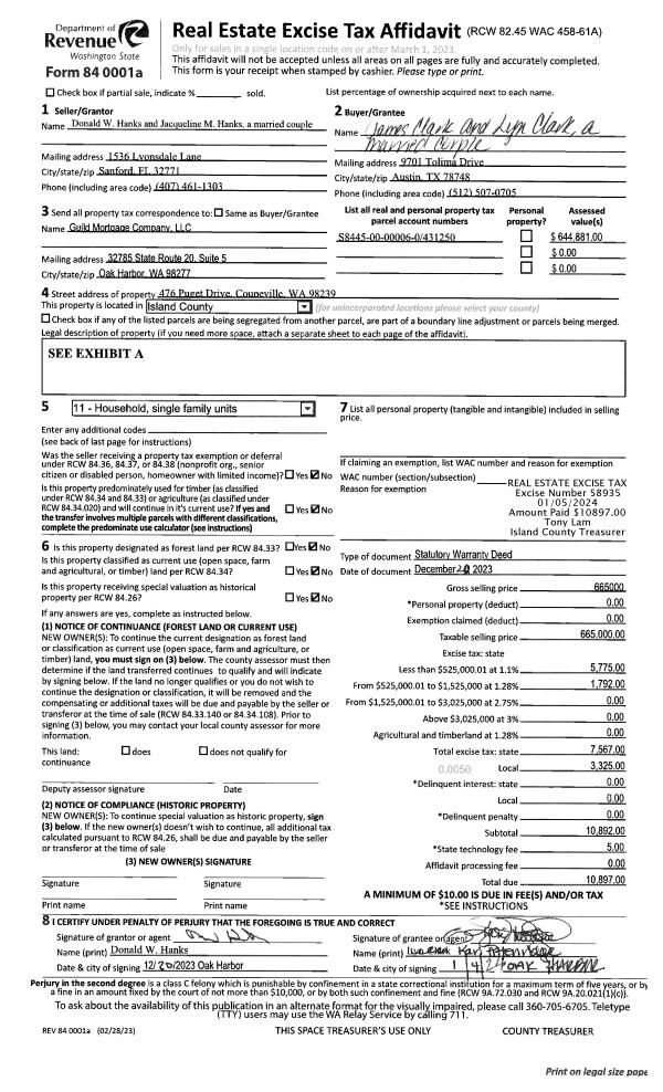
Property
Account |
| Property ID: | 106520 | Abbreviated Legal Description: | 6 - W/2 OF NE NW SE TGW & SUBJ TO EZ |
| Geographic ID: | R23329-234-3440 | Agent Code: | |
| Type: | Real | | |
| Tax Area: | 112 - APPRAISER-OH Schl Dist, outside OH, improved, greater than 1 acre | Land Use Code | 11 |
| Open Space: | N | DFL | N |
| Historic Property: | N | Remodel Property: | N |
| Multi-Family Redevelopment: | N | | |
| Township: | 33 | Section: | 29 |
| Range: | R2 |
Location |
| Address: | 665 JEFFREY LN OAK HARBOR, WA 98277 | Mapsco: | |
| Neighborhood: | Cycle 6 | Map ID: | 636 |
| Neighborhood CD: | 6 |
Owner |
| Name: | JULIUS, GLEN | Owner ID: | 312024 |
| Mailing Address: | 670 JEFFREY LN OAK HARBOR, WA 98277 | % Ownership: | 100.0000000000% |
| | | Exemptions: | |
Taxes and Assessment Details
Values
| (+) Improvement Homesite Value: | + | $0 | |
| (+) Improvement Non-Homesite Value: | + | $47,095 | |
| (+) Land Homesite Value: | + | $0 | |
| (+) Land Non-Homesite Value: | + | $300,000 | |
| (+) Curr Use (HS): | + | $0 | $0 |
| (+) Curr Use (NHS): | + | $0 | $0 |
| | | -------------------------- | |
| (=) Market Value: | = | $347,095 | |
| (–) Productivity Loss: | – | $0 | |
| | | -------------------------- | |
| (=) Subtotal: | = | $347,095 | |
| (+) Senior Appraised Value: | + | $0 | |
| (+) Non-Senior Appraised Value: | + | $347,095 | |
| | | -------------------------- | |
| (=) Total Appraised Value: | = | $347,095 | |
| (–) Senior Exemption Loss: | – | $0 | |
| (–) Exemption Loss: | – | $0 | |
| | | -------------------------- | |
| (=) Taxable Value: | = | $347,095 | |
Taxing Jurisdiction
| Owner: | JULIUS, GLEN | | |
| % Ownership: | 100.0000000000% | | |
| Total Value: | $347,095 | | |
| Tax Area: | 112 - APPRAISER-OH Schl Dist, outside OH, improved, greater than 1 acre |
| CF | Conservation Futures | 0.0316035091 | $347,095 | $347,095 | $10.97 | | |
| CEM1 | Cemetery #1 | 0.0040320932 | $347,095 | $347,095 | $1.40 | | |
| FIRE2 | Fire & Rescue Dist #2 N Whidbey GEN | 0.5475949600 | $347,095 | $347,095 | $190.07 | | |
| HOBOND | Hospital BOND | 0.1910887512 | $347,095 | $347,095 | $66.33 | | |
| HOGEN | Hospital GEN | 0.3902502903 | $347,095 | $347,095 | $135.45 | | |
| CE | County Current Expense | 0.3708482477 | $347,095 | $347,095 | $128.72 | | |
| CR | County Roads | 0.4584763726 | $347,095 | $347,095 | $159.13 | | |
| ISLANDEMS | Hospital GEN (EMS) | 0.5000000000 | $347,095 | $347,095 | $173.55 | | |
| LIB | Library Sno-Isle GEN | 0.3153421757 | $347,095 | $347,095 | $109.45 | | |
| NWHIDPRMT | P & R N Whidbey GEN | 0.2004466701 | $347,095 | $347,095 | $69.57 | | |
| SCH201MO | School 201 Enrichment | 1.8559231640 | $347,095 | $347,095 | $644.18 | | |
| ST | State School | 1.3035497053 | $347,095 | $347,095 | $452.46 | | |
| ST2 | State School Part 2 | 0.8169543533 | $347,095 | $347,095 | $283.56 | | |
| | Total Tax Rate: | 6.9861102925 | | | | | |
| | | | | Taxes w/Current Exemptions: | $2,424.84 | | |
| | | | | Taxes w/o Exemptions: | $2,424.84 | | |
Improvement / Building
| Improvement #1: | MANUFACTURED HOME | State Code: | Y | 672.0 sqft | Value: | $47,095 |
| Bathrooms: | 0 | Bedrooms: | 0 | | Ceiling: | PLASTER PAINTED | Cooling: | EVAP NO DUCT | | Exterior Wall/Cover: | VINYL | Floor Covering: | CARPET 100% | | Floor Structure: | SLAB ON GRADE | Foundation: | SLAB | | Heating: | FHA ELECTRIC | Interior Finish: | PLASTER | | Plumbing Fixture Cnt: | 1 | Roof Slope: | FLAT | | Roof Structure/Cover: | CJ ALUMINIUM HEAVY |   |   |
|
| | Type | Description | Class CD | Sub Class CD | Year Built | Area |
| | BAS | BASE/MAIN FLOOR | 3 | 0 | 1974 | 672.0 |
| | OWP | OPEN WOOD PORCH W/STEPS | 3 | 0 | 1974 | 224.0 |
| | UTY | STORAGE/UTILITY | 3 | 0 | 1974 | 1200.0 |
Sketch
Property Image
Land
| 1 | 32 | AC (03.01-09.99) | 5.0000 | 0.00 | 0.00 | 0.00 | 1.00 | $300,000 | $0 |
Roll Value History
| 2026 | N/A | N/A | N/A | N/A | N/A |
| 2025 | $47,095 | $300,000 | $0 | $347,095 | $347,095 |
| 2024 | $48,585 | $280,000 | $0 | $328,585 | $328,585 |
| 2023 | $50,075 | $270,000 | $0 | $320,075 | $320,075 |
| 2022 | $25,001 | $240,000 | $0 | $265,001 | $265,001 |
| 2021 | $23,502 | $160,000 | $0 | $183,502 | $183,502 |
| 2020 | $24,458 | $140,000 | $0 | $164,458 | $164,458 |
| 2019 | $21,264 | $200,000 | $0 | $221,264 | $221,264 |
| 2018 | $22,042 | $170,000 | $0 | $192,042 | $192,042 |
| 2017 | $22,820 | $150,000 | $0 | $172,820 | $172,820 |
| 2016 | $12,062 | $140,000 | $0 | $152,062 | $152,062 |
| 2015 | $12,840 | $120,000 | $0 | $132,840 | $132,840 |
| 2014 | $13,619 | $100,000 | $0 | $113,619 | $113,619 |
| 2013 | $14,785 | $108,000 | $0 | $122,785 | $122,785 |
| 2012 | $15,564 | $99,000 | $0 | $114,564 | $114,564 |
| 2011 | $16,342 | $110,000 | $0 | $126,342 | $126,342 |
| 2010 | $33,884 | $110,000 | $0 | $143,884 | $143,884 |
| 2009 | $52,308 | $125,000 | $0 | $177,308 | $177,308 |
| 2008 | $55,119 | $145,000 | $0 | $200,119 | $200,119 |
| 2007 | $57,240 | $110,938 | $0 | $168,178 | $168,178 |
Deed and Sales History
| 1 | 04/12/2024 | WD | Warranty Deed | HERBERT, NANCY MILLER | JULIUS, GLEN | | | $410,000.00 | 59689 | 4571403 |
| 2 | 08/12/2023 | PRD | Personal Representatives Deed | MILLER, CHIEKO | HERBERT, NANCY MILLER | | | $0.00 | 57930 | 4564491 |
| 3 | 05/12/2008 | PRD | Personal Representatives Deed | MILLER, HILTON D | MILLER, CHIEKO | | | $0.00 | 81214 | 4228569 |
| 4 | 11/09/1998 | OTHER | Other - Misc. Documents | MILLER, HILTON D | MILLER, HILTON D | | | $0.00 | 84481 | 0 |
| 5 | 11/06/1998 | QCD | Quit Claim Deed | MORTON, MICHAEL P | MILLER, HILTON D | | | $0.00 | 84480 | 98024382 |
| 6 | 11/01/1996 | OTHER | Other - Misc. Documents | MORTON, MICHAEL P | MORTON, MICHAEL P | | | $13,746.00 | 64322 | 0 |
| 7 | 11/01/1996 | WD | Warranty Deed | MORTON, MICHAEL P | MORTON, MICHAEL P | | | $71,254.00 | 64192 | 96020435 |
| 8 | 11/01/1996 | ESTSEPPROP | Establish Separate Property | MORTON, MICHAEL P | MORTON, MICHAEL P | | | $0.00 | 64193 | 96020436 |
| 9 | 11/01/1996 | WD | Warranty Deed | MELLISH, RAYMOND C | MORTON, MICHAEL P | | | $0.00 | 73662 | 97017408 |
| 10 | 01/01/1900 | OTHER | Other - Misc. Documents | MELLISH, RAY | MELLISH, RAYMOND C | | | $0.00 | 0 | 0 |
| 11 | 01/01/1900 | OTHER | Other - Misc. Documents | Unknown | MELLISH, RAY | | | $0.00 | 0 | 0 |
Payout Agreement
| No payout information available.. |