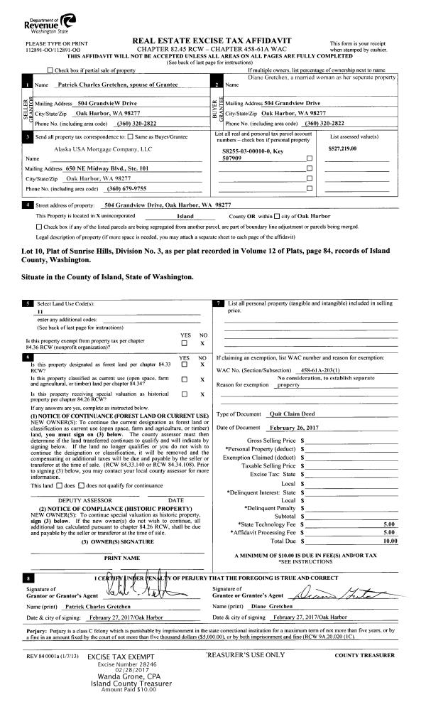
Property
Account |
| Property ID: | 106735 | Abbreviated Legal Description: | S/2 W/2 NE NE EX N330' TGW & SUB TO EZ |
| Geographic ID: | R23329-417-4310 | Agent Code: | |
| Type: | Real | | |
| Tax Area: | 112 - APPRAISER-OH Schl Dist, outside OH, improved, greater than 1 acre | Land Use Code | 11 |
| Open Space: | N | DFL | N |
| Historic Property: | N | Remodel Property: | N |
| Multi-Family Redevelopment: | N | | |
| Township: | 33 | Section: | 29 |
| Range: | R2 |
Location |
| Address: | 725 CARNATION LN OAK HARBOR, WA 98277 | Mapsco: | |
| Neighborhood: | Cycle 6 | Map ID: | 638 |
| Neighborhood CD: | 6 |
Owner |
| Name: | ZOOK, EVERETT T | Owner ID: | 182697 |
| Mailing Address: | WENDY M ZOOK 725 CARNATION LN OAK HARBOR, WA 98277 | % Ownership: | 100.0000000000% |
| | | Exemptions: | |
Taxes and Assessment Details
Values
| (+) Improvement Homesite Value: | + | $0 | |
| (+) Improvement Non-Homesite Value: | + | $421,874 | |
| (+) Land Homesite Value: | + | $0 | |
| (+) Land Non-Homesite Value: | + | $300,000 | |
| (+) Curr Use (HS): | + | $0 | $0 |
| (+) Curr Use (NHS): | + | $0 | $0 |
| | | -------------------------- | |
| (=) Market Value: | = | $721,874 | |
| (–) Productivity Loss: | – | $0 | |
| | | -------------------------- | |
| (=) Subtotal: | = | $721,874 | |
| (+) Senior Appraised Value: | + | $0 | |
| (+) Non-Senior Appraised Value: | + | $721,874 | |
| | | -------------------------- | |
| (=) Total Appraised Value: | = | $721,874 | |
| (–) Senior Exemption Loss: | – | $0 | |
| (–) Exemption Loss: | – | $0 | |
| | | -------------------------- | |
| (=) Taxable Value: | = | $721,874 | |
Taxing Jurisdiction
| Owner: | ZOOK, EVERETT T | | |
| % Ownership: | 100.0000000000% | | |
| Total Value: | $721,874 | | |
| Tax Area: | 112 - APPRAISER-OH Schl Dist, outside OH, improved, greater than 1 acre |
| CF | Conservation Futures | 0.0316035091 | $721,874 | $721,874 | $22.81 | | |
| CEM1 | Cemetery #1 | 0.0040320932 | $721,874 | $721,874 | $2.91 | | |
| FIRE2 | Fire & Rescue Dist #2 N Whidbey GEN | 0.5475949600 | $721,874 | $721,874 | $395.29 | | |
| HOBOND | Hospital BOND | 0.1910887512 | $721,874 | $721,874 | $137.94 | | |
| HOGEN | Hospital GEN | 0.3902502903 | $721,874 | $721,874 | $281.71 | | |
| CE | County Current Expense | 0.3708482477 | $721,874 | $721,874 | $267.71 | | |
| CR | County Roads | 0.4584763726 | $721,874 | $721,874 | $330.96 | | |
| ISLANDEMS | Hospital GEN (EMS) | 0.5000000000 | $721,874 | $721,874 | $360.94 | | |
| LIB | Library Sno-Isle GEN | 0.3153421757 | $721,874 | $721,874 | $227.64 | | |
| NWHIDPRMT | P & R N Whidbey GEN | 0.2004466701 | $721,874 | $721,874 | $144.70 | | |
| SCH201MO | School 201 Enrichment | 1.8559231640 | $721,874 | $721,874 | $1,339.74 | | |
| ST | State School | 1.3035497053 | $721,874 | $721,874 | $941.00 | | |
| ST2 | State School Part 2 | 0.8169543533 | $721,874 | $721,874 | $589.74 | | |
| | Total Tax Rate: | 6.9861102925 | | | | | |
| | | | | Taxes w/Current Exemptions: | $5,043.09 | | |
| | | | | Taxes w/o Exemptions: | $5,043.09 | | |
Improvement / Building
| Improvement #1: | RESIDENTIAL | State Code: | Y | 1703.0 sqft | Value: | $421,874 |
| Bathrooms: | 2.5 | Bedrooms: | 3 | | Ceiling: | DRY WALL SPRAYED | Exterior Wall/Cover: | CEMENT FIBER | | Floor Covering: | CARPET/VINYL 80-20 | Floor Structure: | SLAB ON GRADE | | Foundation: | SLAB | Heating: | RADIANT FLOOR | | Interior Finish: | DRYWALL PAINT | Plumbing Fixture Cnt: | 11 | | Roof Slope: | 12" IN 12" | Roof Structure/Cover: | CJ ASPHALT |
|
| | Type | Description | Class CD | Sub Class CD | Year Built | Area |
| | BAS | BASE/MAIN FLOOR | 4 | 0 | 2001 | 1430.0 |
| | OP4 | OPEN PORCH W/CEILING-ROOF | 4 | 0 | 2001 | 243.0 |
| | OP4 | OPEN PORCH W/CEILING-ROOF | 4 | 0 | 2001 | 13.3 |
| | OP4 | OPEN PORCH W/CEILING-ROOF | 4 | 0 | 2001 | 112.0 |
| | OP4 | OPEN PORCH W/CEILING-ROOF | 4 | 0 | 2001 | 107.2 |
| | DGR | DETACHED GARAGE | 4 | 0 | 2001 | 576.0 |
| | UTY | STORAGE/UTILITY | 4 | 0 | 2001 | 16.0 |
| | UPS | UPPER STORY | 4 | 0 | 2001 | 273.0 |
| | UTY | STORAGE/UTILITY | 4 | 0 | 2001 | 0.0 |
Sketch
Property Image
Land
| 1 | 32 | AC (03.01-09.99) | 5.0000 | 0.00 | 0.00 | 0.00 | 1.00 | $300,000 | $0 |
Roll Value History
| 2026 | N/A | N/A | N/A | N/A | N/A |
| 2025 | $421,874 | $300,000 | $0 | $721,874 | $721,874 |
| 2024 | $426,498 | $280,000 | $0 | $706,498 | $706,498 |
| 2023 | $431,121 | $270,000 | $0 | $701,121 | $701,121 |
| 2022 | $370,745 | $240,000 | $0 | $610,745 | $610,745 |
| 2021 | $330,104 | $160,000 | $0 | $490,104 | $490,104 |
| 2020 | $322,083 | $140,000 | $0 | $462,083 | $462,083 |
| 2019 | $245,283 | $200,000 | $0 | $445,283 | $445,283 |
| 2018 | $245,895 | $170,000 | $0 | $415,895 | $415,895 |
| 2017 | $243,327 | $150,000 | $0 | $393,327 | $393,327 |
| 2016 | $251,171 | $140,000 | $0 | $391,171 | $391,171 |
| 2015 | $253,735 | $120,000 | $0 | $373,735 | $373,735 |
| 2014 | $256,296 | $100,000 | $0 | $356,296 | $356,296 |
| 2013 | $258,855 | $108,000 | $0 | $366,855 | $366,855 |
| 2012 | $261,417 | $99,000 | $0 | $360,417 | $360,417 |
| 2011 | $263,979 | $110,000 | $0 | $373,979 | $373,979 |
| 2010 | $271,480 | $110,000 | $0 | $381,480 | $381,480 |
| 2009 | $282,585 | $125,000 | $0 | $407,585 | $407,585 |
| 2008 | $289,261 | $145,000 | $0 | $434,261 | $434,261 |
| 2007 | $293,733 | $117,150 | $0 | $410,883 | $410,883 |
Deed and Sales History
| 1 | 07/03/2009 | TRUSTEED | Trustee's Deed | US BANK NATIONAL ASSOCIATION, | ZOOK, EVERETT T | | | $330,000.00 | 91732 | 4257398 |
| 2 | 04/22/2009 | TRUSTEED | Trustee's Deed | ROSEN, JACK J | US BANK NATIONAL ASSOCIATION, | | | $296,650.00 | 90891 | 4249681 |
| 3 | 03/31/2006 | 5 | DNU - Marriage License/Name Change | ROSEN, JACK J | ROSEN, JACK J | | | $0.00 | 61672 | 4167921 |
| 4 | 12/17/2001 | ESTSEPPROP | Establish Separate Property | ROSEN, CATHERINE | ROSEN, JACK J | | | $0.00 | 20085 | 4007639 |
| 5 | 02/02/2000 | WD | Warranty Deed | MORGAN, WILLIAM P | ROSEN, CATHERINE | | | $75,000.00 | 469 | 20002394 |
| 6 | 04/01/1994 | WD | Warranty Deed | WHITE, DOUGLAS A | MORGAN, WILLIAM P | | | $14,000.00 | 41730 | 94010265 |
| 7 | 05/01/1979 | OTHER | Other - Misc. Documents | Unknown | WHITE, DOUGLAS A | | | $0.00 | 92105 | 351960 |
Payout Agreement
| No payout information available.. |