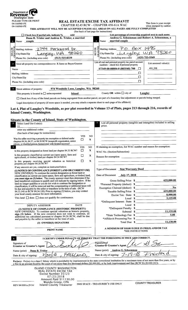
Property
Account |
| Property ID: | 106744 | Abbreviated Legal Description: | 5.0000 Acres ins Section 29s Township 33s Range R2s LOT B BLA 165-18 AF# 4445106 TL 50 - SW NE NW;s |
| Geographic ID: | R23329-436-1680 | Agent Code: | |
| Type: | Real | | |
| Tax Area: | 119 - APPRAISER-OH Schl Dist, outside OH, vacant & 50 acres or less | Land Use Code | 91 |
| Open Space: | N | DFL | N |
| Historic Property: | N | Remodel Property: | N |
| Multi-Family Redevelopment: | N | | |
| Township: | 33 | Section: | 29 |
| Range: | R2 |
Location |
| Address: | 500 PIPER TRL OAK HARBOR, WA 98277 | Mapsco: | |
| Neighborhood: | Cycle 6 | Map ID: | 637 |
| Neighborhood CD: | 6 |
Owner |
| Name: | ROMANO, JOHN DAVID | Owner ID: | 314837 |
| Mailing Address: | 2180 NE REGATTA OAK HARBOR, WA 98277 | % Ownership: | 100.0000000000% |
| | | Exemptions: | |
Taxes and Assessment Details
Values
| (+) Improvement Homesite Value: | + | $0 | |
| (+) Improvement Non-Homesite Value: | + | $0 | |
| (+) Land Homesite Value: | + | $0 | |
| (+) Land Non-Homesite Value: | + | $170,000 | |
| (+) Curr Use (HS): | + | $0 | $0 |
| (+) Curr Use (NHS): | + | $0 | $0 |
| | | -------------------------- | |
| (=) Market Value: | = | $170,000 | |
| (–) Productivity Loss: | – | $0 | |
| | | -------------------------- | |
| (=) Subtotal: | = | $170,000 | |
| (+) Senior Appraised Value: | + | $0 | |
| (+) Non-Senior Appraised Value: | + | $170,000 | |
| | | -------------------------- | |
| (=) Total Appraised Value: | = | $170,000 | |
| (–) Senior Exemption Loss: | – | $0 | |
| (–) Exemption Loss: | – | $0 | |
| | | -------------------------- | |
| (=) Taxable Value: | = | $170,000 | |
Taxing Jurisdiction
| Owner: | ROMANO, JOHN DAVID | | |
| % Ownership: | 100.0000000000% | | |
| Total Value: | $170,000 | | |
| Tax Area: | 119 - APPRAISER-OH Schl Dist, outside OH, vacant & 50 acres or less |
| CF | Conservation Futures | 0.0316035091 | $170,000 | $170,000 | $5.37 | | |
| CEM1 | Cemetery #1 | 0.0040320932 | $170,000 | $170,000 | $0.69 | | |
| HOBOND | Hospital BOND | 0.1910887512 | $170,000 | $170,000 | $32.49 | | |
| HOGEN | Hospital GEN | 0.3902502903 | $170,000 | $170,000 | $66.34 | | |
| CE | County Current Expense | 0.3708482477 | $170,000 | $170,000 | $63.04 | | |
| CR | County Roads | 0.4584763726 | $170,000 | $170,000 | $77.94 | | |
| ISLANDEMS | Hospital GEN (EMS) | 0.5000000000 | $170,000 | $170,000 | $85.00 | | |
| LIB | Library Sno-Isle GEN | 0.3153421757 | $170,000 | $170,000 | $53.61 | | |
| NWHIDPRMT | P & R N Whidbey GEN | 0.2004466701 | $170,000 | $170,000 | $34.08 | | |
| SCH201MO | School 201 Enrichment | 1.8559231640 | $170,000 | $170,000 | $315.51 | | |
| ST | State School | 1.3035497053 | $170,000 | $170,000 | $221.60 | | |
| ST2 | State School Part 2 | 0.8169543533 | $170,000 | $170,000 | $138.88 | | |
| | Total Tax Rate: | 6.4385153325 | | | | | |
| | | | | Taxes w/Current Exemptions: | $1,094.55 | | |
| | | | | Taxes w/o Exemptions: | $1,094.55 | | |
Improvement / Building
Sketch
| No sketches available for this property. |
Property Image
Land
| 1 | 32 | AC (03.01-09.99) | 5.0000 | 217800.00 | 0.00 | 0.00 | 1.00 | $170,000 | $0 |
Roll Value History
| 2026 | N/A | N/A | N/A | N/A | N/A |
| 2025 | $0 | $170,000 | $0 | $170,000 | $170,000 |
| 2024 | $0 | $150,000 | $0 | $150,000 | $150,000 |
| 2023 | $0 | $140,000 | $0 | $140,000 | $140,000 |
| 2022 | $0 | $100,000 | $0 | $100,000 | $100,000 |
| 2021 | $0 | $100,000 | $0 | $100,000 | $100,000 |
| 2020 | $0 | $90,000 | $0 | $90,000 | $90,000 |
| 2019 | $0 | $110,000 | $0 | $110,000 | $110,000 |
| 2018 | $0 | $140,000 | $0 | $140,000 | $140,000 |
| 2017 | $0 | $130,000 | $0 | $130,000 | $130,000 |
| 2016 | $0 | $130,000 | $0 | $130,000 | $130,000 |
| 2015 | $0 | $130,000 | $0 | $130,000 | $130,000 |
| 2014 | $0 | $130,000 | $0 | $130,000 | $130,000 |
| 2013 | $0 | $130,000 | $0 | $130,000 | $130,000 |
| 2012 | $0 | $100,000 | $0 | $100,000 | $100,000 |
| 2011 | $0 | $100,000 | $0 | $100,000 | $100,000 |
| 2010 | $0 | $100,000 | $0 | $100,000 | $100,000 |
| 2009 | $0 | $200,000 | $0 | $200,000 | $200,000 |
| 2008 | $0 | $160,000 | $0 | $160,000 | $160,000 |
| 2007 | $0 | $80,250 | $0 | $80,250 | $80,250 |
Deed and Sales History
| 1 | 12/11/2024 | WD | Warranty Deed | DAVIS, JILL LORRAINE | ROMANO, JOHN DAVID | | | $150,000.00 | 62061 | 4580348 |
| 2 | 10/03/2019 | WD | Warranty Deed | HARKNESS, RICHARD L | DAVIS, JILL LORRAINE | | | $60,000.00 | 40586 | 4472905 |
| 3 | 03/06/2018 | WD | Warranty Deed | STEIN, GERDA IRENE | HARKNESS, RICHARD L | | | $95,000.00 | 33311 | 4440857 |
| 4 | 04/19/2006 | 5 | DNU - Marriage License/Name Change | Unknown | STEIN, GERDA IRENE | | | $0.00 | 70907 | 0 |
Payout Agreement
| No payout information available.. |