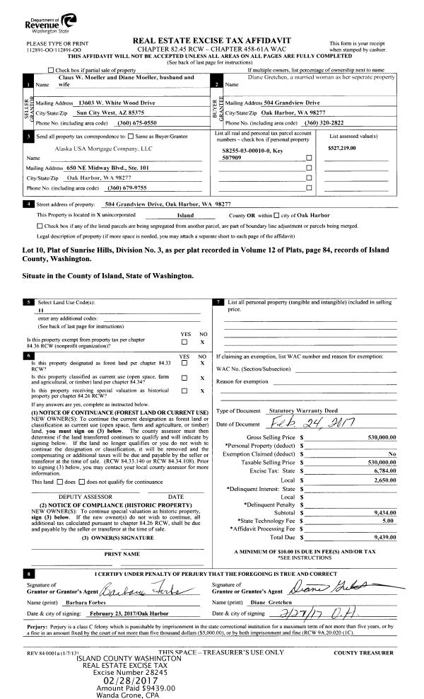
Property
Account |
| Property ID: | 106806 | Abbreviated Legal Description: | N/2 S/2 W/2 NE NE TGW & SUB EAS |
| Geographic ID: | R23329-449-4310 | Agent Code: | |
| Type: | Real | | |
| Tax Area: | 112 - APPRAISER-OH Schl Dist, outside OH, improved, greater than 1 acre | Land Use Code | 11 |
| Open Space: | N | DFL | N |
| Historic Property: | N | Remodel Property: | N |
| Multi-Family Redevelopment: | N | | |
| Township: | 33 | Section: | 29 |
| Range: | R2 |
Location |
| Address: | 663 CARNATION LN OAK HARBOR, WA 98277 | Mapsco: | |
| Neighborhood: | Cycle 6 | Map ID: | 638 |
| Neighborhood CD: | 6 |
Owner |
| Name: | PAPKE, GARY | Owner ID: | 286945 |
| Mailing Address: | EILEEN PAPKE 663 CARNATION LN OAK HARBOR, WA 98277 | % Ownership: | 100.0000000000% |
| | | Exemptions: | |
Taxes and Assessment Details
Values
| (+) Improvement Homesite Value: | + | $0 | |
| (+) Improvement Non-Homesite Value: | + | $235,548 | |
| (+) Land Homesite Value: | + | $0 | |
| (+) Land Non-Homesite Value: | + | $300,000 | |
| (+) Curr Use (HS): | + | $0 | $0 |
| (+) Curr Use (NHS): | + | $0 | $0 |
| | | -------------------------- | |
| (=) Market Value: | = | $535,548 | |
| (–) Productivity Loss: | – | $0 | |
| | | -------------------------- | |
| (=) Subtotal: | = | $535,548 | |
| (+) Senior Appraised Value: | + | $0 | |
| (+) Non-Senior Appraised Value: | + | $535,548 | |
| | | -------------------------- | |
| (=) Total Appraised Value: | = | $535,548 | |
| (–) Senior Exemption Loss: | – | $0 | |
| (–) Exemption Loss: | – | $0 | |
| | | -------------------------- | |
| (=) Taxable Value: | = | $535,548 | |
Taxing Jurisdiction
| Owner: | PAPKE, GARY | | |
| % Ownership: | 100.0000000000% | | |
| Total Value: | $535,548 | | |
| Tax Area: | 112 - APPRAISER-OH Schl Dist, outside OH, improved, greater than 1 acre |
| CF | Conservation Futures | 0.0316035091 | $535,548 | $535,548 | $16.93 | | |
| CEM1 | Cemetery #1 | 0.0040320932 | $535,548 | $535,548 | $2.16 | | |
| FIRE2 | Fire & Rescue Dist #2 N Whidbey GEN | 0.5475949600 | $535,548 | $535,548 | $293.26 | | |
| HOBOND | Hospital BOND | 0.1910887512 | $535,548 | $535,548 | $102.34 | | |
| HOGEN | Hospital GEN | 0.3902502903 | $535,548 | $535,548 | $209.00 | | |
| CE | County Current Expense | 0.3708482477 | $535,548 | $535,548 | $198.61 | | |
| CR | County Roads | 0.4584763726 | $535,548 | $535,548 | $245.54 | | |
| ISLANDEMS | Hospital GEN (EMS) | 0.5000000000 | $535,548 | $535,548 | $267.77 | | |
| LIB | Library Sno-Isle GEN | 0.3153421757 | $535,548 | $535,548 | $168.88 | | |
| NWHIDPRMT | P & R N Whidbey GEN | 0.2004466701 | $535,548 | $535,548 | $107.35 | | |
| SCH201MO | School 201 Enrichment | 1.8559231640 | $535,548 | $535,548 | $993.94 | | |
| ST | State School | 1.3035497053 | $535,548 | $535,548 | $698.11 | | |
| ST2 | State School Part 2 | 0.8169543533 | $535,548 | $535,548 | $437.52 | | |
| | Total Tax Rate: | 6.9861102925 | | | | | |
| | | | | Taxes w/Current Exemptions: | $3,741.41 | | |
| | | | | Taxes w/o Exemptions: | $3,741.41 | | |
Improvement / Building
| Improvement #1: | MANUFACTURED HOME | State Code: | Y | 2213.4 sqft | Value: | $235,548 |
| Bathrooms: | 0 | Bedrooms: | 0 | | Ceiling: | PLASTER PAINTED | Cooling: | EVAP NO DUCT | | Exterior Wall/Cover: | VINYL | Floor Covering: | CARPET 100% | | Floor Structure: | SLAB ON GRADE | Foundation: | SLAB | | Heating: | FHA ELECTRIC | Interior Finish: | PLASTER | | Plumbing Fixture Cnt: | 1 | Roof Slope: | FLAT | | Roof Structure/Cover: | CJ ASPHALT |   |   |
|
| | Type | Description | Class CD | Sub Class CD | Year Built | Area |
| | BAS | BASE/MAIN FLOOR | 5 | 0 | 2002 | 2213.4 |
| | OWC | OPEN WOOD PORCH W/STEPS/ROOF/C | 5 | 0 | 2002 | 373.2 |
| | DGR | DETACHED GARAGE | 5 | 0 | 2002 | 768.0 |
| | OWP | OPEN WOOD PORCH W/STEPS | 5 | 0 | 2002 | 18.0 |
Sketch
Property Image
Land
| 1 | 32 | AC (03.01-09.99) | 5.0000 | 0.00 | 0.00 | 0.00 | 1.00 | $300,000 | $0 |
Roll Value History
| 2026 | N/A | N/A | N/A | N/A | N/A |
| 2025 | $235,548 | $300,000 | $0 | $535,548 | $535,548 |
| 2024 | $241,181 | $280,000 | $0 | $521,181 | $521,181 |
| 2023 | $217,054 | $270,000 | $0 | $487,054 | $487,054 |
| 2022 | $159,295 | $240,000 | $0 | $399,295 | $399,295 |
| 2021 | $144,121 | $160,000 | $0 | $304,121 | $304,121 |
| 2020 | $143,541 | $140,000 | $0 | $283,541 | $283,541 |
| 2019 | $119,465 | $200,000 | $0 | $319,465 | $319,465 |
| 2018 | $121,893 | $170,000 | $0 | $291,893 | $291,893 |
| 2017 | $123,107 | $150,000 | $0 | $273,107 | $273,107 |
| 2016 | $123,089 | $140,000 | $0 | $263,089 | $263,089 |
| 2015 | $125,635 | $120,000 | $0 | $245,635 | $245,635 |
| 2014 | $128,180 | $100,000 | $0 | $228,180 | $228,180 |
| 2013 | $129,454 | $108,000 | $0 | $237,454 | $237,454 |
| 2012 | $130,726 | $93,500 | $0 | $224,226 | $224,226 |
| 2011 | $133,271 | $110,000 | $0 | $243,271 | $243,271 |
| 2010 | $171,757 | $110,000 | $0 | $281,757 | $281,757 |
| 2009 | $194,857 | $125,000 | $0 | $319,857 | $319,857 |
| 2008 | $197,458 | $145,000 | $0 | $342,458 | $342,458 |
| 2007 | $200,058 | $110,938 | $0 | $310,996 | $310,996 |
Deed and Sales History
| 1 | 09/11/2018 | WD | Warranty Deed | KRUEGER, SHELDON A | PAPKE, GARY | | | $355,000.00 | 35934 | 4451900 |
| 2 | 06/17/2002 | WD | Warranty Deed | GARNER, WILLIAM H | KRUEGER, SHELDON A | | | $49,500.00 | 22456 | 4024015 |
| 3 | 10/01/1982 | REC | Real Estate Contract | WHITE, KATHLEEN N | GARNER, WILLIAM H | | | $17,000.00 | 22601 | 402212 |
| 4 | 05/01/1979 | OTHER | Other - Misc. Documents | Unknown | WHITE, KATHLEEN N | | | $0.00 | 92103 | 351958 |
Payout Agreement
| No payout information available.. |