Property
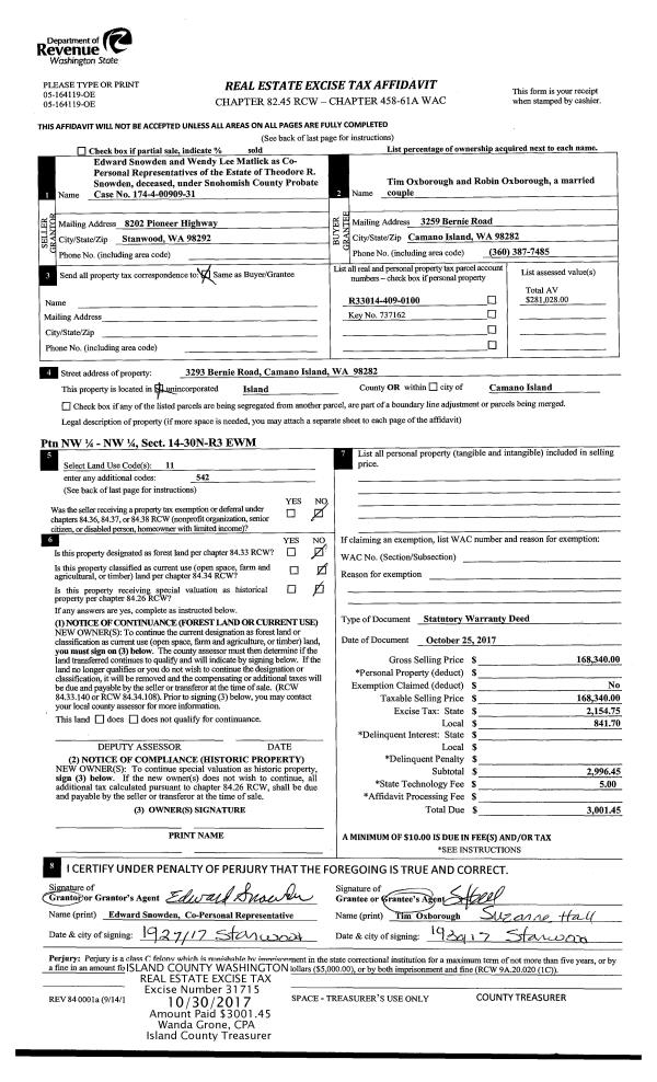
Account |
| Property ID: | 106977 | Abbreviated Legal Description: | 6 A M MILLER D C -S330' OF N2310' E660' OF SD DC W OF RD |
| Geographic ID: | R23330-037-1130 | Agent Code: | |
| Type: | Real | | |
| Tax Area: | 112 - APPRAISER-OH Schl Dist, outside OH, improved, greater than 1 acre | Land Use Code | 11 |
| Open Space: | N | DFL | N |
| Historic Property: | N | Remodel Property: | N |
| Multi-Family Redevelopment: | N | | |
| Township: | 33 | Section: | 30 |
| Range: | R2 |
Location |
| Address: | 2837 HUNT RD OAK HARBOR, WA 98277 | Mapsco: | |
| Neighborhood: | Cycle 6 | Map ID: | 639 |
| Neighborhood CD: | 6 |
Owner |
| Name: | ANKRUM, ANDREW JOSEPH | Owner ID: | 308159 |
| Mailing Address: | 7924 212TH ST SW SUITE 208 EDMONDS, WA 98026 | % Ownership: | 100.0000000000% |
| | | Exemptions: | |
Taxes and Assessment Details
Values
| (+) Improvement Homesite Value: | + | $0 | |
| (+) Improvement Non-Homesite Value: | + | $183,773 | |
| (+) Land Homesite Value: | + | $0 | |
| (+) Land Non-Homesite Value: | + | $300,000 | |
| (+) Curr Use (HS): | + | $0 | $0 |
| (+) Curr Use (NHS): | + | $0 | $0 |
| | | -------------------------- | |
| (=) Market Value: | = | $483,773 | |
| (–) Productivity Loss: | – | $0 | |
| | | -------------------------- | |
| (=) Subtotal: | = | $483,773 | |
| (+) Senior Appraised Value: | + | $0 | |
| (+) Non-Senior Appraised Value: | + | $483,773 | |
| | | -------------------------- | |
| (=) Total Appraised Value: | = | $483,773 | |
| (–) Senior Exemption Loss: | – | $0 | |
| (–) Exemption Loss: | – | $0 | |
| | | -------------------------- | |
| (=) Taxable Value: | = | $483,773 | |
Taxing Jurisdiction
| Owner: | ANKRUM, ANDREW JOSEPH | | |
| % Ownership: | 100.0000000000% | | |
| Total Value: | $483,773 | | |
| Tax Area: | 112 - APPRAISER-OH Schl Dist, outside OH, improved, greater than 1 acre |
| CF | Conservation Futures | 0.0316035091 | $483,773 | $483,773 | $15.29 | | |
| CEM1 | Cemetery #1 | 0.0040320932 | $483,773 | $483,773 | $1.95 | | |
| FIRE2 | Fire & Rescue Dist #2 N Whidbey GEN | 0.5475949600 | $483,773 | $483,773 | $264.91 | | |
| HOBOND | Hospital BOND | 0.1910887512 | $483,773 | $483,773 | $92.44 | | |
| HOGEN | Hospital GEN | 0.3902502903 | $483,773 | $483,773 | $188.79 | | |
| CE | County Current Expense | 0.3708482477 | $483,773 | $483,773 | $179.41 | | |
| CR | County Roads | 0.4584763726 | $483,773 | $483,773 | $221.80 | | |
| ISLANDEMS | Hospital GEN (EMS) | 0.5000000000 | $483,773 | $483,773 | $241.89 | | |
| LIB | Library Sno-Isle GEN | 0.3153421757 | $483,773 | $483,773 | $152.55 | | |
| NWHIDPRMT | P & R N Whidbey GEN | 0.2004466701 | $483,773 | $483,773 | $96.97 | | |
| SCH201MO | School 201 Enrichment | 1.8559231640 | $483,773 | $483,773 | $897.85 | | |
| ST | State School | 1.3035497053 | $483,773 | $483,773 | $630.62 | | |
| ST2 | State School Part 2 | 0.8169543533 | $483,773 | $483,773 | $395.22 | | |
| | Total Tax Rate: | 6.9861102925 | | | | | |
| | | | | Taxes w/Current Exemptions: | $3,379.69 | | |
| | | | | Taxes w/o Exemptions: | $3,379.69 | | |
Improvement / Building
| Improvement #1: | MANUFACTURED HOME | State Code: | Y | 1782.0 sqft | Value: | $183,773 |
| Bathrooms: | 0 | Bedrooms: | 0 | | Ceiling: | PLASTER PAINTED | Cooling: | EVAP NO DUCT | | Exterior Wall/Cover: | VINYL | Floor Covering: | CARPET 100% | | Floor Structure: | SLAB ON GRADE | Foundation: | SLAB | | Heating: | FHA ELECTRIC | Interior Finish: | PLASTER | | Plumbing Fixture Cnt: | 1 | Roof Slope: | FLAT | | Roof Structure/Cover: | CJ ALUMINIUM HEAVY |   |   |
|
| | Type | Description | Class CD | Sub Class CD | Year Built | Area |
| | BAS | BASE/MAIN FLOOR | 4 | 0 | 1980 | 1782.0 |
| | OWR | OPEN WOOD PORCH W/STEPS/ROOF | 4 | 0 | 1980 | 468.0 |
| | CPD | OPEN CARPORT DIRT FLOOR | 4 | 0 | 1980 | 360.0 |
| | UTY | STORAGE/UTILITY | 4 | 0 | 1980 | 448.0 |
| | DGR | DETACHED GARAGE | 4 | 0 | 1980 | 1152.0 |
| | CPD | OPEN CARPORT DIRT FLOOR | 4 | 0 | 1980 | 360.0 |
| | DGR | DETACHED GARAGE | 4 | 0 | 1980 | 1080.0 |
Sketch
Property Image
Land
| 1 | 32 | AC (03.01-09.99) | 5.0000 | 0.00 | 0.00 | 0.00 | 1.00 | $300,000 | $0 |
Roll Value History
| 2026 | N/A | N/A | N/A | N/A | N/A |
| 2025 | $183,773 | $300,000 | $0 | $483,773 | $483,773 |
| 2024 | $188,354 | $280,000 | $0 | $468,354 | $468,354 |
| 2023 | $176,499 | $270,000 | $0 | $446,499 | $446,499 |
| 2022 | $140,379 | $240,000 | $0 | $380,379 | $380,379 |
| 2021 | $126,689 | $175,000 | $0 | $301,689 | $301,689 |
| 2020 | $127,432 | $150,000 | $0 | $277,432 | $277,432 |
| 2019 | $92,610 | $185,000 | $0 | $277,610 | $277,610 |
| 2018 | $109,208 | $170,000 | $0 | $279,208 | $279,208 |
| 2017 | $112,732 | $150,000 | $0 | $262,732 | $262,732 |
| 2016 | $62,695 | $140,000 | $0 | $202,695 | $202,695 |
| 2015 | $64,546 | $120,000 | $0 | $184,546 | $184,546 |
| 2014 | $66,396 | $100,000 | $0 | $166,396 | $166,396 |
| 2013 | $68,247 | $108,000 | $0 | $176,247 | $176,247 |
| 2012 | $71,023 | $99,000 | $0 | $170,023 | $170,023 |
| 2011 | $72,874 | $110,000 | $0 | $182,874 | $182,874 |
| 2010 | $93,818 | $110,000 | $0 | $203,818 | $203,818 |
| 2009 | $114,607 | $125,000 | $0 | $239,607 | $239,607 |
| 2008 | $118,485 | $117,500 | $0 | $235,985 | $235,985 |
| 2007 | $121,097 | $114,063 | $0 | $235,160 | $235,160 |
Deed and Sales History
| 1 | 03/21/2023 | WD | Warranty Deed | GAVIGAN, KRISTI | ANKRUM, ANDREW JOSEPH | | | $510,000.00 | 56285 | 4558339 |
| 2 | 07/07/2020 | WD | Warranty Deed | SHELLEY, PATRICK | GAVIGAN, KRISTI | | | $300,000.00 | 43948 | 4492133 |
| 3 | 09/21/2017 | WD | Warranty Deed | HUGHES, TOMMY J | SHELLEY, PATRICK | | | $193,500.00 | 31199 | 4430754 |
| 4 | 01/01/1970 | EXECUTORD | Executor Deed | HUGHES, TOMMY J | HUGHES, TOMMY J | | | $0.00 | 37810 | 0 |
| 5 | 01/01/1900 | OTHER | Other - Misc. Documents | Unknown | HUGHES, TOMMY J | | | $0.00 | 0 | 0 |
Payout Agreement
| No payout information available.. |