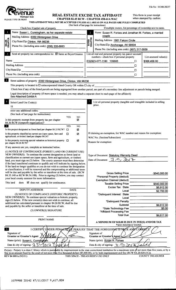
Property
Account |
| Property ID: | 107315 | Abbreviated Legal Description: | 8 - N/2 S/2 SE NW TGW PT IF ANY OF N/2 S/2 SW NW LY E OF HUNT RD |
| Geographic ID: | R23330-314-2010 | Agent Code: | |
| Type: | Real | | |
| Tax Area: | 112 - APPRAISER-OH Schl Dist, outside OH, improved, greater than 1 acre | Land Use Code | 11 |
| Open Space: | N | DFL | N |
| Historic Property: | N | Remodel Property: | N |
| Multi-Family Redevelopment: | N | | |
| Township: | 33 | Section: | 30 |
| Range: | R2 |
Location |
| Address: | 3032 HUNT RD OAK HARBOR, WA 98277 | Mapsco: | |
| Neighborhood: | Cycle 6 | Map ID: | 641 |
| Neighborhood CD: | 6 |
Owner |
| Name: | FAKKEMA, HENRY | Owner ID: | 280886 |
| Mailing Address: | 3032 HUNT RD OAK HARBOR, WA 98277 | % Ownership: | 100.0000000000% |
| | | Exemptions: | |
Taxes and Assessment Details
Values
| (+) Improvement Homesite Value: | + | $0 | |
| (+) Improvement Non-Homesite Value: | + | $46,478 | |
| (+) Land Homesite Value: | + | $0 | |
| (+) Land Non-Homesite Value: | + | $340,000 | |
| (+) Curr Use (HS): | + | $0 | $0 |
| (+) Curr Use (NHS): | + | $0 | $0 |
| | | -------------------------- | |
| (=) Market Value: | = | $386,478 | |
| (–) Productivity Loss: | – | $0 | |
| | | -------------------------- | |
| (=) Subtotal: | = | $386,478 | |
| (+) Senior Appraised Value: | + | $0 | |
| (+) Non-Senior Appraised Value: | + | $386,478 | |
| | | -------------------------- | |
| (=) Total Appraised Value: | = | $386,478 | |
| (–) Senior Exemption Loss: | – | $0 | |
| (–) Exemption Loss: | – | $0 | |
| | | -------------------------- | |
| (=) Taxable Value: | = | $386,478 | |
Taxing Jurisdiction
| Owner: | FAKKEMA, HENRY | | |
| % Ownership: | 100.0000000000% | | |
| Total Value: | $386,478 | | |
| Tax Area: | 112 - APPRAISER-OH Schl Dist, outside OH, improved, greater than 1 acre |
| CF | Conservation Futures | 0.0316035091 | $386,478 | $386,478 | $12.21 | | |
| CEM1 | Cemetery #1 | 0.0040320932 | $386,478 | $386,478 | $1.56 | | |
| FIRE2 | Fire & Rescue Dist #2 N Whidbey GEN | 0.5475949600 | $386,478 | $386,478 | $211.63 | | |
| HOBOND | Hospital BOND | 0.1910887512 | $386,478 | $386,478 | $73.85 | | |
| HOGEN | Hospital GEN | 0.3902502903 | $386,478 | $386,478 | $150.82 | | |
| CE | County Current Expense | 0.3708482477 | $386,478 | $386,478 | $143.32 | | |
| CR | County Roads | 0.4584763726 | $386,478 | $386,478 | $177.19 | | |
| ISLANDEMS | Hospital GEN (EMS) | 0.5000000000 | $386,478 | $386,478 | $193.24 | | |
| LIB | Library Sno-Isle GEN | 0.3153421757 | $386,478 | $386,478 | $121.87 | | |
| NWHIDPRMT | P & R N Whidbey GEN | 0.2004466701 | $386,478 | $386,478 | $77.47 | | |
| SCH201MO | School 201 Enrichment | 1.8559231640 | $386,478 | $386,478 | $717.27 | | |
| ST | State School | 1.3035497053 | $386,478 | $386,478 | $503.79 | | |
| ST2 | State School Part 2 | 0.8169543533 | $386,478 | $386,478 | $315.73 | | |
| | Total Tax Rate: | 6.9861102925 | | | | | |
| | | | | Taxes w/Current Exemptions: | $2,699.95 | | |
| | | | | Taxes w/o Exemptions: | $2,699.95 | | |
Improvement / Building
| Improvement #1: | MANUFACTURED HOME | State Code: | Y | 924.0 sqft | Value: | $46,478 |
| Bathrooms: | 0 | Bedrooms: | 0 | | Ceiling: | PLASTER PAINTED | Cooling: | EVAP NO DUCT | | Exterior Wall/Cover: | VINYL | Floor Covering: | CARPET 100% | | Floor Structure: | SLAB ON GRADE | Foundation: | SLAB | | Heating: | FHA ELECTRIC | Interior Finish: | PLASTER | | Plumbing Fixture Cnt: | 1 | Roof Slope: | FLAT | | Roof Structure/Cover: | CJ ALUMINIUM HEAVY |   |   |
|
| | Type | Description | Class CD | Sub Class CD | Year Built | Area |
| | BAS | BASE/MAIN FLOOR | 3 | 0 | 1974 | 924.0 |
| | ENP | ENCLOSED PORCH | 3 | 0 | 1974 | 384.0 |
| | UTY | STORAGE/UTILITY | 3 | 0 | 1974 | 3456.0 |
| | OWR | OPEN WOOD PORCH W/STEPS/ROOF | 3 | 0 | 1974 | 208.0 |
| | UTY | STORAGE/UTILITY | 3 | 0 | 1974 | 320.0 |
Sketch
Property Image
Land
| 1 | 35 | AC (10.00-30.99) | 10.0000 | 435600.00 | 0.00 | 0.00 | 1.00 | $340,000 | $0 |
Roll Value History
| 2026 | N/A | N/A | N/A | N/A | N/A |
| 2025 | $46,478 | $340,000 | $0 | $386,478 | $386,478 |
| 2024 | $46,478 | $300,000 | $0 | $346,478 | $346,478 |
| 2023 | $46,478 | $280,000 | $0 | $326,478 | $326,478 |
| 2022 | $21,468 | $270,000 | $0 | $291,468 | $291,468 |
| 2021 | $19,701 | $210,000 | $0 | $229,701 | $229,701 |
| 2020 | $19,355 | $200,000 | $0 | $219,355 | $219,355 |
| 2019 | $16,931 | $250,000 | $0 | $266,931 | $266,931 |
| 2018 | $16,931 | $230,000 | $0 | $246,931 | $246,931 |
| 2017 | $16,931 | $160,000 | $0 | $176,931 | $176,931 |
| 2016 | $17,168 | $160,000 | $0 | $177,168 | $177,168 |
| 2015 | $17,168 | $155,000 | $0 | $172,168 | $172,168 |
| 2014 | $17,168 | $170,000 | $0 | $187,168 | $187,168 |
| 2013 | $17,168 | $170,000 | $0 | $187,168 | $187,168 |
| 2012 | $17,168 | $90,000 | $0 | $107,168 | $107,168 |
| 2011 | $17,168 | $100,000 | $0 | $117,168 | $117,168 |
| 2010 | $41,478 | $100,000 | $0 | $141,478 | $141,478 |
| 2009 | $41,636 | $220,000 | $0 | $261,636 | $261,636 |
| 2008 | $42,327 | $160,000 | $0 | $202,327 | $202,327 |
| 2007 | $43,018 | $101,115 | $0 | $144,133 | $144,133 |
Deed and Sales History
| 1 | 04/26/2019 | WD | Warranty Deed | SIMMONS, GEOFFREY M | FAKKEMA, HENRY | | | $255,000.00 | 38428 | 4462975 |
| 2 | 05/04/2017 | QCD | Quit Claim Deed | CARLSON, SHAREN M | SIMMONS, GEOFFREY M | | | $82,832.00 | 29159 | 4421911 |
| 3 | 05/01/1995 | QCD | Quit Claim Deed | CARLSON, SHAREN M | CARLSON, SHAREN M | | | $0.00 | 51783 | 95008361 |
| 4 | 04/01/1987 | QCD | Quit Claim Deed | CARLSON, SHAREN M | CARLSON, SHAREN M | | | $0.00 | 71442 | 87006945 |
| 5 | 04/01/1984 | WD | Warranty Deed | CARLSON, SHAREN M | CARLSON, SHAREN M | | | $84,500.00 | 40880 | 422939 |
| 6 | 04/01/1984 | QCD | Quit Claim Deed | RIPLEY, RICHARD C | CARLSON, SHAREN M | | | $0.00 | 41223 | 424055 |
| 7 | 01/01/1900 | OTHER | Other - Misc. Documents | Unknown | CARLSON, SHAREN M | | | $0.00 | 0 | 0 |
| 8 | 01/01/1900 | OTHER | Other - Misc. Documents | CARLSON, SHAREN M | RIPLEY, RICHARD C | | | $0.00 | 0 | 0 |
Payout Agreement
| No payout information available.. |