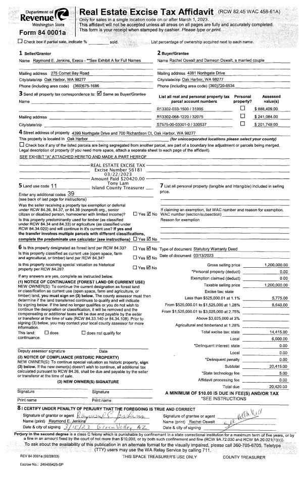
Property
Account |
| Property ID: | 107324 | Abbreviated Legal Description: | 41 - S115' OF N218' OF SE SE NE EX PT LY W OF ELN TAYLOR RD EX PT TO IS CO FOR R/W AF#91006393 |
| Geographic ID: | R23330-314-4920 | Agent Code: | |
| Type: | Real | | |
| Tax Area: | 112 - APPRAISER-OH Schl Dist, outside OH, improved, greater than 1 acre | Land Use Code | 11 |
| Open Space: | N | DFL | N |
| Historic Property: | N | Remodel Property: | N |
| Multi-Family Redevelopment: | N | | |
| Township: | 33 | Section: | 30 |
| Range: | R2 |
Location |
| Address: | 3038 TAYLOR RD OAK HARBOR, WA 98277 | Mapsco: | |
| Neighborhood: | Cycle 6 | Map ID: | 642 |
| Neighborhood CD: | 6 |
Owner |
| Name: | RIEBE, ALAN CHRISTOPHER | Owner ID: | 296901 |
| Mailing Address: | JEANNE LEE RIEBE 3038 TAYLOR RD OAK HARBOR, WA 98277 | % Ownership: | 100.0000000000% |
| | | Exemptions: | |
Taxes and Assessment Details
Values
| (+) Improvement Homesite Value: | + | $0 | |
| (+) Improvement Non-Homesite Value: | + | $368,379 | |
| (+) Land Homesite Value: | + | $0 | |
| (+) Land Non-Homesite Value: | + | $210,000 | |
| (+) Curr Use (HS): | + | $0 | $0 |
| (+) Curr Use (NHS): | + | $0 | $0 |
| | | -------------------------- | |
| (=) Market Value: | = | $578,379 | |
| (–) Productivity Loss: | – | $0 | |
| | | -------------------------- | |
| (=) Subtotal: | = | $578,379 | |
| (+) Senior Appraised Value: | + | $0 | |
| (+) Non-Senior Appraised Value: | + | $578,379 | |
| | | -------------------------- | |
| (=) Total Appraised Value: | = | $578,379 | |
| (–) Senior Exemption Loss: | – | $0 | |
| (–) Exemption Loss: | – | $0 | |
| | | -------------------------- | |
| (=) Taxable Value: | = | $578,379 | |
Taxing Jurisdiction
| Owner: | RIEBE, ALAN CHRISTOPHER | | |
| % Ownership: | 100.0000000000% | | |
| Total Value: | $578,379 | | |
| Tax Area: | 112 - APPRAISER-OH Schl Dist, outside OH, improved, greater than 1 acre |
| CF | Conservation Futures | 0.0316035091 | $578,379 | $578,379 | $18.28 | | |
| CEM1 | Cemetery #1 | 0.0040320932 | $578,379 | $578,379 | $2.33 | | |
| FIRE2 | Fire & Rescue Dist #2 N Whidbey GEN | 0.5475949600 | $578,379 | $578,379 | $316.72 | | |
| HOBOND | Hospital BOND | 0.1910887512 | $578,379 | $578,379 | $110.52 | | |
| HOGEN | Hospital GEN | 0.3902502903 | $578,379 | $578,379 | $225.71 | | |
| CE | County Current Expense | 0.3708482477 | $578,379 | $578,379 | $214.49 | | |
| CR | County Roads | 0.4584763726 | $578,379 | $578,379 | $265.17 | | |
| ISLANDEMS | Hospital GEN (EMS) | 0.5000000000 | $578,379 | $578,379 | $289.19 | | |
| LIB | Library Sno-Isle GEN | 0.3153421757 | $578,379 | $578,379 | $182.39 | | |
| NWHIDPRMT | P & R N Whidbey GEN | 0.2004466701 | $578,379 | $578,379 | $115.93 | | |
| SCH201MO | School 201 Enrichment | 1.8559231640 | $578,379 | $578,379 | $1,073.43 | | |
| ST | State School | 1.3035497053 | $578,379 | $578,379 | $753.95 | | |
| ST2 | State School Part 2 | 0.8169543533 | $578,379 | $578,379 | $472.51 | | |
| | Total Tax Rate: | 6.9861102925 | | | | | |
| | | | | Taxes w/Current Exemptions: | $4,040.62 | | |
| | | | | Taxes w/o Exemptions: | $4,040.62 | | |
Improvement / Building
| Improvement #1: | RESIDENTIAL | State Code: | Y | 2372.0 sqft | Value: | $368,379 |
| Bathrooms: | 2 | Bedrooms: | 3 | | Ceiling: | DRYWALL PAINTED | Cooling: | HEAT PUMP/CONV/V | | Exterior Wall/Cover: | WOOD SIDING | Floor Covering: | CERAMIC TILE/CPT 40-60 | | Floor Structure: | WOOD W/SUBFLOOR | Foundation: | CONCRETE | | Interior Finish: | DRYWALL PAINT | Plumbing Fixture Cnt: | 9 | | Roof Slope: | 6" IN 12" | Roof Structure/Cover: | CJ ASPHALT |
|
| | Type | Description | Class CD | Sub Class CD | Year Built | Area |
| | BAS | BASE/MAIN FLOOR | 3 | 0 | 1937 | 2288.0 |
| | OWP | OPEN WOOD PORCH W/STEPS | 3 | 0 | 1937 | 40.0 |
| | OWP | OPEN WOOD PORCH W/STEPS | 3 | 0 | 1937 | 140.0 |
| | OWP | OPEN WOOD PORCH W/STEPS | 3 | 0 | 1937 | 216.0 |
| | OWR | OPEN WOOD PORCH W/STEPS/ROOF | 3 | 0 | 1937 | 60.0 |
| | UPH | HALF STORY | 3 | 0 | 1937 | 84.0 |
| | DGR | DETACHED GARAGE | 3 | 0 | 1937 | 480.0 |
| | UTY | STORAGE/UTILITY | 3 | 0 | 1937 | 200.0 |
Sketch
Property Image
Land
| 1 | 17 | AC (01.01-02.00) | 0.0000 | 0.00 | 0.00 | 0.00 | 1.00 | $210,000 | $0 |
Roll Value History
| 2026 | N/A | N/A | N/A | N/A | N/A |
| 2025 | $368,379 | $210,000 | $0 | $578,379 | $578,379 |
| 2024 | $372,857 | $210,000 | $0 | $582,857 | $582,857 |
| 2023 | $377,337 | $210,000 | $0 | $587,337 | $587,337 |
| 2022 | $333,550 | $200,000 | $0 | $533,550 | $533,550 |
| 2021 | $293,576 | $130,000 | $0 | $423,576 | $423,576 |
| 2020 | $260,284 | $130,000 | $0 | $390,284 | $390,284 |
| 2019 | $202,434 | $185,000 | $0 | $387,434 | $387,434 |
| 2018 | $203,042 | $165,000 | $0 | $368,042 | $368,042 |
| 2017 | $188,524 | $150,000 | $0 | $338,524 | $338,524 |
| 2016 | $188,986 | $100,000 | $0 | $288,986 | $288,986 |
| 2015 | $133,364 | $100,000 | $0 | $233,364 | $233,364 |
| 2014 | $135,447 | $100,000 | $0 | $235,447 | $235,447 |
| 2013 | $137,531 | $90,000 | $0 | $227,531 | $227,531 |
| 2012 | $139,614 | $80,750 | $0 | $220,364 | $220,364 |
| 2011 | $141,699 | $95,000 | $0 | $236,699 | $236,699 |
| 2010 | $149,864 | $95,000 | $0 | $244,864 | $244,864 |
| 2009 | $156,793 | $105,000 | $0 | $261,793 | $261,793 |
| 2008 | $165,536 | $73,235 | $0 | $238,771 | $238,771 |
| 2007 | $151,452 | $73,235 | $0 | $224,687 | $224,687 |
Deed and Sales History
| 1 | 10/08/2020 | WD | Warranty Deed | CAMPBELL, TERRY J | RIEBE, ALAN CHRISTOPHER | | | $439,000.00 | 45189 | 4499160 |
| 2 | 12/16/2015 | WD | Warranty Deed | ZUMWALT, NATHAN | CAMPBELL, TERRY J | | | $292,000.00 | 22563 | 4391363 |
| 3 | 01/19/2005 | WD | Warranty Deed | FRAZIER, KENNETH E | ZUMWALT, CYNTHIA | | | $192,000.00 | 50309 | 4124035 |
| 4 | 07/01/1989 | WD | Warranty Deed | FRAZIER, PATRICIA J | FRAZIER, KENNETH E | | | $63,000.00 | 92618 | 89008849 |
| 5 | 07/01/1987 | WD | Warranty Deed | PRCHAL, MICHAEL J | FRAZIER, PATRICIA J | | | $46,000.00 | 71999 | 87009146 |
| 6 | 01/01/1900 | OTHER | Other - Misc. Documents | Unknown | PRCHAL, MICHAEL J | | | $0.00 | 0 | 0 |
Payout Agreement
| No payout information available.. |