Property
Account |
| Property ID: | 107342 | Abbreviated Legal Description: | 51 - N103' OF SE SE NE EX PT LY WLY OF ELY LN CO RD |
| Geographic ID: | R23330-324-4920 | Agent Code: | |
| Type: | Real | | |
| Tax Area: | 112 - APPRAISER-OH Schl Dist, outside OH, improved, greater than 1 acre | Land Use Code | 11 |
| Open Space: | N | DFL | N |
| Historic Property: | N | Remodel Property: | N |
| Multi-Family Redevelopment: | N | | |
| Township: | 33 | Section: | 30 |
| Range: | R2 |
Location |
| Address: | 3046 TAYLOR RD OAK HARBOR, WA 98277 | Mapsco: | |
| Neighborhood: | Cycle 6 | Map ID: | 642 |
| Neighborhood CD: | 6 |
Owner |
| Name: | HELLER, CHERYL L | Owner ID: | 268941 |
| Mailing Address: | 3046 TAYLOR RD OAK HARBOR, WA 98277 | % Ownership: | 100.0000000000% |
| | | Exemptions: | SNR/DSBL |
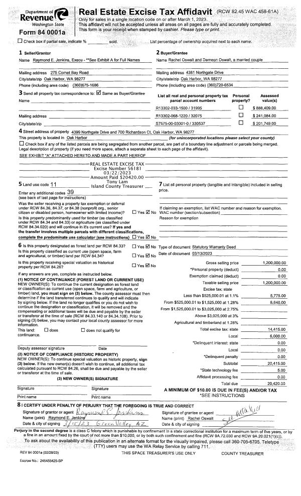
Taxes and Assessment Details
Values
| (+) Improvement Homesite Value: | + | $211,698 | |
| (+) Improvement Non-Homesite Value: | + | $0 | |
| (+) Land Homesite Value: | + | $210,000 | |
| (+) Land Non-Homesite Value: | + | $0 | |
| (+) Curr Use (HS): | + | $0 | $0 |
| (+) Curr Use (NHS): | + | $0 | $0 |
| | | -------------------------- | |
| (=) Market Value: | = | $421,698 | |
| (–) Productivity Loss: | – | $0 | |
| | | -------------------------- | |
| (=) Subtotal: | = | $421,698 | |
| (+) Senior Appraised Value: | + | $191,484 | |
| (+) Non-Senior Appraised Value: | + | $0 | |
| | | -------------------------- | |
| (=) Total Appraised Value: | = | $191,484 | |
| (–) Senior Exemption Loss: | – | $114,890 | |
| (–) Exemption Loss: | – | $0 | |
| | | -------------------------- | |
| (=) Taxable Value: | = | $76,594 | |
Taxing Jurisdiction
| Owner: | HELLER, CHERYL L | | |
| % Ownership: | 100.0000000000% | | |
| Total Value: | $421,698 | | |
| Tax Area: | 112 - APPRAISER-OH Schl Dist, outside OH, improved, greater than 1 acre |
| CF | Conservation Futures | 0.0316035091 | $421,698 | $76,594 | $2.42 | | |
| CEM1 | Cemetery #1 | 0.0040320932 | $421,698 | $76,594 | $0.31 | | |
| FIRE2 | Fire & Rescue Dist #2 N Whidbey GEN | 0.5475949600 | $421,698 | $76,594 | $41.94 | | |
| HOBOND | Hospital BOND | 0.0000000000 | $421,698 | $0 | $0.00 | | |
| HOGEN | Hospital GEN | 0.3902502903 | $421,698 | $76,594 | $29.89 | | |
| CE | County Current Expense | 0.3708482477 | $421,698 | $76,594 | $28.40 | | |
| CR | County Roads | 0.4584763726 | $421,698 | $76,594 | $35.12 | | |
| ISLANDEMS | Hospital GEN (EMS) | 0.5000000000 | $421,698 | $76,594 | $38.30 | | |
| LIB | Library Sno-Isle GEN | 0.3153421757 | $421,698 | $76,594 | $24.15 | | |
| NWHIDPRMT | P & R N Whidbey GEN | 0.2004466701 | $421,698 | $76,594 | $15.35 | | |
| SCH201MO | School 201 Enrichment | 0.0000000000 | $421,698 | $0 | $0.00 | | |
| ST | State School | 1.3035497053 | $421,698 | $76,594 | $99.84 | | |
| ST2 | State School Part 2 | 0.0000000000 | $421,698 | $0 | $0.00 | | |
| | Total Tax Rate: | 4.1221440240 | | | | | |
| | | | | Taxes w/Current Exemptions: | $315.72 | | |
| | | | | Taxes w/o Exemptions: | $2,946.04 | | |
Improvement / Building
| Improvement #1: | RESIDENTIAL | State Code: | Y | 1664.0 sqft | Value: | $211,698 |
| Bathrooms: | 2 | Bedrooms: | 3 | | Ceiling: | DRYWALL PAINTED | Exterior Wall/Cover: | PLY/HARDBOARD T-111 | | Floor Covering: | CARPET/VINYL 80-20 | Floor Structure: | WOOD W/SUBFLOOR | | Foundation: | CONCRETE | Heating: | BASEBOARD ELECTRIC | | Interior Finish: | DRYWALL PAINT | Plumbing Fixture Cnt: | 9 | | Roof Slope: | 3" IN 12" | Roof Structure/Cover: | CJ ASPHALT |
|
| | Type | Description | Class CD | Sub Class CD | Year Built | Area |
| | BAS | BASE/MAIN FLOOR | 3 | 0 | 1955 | 1664.0 |
| | AGR | ATTACHED GARAGE | 3 | 0 | 1955 | 476.0 |
| | OWP | OPEN WOOD PORCH W/STEPS | 3 | 0 | 1955 | 72.0 |
| | OWR | OPEN WOOD PORCH W/STEPS/ROOF | 3 | 0 | 1955 | 624.0 |
| | UTY | STORAGE/UTILITY | 3 | 0 | 1955 | 1320.0 |
| | ATU | ATTIC UNFINISHED | 3 | 0 | 1955 | 440.0 |
| | UTY | STORAGE/UTILITY | 3 | 0 | 1955 | 192.0 |
Sketch
Property Image
Land
| 1 | 17 | AC (01.01-02.00) | 0.0000 | 0.00 | 0.00 | 0.00 | 1.00 | $210,000 | $0 |
Roll Value History
| 2026 | N/A | N/A | N/A | N/A | N/A |
| 2025 | $211,698 | $210,000 | $0 | $421,698 | $76,594 |
| 2024 | $219,532 | $210,000 | $0 | $429,532 | $76,594 |
| 2023 | $223,014 | $210,000 | $0 | $433,014 | $76,594 |
| 2022 | $185,637 | $200,000 | $0 | $385,637 | $191,484 |
| 2021 | $165,271 | $130,000 | $0 | $295,271 | $191,484 |
| 2020 | $162,072 | $130,000 | $0 | $292,072 | $124,465 |
| 2019 | $120,737 | $185,000 | $0 | $305,737 | $124,465 |
| 2018 | $121,192 | $165,000 | $0 | $286,192 | $124,465 |
| 2017 | $122,102 | $150,000 | $0 | $272,102 | $124,465 |
| 2016 | $88,035 | $100,000 | $0 | $188,035 | $122,223 |
| 2015 | $89,759 | $100,000 | $0 | $189,759 | $123,343 |
| 2014 | $91,484 | $100,000 | $0 | $191,484 | $191,484 |
| 2013 | $93,207 | $90,000 | $0 | $183,207 | $183,207 |
| 2012 | $94,931 | $80,750 | $0 | $175,681 | $175,681 |
| 2011 | $96,654 | $95,000 | $0 | $191,654 | $191,654 |
| 2010 | $102,456 | $95,000 | $0 | $197,456 | $197,456 |
| 2009 | $108,445 | $105,000 | $0 | $213,445 | $213,445 |
| 2008 | $120,682 | $73,235 | $0 | $193,917 | $193,917 |
| 2007 | $124,172 | $73,235 | $0 | $197,407 | $197,407 |
Deed and Sales History
| 1 | 01/12/2015 | TOD | Transfer On Death Deed | HELLER, WILLIAM H | HELLER, CHERYL L | | | | 85066 | |
| 2 | 04/01/1991 | QCD | Quit Claim Deed | HELLER, WILLIAM H | HELLER, WILLIAM H | | | $1,243.00 | 64173 | 91002078 |
| 3 | 08/01/1981 | WD | Warranty Deed | Unknown | HELLER, WILLIAM H | | | $65,000.00 | 12405 | 386370 |
Payout Agreement
| No payout information available.. |