Property
Account |
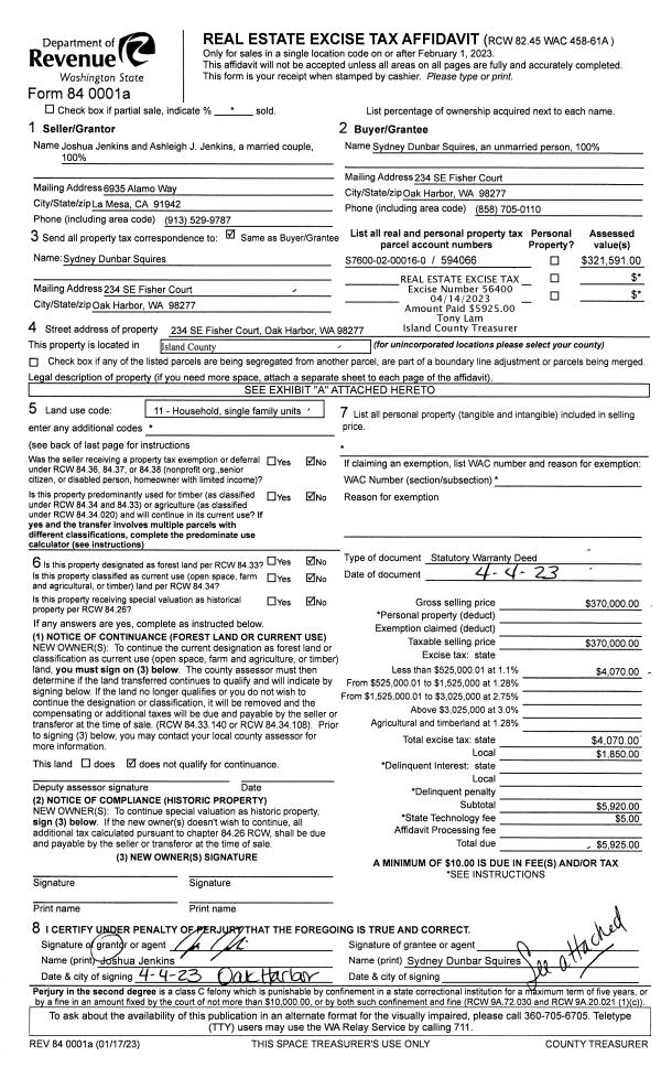
| Property ID: | 107459 | Abbreviated Legal Description: | 30 - N200' OF SE NE LY WLY OF CO RD EX EASEMENT RD EX PT TO IS CO FOR R/W AF#91005691 |
| Geographic ID: | R23330-385-4220 | Agent Code: | |
| Type: | Real | | |
| Tax Area: | 112 - APPRAISER-OH Schl Dist, outside OH, improved, greater than 1 acre | Land Use Code | 11 |
| Open Space: | N | DFL | N |
| Historic Property: | N | Remodel Property: | N |
| Multi-Family Redevelopment: | N | | |
| Township: | 33 | Section: | 30 |
| Range: | R2 |
Location |
| Address: | 3091 TAYLOR RD OAK HARBOR, WA 98277 | Mapsco: | |
| Neighborhood: | Cycle 6 | Map ID: | 642 |
| Neighborhood CD: | 6 |
Owner |
| Name: | MENDOZAZAMBRANO, NIVARDO | Owner ID: | 291866 |
| Mailing Address: | 3091 TAYLOR RD OAK HARBOR, WA 98277 | % Ownership: | 100.0000000000% |
| | | Exemptions: | |
Taxes and Assessment Details
Values
| (+) Improvement Homesite Value: | + | $0 | |
| (+) Improvement Non-Homesite Value: | + | $282,267 | |
| (+) Land Homesite Value: | + | $0 | |
| (+) Land Non-Homesite Value: | + | $250,000 | |
| (+) Curr Use (HS): | + | $0 | $0 |
| (+) Curr Use (NHS): | + | $0 | $0 |
| | | -------------------------- | |
| (=) Market Value: | = | $532,267 | |
| (–) Productivity Loss: | – | $0 | |
| | | -------------------------- | |
| (=) Subtotal: | = | $532,267 | |
| (+) Senior Appraised Value: | + | $0 | |
| (+) Non-Senior Appraised Value: | + | $532,267 | |
| | | -------------------------- | |
| (=) Total Appraised Value: | = | $532,267 | |
| (–) Senior Exemption Loss: | – | $0 | |
| (–) Exemption Loss: | – | $0 | |
| | | -------------------------- | |
| (=) Taxable Value: | = | $532,267 | |
Taxing Jurisdiction
| Owner: | MENDOZAZAMBRANO, NIVARDO | | |
| % Ownership: | 100.0000000000% | | |
| Total Value: | $532,267 | | |
| Tax Area: | 112 - APPRAISER-OH Schl Dist, outside OH, improved, greater than 1 acre |
| CF | Conservation Futures | 0.0316035091 | $532,267 | $532,267 | $16.82 | | |
| CEM1 | Cemetery #1 | 0.0040320932 | $532,267 | $532,267 | $2.15 | | |
| FIRE2 | Fire & Rescue Dist #2 N Whidbey GEN | 0.5475949600 | $532,267 | $532,267 | $291.47 | | |
| HOBOND | Hospital BOND | 0.1910887512 | $532,267 | $532,267 | $101.71 | | |
| HOGEN | Hospital GEN | 0.3902502903 | $532,267 | $532,267 | $207.72 | | |
| CE | County Current Expense | 0.3708482477 | $532,267 | $532,267 | $197.39 | | |
| CR | County Roads | 0.4584763726 | $532,267 | $532,267 | $244.03 | | |
| ISLANDEMS | Hospital GEN (EMS) | 0.5000000000 | $532,267 | $532,267 | $266.13 | | |
| LIB | Library Sno-Isle GEN | 0.3153421757 | $532,267 | $532,267 | $167.85 | | |
| NWHIDPRMT | P & R N Whidbey GEN | 0.2004466701 | $532,267 | $532,267 | $106.69 | | |
| SCH201MO | School 201 Enrichment | 1.8559231640 | $532,267 | $532,267 | $987.85 | | |
| ST | State School | 1.3035497053 | $532,267 | $532,267 | $693.84 | | |
| ST2 | State School Part 2 | 0.8169543533 | $532,267 | $532,267 | $434.84 | | |
| | Total Tax Rate: | 6.9861102925 | | | | | |
| | | | | Taxes w/Current Exemptions: | $3,718.49 | | |
| | | | | Taxes w/o Exemptions: | $3,718.49 | | |
Improvement / Building
| Improvement #1: | RESIDENTIAL | State Code: | Y | 2794.0 sqft | Value: | $282,267 |
| Bathrooms: | 2.5 | Bedrooms: | 3 | | Ceiling: | DRYWALL PAINTED | Exterior Wall/Cover: | VINYL | | Floor Covering: | CARPET/VINYL 60-40 | Floor Structure: | WOOD W/SUBFLOOR | | Foundation: | WOOD BLOCKS | Heating: | BASEBOARD ELECTRIC | | Interior Finish: | DRYWALL PAINT | Plumbing Fixture Cnt: | 12 | | Roof Slope: | 5" IN 12" | Roof Structure/Cover: | CJ ASPHALT |
|
| | Type | Description | Class CD | Sub Class CD | Year Built | Area |
| | BAS | BASE/MAIN FLOOR | 3 | 0 | 1950 | 2794.0 |
| | UTY | STORAGE/UTILITY | 3 | 0 | 1950 | 360.0 |
| | OWC | OPEN WOOD PORCH W/STEPS/ROOF/C | 3 | 0 | 1950 | 36.0 |
| | CPD | OPEN CARPORT DIRT FLOOR | 3 | 0 | 1950 | 390.0 |
Sketch
Property Image
Land
| 1 | 18 | AC (02.01-03.00) | 0.0000 | 0.00 | 0.00 | 0.00 | 1.00 | $250,000 | $0 |
Roll Value History
| 2026 | N/A | N/A | N/A | N/A | N/A |
| 2025 | $282,267 | $250,000 | $0 | $532,267 | $532,267 |
| 2024 | $293,255 | $230,000 | $0 | $523,255 | $523,255 |
| 2023 | $297,615 | $220,000 | $0 | $517,615 | $517,615 |
| 2022 | $241,839 | $210,000 | $0 | $451,839 | $451,839 |
| 2021 | $213,934 | $160,000 | $0 | $373,934 | $373,934 |
| 2020 | $209,423 | $140,000 | $0 | $349,423 | $349,423 |
| 2019 | $164,264 | $200,000 | $0 | $364,264 | $364,264 |
| 2018 | $164,852 | $170,000 | $0 | $334,852 | $334,852 |
| 2017 | $166,028 | $150,000 | $0 | $316,028 | $316,028 |
| 2016 | $155,785 | $120,000 | $0 | $275,785 | $275,785 |
| 2015 | $158,226 | $100,000 | $0 | $258,226 | $258,226 |
| 2014 | $160,666 | $100,000 | $0 | $260,666 | $260,666 |
| 2013 | $163,107 | $90,000 | $0 | $253,107 | $253,107 |
| 2012 | $165,549 | $106,250 | $0 | $271,799 | $271,799 |
| 2011 | $167,989 | $125,000 | $0 | $292,989 | $292,989 |
| 2010 | $168,951 | $125,000 | $0 | $293,951 | $293,951 |
| 2009 | $176,363 | $135,000 | $0 | $311,363 | $311,363 |
| 2008 | $185,931 | $155,000 | $0 | $340,931 | $340,931 |
| 2007 | $188,322 | $99,825 | $0 | $288,147 | $288,147 |
Deed and Sales History
| 1 | 09/18/2019 | QCD | Quit Claim Deed | MENDOZA, NIVARDO | MENDOZAZAMBRANO, NIVARDO | | | $0.00 | 40380 | 4471881 |
| 2 | 10/13/2008 | ESTSEPPROP | Establish Separate Property | RZESZUT, PATRICK M | MENDOZA, NIVARDO | | | $124,122.00 | 82717 | 4238503 |
| 3 | 04/20/2006 | WD | Warranty Deed | SMITH, RANDOLPH S | RZESZUT, PATRICK M | | | $320,000.00 | 61905 | 4169146 |
| 4 | 12/02/2004 | 5 | DNU - Marriage License/Name Change | SMITH, RANDOLPH S | SMITH, RANDOLPH S | | | $0.00 | 45707 | 4120075 |
| 5 | 11/01/1997 | WD | Warranty Deed | ATCHISON, RANDY L | SMITH, RANDOLPH S | | | $157,000.00 | 74027 | 97019316 |
| 6 | 11/01/1992 | WD | Warranty Deed | HOLMAN, ARTHUR J | ATCHISON, RANDY L | | | $125,000.00 | 24478 | 92021937 |
| 7 | 05/01/1991 | QCD | Quit Claim Deed | HOLMAN, ARTHUR J | HOLMAN, ARTHUR J | | | $1,500.00 | 64208 | 91005691 |
| 8 | 07/01/1964 | TRUSTEED | Trustee's Deed | LANG, PAUL J | HOLMAN, ARTHUR J | | | $0.00 | 16831 | 0 |
| 9 | 01/01/1900 | OTHER | Other - Misc. Documents | Unknown | LANG, PAUL J | | | $0.00 | 0 | 0 |
Payout Agreement
| No payout information available.. |