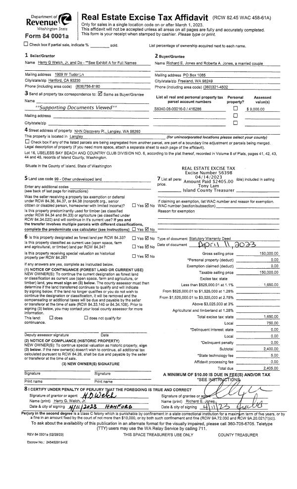
Property
Account |
| Property ID: | 107627 | Abbreviated Legal Description: | 53 - W/2 OF NE NW NE EX RD |
| Geographic ID: | R23330-493-3410 | Agent Code: | |
| Type: | Real | | |
| Tax Area: | 119 - APPRAISER-OH Schl Dist, outside OH, vacant & 50 acres or less | Land Use Code | 91 |
| Open Space: | N | DFL | N |
| Historic Property: | N | Remodel Property: | N |
| Multi-Family Redevelopment: | N | | |
| Township: | 33 | Section: | 30 |
| Range: | R2 |
Location |
| Address: | | Mapsco: | |
| Neighborhood: | Cycle 6 | Map ID: | 642 |
| Neighborhood CD: | 6 |
Owner |
| Name: | STRATTON, FREDERICK J | Owner ID: | 295019 |
| Mailing Address: | SELENE MULDOWNEY-STRATTON 288 E FAKKEMA RD OAK HARBOR, WA 98277 | % Ownership: | 100.0000000000% |
| | | Exemptions: | |
Taxes and Assessment Details
Values
| (+) Improvement Homesite Value: | + | $0 | |
| (+) Improvement Non-Homesite Value: | + | $0 | |
| (+) Land Homesite Value: | + | $0 | |
| (+) Land Non-Homesite Value: | + | $170,000 | |
| (+) Curr Use (HS): | + | $0 | $0 |
| (+) Curr Use (NHS): | + | $0 | $0 |
| | | -------------------------- | |
| (=) Market Value: | = | $170,000 | |
| (–) Productivity Loss: | – | $0 | |
| | | -------------------------- | |
| (=) Subtotal: | = | $170,000 | |
| (+) Senior Appraised Value: | + | $0 | |
| (+) Non-Senior Appraised Value: | + | $170,000 | |
| | | -------------------------- | |
| (=) Total Appraised Value: | = | $170,000 | |
| (–) Senior Exemption Loss: | – | $0 | |
| (–) Exemption Loss: | – | $0 | |
| | | -------------------------- | |
| (=) Taxable Value: | = | $170,000 | |
Taxing Jurisdiction
| Owner: | STRATTON, FREDERICK J | | |
| % Ownership: | 100.0000000000% | | |
| Total Value: | $170,000 | | |
| Tax Area: | 119 - APPRAISER-OH Schl Dist, outside OH, vacant & 50 acres or less |
| CF | Conservation Futures | 0.0316035091 | $170,000 | $170,000 | $5.37 | | |
| CEM1 | Cemetery #1 | 0.0040320932 | $170,000 | $170,000 | $0.69 | | |
| HOBOND | Hospital BOND | 0.1910887512 | $170,000 | $170,000 | $32.49 | | |
| HOGEN | Hospital GEN | 0.3902502903 | $170,000 | $170,000 | $66.34 | | |
| CE | County Current Expense | 0.3708482477 | $170,000 | $170,000 | $63.04 | | |
| CR | County Roads | 0.4584763726 | $170,000 | $170,000 | $77.94 | | |
| ISLANDEMS | Hospital GEN (EMS) | 0.5000000000 | $170,000 | $170,000 | $85.00 | | |
| LIB | Library Sno-Isle GEN | 0.3153421757 | $170,000 | $170,000 | $53.61 | | |
| NWHIDPRMT | P & R N Whidbey GEN | 0.2004466701 | $170,000 | $170,000 | $34.08 | | |
| SCH201MO | School 201 Enrichment | 1.8559231640 | $170,000 | $170,000 | $315.51 | | |
| ST | State School | 1.3035497053 | $170,000 | $170,000 | $221.60 | | |
| ST2 | State School Part 2 | 0.8169543533 | $170,000 | $170,000 | $138.88 | | |
| | Total Tax Rate: | 6.4385153325 | | | | | |
| | | | | Taxes w/Current Exemptions: | $1,094.55 | | |
| | | | | Taxes w/o Exemptions: | $1,094.55 | | |
Improvement / Building
Sketch
| No sketches available for this property. |
Property Image
Land
| 1 | 32 | AC (03.01-09.99) | 4.7800 | 0.00 | 0.00 | 0.00 | 1.00 | $170,000 | $0 |
Roll Value History
| 2026 | N/A | N/A | N/A | N/A | N/A |
| 2025 | $0 | $170,000 | $0 | $170,000 | $170,000 |
| 2024 | $0 | $150,000 | $0 | $150,000 | $150,000 |
| 2023 | $0 | $140,000 | $0 | $140,000 | $140,000 |
| 2022 | $0 | $100,000 | $0 | $100,000 | $100,000 |
| 2021 | $0 | $100,000 | $0 | $100,000 | $100,000 |
| 2020 | $0 | $90,000 | $0 | $90,000 | $90,000 |
| 2019 | $0 | $110,000 | $0 | $110,000 | $110,000 |
| 2018 | $0 | $110,000 | $0 | $110,000 | $110,000 |
| 2017 | $0 | $110,000 | $0 | $110,000 | $110,000 |
| 2016 | $0 | $80,000 | $0 | $80,000 | $80,000 |
| 2015 | $0 | $60,000 | $0 | $60,000 | $60,000 |
| 2014 | $0 | $75,000 | $0 | $75,000 | $75,000 |
| 2013 | $0 | $62,140 | $0 | $62,140 | $62,140 |
| 2012 | $0 | $95,600 | $0 | $95,600 | $95,600 |
| 2011 | $0 | $95,600 | $0 | $95,600 | $95,600 |
| 2010 | $0 | $95,600 | $0 | $95,600 | $95,600 |
| 2009 | $0 | $100,380 | $0 | $100,380 | $100,380 |
| 2008 | $0 | $100,380 | $0 | $100,380 | $100,380 |
| 2007 | $0 | $113,525 | $0 | $113,525 | $113,525 |
Deed and Sales History
| 1 | 07/06/2020 | QCD | Quit Claim Deed | STRATTON, FREDERICK JAMES | STRATTON, FREDERICK J | | | $0.00 | 43656 | 4490539 |
| 2 | 05/26/2016 | DECREE | Divorce Decree/Legal Separation | STRATTON, FREDERICK J | STRATTON, FREDERICK JAMES | | | $0.00 | 24544 | 4400263 |
| 3 | 06/10/2004 | WD | Warranty Deed | VANZYTVELD, WILLIAM | STRATTON, FREDERICK J | | | $80,026.00 | 42477 | 4103108 |
| 4 | 06/01/1986 | WD | Warranty Deed | NIENHUIS, DUANE H | VANZYTVELD, WILLIAM | | | $16,950.00 | 61647 | 86007723 |
| 5 | 11/01/1984 | PACD | Purchaser's Assignment | VANZYTVELD, WILLIAM | NIENHUIS, DUANE H | | | $7,500.00 | 43265 | 84005388 |
| 6 | 11/01/1984 | PACD | Purchaser's Assignment | FISHER, JACK A | VANZYTVELD, WILLIAM | | | $0.00 | 62872 | 86012999 |
| 7 | 01/01/1900 | OTHER | Other - Misc. Documents | Unknown | FISHER, JACK A | | | $0.00 | 0 | 0 |
Payout Agreement
| No payout information available.. |