Property
Account |
| Property ID: | 107761 | Abbreviated Legal Description: | 23 - IN GL10: BG 1/4 SEC COM SEC 30 & 31 S1*W810.61' N85*W503.44' TPB N85*W157 .34' S1*W534.53' TO NLN CO RD S84*E ALG SD LN 157.47' NLY 536.20' M/L TPB EX PT LY N OF LN BLA AF#178660 |
| Geographic ID: | R23331-425-2200 | Agent Code: | |
| Type: | Real | | |
| Tax Area: | 110 - APPRAISER-OH Schl Dist, outside OH, improved & 1 acre or less | Land Use Code | 11 |
| Open Space: | N | DFL | N |
| Historic Property: | N | Remodel Property: | N |
| Multi-Family Redevelopment: | N | | |
| Township: | 33 | Section: | 31 |
| Range: | R2 |
Location |
| Address: | 133 E CRESCENT HARBOR RD OAK HARBOR, WA 98277 | Mapsco: | |
| Neighborhood: | Cycle 6 | Map ID: | 645 |
| Neighborhood CD: | 6 |
Owner |
| Name: | PARAISO, RIZANNI P | Owner ID: | 280395 |
| Mailing Address: | HELEN D PARAISO 133 E CRESCENT HARBOR RD OAK HARBOR, WA 98277 | % Ownership: | 100.0000000000% |
| | | Exemptions: | |
Taxes and Assessment Details
Values
| (+) Improvement Homesite Value: | + | $0 | |
| (+) Improvement Non-Homesite Value: | + | $191,358 | |
| (+) Land Homesite Value: | + | $0 | |
| (+) Land Non-Homesite Value: | + | $210,000 | |
| (+) Curr Use (HS): | + | $0 | $0 |
| (+) Curr Use (NHS): | + | $0 | $0 |
| | | -------------------------- | |
| (=) Market Value: | = | $401,358 | |
| (–) Productivity Loss: | – | $0 | |
| | | -------------------------- | |
| (=) Subtotal: | = | $401,358 | |
| (+) Senior Appraised Value: | + | $0 | |
| (+) Non-Senior Appraised Value: | + | $401,358 | |
| | | -------------------------- | |
| (=) Total Appraised Value: | = | $401,358 | |
| (–) Senior Exemption Loss: | – | $0 | |
| (–) Exemption Loss: | – | $0 | |
| | | -------------------------- | |
| (=) Taxable Value: | = | $401,358 | |
Taxing Jurisdiction
| Owner: | PARAISO, RIZANNI P | | |
| % Ownership: | 100.0000000000% | | |
| Total Value: | $401,358 | | |
| Tax Area: | 110 - APPRAISER-OH Schl Dist, outside OH, improved & 1 acre or less |
| CF | Conservation Futures | 0.0316035091 | $401,358 | $401,358 | $12.68 | | |
| CEM1 | Cemetery #1 | 0.0040320932 | $401,358 | $401,358 | $1.62 | | |
| FIRE2 | Fire & Rescue Dist #2 N Whidbey GEN | 0.5475949600 | $401,358 | $401,358 | $219.78 | | |
| HOBOND | Hospital BOND | 0.1910887512 | $401,358 | $401,358 | $76.69 | | |
| HOGEN | Hospital GEN | 0.3902502903 | $401,358 | $401,358 | $156.63 | | |
| CE | County Current Expense | 0.3708482477 | $401,358 | $401,358 | $148.84 | | |
| CR | County Roads | 0.4584763726 | $401,358 | $401,358 | $184.01 | | |
| ISLANDEMS | Hospital GEN (EMS) | 0.5000000000 | $401,358 | $401,358 | $200.68 | | |
| LIB | Library Sno-Isle GEN | 0.3153421757 | $401,358 | $401,358 | $126.57 | | |
| NWHIDPRMT | P & R N Whidbey GEN | 0.2004466701 | $401,358 | $401,358 | $80.45 | | |
| SCH201MO | School 201 Enrichment | 1.8559231640 | $401,358 | $401,358 | $744.89 | | |
| ST | State School | 1.3035497053 | $401,358 | $401,358 | $523.19 | | |
| ST2 | State School Part 2 | 0.8169543533 | $401,358 | $401,358 | $327.89 | | |
| | Total Tax Rate: | 6.9861102925 | | | | | |
| | | | | Taxes w/Current Exemptions: | $2,803.92 | | |
| | | | | Taxes w/o Exemptions: | $2,803.92 | | |
Improvement / Building
| Improvement #1: | MANUFACTURED HOME | State Code: | Y | 2178.0 sqft | Value: | $191,358 |
| Bathrooms: | 0 | Bedrooms: | 0 | | Ceiling: | PLASTER PAINTED | Cooling: | EVAP NO DUCT | | Exterior Wall/Cover: | VINYL | Floor Covering: | CARPET 100% | | Floor Structure: | SLAB ON GRADE | Foundation: | SLAB | | Heating: | FHA ELECTRIC | Interior Finish: | PLASTER | | Plumbing Fixture Cnt: | 1 | Roof Slope: | FLAT | | Roof Structure/Cover: | CJ ALUMINIUM HEAVY |   |   |
|
| | Type | Description | Class CD | Sub Class CD | Year Built | Area |
| | BAS | BASE/MAIN FLOOR | 5 | 0 | 1995 | 2178.0 |
| | DGR | DETACHED GARAGE | 5 | 0 | 1995 | 1152.1 |
| | ENP | ENCLOSED PORCH | 5 | 0 | 1995 | 223.9 |
| | UTY | STORAGE/UTILITY | 5 | 0 | 1995 | 192.0 |
| | UTY | STORAGE/UTILITY | 5 | 0 | 1995 | 180.0 |
| | UTY | STORAGE/UTILITY | 5 | 0 | 1995 | 144.0 |
| | OWP | OPEN WOOD PORCH W/STEPS | 5 | 0 | 1995 | 64.0 |
Sketch
Property Image
Land
| 1 | 17 | AC (01.01-02.00) | 0.0000 | 81892.80 | 0.00 | 0.00 | 1.00 | $210,000 | $0 |
Roll Value History
| 2026 | N/A | N/A | N/A | N/A | N/A |
| 2025 | $191,358 | $210,000 | $0 | $401,358 | $401,358 |
| 2024 | $196,968 | $210,000 | $0 | $406,968 | $406,968 |
| 2023 | $179,149 | $210,000 | $0 | $389,149 | $389,149 |
| 2022 | $124,688 | $200,000 | $0 | $324,688 | $324,688 |
| 2021 | $114,655 | $130,000 | $0 | $244,655 | $244,655 |
| 2020 | $116,660 | $130,000 | $0 | $246,660 | $246,660 |
| 2019 | $99,238 | $185,000 | $0 | $284,238 | $284,238 |
| 2018 | $101,696 | $165,000 | $0 | $266,696 | $266,696 |
| 2017 | $104,154 | $150,000 | $0 | $254,154 | $254,154 |
| 2016 | $102,582 | $100,000 | $0 | $202,582 | $202,582 |
| 2015 | $104,828 | $100,000 | $0 | $204,828 | $204,828 |
| 2014 | $107,074 | $100,000 | $0 | $207,074 | $207,074 |
| 2013 | $108,197 | $90,000 | $0 | $198,197 | $198,197 |
| 2012 | $110,444 | $108,000 | $0 | $218,444 | $218,444 |
| 2011 | $112,690 | $120,000 | $0 | $232,690 | $232,690 |
| 2010 | $143,973 | $120,000 | $0 | $263,973 | $263,973 |
| 2009 | $149,334 | $145,000 | $0 | $294,334 | $294,334 |
| 2008 | $151,570 | $145,000 | $0 | $296,570 | $296,570 |
| 2007 | $155,001 | $121,800 | $0 | $276,801 | $276,801 |
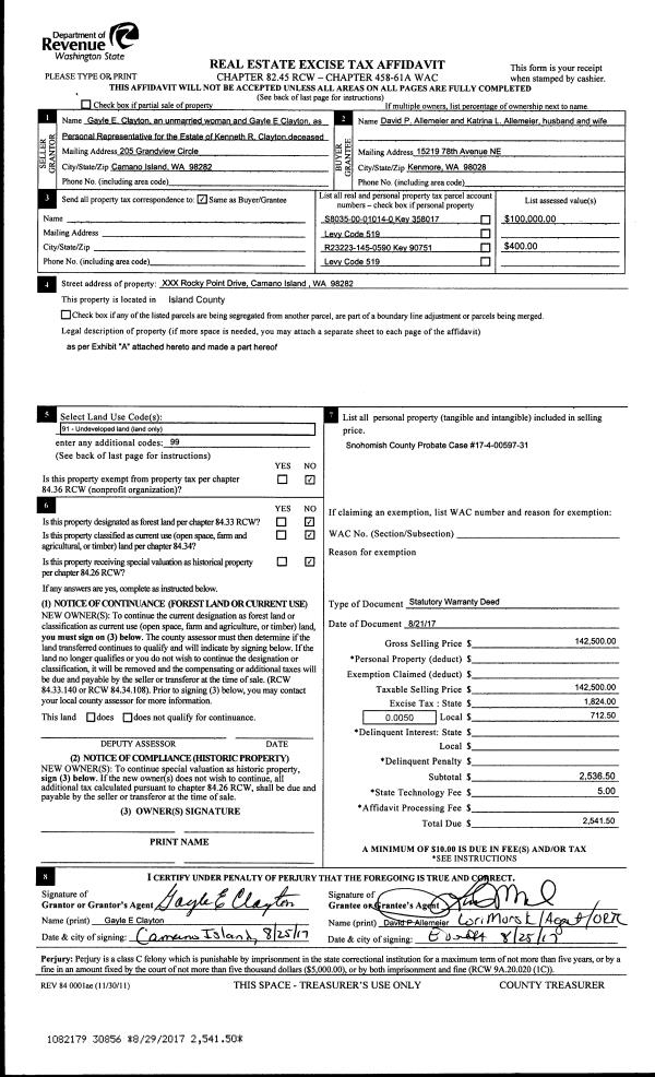
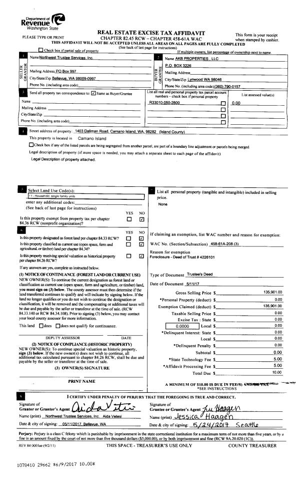
Deed and Sales History
| 1 | 05/26/2017 | WD | Warranty Deed | HOLCOMB, JOHN A | PARAISO, RIZANNI P | | | $323,000.00 | 29739 | 4424263 |
| 2 | 01/28/2008 | DECREE | Divorce Decree/Legal Separation | HOLCOMB, JOHN A | HOLCOMB, JOHN A | | | $0.00 | 80231 | 4220691 |
| 3 | 06/01/1995 | OTHER | Other - Misc. Documents | PREDER, GARY W | HOLCOMB, JOHN / | | | $81,000.00 | 11111111 | 0 |
| 4 | 06/01/1995 | WD | Warranty Deed | HOLCOMB, JOHN / | HOLCOMB, JOHN A | | | $44,500.00 | 52130 | 95009926 |
| 5 | 07/01/1994 | WD | Warranty Deed | PREDER, GARY W | PREDER, GARY W | | | $27,500.00 | 42798 | 94015332 |
| 6 | 07/01/1994 | WD | Warranty Deed | SKEA, RICHARD B | PREDER, GARY W | | | $0.00 | 43392 | 94018062 |
| 7 | 09/01/1993 | QCD | Quit Claim Deed | SKEA, RICHARD B | SKEA, RICHARD B | | | $0.00 | 33878 | 93020135 |
| 8 | 06/01/1990 | QCD | Quit Claim Deed | SKEA, GALE B | SKEA, RICHARD B | | | $0.00 | 3644 | 90011816 |
| 9 | 01/01/1900 | OTHER | Other - Misc. Documents | SKEA, ALBERTA C | SKEA, GALE B | | | $0.00 | 0 | 0 |
| 10 | 01/01/1900 | REC | Real Estate Contract | Unknown | SKEA, ALBERTA C | | | $0.00 | 58839 | 0 |
Payout Agreement
| No payout information available.. |