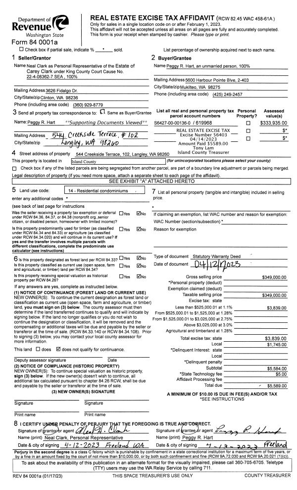
Property
Account |
| Property ID: | 107887 | Abbreviated Legal Description: | 30 - IN GL 10:BG N/4 CR SEC 31 S1*W417.34' N86*W538' N1 *E TO NLN SEC 31 ELY ALG NLN TPB TGW SUB EZ |
| Geographic ID: | R23331-508-2550 | Agent Code: | |
| Type: | Real | | |
| Tax Area: | 112 - APPRAISER-OH Schl Dist, outside OH, improved, greater than 1 acre | Land Use Code | 11 |
| Open Space: | N | DFL | N |
| Historic Property: | N | Remodel Property: | N |
| Multi-Family Redevelopment: | N | | |
| Township: | 33 | Section: | 31 |
| Range: | R2 |
Location |
| Address: | 2753 CRESCENT ACRES RD OAK HARBOR, WA 98277 | Mapsco: | |
| Neighborhood: | Cycle 6 | Map ID: | 645 |
| Neighborhood CD: | 6 |
Owner |
| Name: | HAUN, ACHSAH M | Owner ID: | 288103 |
| Mailing Address: | IAN R MERRILL 2753 CRESCENT ARES DR OAK HARBOR, WA 98277 | % Ownership: | 100.0000000000% |
| | | Exemptions: | |
Taxes and Assessment Details
Values
| (+) Improvement Homesite Value: | + | $114,676 | |
| (+) Improvement Non-Homesite Value: | + | $0 | |
| (+) Land Homesite Value: | + | $0 | |
| (+) Land Non-Homesite Value: | + | $300,000 | |
| (+) Curr Use (HS): | + | $0 | $0 |
| (+) Curr Use (NHS): | + | $0 | $0 |
| | | -------------------------- | |
| (=) Market Value: | = | $414,676 | |
| (–) Productivity Loss: | – | $0 | |
| | | -------------------------- | |
| (=) Subtotal: | = | $414,676 | |
| (+) Senior Appraised Value: | + | $0 | |
| (+) Non-Senior Appraised Value: | + | $414,676 | |
| | | -------------------------- | |
| (=) Total Appraised Value: | = | $414,676 | |
| (–) Senior Exemption Loss: | – | $0 | |
| (–) Exemption Loss: | – | $0 | |
| | | -------------------------- | |
| (=) Taxable Value: | = | $414,676 | |
Taxing Jurisdiction
| Owner: | HAUN, ACHSAH M | | |
| % Ownership: | 100.0000000000% | | |
| Total Value: | $414,676 | | |
| Tax Area: | 112 - APPRAISER-OH Schl Dist, outside OH, improved, greater than 1 acre |
| CF | Conservation Futures | 0.0316035091 | $414,676 | $414,676 | $13.11 | | |
| CEM1 | Cemetery #1 | 0.0040320932 | $414,676 | $414,676 | $1.67 | | |
| FIRE2 | Fire & Rescue Dist #2 N Whidbey GEN | 0.5475949600 | $414,676 | $414,676 | $227.07 | | |
| HOBOND | Hospital BOND | 0.1910887512 | $414,676 | $414,676 | $79.24 | | |
| HOGEN | Hospital GEN | 0.3902502903 | $414,676 | $414,676 | $161.83 | | |
| CE | County Current Expense | 0.3708482477 | $414,676 | $414,676 | $153.78 | | |
| CR | County Roads | 0.4584763726 | $414,676 | $414,676 | $190.12 | | |
| ISLANDEMS | Hospital GEN (EMS) | 0.5000000000 | $414,676 | $414,676 | $207.34 | | |
| LIB | Library Sno-Isle GEN | 0.3153421757 | $414,676 | $414,676 | $130.76 | | |
| NWHIDPRMT | P & R N Whidbey GEN | 0.2004466701 | $414,676 | $414,676 | $83.12 | | |
| SCH201MO | School 201 Enrichment | 1.8559231640 | $414,676 | $414,676 | $769.61 | | |
| ST | State School | 1.3035497053 | $414,676 | $414,676 | $540.55 | | |
| ST2 | State School Part 2 | 0.8169543533 | $414,676 | $414,676 | $338.77 | | |
| | Total Tax Rate: | 6.9861102925 | | | | | |
| | | | | Taxes w/Current Exemptions: | $2,896.97 | | |
| | | | | Taxes w/o Exemptions: | $2,896.97 | | |
Improvement / Building
| Improvement #1: | RESIDENTIAL | State Code: | Y | 1152.0 sqft | Value: | $114,676 |
| Bathrooms: | 1 | Bedrooms: | 2 | | Ceiling: | DRYWALL PAINTED | Exterior Wall/Cover: | PLY/HARDBOARD T-111 | | Floor Covering: | COLORED CONCRETE | Floor Structure: | SLAB ABOVE GRADE | | Foundation: | SLAB | Heating: | RADIANT FLOOR | | Interior Finish: | DRYWALL PAINT | Plumbing Fixture Cnt: | 6 | | Roof Slope: | 5" IN 12" | Roof Structure/Cover: | CJ ASPHALT |
|
Sketch
Property Image
Land
| 1 | 32 | AC (03.01-09.99) | 5.1500 | 0.00 | 0.00 | 0.00 | 1.00 | $300,000 | $0 |
Roll Value History
| 2026 | N/A | N/A | N/A | N/A | N/A |
| 2025 | $114,676 | $300,000 | $0 | $414,676 | $414,676 |
| 2024 | $115,616 | $280,000 | $0 | $395,616 | $395,616 |
| 2023 | $116,557 | $270,000 | $0 | $386,557 | $386,557 |
| 2022 | $44,430 | $240,000 | $0 | $284,430 | $284,430 |
| 2021 | $38,947 | $160,000 | $0 | $198,947 | $198,947 |
| 2020 | $37,856 | $140,000 | $0 | $177,856 | $177,856 |
| 2019 | $28,096 | $200,000 | $0 | $228,096 | $228,096 |
| 2018 | $28,167 | $15,000 | $0 | $43,167 | $43,167 |
| 2017 | $28,596 | $15,000 | $0 | $43,596 | $43,596 |
| 2016 | $5,400 | $7,200 | $0 | $12,600 | $12,600 |
| 2015 | $5,400 | $7,200 | $0 | $12,600 | $12,600 |
| 2014 | $5,400 | $7,200 | $0 | $12,600 | $12,600 |
| 2013 | $5,400 | $7,200 | $0 | $12,600 | $12,600 |
| 2012 | $5,400 | $7,200 | $0 | $12,600 | $12,600 |
| 2011 | $5,400 | $58,300 | $0 | $63,700 | $63,700 |
| 2010 | $5,400 | $58,300 | $0 | $63,700 | $63,700 |
| 2009 | $6,048 | $76,850 | $0 | $82,898 | $82,898 |
| 2008 | $6,696 | $76,850 | $0 | $83,546 | $83,546 |
| 2007 | $7,344 | $46,392 | $0 | $53,736 | $53,736 |
Deed and Sales History
| 1 | 11/25/2013 | WD | Warranty Deed | HAUN, ACHSAH M | HAUN, ACHSAH M | | | $129,570.00 | 13560 | 4351936 |
| 2 | 02/22/2005 | 5 | DNU - Marriage License/Name Change | HAUN, JOHN J | HAUN, ACHSAH M | | | $0.00 | 70480 | 0 |
| 3 | 03/01/1981 | WD | Warranty Deed | PERRY, FREDERICK S | HAUN, JOHN J | | | $12,000.00 | 10909 | 381110 |
| 4 | 08/01/1978 | OTHER | Other - Misc. Documents | Unknown | PERRY, FREDERICK S | | | $9,000.00 | 85025 | 338407 |
Payout Agreement
| No payout information available.. |