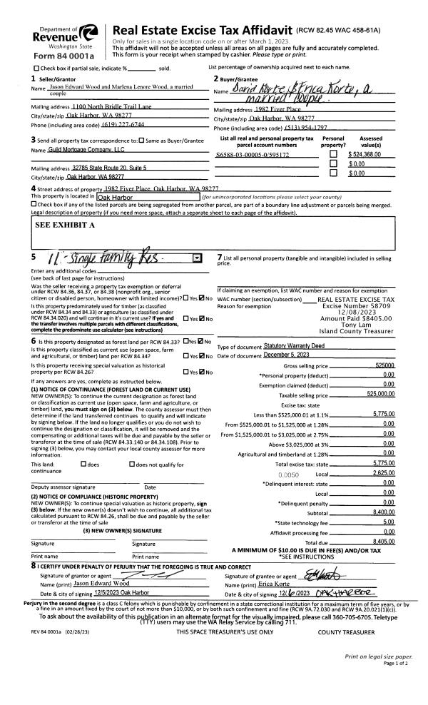
Property
Account |
| Property ID: | 108056 | Abbreviated Legal Description: | 41 WALLACE DC - BG NE CR J MOUNT DC:S88*E1045' TPB S88 *E270' N810' N88*W270' S810 TPB EX RD |
| Geographic ID: | R23332-428-1500 | Agent Code: | |
| Type: | Real | | |
| Tax Area: | 112 - APPRAISER-OH Schl Dist, outside OH, improved, greater than 1 acre | Land Use Code | 11 |
| Open Space: | N | DFL | N |
| Historic Property: | N | Remodel Property: | N |
| Multi-Family Redevelopment: | N | | |
| Township: | 33 | Section: | 32 |
| Range: | R2 |
Location |
| Address: | 505 E CRESCENT HARBOR RD OAK HARBOR, WA 98277 | Mapsco: | |
| Neighborhood: | Cycle 6 | Map ID: | 649 |
| Neighborhood CD: | 6 |
Owner |
| Name: | JOHNSON, DAVID G | Owner ID: | 28216 |
| Mailing Address: | 505 E CRESCENT HARBOR RD OAK HARBOR, WA 98277-9143 | % Ownership: | 100.0000000000% |
| | | Exemptions: | |
Taxes and Assessment Details
Values
| (+) Improvement Homesite Value: | + | $0 | |
| (+) Improvement Non-Homesite Value: | + | $325,867 | |
| (+) Land Homesite Value: | + | $0 | |
| (+) Land Non-Homesite Value: | + | $350,000 | |
| (+) Curr Use (HS): | + | $0 | $0 |
| (+) Curr Use (NHS): | + | $0 | $0 |
| | | -------------------------- | |
| (=) Market Value: | = | $675,867 | |
| (–) Productivity Loss: | – | $0 | |
| | | -------------------------- | |
| (=) Subtotal: | = | $675,867 | |
| (+) Senior Appraised Value: | + | $0 | |
| (+) Non-Senior Appraised Value: | + | $675,867 | |
| | | -------------------------- | |
| (=) Total Appraised Value: | = | $675,867 | |
| (–) Senior Exemption Loss: | – | $0 | |
| (–) Exemption Loss: | – | $0 | |
| | | -------------------------- | |
| (=) Taxable Value: | = | $675,867 | |
Taxing Jurisdiction
| Owner: | JOHNSON, DAVID G | | |
| % Ownership: | 100.0000000000% | | |
| Total Value: | $675,867 | | |
| Tax Area: | 112 - APPRAISER-OH Schl Dist, outside OH, improved, greater than 1 acre |
| CF | Conservation Futures | 0.0316035091 | $675,867 | $675,867 | $21.36 | | |
| CEM1 | Cemetery #1 | 0.0040320932 | $675,867 | $675,867 | $2.73 | | |
| FIRE2 | Fire & Rescue Dist #2 N Whidbey GEN | 0.5475949600 | $675,867 | $675,867 | $370.10 | | |
| HOBOND | Hospital BOND | 0.1910887512 | $675,867 | $675,867 | $129.15 | | |
| HOGEN | Hospital GEN | 0.3902502903 | $675,867 | $675,867 | $263.76 | | |
| CE | County Current Expense | 0.3708482477 | $675,867 | $675,867 | $250.64 | | |
| CR | County Roads | 0.4584763726 | $675,867 | $675,867 | $309.87 | | |
| ISLANDEMS | Hospital GEN (EMS) | 0.5000000000 | $675,867 | $675,867 | $337.93 | | |
| LIB | Library Sno-Isle GEN | 0.3153421757 | $675,867 | $675,867 | $213.13 | | |
| NWHIDPRMT | P & R N Whidbey GEN | 0.2004466701 | $675,867 | $675,867 | $135.48 | | |
| SCH201MO | School 201 Enrichment | 1.8559231640 | $675,867 | $675,867 | $1,254.36 | | |
| ST | State School | 1.3035497053 | $675,867 | $675,867 | $881.03 | | |
| ST2 | State School Part 2 | 0.8169543533 | $675,867 | $675,867 | $552.15 | | |
| | Total Tax Rate: | 6.9861102925 | | | | | |
| | | | | Taxes w/Current Exemptions: | $4,721.69 | | |
| | | | | Taxes w/o Exemptions: | $4,721.69 | | |
Improvement / Building
| Improvement #1: | RESIDENTIAL | State Code: | Y | 2016.0 sqft | Value: | $325,867 |
| Bathrooms: | 3 | Bedrooms: | 3 | | Ceiling: | DRY WALL SPRAYED | Exterior Wall/Cover: | WOOD SIDING | | Floor Covering: | CARPET/VINYL 80-20 | Floor Structure: | WOOD W/SUBFLOOR | | Foundation: | CONCRETE | Heating: | BASEBOARD ELECTRIC | | Interior Finish: | DRYWALL PAINT | Plumbing Fixture Cnt: | 12 | | Roof Slope: | 4" IN 12" | Roof Structure/Cover: | CJ ASPHALT |
|
| | Type | Description | Class CD | Sub Class CD | Year Built | Area |
| | BAS | BASE/MAIN FLOOR | 3 | 0 | 1973 | 1349.0 |
| | DWN | DOWNSTAIRS LIVING AREA | 3 | 0 | 1973 | 667.0 |
| | OP3 | OPEN PORCH W/ROOF | 3 | 0 | 1973 | 60.0 |
| | AGR | ATTACHED GARAGE | 3 | 0 | 1973 | 638.0 |
| | BGR | BASEMENT GARAGE | 3 | 0 | 1973 | 638.0 |
| | OWP | OPEN WOOD PORCH W/STEPS | 3 | 0 | 1973 | 575.0 |
| | DGR | DETACHED GARAGE | 3 | 0 | 1973 | 768.0 |
Sketch
Property Image
Land
| 1 | 32 | AC (03.01-09.99) | 5.0000 | 0.00 | 0.00 | 0.00 | 1.00 | $350,000 | $0 |
Roll Value History
| 2026 | N/A | N/A | N/A | N/A | N/A |
| 2025 | $325,867 | $350,000 | $0 | $675,867 | $675,867 |
| 2024 | $337,488 | $330,000 | $0 | $667,488 | $667,488 |
| 2023 | $342,159 | $320,000 | $0 | $662,159 | $662,159 |
| 2022 | $287,737 | $300,000 | $0 | $587,737 | $587,737 |
| 2021 | $253,877 | $190,000 | $0 | $443,877 | $443,877 |
| 2020 | $247,929 | $160,000 | $0 | $407,929 | $407,929 |
| 2019 | $188,475 | $220,000 | $0 | $408,475 | $408,475 |
| 2018 | $189,136 | $200,000 | $0 | $389,136 | $389,136 |
| 2017 | $190,458 | $165,000 | $0 | $355,458 | $355,458 |
| 2016 | $151,377 | $160,000 | $0 | $311,377 | $311,377 |
| 2015 | $153,408 | $144,000 | $0 | $297,408 | $297,408 |
| 2014 | $155,883 | $144,000 | $0 | $299,883 | $299,883 |
| 2013 | $158,356 | $144,000 | $0 | $302,356 | $302,356 |
| 2012 | $160,832 | $157,500 | $0 | $318,332 | $318,332 |
| 2011 | $163,307 | $175,000 | $0 | $338,307 | $338,307 |
| 2010 | $161,290 | $175,000 | $0 | $336,290 | $336,290 |
| 2009 | $168,206 | $145,000 | $0 | $313,206 | $313,206 |
| 2008 | $177,503 | $225,000 | $0 | $402,503 | $402,503 |
| 2007 | $180,021 | $132,000 | $0 | $312,021 | $312,021 |
Deed and Sales History
Payout Agreement
| No payout information available.. |