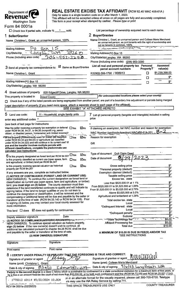
Property
Account |
| Property ID: | 108109 | Abbreviated Legal Description: | 3 WALLACE DC - S197' OF N354' OF FOL:BG NW CR J MOUNT DLC S88*E3406.22' TPB S88*E268.93' N6*E810' N88* W268.93' S6*W810' TPB TGW EZ |
| Geographic ID: | R23332-440-3830 | Agent Code: | |
| Type: | Real | | |
| Tax Area: | 112 - APPRAISER-OH Schl Dist, outside OH, improved, greater than 1 acre | Land Use Code | 11 |
| Open Space: | N | DFL | N |
| Historic Property: | N | Remodel Property: | N |
| Multi-Family Redevelopment: | N | | |
| Township: | 33 | Section: | 32 |
| Range: | R2 |
Location |
| Address: | 2738 DUSTY LN OAK HARBOR, WA 98277 | Mapsco: | |
| Neighborhood: | Cycle 6 | Map ID: | 650 |
| Neighborhood CD: | 6 |
Owner |
| Name: | LECATO, MARIA | Owner ID: | 310607 |
| Mailing Address: | 114 TIMBER RIDGE DR PORT LUDLOW, WA 98365 | % Ownership: | 100.0000000000% |
| | | Exemptions: | |
Taxes and Assessment Details
Values
| (+) Improvement Homesite Value: | + | $0 | |
| (+) Improvement Non-Homesite Value: | + | $208,032 | |
| (+) Land Homesite Value: | + | $0 | |
| (+) Land Non-Homesite Value: | + | $210,000 | |
| (+) Curr Use (HS): | + | $0 | $0 |
| (+) Curr Use (NHS): | + | $0 | $0 |
| | | -------------------------- | |
| (=) Market Value: | = | $418,032 | |
| (–) Productivity Loss: | – | $0 | |
| | | -------------------------- | |
| (=) Subtotal: | = | $418,032 | |
| (+) Senior Appraised Value: | + | $0 | |
| (+) Non-Senior Appraised Value: | + | $418,032 | |
| | | -------------------------- | |
| (=) Total Appraised Value: | = | $418,032 | |
| (–) Senior Exemption Loss: | – | $0 | |
| (–) Exemption Loss: | – | $0 | |
| | | -------------------------- | |
| (=) Taxable Value: | = | $418,032 | |
Taxing Jurisdiction
| Owner: | LECATO, MARIA | | |
| % Ownership: | 100.0000000000% | | |
| Total Value: | $418,032 | | |
| Tax Area: | 112 - APPRAISER-OH Schl Dist, outside OH, improved, greater than 1 acre |
| CF | Conservation Futures | 0.0316035091 | $418,032 | $418,032 | $13.21 | | |
| CEM1 | Cemetery #1 | 0.0040320932 | $418,032 | $418,032 | $1.69 | | |
| FIRE2 | Fire & Rescue Dist #2 N Whidbey GEN | 0.5475949600 | $418,032 | $418,032 | $228.91 | | |
| HOBOND | Hospital BOND | 0.1910887512 | $418,032 | $418,032 | $79.88 | | |
| HOGEN | Hospital GEN | 0.3902502903 | $418,032 | $418,032 | $163.14 | | |
| CE | County Current Expense | 0.3708482477 | $418,032 | $418,032 | $155.03 | | |
| CR | County Roads | 0.4584763726 | $418,032 | $418,032 | $191.66 | | |
| ISLANDEMS | Hospital GEN (EMS) | 0.5000000000 | $418,032 | $418,032 | $209.02 | | |
| LIB | Library Sno-Isle GEN | 0.3153421757 | $418,032 | $418,032 | $131.82 | | |
| NWHIDPRMT | P & R N Whidbey GEN | 0.2004466701 | $418,032 | $418,032 | $83.79 | | |
| SCH201MO | School 201 Enrichment | 1.8559231640 | $418,032 | $418,032 | $775.84 | | |
| ST | State School | 1.3035497053 | $418,032 | $418,032 | $544.93 | | |
| ST2 | State School Part 2 | 0.8169543533 | $418,032 | $418,032 | $341.51 | | |
| | Total Tax Rate: | 6.9861102925 | | | | | |
| | | | | Taxes w/Current Exemptions: | $2,920.43 | | |
| | | | | Taxes w/o Exemptions: | $2,920.43 | | |
Improvement / Building
| Improvement #1: | RESIDENTIAL | State Code: | Y | 1560.0 sqft | Value: | $208,032 |
| Bathrooms: | 2 | Bedrooms: | 3 | | Ceiling: | DRY WALL SPRAYED | Exterior Wall/Cover: | PLY/HARDBOARD T-111 | | Floor Covering: | CARPET/VINYL 80-20 | Floor Structure: | WOOD W/SUBFLOOR | | Foundation: | CONCRETE BLOCKS | Heating: | BASEBOARD ELECTRIC | | Interior Finish: | DRYWALL PAINT | Plumbing Fixture Cnt: | 9 | | Roof Slope: | 4" IN 12" | Roof Structure/Cover: | STEEL TERNE |
|
| | Type | Description | Class CD | Sub Class CD | Year Built | Area |
| | BAS | BASE/MAIN FLOOR | 3 | 0 | 1973 | 1560.0 |
| | OCP | OPEN CARPORT | 3 | 0 | 1973 | 432.0 |
| | UTY | STORAGE/UTILITY | 3 | 0 | 1973 | 180.0 |
| | OWR | OPEN WOOD PORCH W/STEPS/ROOF | 3 | 0 | 1973 | 100.0 |
Sketch
Property Image
Land
| 1 | 17 | AC (01.01-02.00) | 0.0000 | 0.00 | 0.00 | 0.00 | 1.00 | $210,000 | $0 |
Roll Value History
| 2026 | N/A | N/A | N/A | N/A | N/A |
| 2025 | $208,032 | $210,000 | $0 | $418,032 | $418,032 |
| 2024 | $215,399 | $210,000 | $0 | $425,399 | $425,399 |
| 2023 | $218,650 | $210,000 | $0 | $428,650 | $428,650 |
| 2022 | $195,050 | $200,000 | $0 | $395,050 | $395,050 |
| 2021 | $172,163 | $130,000 | $0 | $302,163 | $302,163 |
| 2020 | $168,350 | $130,000 | $0 | $298,350 | $298,350 |
| 2019 | $122,329 | $185,000 | $0 | $307,329 | $307,329 |
| 2018 | $122,770 | $165,000 | $0 | $287,770 | $287,770 |
| 2017 | $123,654 | $150,000 | $0 | $273,654 | $273,654 |
| 2016 | $111,495 | $100,000 | $0 | $211,495 | $211,495 |
| 2015 | $113,265 | $100,000 | $0 | $213,265 | $213,265 |
| 2014 | $115,034 | $100,000 | $0 | $215,034 | $215,034 |
| 2013 | $116,806 | $90,000 | $0 | $206,806 | $206,806 |
| 2012 | $118,575 | $108,000 | $0 | $226,575 | $226,575 |
| 2011 | $120,345 | $120,000 | $0 | $240,345 | $240,345 |
| 2010 | $124,234 | $120,000 | $0 | $244,234 | $244,234 |
| 2009 | $129,909 | $145,000 | $0 | $274,909 | $274,909 |
| 2008 | $137,314 | $145,000 | $0 | $282,314 | $282,314 |
| 2007 | $139,409 | $121,800 | $0 | $261,209 | $261,209 |
Deed and Sales History
| 1 | 11/08/2023 | QCD | Quit Claim Deed | KIRBY, ROBERT L | LECATO, MARIA | | | $0.00 | 58451 | 4566528 |
| 2 | 08/01/1978 | OTHER | Other - Misc. Documents | Unknown | KIRBY, ROBERT L | | | $55,500.00 | 83807 | 337680 |
Payout Agreement
| No payout information available.. |