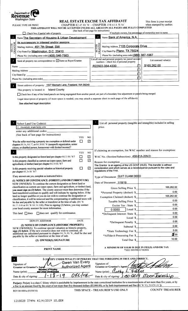
Property
Account |
| Property ID: | 108207 | Abbreviated Legal Description: | 45 WALLACE DC - BG NECR WALLACE DLC W1228.50' S245 .51' W645' TO CLN EZ AF#255801 S176.33' TPB S253.67' W859.57' N2*W254 .10' S88*E870.65' TPB TGW SUB EZ |
| Geographic ID: | R23332-471-2890 | Agent Code: | |
| Type: | Real | | |
| Tax Area: | 112 - APPRAISER-OH Schl Dist, outside OH, improved, greater than 1 acre | Land Use Code | 11 |
| Open Space: | N | DFL | N |
| Historic Property: | N | Remodel Property: | N |
| Multi-Family Redevelopment: | N | | |
| Township: | 33 | Section: | 32 |
| Range: | R2 |
Location |
| Address: | 2766 LAUREL LN OAK HARBOR, WA 98277 | Mapsco: | |
| Neighborhood: | Cycle 6 | Map ID: | 650 |
| Neighborhood CD: | 6 |
Owner |
| Name: | WHITE, MICHAEL | Owner ID: | 295967 |
| Mailing Address: | LINDA WHITE 2766 LAUREL LN OAK HARBOR, WA 98277 | % Ownership: | 100.0000000000% |
| | | Exemptions: | |
Taxes and Assessment Details
Values
| (+) Improvement Homesite Value: | + | $0 | |
| (+) Improvement Non-Homesite Value: | + | $610,024 | |
| (+) Land Homesite Value: | + | $0 | |
| (+) Land Non-Homesite Value: | + | $340,000 | |
| (+) Curr Use (HS): | + | $0 | $0 |
| (+) Curr Use (NHS): | + | $0 | $0 |
| | | -------------------------- | |
| (=) Market Value: | = | $950,024 | |
| (–) Productivity Loss: | – | $0 | |
| | | -------------------------- | |
| (=) Subtotal: | = | $950,024 | |
| (+) Senior Appraised Value: | + | $0 | |
| (+) Non-Senior Appraised Value: | + | $950,024 | |
| | | -------------------------- | |
| (=) Total Appraised Value: | = | $950,024 | |
| (–) Senior Exemption Loss: | – | $0 | |
| (–) Exemption Loss: | – | $0 | |
| | | -------------------------- | |
| (=) Taxable Value: | = | $950,024 | |
Taxing Jurisdiction
| Owner: | WHITE, MICHAEL | | |
| % Ownership: | 100.0000000000% | | |
| Total Value: | $950,024 | | |
| Tax Area: | 112 - APPRAISER-OH Schl Dist, outside OH, improved, greater than 1 acre |
| CF | Conservation Futures | 0.0316035091 | $950,024 | $950,024 | $30.02 | | |
| CEM1 | Cemetery #1 | 0.0040320932 | $950,024 | $950,024 | $3.83 | | |
| FIRE2 | Fire & Rescue Dist #2 N Whidbey GEN | 0.5475949600 | $950,024 | $950,024 | $520.23 | | |
| HOBOND | Hospital BOND | 0.1910887512 | $950,024 | $950,024 | $181.54 | | |
| HOGEN | Hospital GEN | 0.3902502903 | $950,024 | $950,024 | $370.75 | | |
| CE | County Current Expense | 0.3708482477 | $950,024 | $950,024 | $352.31 | | |
| CR | County Roads | 0.4584763726 | $950,024 | $950,024 | $435.56 | | |
| ISLANDEMS | Hospital GEN (EMS) | 0.5000000000 | $950,024 | $950,024 | $475.01 | | |
| LIB | Library Sno-Isle GEN | 0.3153421757 | $950,024 | $950,024 | $299.58 | | |
| NWHIDPRMT | P & R N Whidbey GEN | 0.2004466701 | $950,024 | $950,024 | $190.43 | | |
| SCH201MO | School 201 Enrichment | 1.8559231640 | $950,024 | $950,024 | $1,763.17 | | |
| ST | State School | 1.3035497053 | $950,024 | $950,024 | $1,238.40 | | |
| ST2 | State School Part 2 | 0.8169543533 | $950,024 | $950,024 | $776.13 | | |
| | Total Tax Rate: | 6.9861102925 | | | | | |
| | | | | Taxes w/Current Exemptions: | $6,636.96 | | |
| | | | | Taxes w/o Exemptions: | $6,636.96 | | |
Improvement / Building
| Improvement #1: | RESIDENTIAL | State Code: | Y | 3631.7 sqft | Value: | $610,024 |
| Bathrooms: | 3.5 | Bedrooms: | 3 | | Ceiling: | DRYWALL PAINTED | Exterior Wall/Cover: | WOOD SIDING | | Floor Covering: | HARDWOOD/CARP 20-80 | Floor Structure: | WOOD W/SUBFLOOR | | Foundation: | CONCRETE | Heating: | RAD HOT WATER-GAS | | Interior Finish: | DRYWALL PAINT | Plumbing Fixture Cnt: | 14 | | Roof Slope: | 5" IN 12" | Roof Structure/Cover: | CJ ASPHALT |
|
| | Type | Description | Class CD | Sub Class CD | Year Built | Area |
| | BAS | BASE/MAIN FLOOR | 4 | 0 | 1981 | 2958.3 |
| | BIG | BUILT IN GARAGE | 4 | 0 | 1981 | 672.0 |
| | OCP | OPEN CARPORT | 4 | 0 | 1981 | 192.0 |
| | UTY | STORAGE/UTILITY | 4 | 0 | 1981 | 100.0 |
| | UPS | UPPER STORY | 4 | 0 | 1981 | 673.4 |
| | OWP | OPEN WOOD PORCH W/STEPS | 4 | 0 | 1981 | 329.0 |
| | ENP | ENCLOSED PORCH | 4 | 0 | 1981 | 517.0 |
| | ENP | ENCLOSED PORCH | 4 | 0 | 1981 | 88.0 |
| | oPOL | POLE BARN | 3 | 0 | 2025 | 1500.0 |
Sketch
| No sketches available for this property. |
Property Image
Land
| 1 | 32 | AC (03.01-09.99) | 5.0200 | 0.00 | 0.00 | 0.00 | 1.00 | $340,000 | $0 |
Roll Value History
| 2026 | N/A | N/A | N/A | N/A | N/A |
| 2025 | $610,024 | $340,000 | $0 | $950,024 | $950,024 |
| 2024 | $555,289 | $320,000 | $0 | $875,289 | $875,289 |
| 2023 | $562,973 | $320,000 | $0 | $882,973 | $882,973 |
| 2022 | $515,707 | $300,000 | $0 | $815,707 | $815,707 |
| 2021 | $454,474 | $190,000 | $0 | $644,474 | $644,474 |
| 2020 | $399,133 | $160,000 | $0 | $559,133 | $559,133 |
| 2019 | $321,181 | $220,000 | $0 | $541,181 | $541,181 |
| 2018 | $322,293 | $200,000 | $0 | $522,293 | $522,293 |
| 2017 | $324,515 | $165,000 | $0 | $489,515 | $489,515 |
| 2016 | $299,427 | $140,000 | $0 | $439,427 | $439,427 |
| 2015 | $303,584 | $120,000 | $0 | $423,584 | $423,584 |
| 2014 | $307,744 | $100,000 | $0 | $407,744 | $407,744 |
| 2013 | $311,905 | $108,000 | $0 | $419,905 | $419,905 |
| 2012 | $316,061 | $99,396 | $0 | $415,457 | $415,457 |
| 2011 | $320,221 | $110,440 | $0 | $430,661 | $430,661 |
| 2010 | $321,189 | $110,440 | $0 | $431,629 | $431,629 |
| 2009 | $335,147 | $145,580 | $0 | $480,727 | $480,727 |
| 2008 | $347,808 | $145,580 | $0 | $493,388 | $493,388 |
| 2007 | $352,029 | $132,528 | $0 | $484,557 | $484,557 |
Deed and Sales History
| 1 | 09/03/2020 | WD | Warranty Deed | BURTON, MARGARET M | WHITE, MICHAEL | | | $638,260.00 | 44597 | 4495710 |
| 2 | 05/02/2019 | PRD | Personal Representatives Deed | BURTON, ROBERT A | BURTON, MARGARET M | | | $0.00 | 38328 | 4462522 |
| 3 | 09/26/2011 | WD | Warranty Deed | BURTON, ROBERT A | BURTON, ROBERT A | | | $0.00 | 36142 | 4452753 |
| 4 | 09/26/2011 | WD | Warranty Deed | MULLER, CHARLES H | BURTON, ROBERT A | | | $416,000.00 | 5676 | 4302041 |
| 5 | 06/08/2007 | QCD | Quit Claim Deed | MULLER, CHARLES H | MULLER, CHARLES H | | | $0.00 | 71912 | 4204160 |
| 6 | 02/14/2007 | QCD | Quit Claim Deed | MULLER, CHARLES H | MULLER, CHARLES H | | | $0.00 | 71911 | 4204159 |
| 7 | 11/16/2006 | OTHER | Other - Misc. Documents | MULLER ET AL, EMILY B | MULLER, CHARLES H | | | $0.00 | 80069 | 0 |
| 8 | 04/30/2004 | OTHER | Other - Misc. Documents | O'NEILL, EMILY M | MULLER ET AL, EMILY B | | | $0.00 | 70237 | 0 |
| 9 | 05/01/1996 | OTHER | Other - Misc. Documents | MULLER, EMILY B | O'NEILL, EMILY M | | | $0.00 | 66913 | 0 |
| 10 | 10/01/1994 | QCD | Quit Claim Deed | MULLER, EMILY E | MULLER, EMILY B | | | $0.00 | 44172 | 94021517 |
| 11 | 09/01/1994 | PRD | Personal Representatives Deed | MULLER, GEORGE W | MULLER, EMILY E | | | $0.00 | 43894 | 94020229 |
| 12 | 01/01/1974 | TRUSTEED | Trustee's Deed | LOGAN, LOUIS C | MULLER, GEORGE W | | | $0.00 | 52270 | 0 |
| 13 | 01/01/1900 | OTHER | Other - Misc. Documents | Unknown | LOGAN, LOUIS C | | | $0.00 | 0 | 0 |
Payout Agreement
| No payout information available.. |