Property
Account |
| Property ID: | 108289 | Abbreviated Legal Description: | 36 WALLACE DLC - BG NECR J MOUNT DLC S88*E235' N810' S88*E552.12' N250' TPB N497 .10' N88*W457' S497.10' S88*E457' TPB TGW & SUB TO EZ |
| Geographic ID: | R23332-518-0880 | Agent Code: | |
| Type: | Real | | |
| Tax Area: | 112 - APPRAISER-OH Schl Dist, outside OH, improved, greater than 1 acre | Land Use Code | 11 |
| Open Space: | N | DFL | N |
| Historic Property: | N | Remodel Property: | N |
| Multi-Family Redevelopment: | N | | |
| Township: | 33 | Section: | 32 |
| Range: | R2 |
Location |
| Address: | 2776 TAYLOR RD OAK HARBOR, WA 98277 | Mapsco: | |
| Neighborhood: | Cycle 6 | Map ID: | 649 |
| Neighborhood CD: | 6 |
Owner |
| Name: | TITUS, FRANCES M | Owner ID: | 290686 |
| Mailing Address: | GILBERT L TITUS 2776 TAYLOR RD OAK HARBOR, WA 98277 | % Ownership: | 100.0000000000% |
| | | Exemptions: | |
Taxes and Assessment Details
Values
| (+) Improvement Homesite Value: | + | $0 | |
| (+) Improvement Non-Homesite Value: | + | $166,911 | |
| (+) Land Homesite Value: | + | $0 | |
| (+) Land Non-Homesite Value: | + | $340,000 | |
| (+) Curr Use (HS): | + | $0 | $0 |
| (+) Curr Use (NHS): | + | $0 | $0 |
| | | -------------------------- | |
| (=) Market Value: | = | $506,911 | |
| (–) Productivity Loss: | – | $0 | |
| | | -------------------------- | |
| (=) Subtotal: | = | $506,911 | |
| (+) Senior Appraised Value: | + | $0 | |
| (+) Non-Senior Appraised Value: | + | $506,911 | |
| | | -------------------------- | |
| (=) Total Appraised Value: | = | $506,911 | |
| (–) Senior Exemption Loss: | – | $0 | |
| (–) Exemption Loss: | – | $0 | |
| | | -------------------------- | |
| (=) Taxable Value: | = | $506,911 | |
Taxing Jurisdiction
| Owner: | TITUS, FRANCES M | | |
| % Ownership: | 100.0000000000% | | |
| Total Value: | $506,911 | | |
| Tax Area: | 112 - APPRAISER-OH Schl Dist, outside OH, improved, greater than 1 acre |
| CF | Conservation Futures | 0.0316035091 | $506,911 | $506,911 | $16.02 | | |
| CEM1 | Cemetery #1 | 0.0040320932 | $506,911 | $506,911 | $2.04 | | |
| FIRE2 | Fire & Rescue Dist #2 N Whidbey GEN | 0.5475949600 | $506,911 | $506,911 | $277.58 | | |
| HOBOND | Hospital BOND | 0.1910887512 | $506,911 | $506,911 | $96.86 | | |
| HOGEN | Hospital GEN | 0.3902502903 | $506,911 | $506,911 | $197.82 | | |
| CE | County Current Expense | 0.3708482477 | $506,911 | $506,911 | $187.99 | | |
| CR | County Roads | 0.4584763726 | $506,911 | $506,911 | $232.41 | | |
| ISLANDEMS | Hospital GEN (EMS) | 0.5000000000 | $506,911 | $506,911 | $253.46 | | |
| LIB | Library Sno-Isle GEN | 0.3153421757 | $506,911 | $506,911 | $159.85 | | |
| NWHIDPRMT | P & R N Whidbey GEN | 0.2004466701 | $506,911 | $506,911 | $101.61 | | |
| SCH201MO | School 201 Enrichment | 1.8559231640 | $506,911 | $506,911 | $940.79 | | |
| ST | State School | 1.3035497053 | $506,911 | $506,911 | $660.78 | | |
| ST2 | State School Part 2 | 0.8169543533 | $506,911 | $506,911 | $414.12 | | |
| | Total Tax Rate: | 6.9861102925 | | | | | |
| | | | | Taxes w/Current Exemptions: | $3,541.33 | | |
| | | | | Taxes w/o Exemptions: | $3,541.33 | | |
Improvement / Building
| Improvement #1: | MANUFACTURED HOME | State Code: | Y | 1728.0 sqft | Value: | $166,911 |
| Bathrooms: | 0 | Bedrooms: | 0 | | Ceiling: | PLASTER PAINTED | Cooling: | EVAP NO DUCT | | Exterior Wall/Cover: | VINYL | Floor Covering: | CARPET 100% | | Floor Structure: | SLAB ON GRADE | Foundation: | SLAB | | Heating: | FHA ELECTRIC | Interior Finish: | PLASTER | | Plumbing Fixture Cnt: | 1 | Roof Slope: | FLAT | | Roof Structure/Cover: | CJ ALUMINIUM HEAVY |   |   |
|
| | Type | Description | Class CD | Sub Class CD | Year Built | Area |
| | BAS | BASE/MAIN FLOOR | 4 | 0 | 1995 | 1728.0 |
| | UTY | STORAGE/UTILITY | 4 | 0 | 1995 | 1080.0 |
| | OWP | OPEN WOOD PORCH W/STEPS | 4 | 0 | 1995 | 260.0 |
| | OWP | OPEN WOOD PORCH W/STEPS | 4 | 0 | 1995 | 25.6 |
| | OWP | OPEN WOOD PORCH W/STEPS | 4 | 0 | 1995 | 64.0 |
Sketch
Property Image
Land
| 1 | 32 | AC (03.01-09.99) | 5.2200 | 0.00 | 0.00 | 0.00 | 1.00 | $340,000 | $0 |
Roll Value History
| 2026 | N/A | N/A | N/A | N/A | N/A |
| 2025 | $166,911 | $340,000 | $0 | $506,911 | $506,911 |
| 2024 | $170,671 | $320,000 | $0 | $490,671 | $490,671 |
| 2023 | $155,062 | $320,000 | $0 | $475,062 | $475,062 |
| 2022 | $138,121 | $300,000 | $0 | $438,121 | $438,121 |
| 2021 | $121,976 | $190,000 | $0 | $311,976 | $311,976 |
| 2020 | $121,575 | $160,000 | $0 | $281,575 | $281,575 |
| 2019 | $81,317 | $220,000 | $0 | $301,317 | $301,317 |
| 2018 | $82,221 | $200,000 | $0 | $282,221 | $282,221 |
| 2017 | $84,030 | $165,000 | $0 | $249,030 | $249,030 |
| 2016 | $83,714 | $140,000 | $0 | $223,714 | $223,714 |
| 2015 | $85,589 | $120,000 | $0 | $205,589 | $205,589 |
| 2014 | $87,462 | $108,000 | $0 | $195,462 | $195,462 |
| 2013 | $88,399 | $108,000 | $0 | $196,399 | $196,399 |
| 2012 | $90,274 | $150,336 | $0 | $240,610 | $240,610 |
| 2011 | $92,147 | $167,040 | $0 | $259,187 | $259,187 |
| 2010 | $103,540 | $167,040 | $0 | $270,580 | $270,580 |
| 2009 | $108,297 | $172,260 | $0 | $280,557 | $280,557 |
| 2008 | $110,548 | $172,260 | $0 | $282,808 | $282,808 |
| 2007 | $113,840 | $137,808 | $0 | $251,648 | $251,648 |
Deed and Sales History
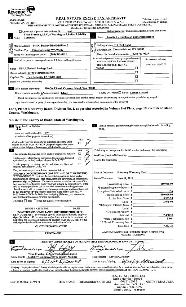
| 1 | 06/28/2019 | WD | Warranty Deed | ECKARD, GLENN J / TEXIE P | TITUS, FRANCES M | | | $277,779.00 | 39267 | 4466565 |
| 2 | 07/01/1991 | WD | Warranty Deed | KROTZ, CHARLES K | ECKARD, GLENN J | | | $42,000.00 | 12563 | 91010858 |
| 3 | 01/01/1900 | OTHER | Other - Misc. Documents | Unknown | KROTZ, CHARLES K | | | $0.00 | 0 | 0 |
Payout Agreement
| No payout information available.. |