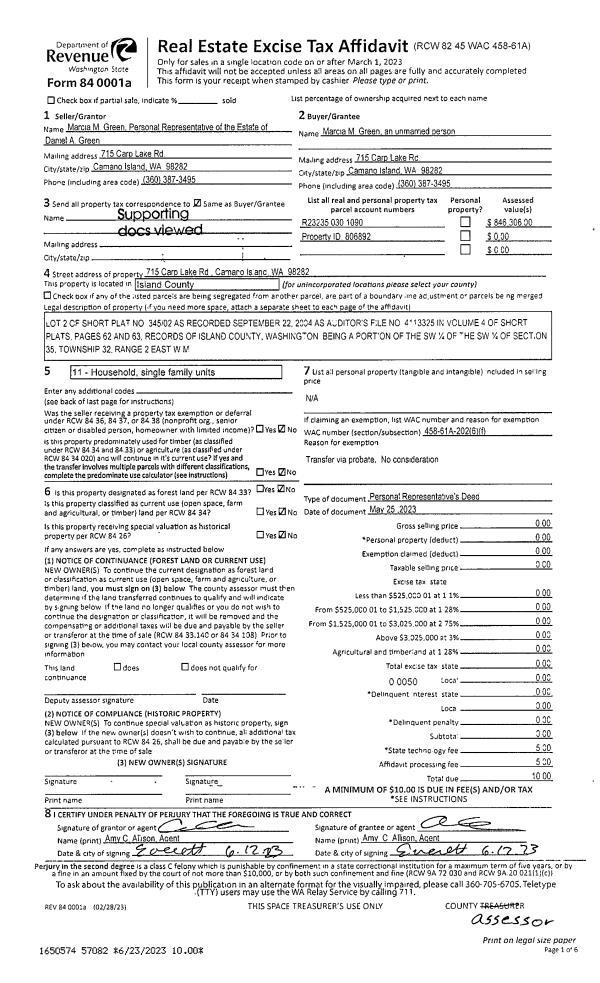
Property
Account |
| Property ID: | 108724 | Abbreviated Legal Description: | 67 - NW SE SW SW TGW SUB EZ |
| Geographic ID: | R23334-057-0830 | Agent Code: | |
| Type: | Real | | |
| Tax Area: | 112 - APPRAISER-OH Schl Dist, outside OH, improved, greater than 1 acre | Land Use Code | 11 |
| Open Space: | N | DFL | N |
| Historic Property: | N | Remodel Property: | N |
| Multi-Family Redevelopment: | N | | |
| Township: | 33 | Section: | 34 |
| Range: | R2 |
Location |
| Address: | 1261 EAGLE RIDGE RD OAK HARBOR, WA 98277 | Mapsco: | |
| Neighborhood: | Cycle 6 | Map ID: | 655 |
| Neighborhood CD: | 6 |
Owner |
| Name: | HAMMOND, CHARLES M | Owner ID: | 28298 |
| Mailing Address: | 1261 EAGLE RIDGE RD OAK HARBOR, WA 98277-8646 | % Ownership: | 100.0000000000% |
| | | Exemptions: | |
Taxes and Assessment Details
Values
| (+) Improvement Homesite Value: | + | $0 | |
| (+) Improvement Non-Homesite Value: | + | $218,077 | |
| (+) Land Homesite Value: | + | $0 | |
| (+) Land Non-Homesite Value: | + | $250,000 | |
| (+) Curr Use (HS): | + | $0 | $0 |
| (+) Curr Use (NHS): | + | $0 | $0 |
| | | -------------------------- | |
| (=) Market Value: | = | $468,077 | |
| (–) Productivity Loss: | – | $0 | |
| | | -------------------------- | |
| (=) Subtotal: | = | $468,077 | |
| (+) Senior Appraised Value: | + | $0 | |
| (+) Non-Senior Appraised Value: | + | $468,077 | |
| | | -------------------------- | |
| (=) Total Appraised Value: | = | $468,077 | |
| (–) Senior Exemption Loss: | – | $0 | |
| (–) Exemption Loss: | – | $0 | |
| | | -------------------------- | |
| (=) Taxable Value: | = | $468,077 | |
Taxing Jurisdiction
| Owner: | HAMMOND, CHARLES M | | |
| % Ownership: | 100.0000000000% | | |
| Total Value: | $468,077 | | |
| Tax Area: | 112 - APPRAISER-OH Schl Dist, outside OH, improved, greater than 1 acre |
| CF | Conservation Futures | 0.0316035091 | $468,077 | $468,077 | $14.79 | | |
| CEM1 | Cemetery #1 | 0.0040320932 | $468,077 | $468,077 | $1.89 | | |
| FIRE2 | Fire & Rescue Dist #2 N Whidbey GEN | 0.5475949600 | $468,077 | $468,077 | $256.32 | | |
| HOBOND | Hospital BOND | 0.1910887512 | $468,077 | $468,077 | $89.44 | | |
| HOGEN | Hospital GEN | 0.3902502903 | $468,077 | $468,077 | $182.67 | | |
| CE | County Current Expense | 0.3708482477 | $468,077 | $468,077 | $173.59 | | |
| CR | County Roads | 0.4584763726 | $468,077 | $468,077 | $214.60 | | |
| ISLANDEMS | Hospital GEN (EMS) | 0.5000000000 | $468,077 | $468,077 | $234.04 | | |
| LIB | Library Sno-Isle GEN | 0.3153421757 | $468,077 | $468,077 | $147.60 | | |
| NWHIDPRMT | P & R N Whidbey GEN | 0.2004466701 | $468,077 | $468,077 | $93.82 | | |
| SCH201MO | School 201 Enrichment | 1.8559231640 | $468,077 | $468,077 | $868.71 | | |
| ST | State School | 1.3035497053 | $468,077 | $468,077 | $610.16 | | |
| ST2 | State School Part 2 | 0.8169543533 | $468,077 | $468,077 | $382.40 | | |
| | Total Tax Rate: | 6.9861102925 | | | | | |
| | | | | Taxes w/Current Exemptions: | $3,270.03 | | |
| | | | | Taxes w/o Exemptions: | $3,270.03 | | |
Improvement / Building
| Improvement #1: | RESIDENTIAL | State Code: | Y | 1300.0 sqft | Value: | $218,077 |
| Bathrooms: | 2 | Bedrooms: | 3 | | Ceiling: | DRY WALL SPRAYED | Exterior Wall/Cover: | PLY/HARDBOARD T-111 | | Floor Covering: | CARPET/VINYL 80-20 | Floor Structure: | WOOD W/SUBFLOOR | | Foundation: | CONCRETE | Heating: | FHA GAS | | Interior Finish: | DRYWALL PAINT | Plumbing Fixture Cnt: | 9 | | Roof Slope: | 4" IN 12" | Roof Structure/Cover: | CJ ASPHALT |
|
| | Type | Description | Class CD | Sub Class CD | Year Built | Area |
| | BAS | BASE/MAIN FLOOR | 3 | 0 | 1977 | 1300.0 |
| | AGR | ATTACHED GARAGE | 3 | 0 | 1977 | 450.0 |
| | OWP | OPEN WOOD PORCH W/STEPS | 3 | 0 | 1977 | 384.0 |
| | OWP | OPEN WOOD PORCH W/STEPS | 3 | 0 | 1977 | 676.0 |
| | DGR | DETACHED GARAGE | 3 | 0 | 1977 | 1104.0 |
Sketch
Property Image
Land
| 1 | 18 | AC (02.01-03.00) | 2.5000 | 108900.00 | 0.00 | 0.00 | 1.00 | $250,000 | $0 |
Roll Value History
| 2026 | N/A | N/A | N/A | N/A | N/A |
| 2025 | $218,077 | $250,000 | $0 | $468,077 | $468,077 |
| 2024 | $221,030 | $230,000 | $0 | $451,030 | $451,030 |
| 2023 | $223,983 | $220,000 | $0 | $443,983 | $443,983 |
| 2022 | $185,965 | $210,000 | $0 | $395,965 | $395,965 |
| 2021 | $165,179 | $160,000 | $0 | $325,179 | $325,179 |
| 2020 | $161,406 | $140,000 | $0 | $301,406 | $301,406 |
| 2019 | $117,113 | $200,000 | $0 | $317,113 | $317,113 |
| 2018 | $117,504 | $170,000 | $0 | $287,504 | $287,504 |
| 2017 | $118,286 | $150,000 | $0 | $268,286 | $268,286 |
| 2016 | $101,482 | $120,000 | $0 | $221,482 | $221,482 |
| 2015 | $103,038 | $100,000 | $0 | $203,038 | $203,038 |
| 2014 | $104,593 | $100,000 | $0 | $204,593 | $204,593 |
| 2013 | $106,147 | $90,000 | $0 | $196,147 | $196,147 |
| 2012 | $107,703 | $108,000 | $0 | $215,703 | $215,703 |
| 2011 | $109,258 | $120,000 | $0 | $229,258 | $229,258 |
| 2010 | $111,268 | $120,000 | $0 | $231,268 | $231,268 |
| 2009 | $116,942 | $155,000 | $0 | $271,942 | $271,942 |
| 2008 | $124,184 | $145,000 | $0 | $269,184 | $269,184 |
| 2007 | $126,898 | $145,000 | $0 | $271,898 | $271,898 |
Deed and Sales History
| 1 | 05/01/1978 | OTHER | Other - Misc. Documents | Unknown | HAMMOND, CHARLES M | | | $47,800.00 | 81832 | 330773 |
Payout Agreement
| No payout information available.. |