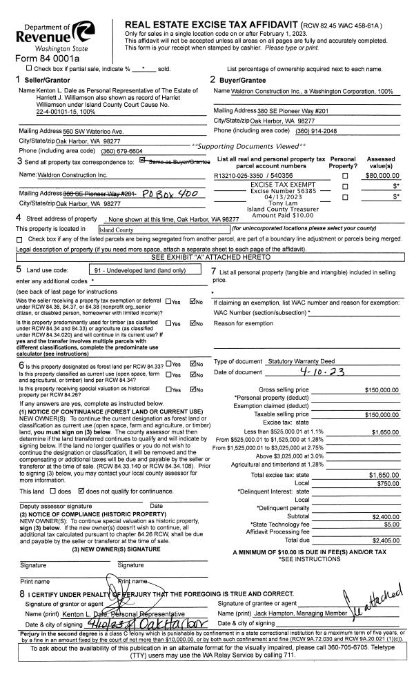
Property
Account |
| Property ID: | 108751 | Abbreviated Legal Description: | 73 - NW SE SE SW TGW SUB EZ (TR B SP 78-10 AF#327503) |
| Geographic ID: | R23334-057-2150 | Agent Code: | |
| Type: | Real | | |
| Tax Area: | 112 - APPRAISER-OH Schl Dist, outside OH, improved, greater than 1 acre | Land Use Code | 11 |
| Open Space: | N | DFL | N |
| Historic Property: | N | Remodel Property: | N |
| Multi-Family Redevelopment: | N | | |
| Township: | 33 | Section: | 34 |
| Range: | R2 |
Location |
| Address: | 1354 EAGLE RIDGE RD OAK HARBOR, WA 98277 | Mapsco: | |
| Neighborhood: | Cycle 6 | Map ID: | 655 |
| Neighborhood CD: | 6 |
Owner |
| Name: | PARKS, LAWRENCE D | Owner ID: | 74305 |
| Mailing Address: | KAREN L MULHERN-PARKS 1354 EAGLE RIDGE RD OAK HARBOR, WA 98277-8651 | % Ownership: | 100.0000000000% |
| | | Exemptions: | |
Taxes and Assessment Details
Values
| (+) Improvement Homesite Value: | + | $0 | |
| (+) Improvement Non-Homesite Value: | + | $220,117 | |
| (+) Land Homesite Value: | + | $0 | |
| (+) Land Non-Homesite Value: | + | $250,000 | |
| (+) Curr Use (HS): | + | $0 | $0 |
| (+) Curr Use (NHS): | + | $0 | $0 |
| | | -------------------------- | |
| (=) Market Value: | = | $470,117 | |
| (–) Productivity Loss: | – | $0 | |
| | | -------------------------- | |
| (=) Subtotal: | = | $470,117 | |
| (+) Senior Appraised Value: | + | $0 | |
| (+) Non-Senior Appraised Value: | + | $470,117 | |
| | | -------------------------- | |
| (=) Total Appraised Value: | = | $470,117 | |
| (–) Senior Exemption Loss: | – | $0 | |
| (–) Exemption Loss: | – | $0 | |
| | | -------------------------- | |
| (=) Taxable Value: | = | $470,117 | |
Taxing Jurisdiction
| Owner: | PARKS, LAWRENCE D | | |
| % Ownership: | 100.0000000000% | | |
| Total Value: | $470,117 | | |
| Tax Area: | 112 - APPRAISER-OH Schl Dist, outside OH, improved, greater than 1 acre |
| CF | Conservation Futures | 0.0316035091 | $470,117 | $470,117 | $14.86 | | |
| CEM1 | Cemetery #1 | 0.0040320932 | $470,117 | $470,117 | $1.90 | | |
| FIRE2 | Fire & Rescue Dist #2 N Whidbey GEN | 0.5475949600 | $470,117 | $470,117 | $257.43 | | |
| HOBOND | Hospital BOND | 0.1910887512 | $470,117 | $470,117 | $89.83 | | |
| HOGEN | Hospital GEN | 0.3902502903 | $470,117 | $470,117 | $183.46 | | |
| CE | County Current Expense | 0.3708482477 | $470,117 | $470,117 | $174.34 | | |
| CR | County Roads | 0.4584763726 | $470,117 | $470,117 | $215.54 | | |
| ISLANDEMS | Hospital GEN (EMS) | 0.5000000000 | $470,117 | $470,117 | $235.06 | | |
| LIB | Library Sno-Isle GEN | 0.3153421757 | $470,117 | $470,117 | $148.25 | | |
| NWHIDPRMT | P & R N Whidbey GEN | 0.2004466701 | $470,117 | $470,117 | $94.23 | | |
| SCH201MO | School 201 Enrichment | 1.8559231640 | $470,117 | $470,117 | $872.50 | | |
| ST | State School | 1.3035497053 | $470,117 | $470,117 | $612.82 | | |
| ST2 | State School Part 2 | 0.8169543533 | $470,117 | $470,117 | $384.06 | | |
| | Total Tax Rate: | 6.9861102925 | | | | | |
| | | | | Taxes w/Current Exemptions: | $3,284.28 | | |
| | | | | Taxes w/o Exemptions: | $3,284.28 | | |
Improvement / Building
| Improvement #1: | RESIDENTIAL | State Code: | Y | 1536.0 sqft | Value: | $220,117 |
| Bathrooms: | 1.5 | Bedrooms: | 3 | | Ceiling: | DRY WALL SPRAYED | Exterior Wall/Cover: | PLY/HARDBOARD T-111 | | Floor Covering: | CARPET/VINYL 80-20 | Floor Structure: | WOOD W/SUBFLOOR | | Foundation: | CONCRETE | Heating: | BASEBOARD ELECTRIC | | Interior Finish: | DRYWALL PAINT | Plumbing Fixture Cnt: | 8 | | Roof Slope: | 5" IN 12" | Roof Structure/Cover: | BEAM ASPHALT |
|
| | Type | Description | Class CD | Sub Class CD | Year Built | Area |
| | BAS | BASE/MAIN FLOOR | 3 | 0 | 1979 | 768.0 |
| | UPS | UPPER STORY | 3 | 0 | 1979 | 768.0 |
| | OWP | OPEN WOOD PORCH W/STEPS | 3 | 0 | 1979 | 406.0 |
| | DGR | DETACHED GARAGE | 3 | 0 | 1979 | 600.0 |
Sketch
Property Image
Land
| 1 | 18 | AC (02.01-03.00) | 2.5000 | 108900.00 | 0.00 | 0.00 | 1.00 | $250,000 | $0 |
Roll Value History
| 2026 | N/A | N/A | N/A | N/A | N/A |
| 2025 | $220,117 | $250,000 | $0 | $470,117 | $470,117 |
| 2024 | $228,031 | $230,000 | $0 | $458,031 | $458,031 |
| 2023 | $231,231 | $220,000 | $0 | $451,231 | $451,231 |
| 2022 | $203,576 | $210,000 | $0 | $413,576 | $413,576 |
| 2021 | $179,548 | $160,000 | $0 | $339,548 | $339,548 |
| 2020 | $175,454 | $140,000 | $0 | $315,454 | $315,454 |
| 2019 | $128,813 | $200,000 | $0 | $328,813 | $328,813 |
| 2018 | $129,253 | $170,000 | $0 | $299,253 | $299,253 |
| 2017 | $130,132 | $150,000 | $0 | $280,132 | $280,132 |
| 2016 | $100,366 | $120,000 | $0 | $220,366 | $220,366 |
| 2015 | $101,842 | $100,000 | $0 | $201,842 | $201,842 |
| 2014 | $103,317 | $100,000 | $0 | $203,317 | $203,317 |
| 2013 | $104,792 | $90,000 | $0 | $194,792 | $194,792 |
| 2012 | $106,267 | $108,000 | $0 | $214,267 | $214,267 |
| 2011 | $107,742 | $120,000 | $0 | $227,742 | $227,742 |
| 2010 | $128,112 | $120,000 | $0 | $248,112 | $248,112 |
| 2009 | $133,787 | $155,000 | $0 | $288,787 | $288,787 |
| 2008 | $141,131 | $145,000 | $0 | $286,131 | $286,131 |
| 2007 | $143,267 | $145,000 | $0 | $288,267 | $288,267 |
Deed and Sales History
| 1 | 05/18/2006 | WD | Warranty Deed | BLAKENEY, THOMAS H | PARKS, LAWRENCE D | | | $275,000.00 | 62334 | 4171652 |
| 2 | 07/01/1993 | WD | Warranty Deed | CEDENO, SERGIO & | BLAKENEY, THOMAS H | | | $119,000.00 | 32602 | 93013438 |
| 3 | 11/01/1990 | WD | Warranty Deed | GRAY, HAROLD G | CEDENO, SERGIO & | | | $90,000.00 | 6345 | 90021949 |
| 4 | 07/01/1979 | WD | Warranty Deed | COZINE, MIKE | GRAY, HAROLD G | | | $52,563.00 | 93351 | 355353 |
| 5 | 01/01/1979 | OTHER | Other - Misc. Documents | HO, | COZINE, MIKE | | | $13,000.00 | 904390 | 3466510 |
| 6 | 08/01/1978 | OTHER | Other - Misc. Documents | Unknown | HO, | | | $13,000.00 | 853270 | 3421300 |
Payout Agreement
| No payout information available.. |