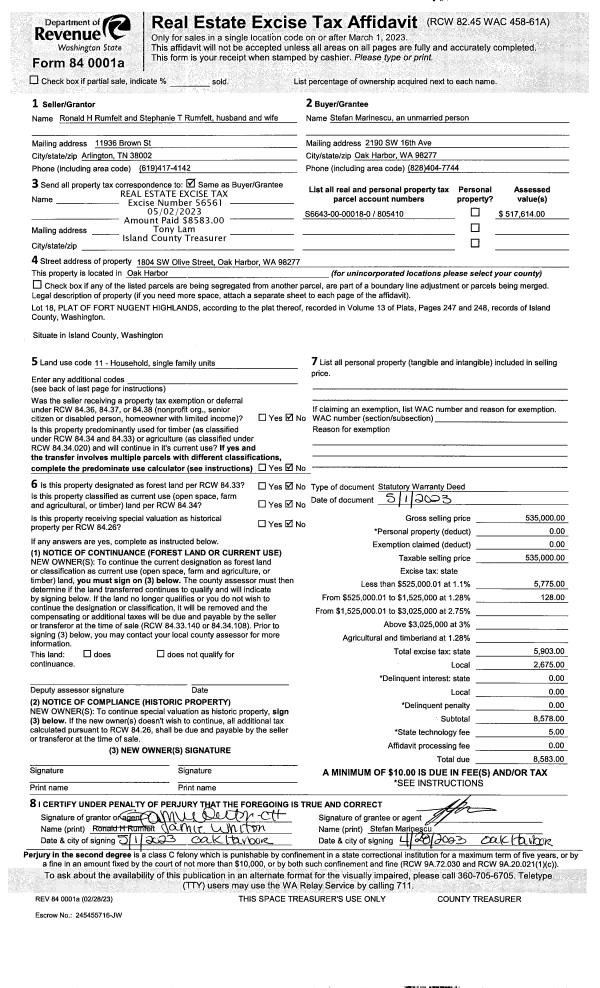
Property
Account |
| Property ID: | 108902 | Abbreviated Legal Description: | 120 - S/2 E/2 NE SE SW TGW & SUBJ TO EZ EX S30' RD |
| Geographic ID: | R23334-090-2480 | Agent Code: | |
| Type: | Real | | |
| Tax Area: | 112 - APPRAISER-OH Schl Dist, outside OH, improved, greater than 1 acre | Land Use Code | 11 |
| Open Space: | N | DFL | N |
| Historic Property: | N | Remodel Property: | N |
| Multi-Family Redevelopment: | N | | |
| Township: | 33 | Section: | 34 |
| Range: | R2 |
Location |
| Address: | 1385 EAGLE RIDGE RD OAK HARBOR, WA 98277 | Mapsco: | |
| Neighborhood: | Cycle 6 | Map ID: | 655 |
| Neighborhood CD: | 6 |
Owner |
| Name: | JOHNSON, JOHNNY | Owner ID: | 301366 |
| Mailing Address: | TERRA JOHNSON 1385 EAGLE RIDGE RD OAK HARBOR, WA 98277 | % Ownership: | 100.0000000000% |
| | | Exemptions: | |
Taxes and Assessment Details
Values
| (+) Improvement Homesite Value: | + | $0 | |
| (+) Improvement Non-Homesite Value: | + | $590,934 | |
| (+) Land Homesite Value: | + | $0 | |
| (+) Land Non-Homesite Value: | + | $250,000 | |
| (+) Curr Use (HS): | + | $0 | $0 |
| (+) Curr Use (NHS): | + | $0 | $0 |
| | | -------------------------- | |
| (=) Market Value: | = | $840,934 | |
| (–) Productivity Loss: | – | $0 | |
| | | -------------------------- | |
| (=) Subtotal: | = | $840,934 | |
| (+) Senior Appraised Value: | + | $0 | |
| (+) Non-Senior Appraised Value: | + | $840,934 | |
| | | -------------------------- | |
| (=) Total Appraised Value: | = | $840,934 | |
| (–) Senior Exemption Loss: | – | $0 | |
| (–) Exemption Loss: | – | $0 | |
| | | -------------------------- | |
| (=) Taxable Value: | = | $840,934 | |
Taxing Jurisdiction
| Owner: | JOHNSON, JOHNNY | | |
| % Ownership: | 100.0000000000% | | |
| Total Value: | $840,934 | | |
| Tax Area: | 112 - APPRAISER-OH Schl Dist, outside OH, improved, greater than 1 acre |
| CF | Conservation Futures | 0.0316035091 | $840,934 | $840,934 | $26.58 | | |
| CEM1 | Cemetery #1 | 0.0040320932 | $840,934 | $840,934 | $3.39 | | |
| FIRE2 | Fire & Rescue Dist #2 N Whidbey GEN | 0.5475949600 | $840,934 | $840,934 | $460.49 | | |
| HOBOND | Hospital BOND | 0.1910887512 | $840,934 | $840,934 | $160.69 | | |
| HOGEN | Hospital GEN | 0.3902502903 | $840,934 | $840,934 | $328.17 | | |
| CE | County Current Expense | 0.3708482477 | $840,934 | $840,934 | $311.86 | | |
| CR | County Roads | 0.4584763726 | $840,934 | $840,934 | $385.55 | | |
| ISLANDEMS | Hospital GEN (EMS) | 0.5000000000 | $840,934 | $840,934 | $420.47 | | |
| LIB | Library Sno-Isle GEN | 0.3153421757 | $840,934 | $840,934 | $265.18 | | |
| NWHIDPRMT | P & R N Whidbey GEN | 0.2004466701 | $840,934 | $840,934 | $168.56 | | |
| SCH201MO | School 201 Enrichment | 1.8559231640 | $840,934 | $840,934 | $1,560.71 | | |
| ST | State School | 1.3035497053 | $840,934 | $840,934 | $1,096.20 | | |
| ST2 | State School Part 2 | 0.8169543533 | $840,934 | $840,934 | $687.00 | | |
| | Total Tax Rate: | 6.9861102925 | | | | | |
| | | | | Taxes w/Current Exemptions: | $5,874.85 | | |
| | | | | Taxes w/o Exemptions: | $5,874.85 | | |
Improvement / Building
| Improvement #1: | RESIDENTIAL | State Code: | Y | 4200.9 sqft | Value: | $590,934 |
| Bathrooms: | 3 | Bedrooms: | 4 | | Ceiling: | DRY WALL SPRAYED | Cooling: | HEAT PUMP/CONV/V | | Exterior Wall/Cover: | WOOD SIDING | Floor Covering: | CERAMIC TILE/HWD 40/60 | | Floor Structure: | WOOD W/SUBFLOOR | Foundation: | CONCRETE | | Interior Finish: | DRYWALL PAINT | Plumbing Fixture Cnt: | 15 | | Roof Slope: | 4" IN 12" | Roof Structure/Cover: | CJ ASPHALT |
|
| | Type | Description | Class CD | Sub Class CD | Year Built | Area |
| | BAS | BASE/MAIN FLOOR | 4 | 0 | 1979 | 2376.3 |
| | DWN | DOWNSTAIRS LIVING AREA | 4 | 0 | 1979 | 1824.6 |
| | BGR | BASEMENT GARAGE | 4 | 0 | 1979 | 441.0 |
| | ENP | ENCLOSED PORCH | 4 | 0 | 1979 | 216.0 |
| | UTY | STORAGE/UTILITY | 4 | 0 | 1979 | 216.0 |
| | OWP | OPEN WOOD PORCH W/STEPS | 4 | 0 | 1979 | 213.0 |
| | OWC | OPEN WOOD PORCH W/STEPS/ROOF/C | 4 | 0 | 1979 | 64.0 |
| | OP4 | OPEN PORCH W/CEILING-ROOF | 4 | 0 | 1979 | 103.0 |
Sketch
Property Image
Land
| 1 | 18 | AC (02.01-03.00) | 2.5000 | 108900.00 | 0.00 | 0.00 | 1.00 | $250,000 | $0 |
Roll Value History
| 2026 | N/A | N/A | N/A | N/A | N/A |
| 2025 | $590,934 | $250,000 | $0 | $840,934 | $840,934 |
| 2024 | $598,584 | $230,000 | $0 | $828,584 | $828,584 |
| 2023 | $606,232 | $220,000 | $0 | $826,232 | $826,232 |
| 2022 | $555,849 | $210,000 | $0 | $765,849 | $765,849 |
| 2021 | $339,010 | $160,000 | $0 | $499,010 | $499,010 |
| 2020 | $331,525 | $140,000 | $0 | $471,525 | $471,525 |
| 2019 | $272,512 | $200,000 | $0 | $472,512 | $472,512 |
| 2018 | $273,350 | $170,000 | $0 | $443,350 | $443,350 |
| 2017 | $276,321 | $150,000 | $0 | $426,321 | $426,321 |
| 2016 | $262,318 | $120,000 | $0 | $382,318 | $382,318 |
| 2015 | $265,598 | $100,000 | $0 | $365,598 | $365,598 |
| 2014 | $268,877 | $100,000 | $0 | $368,877 | $368,877 |
| 2013 | $272,155 | $90,000 | $0 | $362,155 | $362,155 |
| 2012 | $261,167 | $108,000 | $0 | $369,167 | $369,167 |
| 2011 | $264,276 | $120,000 | $0 | $384,276 | $384,276 |
| 2010 | $169,987 | $120,000 | $0 | $289,987 | $289,987 |
| 2009 | $177,196 | $155,000 | $0 | $332,196 | $332,196 |
| 2008 | $172,845 | $145,000 | $0 | $317,845 | $317,845 |
| 2007 | $172,870 | $145,000 | $0 | $317,870 | $317,870 |
Deed and Sales History
| 1 | 09/27/2021 | WD | Warranty Deed | ARDUINNE, VICTORIA | JOHNSON, JOHNNY | | | $700,000.00 | 50271 | 4530382 |
| 2 | 08/07/2017 | DECREE | Divorce Decree/Legal Separation | ECKSTROM, VICKIE L | ARDUINNE, VICTORIA | | | | 87638 | |
| 3 | 04/27/2017 | CD | DNU - Correction Deed | ECKSTROM, REED A / VICKIE L | ECKSTROM, VICKIE L | | | $0.00 | 29842 | 4424685 |
| 4 | 02/01/1994 | WD | Warranty Deed | WORTHINGTON, JOHN R | ECKSTROM, REED A | | | $167,000.00 | 40835 | 94005239 |
| 5 | 04/01/1982 | WD | Warranty Deed | KRIEGER, DELMAR H | WORTHINGTON, JOHN R | | | $79,950.00 | 20725 | 394647 |
| 6 | 10/01/1979 | F | Deed In Fulfillment Of Contract | LOFGREN, JAMES | KRIEGER, DELMAR H | | | $65,900.00 | 95073 | 360423 |
| 7 | 10/01/1978 | OTHER | Other - Misc. Documents | Unknown | LOFGREN, JAMES | | | $12,900.00 | 848460 | 0 |
Payout Agreement
| No payout information available.. |