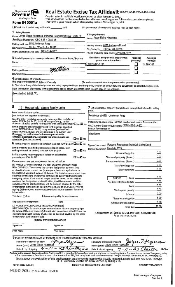
Property
Account |
| Property ID: | 109037 | Abbreviated Legal Description: | NW NE SE SW TGW & SUB TO EZ TGW & SUB EZ AF#95004389 TR 34N SP 78-112 AF#342747 |
| Geographic ID: | R23334-124-2150 | Agent Code: | |
| Type: | Real | | |
| Tax Area: | 112 - APPRAISER-OH Schl Dist, outside OH, improved, greater than 1 acre | Land Use Code | 11 |
| Open Space: | N | DFL | N |
| Historic Property: | N | Remodel Property: | N |
| Multi-Family Redevelopment: | N | | |
| Township: | 33 | Section: | 34 |
| Range: | R2 |
Location |
| Address: | 2456 HIGH POINT LN OAK HARBOR, WA 98277 | Mapsco: | |
| Neighborhood: | Cycle 6 | Map ID: | 655 |
| Neighborhood CD: | 6 |
Owner |
| Name: | HAUN, MICHAEL W | Owner ID: | 265780 |
| Mailing Address: | DEBORAH HAUN 2440 HIGH POINT LN OAK HARBOR, WA 98277 | % Ownership: | 100.0000000000% |
| | | Exemptions: | |
Taxes and Assessment Details
Values
| (+) Improvement Homesite Value: | + | $0 | |
| (+) Improvement Non-Homesite Value: | + | $66,350 | |
| (+) Land Homesite Value: | + | $0 | |
| (+) Land Non-Homesite Value: | + | $120,000 | |
| (+) Curr Use (HS): | + | $0 | $0 |
| (+) Curr Use (NHS): | + | $0 | $0 |
| | | -------------------------- | |
| (=) Market Value: | = | $186,350 | |
| (–) Productivity Loss: | – | $0 | |
| | | -------------------------- | |
| (=) Subtotal: | = | $186,350 | |
| (+) Senior Appraised Value: | + | $0 | |
| (+) Non-Senior Appraised Value: | + | $186,350 | |
| | | -------------------------- | |
| (=) Total Appraised Value: | = | $186,350 | |
| (–) Senior Exemption Loss: | – | $0 | |
| (–) Exemption Loss: | – | $0 | |
| | | -------------------------- | |
| (=) Taxable Value: | = | $186,350 | |
Taxing Jurisdiction
| Owner: | HAUN, MICHAEL W | | |
| % Ownership: | 100.0000000000% | | |
| Total Value: | $186,350 | | |
| Tax Area: | 112 - APPRAISER-OH Schl Dist, outside OH, improved, greater than 1 acre |
| CF | Conservation Futures | 0.0316035091 | $186,350 | $186,350 | $5.89 | | |
| CEM1 | Cemetery #1 | 0.0040320932 | $186,350 | $186,350 | $0.75 | | |
| FIRE2 | Fire & Rescue Dist #2 N Whidbey GEN | 0.5475949600 | $186,350 | $186,350 | $102.04 | | |
| HOBOND | Hospital BOND | 0.1910887512 | $186,350 | $186,350 | $35.61 | | |
| HOGEN | Hospital GEN | 0.3902502903 | $186,350 | $186,350 | $72.72 | | |
| CE | County Current Expense | 0.3708482477 | $186,350 | $186,350 | $69.11 | | |
| CR | County Roads | 0.4584763726 | $186,350 | $186,350 | $85.44 | | |
| ISLANDEMS | Hospital GEN (EMS) | 0.5000000000 | $186,350 | $186,350 | $93.18 | | |
| LIB | Library Sno-Isle GEN | 0.3153421757 | $186,350 | $186,350 | $58.76 | | |
| NWHIDPRMT | P & R N Whidbey GEN | 0.2004466701 | $186,350 | $186,350 | $37.35 | | |
| SCH201MO | School 201 Enrichment | 1.8559231640 | $186,350 | $186,350 | $345.85 | | |
| ST | State School | 1.3035497053 | $186,350 | $186,350 | $242.92 | | |
| ST2 | State School Part 2 | 0.8169543533 | $186,350 | $186,350 | $152.24 | | |
| | Total Tax Rate: | 6.9861102925 | | | | | |
| | | | | Taxes w/Current Exemptions: | $1,301.86 | | |
| | | | | Taxes w/o Exemptions: | $1,301.86 | | |
Improvement / Building
| Improvement #1: | RESIDENTIAL | State Code: | Y | 0.0 sqft | Value: | $66,350 |
| | Type | Description | Class CD | Sub Class CD | Year Built | Area |
| | DGR | DETACHED GARAGE | 3 | 0 | 2013 | 0.0 |
| | CPD | OPEN CARPORT DIRT FLOOR | 3 | 0 | 2013 | 0.0 |
Sketch
Property Image
Land
| 1 | 18 | AC (02.01-03.00) | 2.5000 | 108900.00 | 0.00 | 0.00 | 1.00 | $120,000 | $0 |
Roll Value History
| 2026 | N/A | N/A | N/A | N/A | N/A |
| 2025 | $66,350 | $120,000 | $0 | $186,350 | $186,350 |
| 2024 | $66,350 | $110,000 | $0 | $176,350 | $176,350 |
| 2023 | $66,350 | $110,000 | $0 | $176,350 | $176,350 |
| 2022 | $53,080 | $80,000 | $0 | $133,080 | $133,080 |
| 2021 | $53,080 | $80,000 | $0 | $133,080 | $133,080 |
| 2020 | $53,080 | $70,000 | $0 | $123,080 | $123,080 |
| 2019 | $53,080 | $110,000 | $0 | $163,080 | $163,080 |
| 2018 | $53,080 | $170,000 | $0 | $223,080 | $223,080 |
| 2017 | $53,080 | $150,000 | $0 | $203,080 | $203,080 |
| 2016 | $53,080 | $120,000 | $0 | $173,080 | $173,080 |
| 2015 | $53,080 | $95,000 | $0 | $148,080 | $148,080 |
| 2014 | $53,080 | $95,000 | $0 | $148,080 | $148,080 |
| 2013 | $0 | $101,000 | $0 | $101,000 | $101,000 |
| 2012 | $0 | $101,000 | $0 | $101,000 | $101,000 |
| 2011 | $0 | $101,000 | $0 | $101,000 | $101,000 |
| 2010 | $0 | $101,000 | $0 | $101,000 | $101,000 |
| 2009 | $0 | $140,550 | $0 | $140,550 | $140,550 |
| 2008 | $0 | $140,550 | $0 | $140,550 | $140,550 |
| 2007 | $0 | $89,900 | $0 | $89,900 | $89,900 |
Deed and Sales History
| 1 | 06/01/1995 | QCD | Quit Claim Deed | PRECISION, TIRE & | HAUN, MICHAEL W | | | $0.00 | 52055 | 95009572 |
| 2 | 03/01/1994 | OTHER | Other - Misc. Documents | MARKETOWN, TIRE C | PRECISION, TIRE & | | | $0.00 | 65829 | 0 |
| 3 | 10/01/1981 | CD | DNU - Correction Deed | HAUN, MICHAEL | MARKETOWN, TIRE C | | | $1.00 | 13278 | 389249 |
| 4 | 07/01/1979 | TRUSTEED | Trustee's Deed | ROCHE, ROBERT E | HAUN, MICHAEL | | | $13,750.00 | 93691 | 356336 |
| 5 | 01/01/1900 | OTHER | Other - Misc. Documents | Unknown | ROCHE, ROBERT E | | | $0.00 | 0 | 0 |
Payout Agreement
| No payout information available.. |