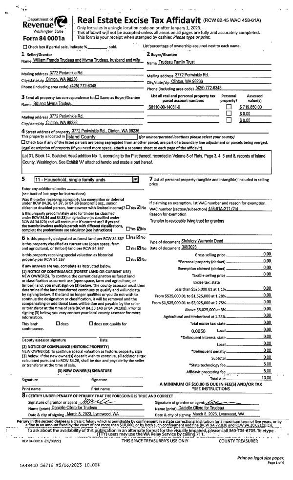
Property
Account |
| Property ID: | 109055 | Abbreviated Legal Description: | 105 - W/2 S/2 SW NW SW TGW & SUBJ TO EZ (TR 18W SP 75-86 AF#302164) |
| Geographic ID: | R23334-156-0160 | Agent Code: | |
| Type: | Real | | |
| Tax Area: | 112 - APPRAISER-OH Schl Dist, outside OH, improved, greater than 1 acre | Land Use Code | 11 |
| Open Space: | N | DFL | N |
| Historic Property: | N | Remodel Property: | N |
| Multi-Family Redevelopment: | N | | |
| Township: | 33 | Section: | 34 |
| Range: | R2 |
Location |
| Address: | 1225 FEATHER LN OAK HARBOR, WA 98277 | Mapsco: | |
| Neighborhood: | Cycle 6 | Map ID: | 655 |
| Neighborhood CD: | 6 |
Owner |
| Name: | LOESCHER, TRACY E / DAWN A | Owner ID: | 74337 |
| Mailing Address: | 1225 FEATHER LN OAK HARBOR, WA 98277 | % Ownership: | 100.0000000000% |
| | | Exemptions: | |
Taxes and Assessment Details
Values
| (+) Improvement Homesite Value: | + | $0 | |
| (+) Improvement Non-Homesite Value: | + | $228,420 | |
| (+) Land Homesite Value: | + | $0 | |
| (+) Land Non-Homesite Value: | + | $250,000 | |
| (+) Curr Use (HS): | + | $0 | $0 |
| (+) Curr Use (NHS): | + | $0 | $0 |
| | | -------------------------- | |
| (=) Market Value: | = | $478,420 | |
| (–) Productivity Loss: | – | $0 | |
| | | -------------------------- | |
| (=) Subtotal: | = | $478,420 | |
| (+) Senior Appraised Value: | + | $0 | |
| (+) Non-Senior Appraised Value: | + | $478,420 | |
| | | -------------------------- | |
| (=) Total Appraised Value: | = | $478,420 | |
| (–) Senior Exemption Loss: | – | $0 | |
| (–) Exemption Loss: | – | $0 | |
| | | -------------------------- | |
| (=) Taxable Value: | = | $478,420 | |
Taxing Jurisdiction
| Owner: | LOESCHER, TRACY E / DAWN A | | |
| % Ownership: | 100.0000000000% | | |
| Total Value: | $478,420 | | |
| Tax Area: | 112 - APPRAISER-OH Schl Dist, outside OH, improved, greater than 1 acre |
| CF | Conservation Futures | 0.0316035091 | $478,420 | $478,420 | $15.12 | | |
| CEM1 | Cemetery #1 | 0.0040320932 | $478,420 | $478,420 | $1.93 | | |
| FIRE2 | Fire & Rescue Dist #2 N Whidbey GEN | 0.5475949600 | $478,420 | $478,420 | $261.98 | | |
| HOBOND | Hospital BOND | 0.1910887512 | $478,420 | $478,420 | $91.42 | | |
| HOGEN | Hospital GEN | 0.3902502903 | $478,420 | $478,420 | $186.70 | | |
| CE | County Current Expense | 0.3708482477 | $478,420 | $478,420 | $177.42 | | |
| CR | County Roads | 0.4584763726 | $478,420 | $478,420 | $219.34 | | |
| ISLANDEMS | Hospital GEN (EMS) | 0.5000000000 | $478,420 | $478,420 | $239.21 | | |
| LIB | Library Sno-Isle GEN | 0.3153421757 | $478,420 | $478,420 | $150.87 | | |
| NWHIDPRMT | P & R N Whidbey GEN | 0.2004466701 | $478,420 | $478,420 | $95.90 | | |
| SCH201MO | School 201 Enrichment | 1.8559231640 | $478,420 | $478,420 | $887.91 | | |
| ST | State School | 1.3035497053 | $478,420 | $478,420 | $623.64 | | |
| ST2 | State School Part 2 | 0.8169543533 | $478,420 | $478,420 | $390.85 | | |
| | Total Tax Rate: | 6.9861102925 | | | | | |
| | | | | Taxes w/Current Exemptions: | $3,342.29 | | |
| | | | | Taxes w/o Exemptions: | $3,342.29 | | |
Improvement / Building
| Improvement #1: | RESIDENTIAL | State Code: | Y | 1954.0 sqft | Value: | $228,420 |
| Bathrooms: | 2 | Bedrooms: | 3 | | Ceiling: | DRY WALL SPRAYED | Exterior Wall/Cover: | PLY/HARDBOARD T-111 | | Floor Covering: | CARPET/VINYL 80-20 | Floor Structure: | WOOD W/SUBFLOOR | | Foundation: | CONCRETE | Heating: | BASEBOARD ELECTRIC | | Interior Finish: | DRYWALL PAINT | Plumbing Fixture Cnt: | 9 | | Roof Slope: | 3" IN 12" | Roof Structure/Cover: | CJ ASPHALT |
|
| | Type | Description | Class CD | Sub Class CD | Year Built | Area |
| | BAS | BASE/MAIN FLOOR | 3 | 0 | 1976 | 994.0 |
| | DWN | DOWNSTAIRS LIVING AREA | 3 | 0 | 1976 | 960.0 |
| | AGR | ATTACHED GARAGE | 3 | 0 | 1976 | 440.0 |
| | OWP | OPEN WOOD PORCH W/STEPS | 3 | 0 | 1976 | 42.0 |
| | DGR | DETACHED GARAGE | 3 | 0 | 1976 | 1536.0 |
Sketch
Property Image
Land
| 1 | 18 | AC (02.01-03.00) | 2.5000 | 108900.00 | 0.00 | 0.00 | 1.00 | $250,000 | $0 |
Roll Value History
| 2026 | N/A | N/A | N/A | N/A | N/A |
| 2025 | $228,420 | $250,000 | $0 | $478,420 | $478,420 |
| 2024 | $236,191 | $230,000 | $0 | $466,191 | $466,191 |
| 2023 | $239,359 | $220,000 | $0 | $459,359 | $459,359 |
| 2022 | $213,182 | $210,000 | $0 | $423,182 | $423,182 |
| 2021 | $204,929 | $160,000 | $0 | $364,929 | $364,929 |
| 2020 | $200,087 | $140,000 | $0 | $340,087 | $340,087 |
| 2019 | $147,487 | $200,000 | $0 | $347,487 | $347,487 |
| 2018 | $147,938 | $170,000 | $0 | $317,938 | $317,938 |
| 2017 | $148,836 | $150,000 | $0 | $298,836 | $298,836 |
| 2016 | $134,947 | $120,000 | $0 | $254,947 | $254,947 |
| 2015 | $137,159 | $100,000 | $0 | $237,159 | $237,159 |
| 2014 | $139,371 | $100,000 | $0 | $239,371 | $239,371 |
| 2013 | $141,583 | $90,000 | $0 | $231,583 | $231,583 |
| 2012 | $143,796 | $108,000 | $0 | $251,796 | $251,796 |
| 2011 | $146,007 | $120,000 | $0 | $266,007 | $266,007 |
| 2010 | $168,105 | $120,000 | $0 | $288,105 | $288,105 |
| 2009 | $174,558 | $155,000 | $0 | $329,558 | $329,558 |
| 2008 | $182,183 | $145,000 | $0 | $327,183 | $327,183 |
| 2007 | $184,552 | $145,000 | $0 | $329,552 | $329,552 |
Deed and Sales History
| 1 | 11/01/1995 | WD | Warranty Deed | HULSE, WILLIAM T | LOESCHER, TRACY E | | | $141,000.00 | 54229 | 95019523 |
| 2 | 09/01/1979 | WD | Warranty Deed | PHILIPSEN, FREDERICK C | HULSE, WILLIAM T | | | $77,000.00 | 94864 | 359804 |
| 3 | 01/01/1900 | OTHER | Other - Misc. Documents | Unknown | PHILIPSEN, FREDERICK C | | | $0.00 | 0 | 0 |
Payout Agreement
| No payout information available.. |