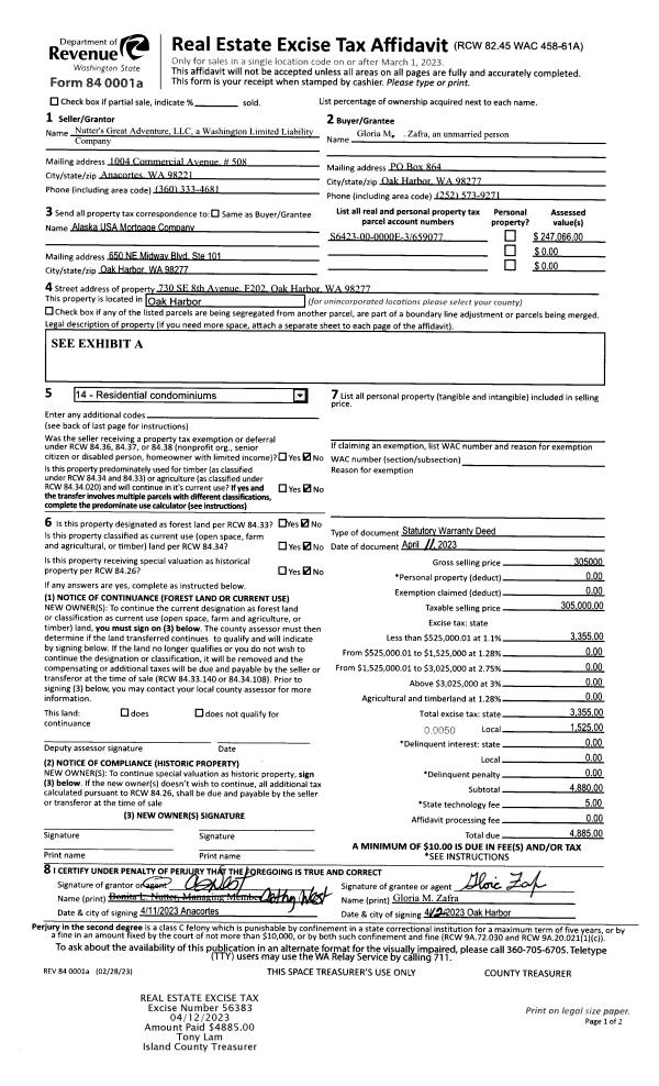
Property
Account |
| Property ID: | 109108 | Abbreviated Legal Description: | 163 - S/2 S/2 E/2 NE SW TGW & SUB EZ TGW EZ AF#95004390 AF#95004391 |
| Geographic ID: | R23334-157-2310 | Agent Code: | |
| Type: | Real | | |
| Tax Area: | 112 - APPRAISER-OH Schl Dist, outside OH, improved, greater than 1 acre | Land Use Code | 11 |
| Open Space: | N | DFL | N |
| Historic Property: | N | Remodel Property: | N |
| Multi-Family Redevelopment: | N | | |
| Township: | 33 | Section: | 34 |
| Range: | R2 |
Location |
| Address: | 2506 HIGH POINT LN OAK HARBOR, WA 98277 | Mapsco: | |
| Neighborhood: | Cycle 6 | Map ID: | 655 |
| Neighborhood CD: | 6 |
Owner |
| Name: | RIDLE, DAVID A | Owner ID: | 79965 |
| Mailing Address: | KATHRYN J RIDLE 2506 HIGH POINT LN OAK HARBOR, WA 98277-7404 | % Ownership: | 100.0000000000% |
| | | Exemptions: | |
Taxes and Assessment Details
Values
| (+) Improvement Homesite Value: | + | $0 | |
| (+) Improvement Non-Homesite Value: | + | $444,635 | |
| (+) Land Homesite Value: | + | $0 | |
| (+) Land Non-Homesite Value: | + | $300,000 | |
| (+) Curr Use (HS): | + | $0 | $0 |
| (+) Curr Use (NHS): | + | $0 | $0 |
| | | -------------------------- | |
| (=) Market Value: | = | $744,635 | |
| (–) Productivity Loss: | – | $0 | |
| | | -------------------------- | |
| (=) Subtotal: | = | $744,635 | |
| (+) Senior Appraised Value: | + | $0 | |
| (+) Non-Senior Appraised Value: | + | $744,635 | |
| | | -------------------------- | |
| (=) Total Appraised Value: | = | $744,635 | |
| (–) Senior Exemption Loss: | – | $0 | |
| (–) Exemption Loss: | – | $0 | |
| | | -------------------------- | |
| (=) Taxable Value: | = | $744,635 | |
Taxing Jurisdiction
| Owner: | RIDLE, DAVID A | | |
| % Ownership: | 100.0000000000% | | |
| Total Value: | $744,635 | | |
| Tax Area: | 112 - APPRAISER-OH Schl Dist, outside OH, improved, greater than 1 acre |
| CF | Conservation Futures | 0.0316035091 | $744,635 | $744,635 | $23.53 | | |
| CEM1 | Cemetery #1 | 0.0040320932 | $744,635 | $744,635 | $3.00 | | |
| FIRE2 | Fire & Rescue Dist #2 N Whidbey GEN | 0.5475949600 | $744,635 | $744,635 | $407.76 | | |
| HOBOND | Hospital BOND | 0.1910887512 | $744,635 | $744,635 | $142.29 | | |
| HOGEN | Hospital GEN | 0.3902502903 | $744,635 | $744,635 | $290.59 | | |
| CE | County Current Expense | 0.3708482477 | $744,635 | $744,635 | $276.15 | | |
| CR | County Roads | 0.4584763726 | $744,635 | $744,635 | $341.40 | | |
| ISLANDEMS | Hospital GEN (EMS) | 0.5000000000 | $744,635 | $744,635 | $372.32 | | |
| LIB | Library Sno-Isle GEN | 0.3153421757 | $744,635 | $744,635 | $234.81 | | |
| NWHIDPRMT | P & R N Whidbey GEN | 0.2004466701 | $744,635 | $744,635 | $149.26 | | |
| SCH201MO | School 201 Enrichment | 1.8559231640 | $744,635 | $744,635 | $1,381.99 | | |
| ST | State School | 1.3035497053 | $744,635 | $744,635 | $970.67 | | |
| ST2 | State School Part 2 | 0.8169543533 | $744,635 | $744,635 | $608.33 | | |
| | Total Tax Rate: | 6.9861102925 | | | | | |
| | | | | Taxes w/Current Exemptions: | $5,202.10 | | |
| | | | | Taxes w/o Exemptions: | $5,202.10 | | |
Improvement / Building
| Improvement #1: | RESIDENTIAL | State Code: | Y | 2993.1 sqft | Value: | $444,635 |
| Bathrooms: | 3 | Bedrooms: | 4 | | Ceiling: | DRYWALL PAINTED | Exterior Wall/Cover: | WOOD SIDING | | Floor Covering: | HARDWOOD/CARP 80-20 | Floor Structure: | WOOD W/SUBFLOOR | | Foundation: | CONCRETE | Heating: | FHA GAS | | Interior Finish: | DRYWALL PAINT | Plumbing Fixture Cnt: | 14 | | Roof Slope: | 5" IN 12" | Roof Structure/Cover: | CJ ASPHALT |
|
| | Type | Description | Class CD | Sub Class CD | Year Built | Area |
| | BAS | BASE/MAIN FLOOR | 3 | 0 | 1997 | 1613.0 |
| | UB8 | BASEMENT UNFINISHED 8" | 3 | 0 | 1997 | 195.0 |
| | AGR | ATTACHED GARAGE | 3 | 0 | 1997 | 572.0 |
| | OWR | OPEN WOOD PORCH W/STEPS/ROOF | 3 | 0 | 1997 | 120.0 |
| | OWC | OPEN WOOD PORCH W/STEPS/ROOF/C | 3 | 0 | 1997 | 25.0 |
| | DWN | DOWNSTAIRS LIVING AREA | 3 | 0 | 1997 | 1380.1 |
| | DGR | DETACHED GARAGE | 3 | 0 | 1997 | 988.0 |
Sketch
Property Image
Land
| 1 | 32 | AC (03.01-09.99) | 5.0000 | 0.00 | 0.00 | 0.00 | 1.00 | $300,000 | $0 |
Roll Value History
| 2026 | N/A | N/A | N/A | N/A | N/A |
| 2025 | $444,635 | $300,000 | $0 | $744,635 | $744,635 |
| 2024 | $449,866 | $280,000 | $0 | $729,866 | $729,866 |
| 2023 | $455,095 | $270,000 | $0 | $725,095 | $725,095 |
| 2022 | $389,870 | $240,000 | $0 | $629,870 | $629,870 |
| 2021 | $344,416 | $160,000 | $0 | $504,416 | $504,416 |
| 2020 | $336,566 | $140,000 | $0 | $476,566 | $476,566 |
| 2019 | $271,290 | $200,000 | $0 | $471,290 | $471,290 |
| 2018 | $272,076 | $170,000 | $0 | $442,076 | $442,076 |
| 2017 | $273,645 | $150,000 | $0 | $423,645 | $423,645 |
| 2016 | $239,270 | $140,000 | $0 | $379,270 | $379,270 |
| 2015 | $242,050 | $120,000 | $0 | $362,050 | $362,050 |
| 2014 | $244,830 | $100,000 | $0 | $344,830 | $344,830 |
| 2013 | $247,610 | $108,000 | $0 | $355,610 | $355,610 |
| 2012 | $250,391 | $99,000 | $0 | $349,391 | $349,391 |
| 2011 | $253,172 | $110,000 | $0 | $363,172 | $363,172 |
| 2010 | $249,433 | $110,000 | $0 | $359,433 | $359,433 |
| 2009 | $260,001 | $145,000 | $0 | $405,001 | $405,001 |
| 2008 | $268,975 | $145,000 | $0 | $413,975 | $413,975 |
| 2007 | $272,331 | $150,000 | $0 | $422,331 | $422,331 |
Deed and Sales History
| 1 | 05/01/1997 | WD | Warranty Deed | HAUN, MICHAEL W | RIDLE, DAVID A | | | $59,900.00 | 71573 | 97007297 |
| 2 | 09/01/1980 | REC | Real Estate Contract | RISELVATO, JOHN F | HAUN, MICHAEL W | | | $25,000.00 | 2968 | 373373 |
| 3 | 10/01/1978 | OTHER | Other - Misc. Documents | Unknown | RISELVATO, JOHN F | | | $14,500.00 | 84959 | 340989 |
Payout Agreement
| No payout information available.. |