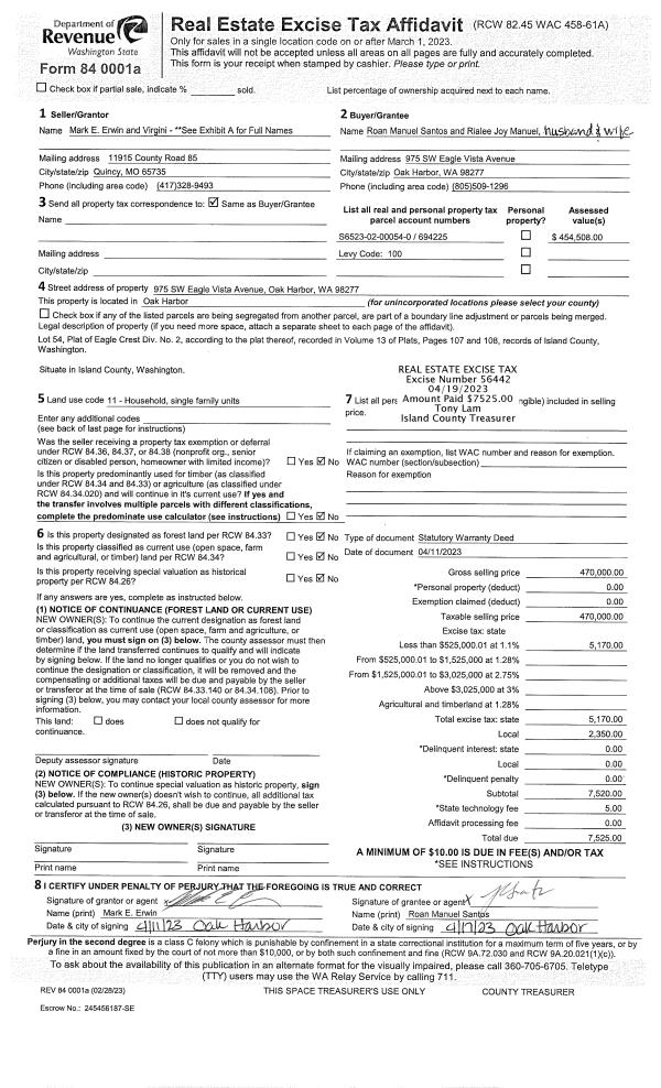
Property
Account |
| Property ID: | 109581 | Abbreviated Legal Description: | 42 - W/2 NW SE NW TGW SUB TO EZ (LOT 46 UNREC L & M ACRES V3 SUR P91) |
| Geographic ID: | R23334-369-1550 | Agent Code: | |
| Type: | Real | | |
| Tax Area: | 112 - APPRAISER-OH Schl Dist, outside OH, improved, greater than 1 acre | Land Use Code | 11 |
| Open Space: | N | DFL | N |
| Historic Property: | N | Remodel Property: | N |
| Multi-Family Redevelopment: | N | | |
| Township: | 33 | Section: | 34 |
| Range: | R2 |
Location |
| Address: | 1322 WALLACE CT OAK HARBOR, WA 98277 | Mapsco: | |
| Neighborhood: | Cycle 6 | Map ID: | 657 |
| Neighborhood CD: | 6 |
Owner |
| Name: | KOFFORD, MITCHELL L | Owner ID: | 284203 |
| Mailing Address: | DANA B KOFFORD 1322 WALLACE CT OAK HARBOR, WA 98277 | % Ownership: | 100.0000000000% |
| | | Exemptions: | |
Taxes and Assessment Details
Values
| (+) Improvement Homesite Value: | + | $0 | |
| (+) Improvement Non-Homesite Value: | + | $198,388 | |
| (+) Land Homesite Value: | + | $0 | |
| (+) Land Non-Homesite Value: | + | $300,000 | |
| (+) Curr Use (HS): | + | $0 | $0 |
| (+) Curr Use (NHS): | + | $0 | $0 |
| | | -------------------------- | |
| (=) Market Value: | = | $498,388 | |
| (–) Productivity Loss: | – | $0 | |
| | | -------------------------- | |
| (=) Subtotal: | = | $498,388 | |
| (+) Senior Appraised Value: | + | $0 | |
| (+) Non-Senior Appraised Value: | + | $498,388 | |
| | | -------------------------- | |
| (=) Total Appraised Value: | = | $498,388 | |
| (–) Senior Exemption Loss: | – | $0 | |
| (–) Exemption Loss: | – | $0 | |
| | | -------------------------- | |
| (=) Taxable Value: | = | $498,388 | |
Taxing Jurisdiction
| Owner: | KOFFORD, MITCHELL L | | |
| % Ownership: | 100.0000000000% | | |
| Total Value: | $498,388 | | |
| Tax Area: | 112 - APPRAISER-OH Schl Dist, outside OH, improved, greater than 1 acre |
| CF | Conservation Futures | 0.0316035091 | $498,388 | $498,388 | $15.75 | | |
| CEM1 | Cemetery #1 | 0.0040320932 | $498,388 | $498,388 | $2.01 | | |
| FIRE2 | Fire & Rescue Dist #2 N Whidbey GEN | 0.5475949600 | $498,388 | $498,388 | $272.91 | | |
| HOBOND | Hospital BOND | 0.1910887512 | $498,388 | $498,388 | $95.24 | | |
| HOGEN | Hospital GEN | 0.3902502903 | $498,388 | $498,388 | $194.50 | | |
| CE | County Current Expense | 0.3708482477 | $498,388 | $498,388 | $184.83 | | |
| CR | County Roads | 0.4584763726 | $498,388 | $498,388 | $228.50 | | |
| ISLANDEMS | Hospital GEN (EMS) | 0.5000000000 | $498,388 | $498,388 | $249.19 | | |
| LIB | Library Sno-Isle GEN | 0.3153421757 | $498,388 | $498,388 | $157.16 | | |
| NWHIDPRMT | P & R N Whidbey GEN | 0.2004466701 | $498,388 | $498,388 | $99.90 | | |
| SCH201MO | School 201 Enrichment | 1.8559231640 | $498,388 | $498,388 | $924.97 | | |
| ST | State School | 1.3035497053 | $498,388 | $498,388 | $649.67 | | |
| ST2 | State School Part 2 | 0.8169543533 | $498,388 | $498,388 | $407.16 | | |
| | Total Tax Rate: | 6.9861102925 | | | | | |
| | | | | Taxes w/Current Exemptions: | $3,481.79 | | |
| | | | | Taxes w/o Exemptions: | $3,481.79 | | |
Improvement / Building
| Improvement #1: | RESIDENTIAL | State Code: | Y | 1056.0 sqft | Value: | $198,388 |
| Bathrooms: | 1 | Bedrooms: | 0 | | Ceiling: | BEAM PAINTED | Cooling: | HEAT PUMP/CONV/V | | Exterior Wall/Cover: | WOOD SIDING | Floor Covering: | CARPET/VINYL 80-20 | | Floor Structure: | WOOD W/SUBFLOOR | Foundation: | CONCRETE | | Interior Finish: | DRYWALL PAINT | Plumbing Fixture Cnt: | 6 | | Roof Slope: | 12" IN 12" | Roof Structure/Cover: | BEAM ASPHALT |
|
| | Type | Description | Class CD | Sub Class CD | Year Built | Area |
| | BAS | BASE/MAIN FLOOR | 3 | 0 | 1976 | 616.0 |
| | CPD | OPEN CARPORT DIRT FLOOR | 3 | 0 | 1976 | 192.0 |
| | UTY | STORAGE/UTILITY | 3 | 0 | 1976 | 144.0 |
| | OWR | OPEN WOOD PORCH W/STEPS/ROOF | 3 | 0 | 1976 | 251.8 |
| | LOF | LOFT | 3 | 0 | 1976 | 440.0 |
| | DGR | DETACHED GARAGE | 3 | 0 | 1976 | 1008.0 |
Sketch
Property Image
Land
| 1 | 32 | AC (03.01-09.99) | 5.0000 | 0.00 | 0.00 | 0.00 | 1.00 | $300,000 | $0 |
Roll Value History
| 2026 | N/A | N/A | N/A | N/A | N/A |
| 2025 | $198,388 | $300,000 | $0 | $498,388 | $498,388 |
| 2024 | $201,906 | $280,000 | $0 | $481,906 | $481,906 |
| 2023 | $204,782 | $270,000 | $0 | $474,782 | $474,782 |
| 2022 | $150,598 | $240,000 | $0 | $390,598 | $390,598 |
| 2021 | $132,935 | $160,000 | $0 | $292,935 | $292,935 |
| 2020 | $129,971 | $140,000 | $0 | $269,971 | $269,971 |
| 2019 | $93,044 | $200,000 | $0 | $293,044 | $293,044 |
| 2018 | $93,379 | $170,000 | $0 | $263,379 | $263,379 |
| 2017 | $92,342 | $150,000 | $0 | $242,342 | $242,342 |
| 2016 | $67,514 | $140,000 | $0 | $207,514 | $207,514 |
| 2015 | $68,507 | $120,000 | $0 | $188,507 | $188,507 |
| 2014 | $69,497 | $100,000 | $0 | $169,497 | $169,497 |
| 2013 | $70,489 | $108,000 | $0 | $178,489 | $178,489 |
| 2012 | $71,481 | $66,330 | $0 | $137,811 | $137,811 |
| 2011 | $72,472 | $73,700 | $0 | $146,172 | $146,172 |
| 2010 | $79,683 | $73,700 | $0 | $153,383 | $153,383 |
| 2009 | $83,751 | $97,150 | $0 | $180,901 | $180,901 |
| 2008 | $88,457 | $97,150 | $0 | $185,607 | $185,607 |
| 2007 | $90,453 | $100,000 | $0 | $190,453 | $190,453 |
Deed and Sales History
| 1 | 02/27/2018 | WD | Warranty Deed | KINCADE, DANIEL L | KOFFORD, MITCHELL L | | | $277,500.00 | 33255 | 4440619 |
| 2 | 04/25/2014 | CCOMPROP | Create Community Property | KINCADE, DANIEL L | KINCADE, DANIEL L | | | $0.00 | 15096 | 4358682 |
| 3 | 12/22/2005 | ESTSEPPROP | Establish Separate Property | KINCADE, DANIEL L | KINCADE, DANIEL L | | | $0.00 | 56454 | 4158468 |
| 4 | 12/22/2005 | WD | Warranty Deed | KINCADE, GORDON G | KINCADE, DANIEL L | | | $178,000.00 | 56453 | 4158466 |
| 5 | 10/21/2004 | WD | Warranty Deed | BRADY, ALLEN E | KINCADE, GORDON G | | | $125,000.00 | 45018 | 4116381 |
| 6 | 10/22/2004 | ESTSEPPROP | Establish Separate Property | BRADY, ALLEN E | BRADY, ALLEN E | | | $0.00 | 45017 | 4116380 |
| 7 | 06/01/1989 | QCD | Quit Claim Deed | BRADY, ALLEN E | BRADY, ALLEN E | | | $0.00 | 92203 | 89007531 |
| 8 | 06/01/1989 | QCD | Quit Claim Deed | BRADY, ALLEN E | BRADY, ALLEN E | | | $0.00 | 94808 | 89015616 |
| 9 | 01/01/1900 | OTHER | Other - Misc. Documents | Unknown | BRADY, ALLEN E | | | $0.00 | 0 | 0 |
Payout Agreement
| No payout information available.. |