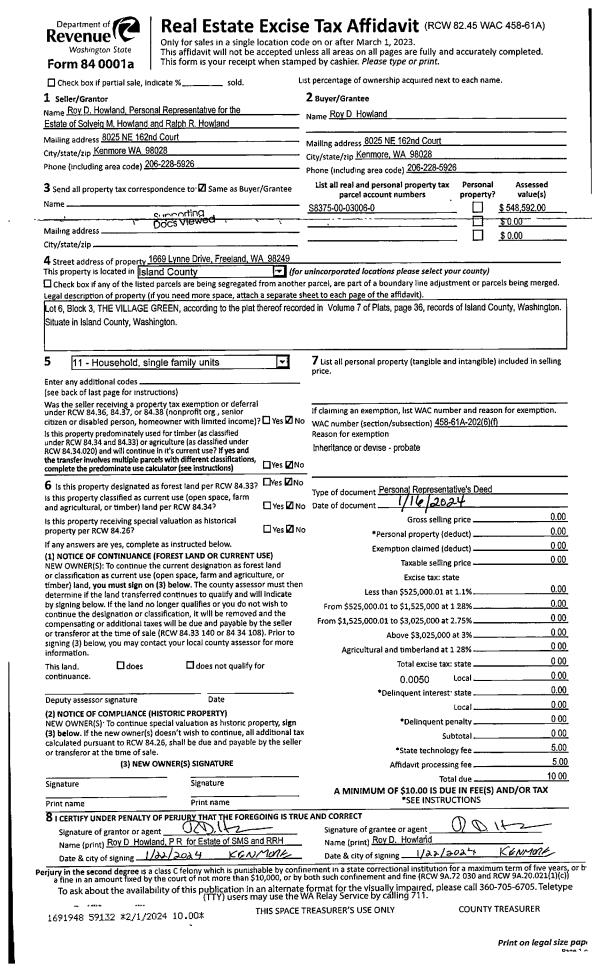
Property
Account |
| Property ID: | 109705 | Abbreviated Legal Description: | 91 - E/2 OF W/2 SW NW NW TGW & SUBJ EZ SP 74-082 TR 1-B |
| Geographic ID: | R23334-435-0290 | Agent Code: | |
| Type: | Real | | |
| Tax Area: | 112 - APPRAISER-OH Schl Dist, outside OH, improved, greater than 1 acre | Land Use Code | 11 |
| Open Space: | N | DFL | N |
| Historic Property: | N | Remodel Property: | N |
| Multi-Family Redevelopment: | N | | |
| Township: | 33 | Section: | 34 |
| Range: | R2 |
Location |
| Address: | 1225 E CRESCENT HARBOR RD OAK HARBOR, WA 98277 | Mapsco: | |
| Neighborhood: | Cycle 6 | Map ID: | 657 |
| Neighborhood CD: | 6 |
Owner |
| Name: | LITTLE JR, JOEL BYRON | Owner ID: | 74420 |
| Mailing Address: | MARTHA LITTLE 330 PAULSON RD POULSBO, WA 98370 | % Ownership: | 100.0000000000% |
| | | Exemptions: | |
Taxes and Assessment Details
Values
| (+) Improvement Homesite Value: | + | $0 | |
| (+) Improvement Non-Homesite Value: | + | $228,636 | |
| (+) Land Homesite Value: | + | $0 | |
| (+) Land Non-Homesite Value: | + | $250,000 | |
| (+) Curr Use (HS): | + | $0 | $0 |
| (+) Curr Use (NHS): | + | $0 | $0 |
| | | -------------------------- | |
| (=) Market Value: | = | $478,636 | |
| (–) Productivity Loss: | – | $0 | |
| | | -------------------------- | |
| (=) Subtotal: | = | $478,636 | |
| (+) Senior Appraised Value: | + | $0 | |
| (+) Non-Senior Appraised Value: | + | $478,636 | |
| | | -------------------------- | |
| (=) Total Appraised Value: | = | $478,636 | |
| (–) Senior Exemption Loss: | – | $0 | |
| (–) Exemption Loss: | – | $0 | |
| | | -------------------------- | |
| (=) Taxable Value: | = | $478,636 | |
Taxing Jurisdiction
| Owner: | LITTLE JR, JOEL BYRON | | |
| % Ownership: | 100.0000000000% | | |
| Total Value: | $478,636 | | |
| Tax Area: | 112 - APPRAISER-OH Schl Dist, outside OH, improved, greater than 1 acre |
| CF | Conservation Futures | 0.0316035091 | $478,636 | $478,636 | $15.13 | | |
| CEM1 | Cemetery #1 | 0.0040320932 | $478,636 | $478,636 | $1.93 | | |
| FIRE2 | Fire & Rescue Dist #2 N Whidbey GEN | 0.5475949600 | $478,636 | $478,636 | $262.10 | | |
| HOBOND | Hospital BOND | 0.1910887512 | $478,636 | $478,636 | $91.46 | | |
| HOGEN | Hospital GEN | 0.3902502903 | $478,636 | $478,636 | $186.79 | | |
| CE | County Current Expense | 0.3708482477 | $478,636 | $478,636 | $177.50 | | |
| CR | County Roads | 0.4584763726 | $478,636 | $478,636 | $219.44 | | |
| ISLANDEMS | Hospital GEN (EMS) | 0.5000000000 | $478,636 | $478,636 | $239.32 | | |
| LIB | Library Sno-Isle GEN | 0.3153421757 | $478,636 | $478,636 | $150.93 | | |
| NWHIDPRMT | P & R N Whidbey GEN | 0.2004466701 | $478,636 | $478,636 | $95.94 | | |
| SCH201MO | School 201 Enrichment | 1.8559231640 | $478,636 | $478,636 | $888.31 | | |
| ST | State School | 1.3035497053 | $478,636 | $478,636 | $623.93 | | |
| ST2 | State School Part 2 | 0.8169543533 | $478,636 | $478,636 | $391.02 | | |
| | Total Tax Rate: | 6.9861102925 | | | | | |
| | | | | Taxes w/Current Exemptions: | $3,343.80 | | |
| | | | | Taxes w/o Exemptions: | $3,343.80 | | |
Improvement / Building
| Improvement #1: | RESIDENTIAL | State Code: | Y | 1971.0 sqft | Value: | $228,636 |
| Bathrooms: | 2 | Bedrooms: | 4 | | Ceiling: | DRY WALL SPRAYED | Cooling: | HEAT PUMP/CONV/V | | Exterior Wall/Cover: | CEMENT FIBER | Floor Covering: | CARPET/VINYL 80-20 | | Floor Structure: | WOOD W/SUBFLOOR | Foundation: | CONCRETE | | Interior Finish: | DRYWALL PAINT | Plumbing Fixture Cnt: | 9 | | Roof Slope: | 4" IN 12" | Roof Structure/Cover: | CJ ASPHALT |
|
| | Type | Description | Class CD | Sub Class CD | Year Built | Area |
| | BAS | BASE/MAIN FLOOR | 3 | 0 | 1975 | 1011.0 |
| | DWN | DOWNSTAIRS LIVING AREA | 3 | 0 | 1975 | 960.0 |
| | OCP | OPEN CARPORT | 3 | 0 | 1975 | 234.0 |
| | OWP | OPEN WOOD PORCH W/STEPS | 3 | 0 | 1975 | 234.0 |
| | UTY | STORAGE/UTILITY | 3 | 0 | 1975 | 120.0 |
| | OP2 | OPEN PORCH W/STEPS | 3 | 0 | 1975 | 24.0 |
Sketch
Property Image
Land
| 1 | 18 | AC (02.01-03.00) | 2.5000 | 108900.00 | 0.00 | 0.00 | 1.00 | $250,000 | $0 |
Roll Value History
| 2026 | N/A | N/A | N/A | N/A | N/A |
| 2025 | $228,636 | $250,000 | $0 | $478,636 | $478,636 |
| 2024 | $231,845 | $230,000 | $0 | $461,845 | $461,845 |
| 2023 | $235,056 | $220,000 | $0 | $455,056 | $455,056 |
| 2022 | $194,988 | $210,000 | $0 | $404,988 | $404,988 |
| 2021 | $184,530 | $160,000 | $0 | $344,530 | $344,530 |
| 2020 | $176,638 | $140,000 | $0 | $316,638 | $316,638 |
| 2019 | $124,324 | $200,000 | $0 | $324,324 | $324,324 |
| 2018 | $124,760 | $170,000 | $0 | $294,760 | $294,760 |
| 2017 | $125,633 | $150,000 | $0 | $275,633 | $275,633 |
| 2016 | $103,822 | $120,000 | $0 | $223,822 | $223,822 |
| 2015 | $105,471 | $100,000 | $0 | $205,471 | $205,471 |
| 2014 | $107,119 | $100,000 | $0 | $207,119 | $207,119 |
| 2013 | $108,767 | $90,000 | $0 | $198,767 | $198,767 |
| 2012 | $110,414 | $108,000 | $0 | $218,414 | $218,414 |
| 2011 | $112,063 | $120,000 | $0 | $232,063 | $232,063 |
| 2010 | $115,781 | $120,000 | $0 | $235,781 | $235,781 |
| 2009 | $120,865 | $155,000 | $0 | $275,865 | $275,865 |
| 2008 | $127,479 | $145,000 | $0 | $272,479 | $272,479 |
| 2007 | $129,171 | $145,000 | $0 | $274,171 | $274,171 |
Deed and Sales History
| 1 | 01/25/2002 | WD | Warranty Deed | LITTLE, JOAN F | LITTLE JR, JOEL BYRON | | | $135,000.00 | 20440 | 4010439 |
| 2 | 06/01/1996 | OTHER | Other - Misc. Documents | LITTLE, JOEL B | LITTLE, JOAN F | | | $0.00 | 66988 | 87007411 |
| 3 | 01/01/1900 | OTHER | Other - Misc. Documents | Unknown | LITTLE, JOEL B | | | $0.00 | 0 | 0 |
Payout Agreement
| No payout information available.. |