Property
Account |
| Property ID: | 109714 | Abbreviated Legal Description: | 92 - W/2 E/2 SW NW NW TGW & SUBJ TO EZ SP 74-082 TR 1-C |
| Geographic ID: | R23334-435-0460 | Agent Code: | |
| Type: | Real | | |
| Tax Area: | 112 - APPRAISER-OH Schl Dist, outside OH, improved, greater than 1 acre | Land Use Code | 11 |
| Open Space: | N | DFL | N |
| Historic Property: | N | Remodel Property: | N |
| Multi-Family Redevelopment: | N | | |
| Township: | 33 | Section: | 34 |
| Range: | R2 |
Location |
| Address: | 1235 E CRESCENT HARBOR RD OAK HARBOR, WA 98277 | Mapsco: | |
| Neighborhood: | Cycle 6 | Map ID: | 657 |
| Neighborhood CD: | 6 |
Owner |
| Name: | JOHNSON, DAVID D & KIMBERLY | Owner ID: | 74421 |
| Mailing Address: | 1235 E CRESCENT HARBOR RD OAK HARBOR, WA 98277-8652 | % Ownership: | 100.0000000000% |
| | | Exemptions: | |
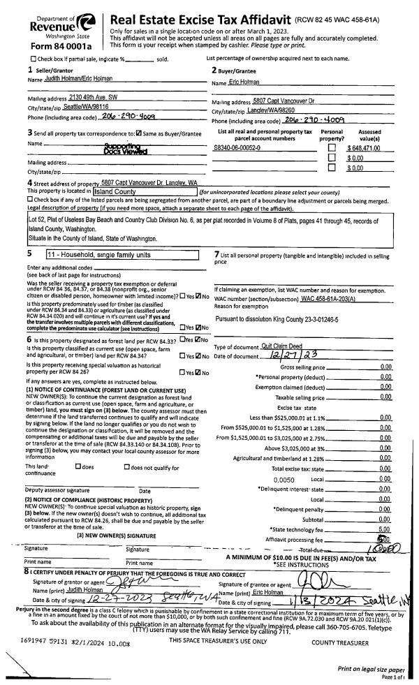
Taxes and Assessment Details
Values
| (+) Improvement Homesite Value: | + | $0 | |
| (+) Improvement Non-Homesite Value: | + | $179,672 | |
| (+) Land Homesite Value: | + | $0 | |
| (+) Land Non-Homesite Value: | + | $250,000 | |
| (+) Curr Use (HS): | + | $0 | $0 |
| (+) Curr Use (NHS): | + | $0 | $0 |
| | | -------------------------- | |
| (=) Market Value: | = | $429,672 | |
| (–) Productivity Loss: | – | $0 | |
| | | -------------------------- | |
| (=) Subtotal: | = | $429,672 | |
| (+) Senior Appraised Value: | + | $0 | |
| (+) Non-Senior Appraised Value: | + | $429,672 | |
| | | -------------------------- | |
| (=) Total Appraised Value: | = | $429,672 | |
| (–) Senior Exemption Loss: | – | $0 | |
| (–) Exemption Loss: | – | $0 | |
| | | -------------------------- | |
| (=) Taxable Value: | = | $429,672 | |
Taxing Jurisdiction
| Owner: | JOHNSON, DAVID D & KIMBERLY | | |
| % Ownership: | 100.0000000000% | | |
| Total Value: | $429,672 | | |
| Tax Area: | 112 - APPRAISER-OH Schl Dist, outside OH, improved, greater than 1 acre |
| CF | Conservation Futures | 0.0316035091 | $429,672 | $429,672 | $13.58 | | |
| CEM1 | Cemetery #1 | 0.0040320932 | $429,672 | $429,672 | $1.73 | | |
| FIRE2 | Fire & Rescue Dist #2 N Whidbey GEN | 0.5475949600 | $429,672 | $429,672 | $235.29 | | |
| HOBOND | Hospital BOND | 0.1910887512 | $429,672 | $429,672 | $82.11 | | |
| HOGEN | Hospital GEN | 0.3902502903 | $429,672 | $429,672 | $167.68 | | |
| CE | County Current Expense | 0.3708482477 | $429,672 | $429,672 | $159.34 | | |
| CR | County Roads | 0.4584763726 | $429,672 | $429,672 | $196.99 | | |
| ISLANDEMS | Hospital GEN (EMS) | 0.5000000000 | $429,672 | $429,672 | $214.84 | | |
| LIB | Library Sno-Isle GEN | 0.3153421757 | $429,672 | $429,672 | $135.49 | | |
| NWHIDPRMT | P & R N Whidbey GEN | 0.2004466701 | $429,672 | $429,672 | $86.13 | | |
| SCH201MO | School 201 Enrichment | 1.8559231640 | $429,672 | $429,672 | $797.44 | | |
| ST | State School | 1.3035497053 | $429,672 | $429,672 | $560.10 | | |
| ST2 | State School Part 2 | 0.8169543533 | $429,672 | $429,672 | $351.02 | | |
| | Total Tax Rate: | 6.9861102925 | | | | | |
| | | | | Taxes w/Current Exemptions: | $3,001.74 | | |
| | | | | Taxes w/o Exemptions: | $3,001.74 | | |
Improvement / Building
| Improvement #1: | RESIDENTIAL | State Code: | Y | 1250.0 sqft | Value: | $179,672 |
| Bathrooms: | 2 | Bedrooms: | 3 | | Ceiling: | DRY WALL SPRAYED | Exterior Wall/Cover: | PLY/HARDBOARD T-111 | | Floor Covering: | CARPET/VINYL 80-20 | Floor Structure: | WOOD W/SUBFLOOR | | Foundation: | CONCRETE | Heating: | BASEBOARD ELECTRIC | | Interior Finish: | DRYWALL PAINT | Plumbing Fixture Cnt: | 9 | | Roof Slope: | 4" IN 12" | Roof Structure/Cover: | CJ ASPHALT |
|
| | Type | Description | Class CD | Sub Class CD | Year Built | Area |
| | BAS | BASE/MAIN FLOOR | 3 | 0 | 1975 | 1250.0 |
| | OP4 | OPEN PORCH W/CEILING-ROOF | 3 | 0 | 1975 | 96.0 |
| | OP2 | OPEN PORCH W/STEPS | 3 | 0 | 1975 | 336.0 |
| | AGR | ATTACHED GARAGE | 3 | 0 | 1975 | 500.0 |
| | UTY | STORAGE/UTILITY | 3 | 0 | 1975 | 216.0 |
Sketch
Property Image
Land
| 1 | 18 | AC (02.01-03.00) | 2.5000 | 108900.00 | 0.00 | 0.00 | 1.00 | $250,000 | $0 |
Roll Value History
| 2026 | N/A | N/A | N/A | N/A | N/A |
| 2025 | $179,672 | $250,000 | $0 | $429,672 | $429,672 |
| 2024 | $186,333 | $230,000 | $0 | $416,333 | $416,333 |
| 2023 | $189,234 | $220,000 | $0 | $409,234 | $409,234 |
| 2022 | $157,134 | $210,000 | $0 | $367,134 | $367,134 |
| 2021 | $138,802 | $160,000 | $0 | $298,802 | $298,802 |
| 2020 | $135,473 | $140,000 | $0 | $275,473 | $185,268 |
| 2019 | $95,747 | $200,000 | $0 | $295,747 | $185,268 |
| 2018 | $96,109 | $170,000 | $0 | $266,109 | $185,268 |
| 2017 | $96,831 | $150,000 | $0 | $246,831 | $185,268 |
| 2016 | $83,824 | $120,000 | $0 | $203,824 | $203,824 |
| 2015 | $85,268 | $100,000 | $0 | $185,268 | $185,268 |
| 2014 | $86,714 | $100,000 | $0 | $186,714 | $186,714 |
| 2013 | $88,160 | $90,000 | $0 | $178,160 | $178,160 |
| 2012 | $89,605 | $108,000 | $0 | $197,605 | $197,605 |
| 2011 | $91,050 | $120,000 | $0 | $211,050 | $211,050 |
| 2010 | $96,540 | $120,000 | $0 | $216,540 | $216,540 |
| 2009 | $100,943 | $155,000 | $0 | $255,943 | $255,943 |
| 2008 | $106,886 | $145,000 | $0 | $251,886 | $251,886 |
| 2007 | $108,435 | $145,000 | $0 | $253,435 | $253,435 |
Deed and Sales History
| 1 | 04/01/1990 | QCD | Quit Claim Deed | JOHNSON, DAVID D | JOHNSON, DAVID D | | | $0.00 | 2049 | 90006653 |
| 2 | 12/01/1981 | CD | DNU - Correction Deed | JOHNSON, DAVID D | JOHNSON, DAVID D | | | $1.00 | 13767 | 391127 |
| 3 | 12/01/1978 | OTHER | Other - Misc. Documents | Unknown | JOHNSON, DAVID D | | | $48,000.00 | 86101 | 344660 |
Payout Agreement
| No payout information available.. |