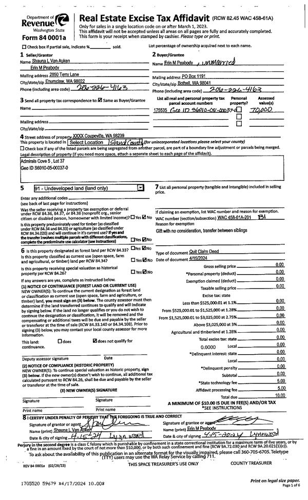
Property
Account |
| Property ID: | 110114 | Abbreviated Legal Description: | 39 - W/2 W/2 S/2 SW SE |
| Geographic ID: | R23335-034-2820 | Agent Code: | |
| Type: | Real | | |
| Tax Area: | 112 - APPRAISER-OH Schl Dist, outside OH, improved, greater than 1 acre | Land Use Code | 11 |
| Open Space: | N | DFL | N |
| Historic Property: | N | Remodel Property: | N |
| Multi-Family Redevelopment: | N | | |
| Township: | 33 | Section: | 35 |
| Range: | R2 |
Location |
| Address: | 1812 STRAWBERRY HILL LN OAK HARBOR, WA 98277 | Mapsco: | |
| Neighborhood: | Cycle 6 | Map ID: | 660 |
| Neighborhood CD: | 6 |
Owner |
| Name: | LERTKANTHITHAM TTEE, PRACHA | Owner ID: | 310236 |
| Mailing Address: | JETSADAPORN LERTKANTITHAM TTEE STEPHANIE M RICHARDS TTEE PO BOX 2743 OAK HARBOR, WA 98277 | % Ownership: | 100.0000000000% |
| | | Exemptions: | |
Taxes and Assessment Details
Values
| (+) Improvement Homesite Value: | + | $0 | |
| (+) Improvement Non-Homesite Value: | + | $431,727 | |
| (+) Land Homesite Value: | + | $0 | |
| (+) Land Non-Homesite Value: | + | $340,000 | |
| (+) Curr Use (HS): | + | $0 | $0 |
| (+) Curr Use (NHS): | + | $0 | $0 |
| | | -------------------------- | |
| (=) Market Value: | = | $771,727 | |
| (–) Productivity Loss: | – | $0 | |
| | | -------------------------- | |
| (=) Subtotal: | = | $771,727 | |
| (+) Senior Appraised Value: | + | $0 | |
| (+) Non-Senior Appraised Value: | + | $771,727 | |
| | | -------------------------- | |
| (=) Total Appraised Value: | = | $771,727 | |
| (–) Senior Exemption Loss: | – | $0 | |
| (–) Exemption Loss: | – | $0 | |
| | | -------------------------- | |
| (=) Taxable Value: | = | $771,727 | |
Taxing Jurisdiction
| Owner: | LERTKANTHITHAM TTEE, PRACHA | | |
| % Ownership: | 100.0000000000% | | |
| Total Value: | $771,727 | | |
| Tax Area: | 112 - APPRAISER-OH Schl Dist, outside OH, improved, greater than 1 acre |
| CF | Conservation Futures | 0.0316035091 | $771,727 | $771,727 | $24.39 | | |
| CEM1 | Cemetery #1 | 0.0040320932 | $771,727 | $771,727 | $3.11 | | |
| FIRE2 | Fire & Rescue Dist #2 N Whidbey GEN | 0.5475949600 | $771,727 | $771,727 | $422.59 | | |
| HOBOND | Hospital BOND | 0.1910887512 | $771,727 | $771,727 | $147.47 | | |
| HOGEN | Hospital GEN | 0.3902502903 | $771,727 | $771,727 | $301.17 | | |
| CE | County Current Expense | 0.3708482477 | $771,727 | $771,727 | $286.19 | | |
| CR | County Roads | 0.4584763726 | $771,727 | $771,727 | $353.82 | | |
| ISLANDEMS | Hospital GEN (EMS) | 0.5000000000 | $771,727 | $771,727 | $385.86 | | |
| LIB | Library Sno-Isle GEN | 0.3153421757 | $771,727 | $771,727 | $243.36 | | |
| NWHIDPRMT | P & R N Whidbey GEN | 0.2004466701 | $771,727 | $771,727 | $154.69 | | |
| SCH201MO | School 201 Enrichment | 1.8559231640 | $771,727 | $771,727 | $1,432.27 | | |
| ST | State School | 1.3035497053 | $771,727 | $771,727 | $1,005.98 | | |
| ST2 | State School Part 2 | 0.8169543533 | $771,727 | $771,727 | $630.47 | | |
| | Total Tax Rate: | 6.9861102925 | | | | | |
| | | | | Taxes w/Current Exemptions: | $5,391.37 | | |
| | | | | Taxes w/o Exemptions: | $5,391.37 | | |
Improvement / Building
| Improvement #1: | RESIDENTIAL | State Code: | Y | 2018.3 sqft | Value: | $431,727 |
| Bathrooms: | 2 | Bedrooms: | 3 | | Ceiling: | DRYWALL PAINTED | Exterior Wall/Cover: | CEMENT FIBER | | Floor Covering: | CARPET/VINYL 80-20 | Floor Structure: | WOOD W/SUBFLOOR | | Foundation: | CONCRETE | Heating: | FHA GAS | | Interior Finish: | DRYWALL PAINT | Plumbing Fixture Cnt: | 10 | | Roof Slope: | 6" IN 12" | Roof Structure/Cover: | CJ ASPHALT |
|
| | Type | Description | Class CD | Sub Class CD | Year Built | Area |
| | BAS | BASE/MAIN FLOOR | 3 | 0 | 2005 | 2018.3 |
| | AGR | ATTACHED GARAGE | 3 | 0 | 2005 | 569.7 |
| | OWP | OPEN WOOD PORCH W/STEPS | 3 | 0 | 2005 | 464.0 |
| | OWC | OPEN WOOD PORCH W/STEPS/ROOF/C | 3 | 0 | 2005 | 156.0 |
| | ENP | ENCLOSED PORCH | 3 | 0 | 2005 | 384.0 |
| | CPD | OPEN CARPORT DIRT FLOOR | 3 | 0 | 2005 | 616.0 |
| | UTY | STORAGE/UTILITY | 3 | 0 | 2019 | 1728.0 |
Sketch
Property Image
Land
| 1 | 32 | AC (03.01-09.99) | 5.0000 | 0.00 | 0.00 | 0.00 | 1.00 | $340,000 | $0 |
Roll Value History
| 2026 | N/A | N/A | N/A | N/A | N/A |
| 2025 | $431,727 | $340,000 | $0 | $771,727 | $771,727 |
| 2024 | $436,852 | $320,000 | $0 | $756,852 | $756,852 |
| 2023 | $441,977 | $320,000 | $0 | $761,977 | $761,977 |
| 2022 | $383,561 | $300,000 | $0 | $683,561 | $683,561 |
| 2021 | $340,568 | $190,000 | $0 | $530,568 | $530,568 |
| 2020 | $332,791 | $160,000 | $0 | $492,791 | $492,791 |
| 2019 | $220,625 | $220,000 | $0 | $440,625 | $440,625 |
| 2018 | $221,194 | $200,000 | $0 | $421,194 | $421,194 |
| 2017 | $222,332 | $165,000 | $0 | $387,332 | $387,332 |
| 2016 | $224,606 | $160,000 | $0 | $384,606 | $384,606 |
| 2015 | $226,881 | $112,500 | $0 | $339,381 | $339,381 |
| 2014 | $229,157 | $112,500 | $0 | $341,657 | $341,657 |
| 2013 | $231,432 | $112,500 | $0 | $343,932 | $343,932 |
| 2012 | $233,706 | $99,000 | $0 | $332,706 | $332,706 |
| 2011 | $235,980 | $110,000 | $0 | $345,980 | $345,980 |
| 2010 | $232,290 | $110,000 | $0 | $342,290 | $342,290 |
| 2009 | $242,217 | $145,000 | $0 | $387,217 | $387,217 |
| 2008 | $247,554 | $145,000 | $0 | $392,554 | $392,554 |
| 2007 | $250,368 | $150,000 | $0 | $400,368 | $400,368 |
Deed and Sales History
| 1 | 08/27/2023 | BARGSLD | Bargain And Sale Deed | LERTKANTITHAM, JETSADAPORN | LERTKANTHITHAM TTEE, PRACHA | | | $0.00 | 58140 | 4565322 |
| 2 | 09/27/2007 | QCD | Quit Claim Deed | LERTKANTITHAM, PRACHA | LERTKANTITHAM, JETSADAPORN | | | $0.00 | 73253 | 4212936 |
| 3 | 05/01/1996 | WD | Warranty Deed | BUSKALA, ERIC J | LERTKANTITHAM, PRACHA | | | $60,000.00 | 61739 | 96008626 |
| 4 | 01/01/1992 | WD | Warranty Deed | WRIGHT, JAMES E | BUSKALA, ERIC J | | | $45,000.00 | 20193 | 92000758 |
| 5 | 06/01/1981 | QCD | Quit Claim Deed | WRIGHT, J E | WRIGHT, JAMES E | | | $0.00 | 20192 | 92000757 |
| 6 | 12/01/1979 | TRUSTEED | Trustee's Deed | WRIGHT, J E | WRIGHT, J E | | | $15,000.00 | 95855 | 0 |
| 7 | 03/01/1977 | TRUSTEED | Trustee's Deed | WATKINS, TRUMAN W | WRIGHT, J E | | | $15,000.00 | 95855 | 0 |
| 8 | 01/01/1900 | OTHER | Other - Misc. Documents | Unknown | WATKINS, TRUMAN W | | | $0.00 | 0 | 0 |
Payout Agreement
| No payout information available.. |