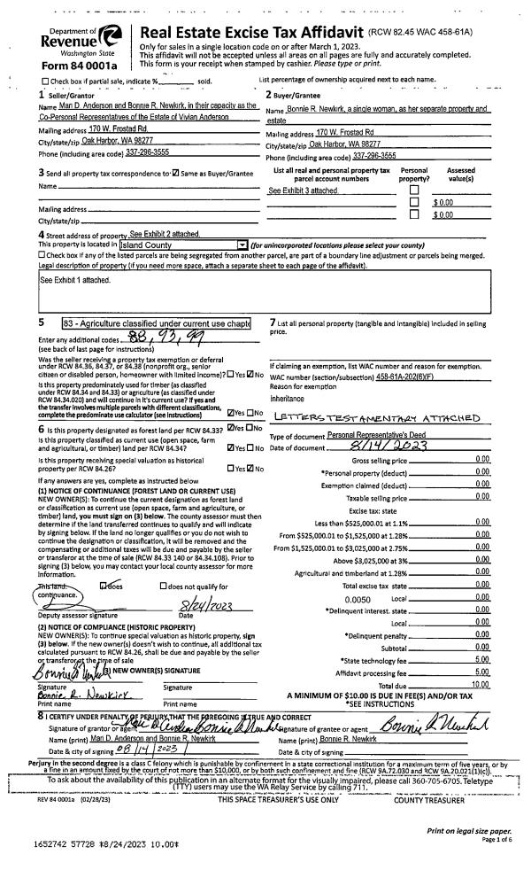
Property
Account |
| Property ID: | 110515 | Abbreviated Legal Description: | 7 - N/2 NW SE EX S66' EX RDS EX: BG 20'W OF NECR NW SE W3 CHNS & 33 LINKS (219 .78') S3 CHNS (198') E3 CHNS & 33 LINKS (219.78') N3 CHNS (198') TPB SUB EZ TGW PT FOLL DESC LY WLY OF WLN STRAWBERRY PT RD: N/2 NE SE EX: BG NWCR N/2 NE SE S208' E208' N20 |
| Geographic ID: | R23335-234-3280 | Agent Code: | |
| Type: | Real | | |
| Tax Area: | 112 - APPRAISER-OH Schl Dist, outside OH, improved, greater than 1 acre | Land Use Code | 11 |
| Open Space: | N | DFL | N |
| Historic Property: | N | Remodel Property: | N |
| Multi-Family Redevelopment: | N | | |
| Township: | 33 | Section: | 35 |
| Range: | R2 |
Location |
| Address: | 2553 STRAWBERRY POINT RD OAK HARBOR, WA 98277 | Mapsco: | |
| Neighborhood: | Cycle 6 | Map ID: | 660 |
| Neighborhood CD: | 6 |
Owner |
| Name: | GOODMAN, FREDRICK L / JULIA R | Owner ID: | 74494 |
| Mailing Address: | 2553 STRAWBERRY POINT RD OAK HARBOR, WA 98277-8689 | % Ownership: | 100.0000000000% |
| | | Exemptions: | |
Taxes and Assessment Details
Values
| (+) Improvement Homesite Value: | + | $0 | |
| (+) Improvement Non-Homesite Value: | + | $154,411 | |
| (+) Land Homesite Value: | + | $0 | |
| (+) Land Non-Homesite Value: | + | $340,000 | |
| (+) Curr Use (HS): | + | $0 | $0 |
| (+) Curr Use (NHS): | + | $0 | $0 |
| | | -------------------------- | |
| (=) Market Value: | = | $494,411 | |
| (–) Productivity Loss: | – | $0 | |
| | | -------------------------- | |
| (=) Subtotal: | = | $494,411 | |
| (+) Senior Appraised Value: | + | $0 | |
| (+) Non-Senior Appraised Value: | + | $494,411 | |
| | | -------------------------- | |
| (=) Total Appraised Value: | = | $494,411 | |
| (–) Senior Exemption Loss: | – | $0 | |
| (–) Exemption Loss: | – | $0 | |
| | | -------------------------- | |
| (=) Taxable Value: | = | $494,411 | |
Taxing Jurisdiction
| Owner: | GOODMAN, FREDRICK L / JULIA R | | |
| % Ownership: | 100.0000000000% | | |
| Total Value: | $494,411 | | |
| Tax Area: | 112 - APPRAISER-OH Schl Dist, outside OH, improved, greater than 1 acre |
| CF | Conservation Futures | 0.0316035091 | $494,411 | $494,411 | $15.63 | | |
| CEM1 | Cemetery #1 | 0.0040320932 | $494,411 | $494,411 | $1.99 | | |
| FIRE2 | Fire & Rescue Dist #2 N Whidbey GEN | 0.5475949600 | $494,411 | $494,411 | $270.74 | | |
| HOBOND | Hospital BOND | 0.1910887512 | $494,411 | $494,411 | $94.48 | | |
| HOGEN | Hospital GEN | 0.3902502903 | $494,411 | $494,411 | $192.94 | | |
| CE | County Current Expense | 0.3708482477 | $494,411 | $494,411 | $183.35 | | |
| CR | County Roads | 0.4584763726 | $494,411 | $494,411 | $226.68 | | |
| ISLANDEMS | Hospital GEN (EMS) | 0.5000000000 | $494,411 | $494,411 | $247.21 | | |
| LIB | Library Sno-Isle GEN | 0.3153421757 | $494,411 | $494,411 | $155.91 | | |
| NWHIDPRMT | P & R N Whidbey GEN | 0.2004466701 | $494,411 | $494,411 | $99.10 | | |
| SCH201MO | School 201 Enrichment | 1.8559231640 | $494,411 | $494,411 | $917.59 | | |
| ST | State School | 1.3035497053 | $494,411 | $494,411 | $644.49 | | |
| ST2 | State School Part 2 | 0.8169543533 | $494,411 | $494,411 | $403.91 | | |
| | Total Tax Rate: | 6.9861102925 | | | | | |
| | | | | Taxes w/Current Exemptions: | $3,454.02 | | |
| | | | | Taxes w/o Exemptions: | $3,454.02 | | |
Improvement / Building
| Improvement #1: | RESIDENTIAL | State Code: | Y | 1080.0 sqft | Value: | $154,411 |
| Bathrooms: | 1 | Bedrooms: | 3 | | Ceiling: | DRYWALL PAINTED | Exterior Wall/Cover: | SHINGLE | | Floor Covering: | CARPET/VINYL 80-20 | Floor Structure: | WOOD W/SUBFLOOR | | Foundation: | CONCRETE | Interior Finish: | DRYWALL PAINT | | Plumbing Fixture Cnt: | 6 | Roof Slope: | 6" IN 12" | | Roof Structure/Cover: | CJ ASPHALT |   |   |
|
| | Type | Description | Class CD | Sub Class CD | Year Built | Area |
| | BAS | BASE/MAIN FLOOR | 2 | 0 | 1925 | 1080.0 |
| | ATF | ATTIC FINISHED | 2 | 0 | 1925 | 364.0 |
| | OP3 | OPEN PORCH W/ROOF | 2 | 0 | 1925 | 46.4 |
| | ATU | ATTIC UNFINISHED | 2 | 0 | 1925 | 144.0 |
| | OWR | OPEN WOOD PORCH W/STEPS/ROOF | 2 | 0 | 1925 | 324.0 |
| | ENP | ENCLOSED PORCH | 2 | 0 | 1925 | 144.0 |
| | oPOL | POLE BARN | 2 | 0 | 1925 | 1500.0 |
| | OCP | OPEN CARPORT | 2 | 0 | 1925 | 540.0 |
| | UTY | STORAGE/UTILITY | 2 | 0 | 1925 | 288.0 |
| | OCP | OPEN CARPORT | 2 | 0 | 1925 | 540.0 |
| | CPD | OPEN CARPORT DIRT FLOOR | 2 | 0 | 1925 | 800.0 |
Sketch
Property Image
Land
| 1 | 35 | AC (10.00-30.99) | 17.1000 | 744876.00 | 0.00 | 0.00 | 1.00 | $340,000 | $0 |
Roll Value History
| 2026 | N/A | N/A | N/A | N/A | N/A |
| 2025 | $154,411 | $340,000 | $0 | $494,411 | $494,411 |
| 2024 | $156,812 | $300,000 | $0 | $456,812 | $456,812 |
| 2023 | $159,215 | $280,000 | $0 | $439,215 | $439,215 |
| 2022 | $119,466 | $270,000 | $0 | $389,466 | $389,466 |
| 2021 | $107,479 | $250,000 | $0 | $357,479 | $357,479 |
| 2020 | $105,783 | $240,000 | $0 | $345,783 | $345,783 |
| 2019 | $81,145 | $300,000 | $0 | $381,145 | $381,145 |
| 2018 | $81,441 | $230,000 | $0 | $311,441 | $311,441 |
| 2017 | $82,034 | $200,000 | $0 | $282,034 | $282,034 |
| 2016 | $79,601 | $200,000 | $0 | $279,601 | $279,601 |
| 2015 | $80,857 | $240,000 | $0 | $320,857 | $320,857 |
| 2014 | $82,113 | $238,648 | $0 | $320,761 | $320,761 |
| 2013 | $83,370 | $238,648 | $0 | $322,018 | $322,018 |
| 2012 | $84,626 | $143,368 | $0 | $227,994 | $227,994 |
| 2011 | $85,884 | $159,248 | $0 | $245,132 | $245,132 |
| 2010 | $82,809 | $159,248 | $0 | $242,057 | $242,057 |
| 2009 | $85,057 | $318,048 | $0 | $403,105 | $403,105 |
| 2008 | $89,915 | $167,188 | $0 | $257,103 | $257,103 |
| 2007 | $92,301 | $253,734 | $0 | $346,035 | $346,035 |
Deed and Sales History
| 1 | 05/01/1995 | OTHER | Other - Misc. Documents | GOODMAN, FREDRICK L | GOODMAN, FREDRICK L | | | $0.00 | 66415 | 94002993 |
| 2 | 06/01/1994 | OTHER | Other - Misc. Documents | GOODMAN, FREDRICK L | GOODMAN, FREDRICK L | | | $0.00 | 65945 | 94013688 |
| 3 | 03/01/1994 | QCD | Quit Claim Deed | GOODMAN, FREDRICK L | GOODMAN, FREDRICK L | | | $0.00 | 42447 | 94013687 |
| 4 | 11/01/1993 | WD | Warranty Deed | KEELER, ELIZABETH J | GOODMAN, FREDRICK L | | | $145,000.00 | 34536 | 93023650 |
| 5 | 08/01/1976 | EXECUTORD | Executor Deed | GRANT, NORMA L | KEELER, ELIZABETH J | | | $5,400.00 | 62791 | 0 |
| 6 | 01/01/1900 | OTHER | Other - Misc. Documents | Unknown | GRANT, NORMA L | | | $0.00 | 0 | 0 |
Payout Agreement
| No payout information available.. |