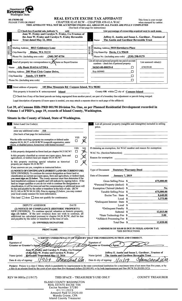
Property
Account |
| Property ID: | 11052 | Abbreviated Legal Description: | 92 SUMNER DLC - BG S73*W475 .20' & 23.76'N OF SWCR TAFT DLC N17*W109.20' S72*W81.84 S17*E TO NLN RD ELY ALG SD NLN TPB |
| Geographic ID: | R13202-231-2400 | Agent Code: | |
| Type: | Real | | |
| Tax Area: | 100 - APPRAISER-OH Schl Dist, in OH | Land Use Code | 65 |
| Open Space: | N | DFL | N |
| Historic Property: | N | Remodel Property: | N |
| Multi-Family Redevelopment: | N | | |
| Township: | 32 | Section: | 02 |
| Range: | R1 |
Location |
| Address: | 740 SE PIONEER WAY OAK HARBOR, WA 98277 | Mapsco: | |
| Neighborhood: | 12cOH-pioneer way | Map ID: | 86 |
| Neighborhood CD: | 12cOHpionr |
Owner |
| Name: | 720 SE PIONEER WAY, LLC | Owner ID: | 288400 |
| Mailing Address: | 9609 B ROOSEVELT WAY NE SEATTLE, WA 98115 | % Ownership: | 100.0000000000% |
| | | Exemptions: | |
Taxes and Assessment Details
Values
| (+) Improvement Homesite Value: | + | $0 | |
| (+) Improvement Non-Homesite Value: | + | $354,002 | |
| (+) Land Homesite Value: | + | $0 | |
| (+) Land Non-Homesite Value: | + | $130,680 | |
| (+) Curr Use (HS): | + | $0 | $0 |
| (+) Curr Use (NHS): | + | $0 | $0 |
| | | -------------------------- | |
| (=) Market Value: | = | $484,682 | |
| (–) Productivity Loss: | – | $0 | |
| | | -------------------------- | |
| (=) Subtotal: | = | $484,682 | |
| (+) Senior Appraised Value: | + | $0 | |
| (+) Non-Senior Appraised Value: | + | $484,682 | |
| | | -------------------------- | |
| (=) Total Appraised Value: | = | $484,682 | |
| (–) Senior Exemption Loss: | – | $0 | |
| (–) Exemption Loss: | – | $0 | |
| | | -------------------------- | |
| (=) Taxable Value: | = | $484,682 | |
Taxing Jurisdiction
| Owner: | 720 SE PIONEER WAY, LLC | | |
| % Ownership: | 100.0000000000% | | |
| Total Value: | $484,682 | | |
| Tax Area: | 100 - APPRAISER-OH Schl Dist, in OH |
| CF | Conservation Futures | 0.0316035091 | $484,682 | $484,682 | $15.32 | | |
| CEM1 | Cemetery #1 | 0.0040320932 | $484,682 | $484,682 | $1.95 | | |
| COH | City of Oak Harbor | 2.3001546061 | $484,682 | $484,682 | $1,114.84 | | |
| OAKBOND | City of Oak Harbor BOND | 0.1926904192 | $484,682 | $484,682 | $93.39 | | |
| HOBOND | Hospital BOND | 0.1910887512 | $484,682 | $484,682 | $92.62 | | |
| HOGEN | Hospital GEN | 0.3902502903 | $484,682 | $484,682 | $189.15 | | |
| CE | County Current Expense | 0.3708482477 | $484,682 | $484,682 | $179.74 | | |
| ISLANDEMS | Hospital GEN (EMS) | 0.5000000000 | $484,682 | $484,682 | $242.34 | | |
| LIB | Library Sno-Isle GEN | 0.3153421757 | $484,682 | $484,682 | $152.84 | | |
| NWHIDPRMT | P & R N Whidbey GEN | 0.2004466701 | $484,682 | $484,682 | $97.15 | | |
| SCH201MO | School 201 Enrichment | 1.8559231640 | $484,682 | $484,682 | $899.53 | | |
| ST | State School | 1.3035497053 | $484,682 | $484,682 | $631.81 | | |
| ST2 | State School Part 2 | 0.8169543533 | $484,682 | $484,682 | $395.96 | | |
| | Total Tax Rate: | 8.4728839852 | | | | | |
| | | | | Taxes w/Current Exemptions: | $4,106.64 | | |
| | | | | Taxes w/o Exemptions: | $4,106.64 | | |
Improvement / Building
| Improvement #1: | COMMERCIAL | State Code: | F1 | 3100.9 sqft | Value: | $354,002 |
| Bathrooms: | 0 | Ceiling: | DRYWALL PAINTED | | Cooling: | PACKAGE HEAT & COOL | Exterior Wall/Cover: | STUCCO/STEEL FRAME | | Floor Covering: | CARPET 100% | Floor Structure: | CONCRETE ON GROUND | | Foundation: | SLAB | Heating: | FHA ELECTRIC | | Interior Finish: | OFFICE | Plumbing Fixture Cnt: | 1 | | Roof Structure/Cover: | BEAM BUILT-UP ROCK |   |   |
|
| | Type | Description | Class CD | Sub Class CD | Year Built | Area |
| | BAS | BASE/MAIN FLOOR | 3 | 0 | 1949 | 2252.6 |
| | UPS | UPPER STORY | 3 | 0 | 1949 | 848.3 |
| | oPV1 | PV/ASPH 2" | 3 | 0 | 1949 | 4700.0 |
Sketch
Property Image
Land
| 1 | 68 | COMMERCIAL RETAIL | 0.1875 | 8167.50 | 0.00 | 0.00 | 1.00 | $130,680 | $0 |
Roll Value History
| 2026 | N/A | N/A | N/A | N/A | N/A |
| 2025 | $354,002 | $130,680 | $0 | $484,682 | $484,682 |
| 2024 | $365,140 | $130,680 | $0 | $495,820 | $495,820 |
| 2023 | $376,278 | $130,680 | $0 | $506,958 | $506,958 |
| 2022 | $300,854 | $143,008 | $0 | $443,862 | $443,862 |
| 2021 | $300,854 | $143,008 | $0 | $443,862 | $443,862 |
| 2020 | $300,854 | $143,008 | $0 | $443,862 | $443,862 |
| 2019 | $279,217 | $107,256 | $0 | $386,473 | $386,473 |
| 2018 | $242,407 | $89,380 | $0 | $331,787 | $331,787 |
| 2017 | $243,141 | $178,760 | $0 | $421,901 | $421,901 |
| 2016 | $243,141 | $178,760 | $0 | $421,901 | $421,901 |
| 2015 | $250,500 | $178,760 | $0 | $429,260 | $429,260 |
| 2014 | $250,116 | $212,099 | $0 | $462,215 | $462,215 |
| 2013 | $223,268 | $212,099 | $0 | $435,367 | $435,367 |
| 2012 | $360,152 | $212,099 | $0 | $572,251 | $572,251 |
| 2011 | $360,152 | $212,099 | $0 | $572,251 | $572,251 |
| 2010 | $337,878 | $212,099 | $0 | $549,977 | $549,977 |
| 2009 | $342,272 | $312,026 | $0 | $654,298 | $654,298 |
| 2008 | $346,665 | $328,472 | $0 | $675,137 | $675,137 |
| 2007 | $355,453 | $218,981 | $0 | $574,434 | $574,434 |
Deed and Sales History
| 1 | 12/27/2018 | WD | Warranty Deed | PIONEER WAY PROPERTIES LLC | 720 SE PIONEER WAY, LLC | | | $420,000.00 | 37182 | 4457446 |
| 2 | 06/24/2014 | QCD | Quit Claim Deed | SKINNER, CHRISTON C / DEBORAH | PIONEER WAY PROPERTIES LLC | | | $0.00 | 15956 | 4362078 |
| 3 | 02/01/1996 | WD | Warranty Deed | GAMBLE, WILLIAM V | SKINNER, CHRISTON C | | | $212,000.00 | 60519 | 96002758 |
| 4 | 07/01/1991 | WD | Warranty Deed | FRANSSEN, FRANK | GAMBLE, WILLIAM V | | | $130,000.00 | 12594 | 91011020 |
| 5 | 07/01/1978 | OTHER | Other - Misc. Documents | Unknown | FRANSSEN, FRANK | | | $85,000.00 | 83433 | 336536 |
Payout Agreement
| No payout information available.. |