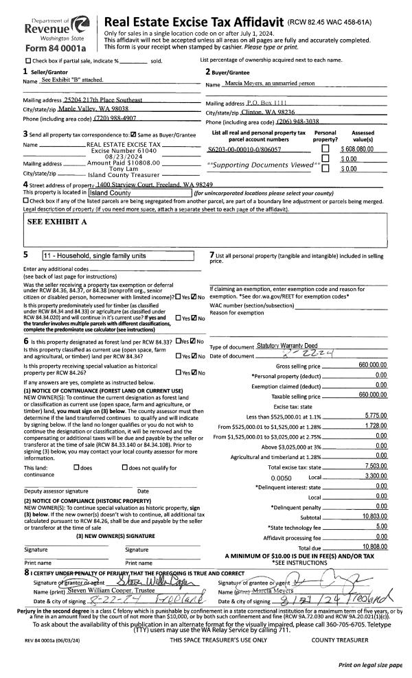
Property
Account |
| Property ID: | 110668 | Abbreviated Legal Description: | 56 - N/2 SE NW NW TGW E2' OF N/2 OF SW NW NW |
| Geographic ID: | R23335-442-0990 | Agent Code: | |
| Type: | Real | | |
| Tax Area: | 112 - APPRAISER-OH Schl Dist, outside OH, improved, greater than 1 acre | Land Use Code | 11 |
| Open Space: | N | DFL | N |
| Historic Property: | N | Remodel Property: | N |
| Multi-Family Redevelopment: | N | | |
| Township: | 33 | Section: | 35 |
| Range: | R2 |
Location |
| Address: | 2742 UMATILLA DR OAK HARBOR, WA 98277 | Mapsco: | |
| Neighborhood: | Cycle 6 | Map ID: | 662 |
| Neighborhood CD: | 6 |
Owner |
| Name: | FREEMAN, LEE TIMOTHY | Owner ID: | 311221 |
| Mailing Address: | LYNAE CATHERINE FREEMAN 2742 UMATILLA DR OAK HARBOR, WA 98277 | % Ownership: | 100.0000000000% |
| | | Exemptions: | |
Taxes and Assessment Details
Values
| (+) Improvement Homesite Value: | + | $0 | |
| (+) Improvement Non-Homesite Value: | + | $355,136 | |
| (+) Land Homesite Value: | + | $0 | |
| (+) Land Non-Homesite Value: | + | $300,000 | |
| (+) Curr Use (HS): | + | $0 | $0 |
| (+) Curr Use (NHS): | + | $0 | $0 |
| | | -------------------------- | |
| (=) Market Value: | = | $655,136 | |
| (–) Productivity Loss: | – | $0 | |
| | | -------------------------- | |
| (=) Subtotal: | = | $655,136 | |
| (+) Senior Appraised Value: | + | $0 | |
| (+) Non-Senior Appraised Value: | + | $655,136 | |
| | | -------------------------- | |
| (=) Total Appraised Value: | = | $655,136 | |
| (–) Senior Exemption Loss: | – | $0 | |
| (–) Exemption Loss: | – | $0 | |
| | | -------------------------- | |
| (=) Taxable Value: | = | $655,136 | |
Taxing Jurisdiction
| Owner: | FREEMAN, LEE TIMOTHY | | |
| % Ownership: | 100.0000000000% | | |
| Total Value: | $655,136 | | |
| Tax Area: | 112 - APPRAISER-OH Schl Dist, outside OH, improved, greater than 1 acre |
| CF | Conservation Futures | 0.0316035091 | $655,136 | $655,136 | $20.70 | | |
| CEM1 | Cemetery #1 | 0.0040320932 | $655,136 | $655,136 | $2.64 | | |
| FIRE2 | Fire & Rescue Dist #2 N Whidbey GEN | 0.5475949600 | $655,136 | $655,136 | $358.75 | | |
| HOBOND | Hospital BOND | 0.1910887512 | $655,136 | $655,136 | $125.19 | | |
| HOGEN | Hospital GEN | 0.3902502903 | $655,136 | $655,136 | $255.67 | | |
| CE | County Current Expense | 0.3708482477 | $655,136 | $655,136 | $242.96 | | |
| CR | County Roads | 0.4584763726 | $655,136 | $655,136 | $300.36 | | |
| ISLANDEMS | Hospital GEN (EMS) | 0.5000000000 | $655,136 | $655,136 | $327.57 | | |
| LIB | Library Sno-Isle GEN | 0.3153421757 | $655,136 | $655,136 | $206.59 | | |
| NWHIDPRMT | P & R N Whidbey GEN | 0.2004466701 | $655,136 | $655,136 | $131.32 | | |
| SCH201MO | School 201 Enrichment | 1.8559231640 | $655,136 | $655,136 | $1,215.88 | | |
| ST | State School | 1.3035497053 | $655,136 | $655,136 | $854.00 | | |
| ST2 | State School Part 2 | 0.8169543533 | $655,136 | $655,136 | $535.22 | | |
| | Total Tax Rate: | 6.9861102925 | | | | | |
| | | | | Taxes w/Current Exemptions: | $4,576.85 | | |
| | | | | Taxes w/o Exemptions: | $4,576.85 | | |
Improvement / Building
| Improvement #1: | RESIDENTIAL | State Code: | Y | 2056.0 sqft | Value: | $355,136 |
| Bathrooms: | 3 | Bedrooms: | 3 | | Ceiling: | DRYWALL PAINTED | Exterior Wall/Cover: | PLY/HARDBOARD T-111 | | Floor Covering: | VINYL TILE | Floor Structure: | WOOD W/SUBFLOOR | | Foundation: | CONCRETE | Heating: | WALL HEAT ELECTRIC | | Interior Finish: | DRYWALL PAINT | Plumbing Fixture Cnt: | 13 | | Roof Slope: | 4" IN 12" | Roof Structure/Cover: | CJ ASPHALT |
|
| | Type | Description | Class CD | Sub Class CD | Year Built | Area |
| | BAS | BASE/MAIN FLOOR | 3 | 0 | 1979 | 1336.0 |
| | DWN | DOWNSTAIRS LIVING AREA | 3 | 0 | 1979 | 720.0 |
| | BIG | BUILT IN GARAGE | 3 | 0 | 1979 | 572.0 |
| | OWP | OPEN WOOD PORCH W/STEPS | 3 | 0 | 1979 | 28.0 |
| | OWP | OPEN WOOD PORCH W/STEPS | 3 | 0 | 1979 | 559.2 |
| | oPOL | POLE BARN | 3 | 0 | 2025 | 864.0 |
Sketch
| No sketches available for this property. |
Property Image
Land
| 1 | 32 | AC (03.01-09.99) | 5.0000 | 0.00 | 0.00 | 0.00 | 1.00 | $300,000 | $0 |
Roll Value History
| 2026 | N/A | N/A | N/A | N/A | N/A |
| 2025 | $355,136 | $300,000 | $0 | $655,136 | $655,136 |
| 2024 | $319,241 | $280,000 | $0 | $599,241 | $599,241 |
| 2023 | $216,575 | $270,000 | $0 | $486,575 | $486,575 |
| 2022 | $179,764 | $240,000 | $0 | $419,764 | $130,138 |
| 2021 | $165,345 | $160,000 | $0 | $325,345 | $130,138 |
| 2020 | $161,275 | $140,000 | $0 | $301,275 | $301,275 |
| 2019 | $113,074 | $200,000 | $0 | $313,074 | $313,074 |
| 2018 | $113,535 | $170,000 | $0 | $283,535 | $283,535 |
| 2017 | $114,458 | $150,000 | $0 | $264,458 | $264,458 |
| 2016 | $121,502 | $140,000 | $0 | $261,502 | $261,502 |
| 2015 | $123,431 | $120,000 | $0 | $243,431 | $243,431 |
| 2014 | $125,360 | $100,000 | $0 | $225,360 | $225,360 |
| 2013 | $127,288 | $108,000 | $0 | $235,288 | $235,288 |
| 2012 | $129,216 | $99,000 | $0 | $228,216 | $228,216 |
| 2011 | $131,146 | $110,000 | $0 | $241,146 | $241,146 |
| 2010 | $136,688 | $110,000 | $0 | $246,688 | $246,688 |
| 2009 | $142,766 | $145,000 | $0 | $287,766 | $287,766 |
| 2008 | $139,668 | $145,000 | $0 | $284,668 | $284,668 |
| 2007 | $141,617 | $150,000 | $0 | $291,617 | $291,617 |
Deed and Sales History
| 1 | 01/12/2024 | WD | Warranty Deed | RZ FAMILY HOME IMPROVEMENTS, LLC | FREEMAN, LEE TIMOTHY | | | $650,000.00 | 59029 | 4568662 |
| 2 | 04/13/2023 | WD | Warranty Deed | SINCLAIR, CAROL | RZ FAMILY HOME IMPROVEMENTS, LLC | | | $250,000.00 | 56410 | 4558813 |
| 3 | 05/16/2001 | QCD | Quit Claim Deed | SINCLAIR, CAROL B | SINCLAIR, CAROL | | | $0.00 | 54697 | 4551845 |
| 4 | 05/16/2001 | ESTSEPPROP | Establish Separate Property | SINCLAIR, CAROL L | SINCLAIR, CAROL L | | | $0.00 | 11743 | 20032639 |
| 5 | 08/01/1995 | DECREE | Divorce Decree/Legal Separation | SINCLAIR, GARY L | SINCLAIR, CAROL L | | | $0.00 | 66593 | 0 |
| 6 | 03/01/1988 | WD | Warranty Deed | ADMIN, OF V | SINCLAIR, GARY L | | | $71,000.00 | 80783 | 88003091 |
| 7 | 08/01/1987 | WD | Warranty Deed | NEW, YORK G | ADMIN, OF V | | | $0.00 | 72407 | 87011009 |
| 8 | 06/01/1987 | TRUSTEED | Trustee's Deed | VANCE, MICHAEL J | NEW, YORK G | | | $0.00 | 71876 | 87008693 |
| 9 | 11/01/1981 | WD | Warranty Deed | LAMBERT, GEORGE D | VANCE, MICHAEL J | | | $74,966.00 | 13607 | 390438 |
| 10 | 01/01/1981 | WD | Warranty Deed | ISLAND, SAVINGS & | LAMBERT, GEORGE D | | | $59,500.00 | 10214 | 378729 |
| 11 | 09/01/1980 | TTAXD | Treasurer's Tax Deed | BIRCH, ROY L | ISLAND, SAVINGS & | | | $0.00 | 3072 | 0 |
| 12 | 11/01/1978 | OTHER | Other - Misc. Documents | Unknown | BIRCH, ROY L | | | $16,500.00 | 85453 | 342542 |
Payout Agreement
| No payout information available.. |