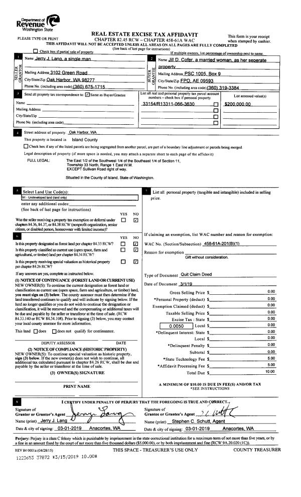
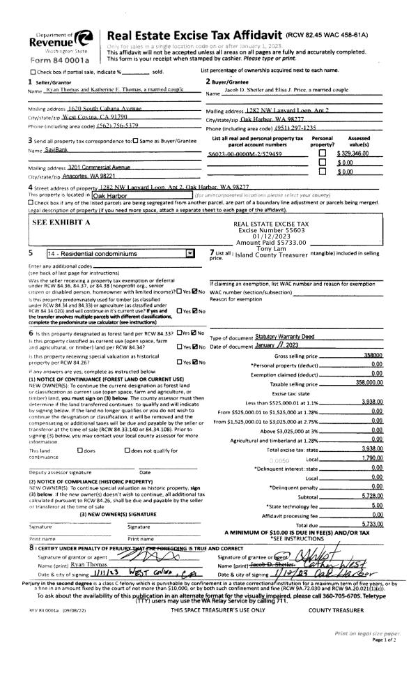
Property
Account |
| Property ID: | 110917 | Abbreviated Legal Description: | 4 - IN GL1:BG NW CR GL1 S350' TPB E164.18' S3*E65. .68' S3*W59.56' W165.66' N125' TPB TGW SUB EZ |
| Geographic ID: | R23430-090-4040 | Agent Code: | |
| Type: | Real | | |
| Tax Area: | 110 - APPRAISER-OH Schl Dist, outside OH, improved & 1 acre or less | Land Use Code | 11 |
| Open Space: | N | DFL | N |
| Historic Property: | N | Remodel Property: | N |
| Multi-Family Redevelopment: | N | | |
| Township: | 34 | Section: | 30 |
| Range: | R2 |
Location |
| Address: | OAK HARBOR, WA 98277 | Mapsco: | |
| Neighborhood: | Cycle 6 | Map ID: | 666 |
| Neighborhood CD: | 6 |
Owner |
| Name: | WALLACE, JOEL A | Owner ID: | 302010 |
| Mailing Address: | COLLETTE C WALLACE 5265 ANGLERS HAVEN DR OAK HARBOR, WA 98277 | % Ownership: | 100.0000000000% |
| | | Exemptions: | |
Taxes and Assessment Details
Values
| (+) Improvement Homesite Value: | + | $0 | |
| (+) Improvement Non-Homesite Value: | + | $364,480 | |
| (+) Land Homesite Value: | + | $0 | |
| (+) Land Non-Homesite Value: | + | $250,000 | |
| (+) Curr Use (HS): | + | $0 | $0 |
| (+) Curr Use (NHS): | + | $0 | $0 |
| | | -------------------------- | |
| (=) Market Value: | = | $614,480 | |
| (–) Productivity Loss: | – | $0 | |
| | | -------------------------- | |
| (=) Subtotal: | = | $614,480 | |
| (+) Senior Appraised Value: | + | $0 | |
| (+) Non-Senior Appraised Value: | + | $614,480 | |
| | | -------------------------- | |
| (=) Total Appraised Value: | = | $614,480 | |
| (–) Senior Exemption Loss: | – | $0 | |
| (–) Exemption Loss: | – | $0 | |
| | | -------------------------- | |
| (=) Taxable Value: | = | $614,480 | |
Taxing Jurisdiction
| Owner: | WALLACE, JOEL A | | |
| % Ownership: | 100.0000000000% | | |
| Total Value: | $614,480 | | |
| Tax Area: | 110 - APPRAISER-OH Schl Dist, outside OH, improved & 1 acre or less |
| CF | Conservation Futures | 0.0316035091 | $614,480 | $614,480 | $19.42 | | |
| CEM1 | Cemetery #1 | 0.0040320932 | $614,480 | $614,480 | $2.48 | | |
| FIRE2 | Fire & Rescue Dist #2 N Whidbey GEN | 0.5475949600 | $614,480 | $614,480 | $336.49 | | |
| HOBOND | Hospital BOND | 0.1910887512 | $614,480 | $614,480 | $117.42 | | |
| HOGEN | Hospital GEN | 0.3902502903 | $614,480 | $614,480 | $239.80 | | |
| CE | County Current Expense | 0.3708482477 | $614,480 | $614,480 | $227.88 | | |
| CR | County Roads | 0.4584763726 | $614,480 | $614,480 | $281.72 | | |
| ISLANDEMS | Hospital GEN (EMS) | 0.5000000000 | $614,480 | $614,480 | $307.24 | | |
| LIB | Library Sno-Isle GEN | 0.3153421757 | $614,480 | $614,480 | $193.77 | | |
| NWHIDPRMT | P & R N Whidbey GEN | 0.2004466701 | $614,480 | $614,480 | $123.17 | | |
| SCH201MO | School 201 Enrichment | 1.8559231640 | $614,480 | $614,480 | $1,140.43 | | |
| ST | State School | 1.3035497053 | $614,480 | $614,480 | $801.01 | | |
| ST2 | State School Part 2 | 0.8169543533 | $614,480 | $614,480 | $502.00 | | |
| | Total Tax Rate: | 6.9861102925 | | | | | |
| | | | | Taxes w/Current Exemptions: | $4,292.83 | | |
| | | | | Taxes w/o Exemptions: | $4,292.83 | | |
Improvement / Building
| Improvement #1: | RESIDENTIAL | State Code: | Y | 1386.0 sqft | Value: | $364,480 |
| Bathrooms: | 2 | Bedrooms: | 2 | | Ceiling: | DRYWALL PAINTED | Cooling: | HEAT PUMP/CONV/V | | Exterior Wall/Cover: | CEMENT FIBER | Floor Covering: | VINYL 100% | | Floor Structure: | WOOD W/SUBFLOOR | Foundation: | CONCRETE | | Interior Finish: | DRYWALL PAINT | Plumbing Fixture Cnt: | 1 | | Roof Slope: | 5" IN 12" | Roof Structure/Cover: | CJ ALUMINIUM HEAVY |
|
| | Type | Description | Class CD | Sub Class CD | Year Built | Area |
| | BAS | BASE/MAIN FLOOR | 4 | 0 | 2021 | 1386.0 |
| | DGR | DETACHED GARAGE | 4 | 0 | 2021 | 990.0 |
| | OWR | OPEN WOOD PORCH W/STEPS/ROOF | 4 | 0 | 2021 | 220.0 |
Sketch
Property Image
Land
| 1 | 15 | SQ (12001-21780) | 0.4700 | 20473.20 | 0.00 | 0.00 | 1.00 | $250,000 | $0 |
Roll Value History
| 2026 | N/A | N/A | N/A | N/A | N/A |
| 2025 | $364,480 | $250,000 | $0 | $614,480 | $614,480 |
| 2024 | $367,373 | $240,000 | $0 | $607,373 | $607,373 |
| 2023 | $371,229 | $240,000 | $0 | $611,229 | $611,229 |
| 2022 | $342,270 | $220,000 | $0 | $562,270 | $562,270 |
| 2021 | $117,279 | $95,000 | $0 | $212,279 | $212,279 |
| 2020 | $0 | $70,000 | $0 | $70,000 | $70,000 |
| 2019 | $0 | $70,000 | $0 | $70,000 | $70,000 |
| 2018 | $0 | $50,000 | $0 | $50,000 | $50,000 |
| 2017 | $0 | $50,000 | $0 | $50,000 | $50,000 |
| 2016 | $0 | $15,000 | $0 | $15,000 | $15,000 |
| 2015 | $0 | $15,000 | $0 | $15,000 | $15,000 |
| 2014 | $0 | $12,000 | $0 | $12,000 | $12,000 |
| 2013 | $0 | $12,000 | $0 | $12,000 | $12,000 |
| 2012 | $0 | $12,000 | $0 | $12,000 | $12,000 |
| 2011 | $0 | $12,000 | $0 | $12,000 | $12,000 |
| 2010 | $0 | $12,000 | $0 | $12,000 | $12,000 |
| 2009 | $0 | $17,000 | $0 | $17,000 | $17,000 |
| 2008 | $0 | $17,000 | $0 | $17,000 | $17,000 |
| 2007 | $0 | $33,800 | $0 | $33,800 | $33,800 |
Deed and Sales History
| 1 | 11/16/2021 | WD | Warranty Deed | WALDRON CONSTRUCTION, INC | WALLACE, JOEL A | | | $414,419.00 | 50946 | 4534058 |
| 2 | 03/10/2021 | QCD | Quit Claim Deed | WALLACE, JOEL A | WALDRON CONSTRUCTION, INC | | | $0.00 | 47342 | 4513494 |
| 3 | 05/03/2019 | WD | Warranty Deed | ERVIN, HENRY | WALLACE, JOEL A | | | $73,000.00 | 38384 | 4462750 |
| 4 | 07/17/2006 | QCD | Quit Claim Deed | WILSON, SYLVIA M | ERVIN, HENRY | | | $0.00 | 63186 | 4178922 |
| 5 | 09/01/1983 | WD | Warranty Deed | WOLLE, ROBERT A | WILSON, SYLVIA M | | | $10,000.00 | 32690 | 415068 |
| 6 | 12/01/1982 | REC | Real Estate Contract | GEMPERLE, A R | WOLLE, ROBERT A | | | $9,500.00 | 32689 | 415067 |
| 7 | 01/01/1900 | OTHER | Other - Misc. Documents | Unknown | GEMPERLE, A R | | | $0.00 | 0 | 0 |
Payout Agreement
| No payout information available.. |